Основными планировочными элементами квартир могут быть (72 фото)

Основными элементами пространственной организации квартиры являются помещения, которые по характеру использования разделяются на две группы:
- жилые помещения (спальни и общая комната);
- подсобные помещения (личной гигиены, хозяйственные, коммуникационные и помещения для хранения вещей).

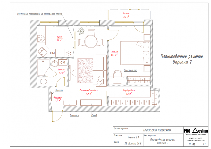
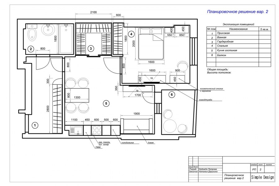
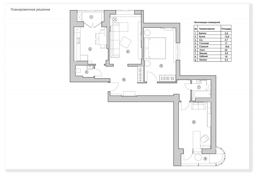
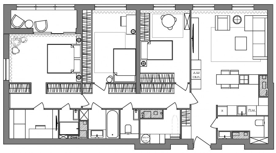
Общая комната, в зависимости от количества комнат в квартире, может иметь площадь от 16 до 20-25 м2. Минимальная ширина общей комнаты – 3,2 м. Наиболее удобной считается комната с соотношением ширины и глубины от 1:1 до 1:1,75.

Спальни проектируют, как правило, трех типов: жилая комната для одного человека (не менее 8 м2), жилая комната для двух членов семьи (минимум 12 м2), спальня для супружеской пары (13-15 м2, что позволяет разместить в ней детскую кроватку). Минимальная ширина спален: для одного человека – 2,25 м, для двух человек – 2,5 м. Но с точки зрения удобства размещения мебели оптимальной считается ширина не менее 3 м. Все спальни проектируются непроходными и по возможности группируются в одной зоне квартиры, рядом с санузлами.

Кухонные помещения, в зависимости от величины квартиры, проектируют в виде кухни с эпизодическим приемом пищи или в виде кухни-столовой.
Кухня с эпизодическим приемом пищи площадью не менее 7 м2 имеет полный состав оборудования и ограниченное место для приема пищи. При этом вход в кухню устраивается из передней.

Кухня-столовая имеет рабочую зону и зону приема пищи для всех членов семьи. Минимальный предел площади – 8 м2 (в семье из 2-3 человек). Для более крупных семей площадь кухни-столовой должна быть 10-12 м2. В рабочей зоне кухни размещается фронт оборудования шириной 600 мм, в который входят плита, мойка, рабочий стол, холодильник, шкафы разного назначения.

Санитарно-гигиенические помещения могут быть совмещенными или раздельными. Совмещенные санузлы применяются только в однокомнатных квартирах или в больших квартирах при наличии второго санузла (в нем вместо ванны может быть душевая кабина размером 9090 см). Ванная комната оборудуется ванной и умывальником. Уборные проектируют двух типов: только с унитазом, если она размещается рядом с ванной, а в случае значительного удаления от ванной комнаты в уборной предусматривается умывальник. Ширина уборной должна быть не менее 0,8 м, глубина – не менее 1,2 м. Вход в уборную допускается только из коридора или прихожей. Ванная комната может быть проходной в кухню или спальню, с основным входом со стороны передней.

Передняя, или прихожая, служит местом хранения одежды, обуви, хозяйственных и спортивных принадлежностей и одновременно центром коммуникаций в квартире. В современных нормах площадь передней не нормируется. Размеры ее должны устанавливаться в зависимости от величины квартиры, но во всех случаях ширина прихожей должна быть не менее 140 см. Прихожая оборудуется встроенными шкафами и антресолями.

Коридоры в квартире должны иметь ширину не менее 110 см, коридор в кухню может быть шириной 80 см.

Летние помещения включают в себя: балконы с выносом плиты 90-105 см; лоджии (заглубленные или частично заглубленные в стены) с выносом плиты 120-150 см; открытые террасы и остекленные неотапливаемые веранды. Высота ограждения балконов и лоджий – 105 см. Площади летних помещений нормируются и должны составлять не более 15 % общей площади квартиры. Площадь веранды в сельских домах может составлять до 20 % от общей площади.

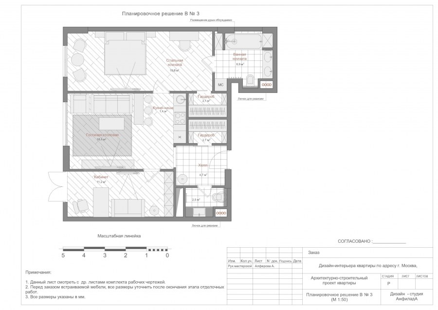
План планировочного решения
План планировочного решения

Объёмно-планировочные решения квартир
Объёмно-планировочные решения квартир

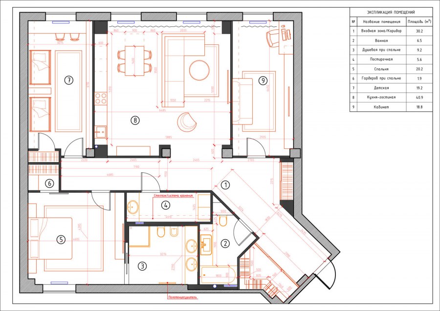
Варианты планировочных решений
Варианты планировочных решений

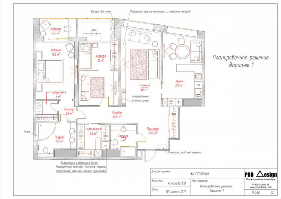
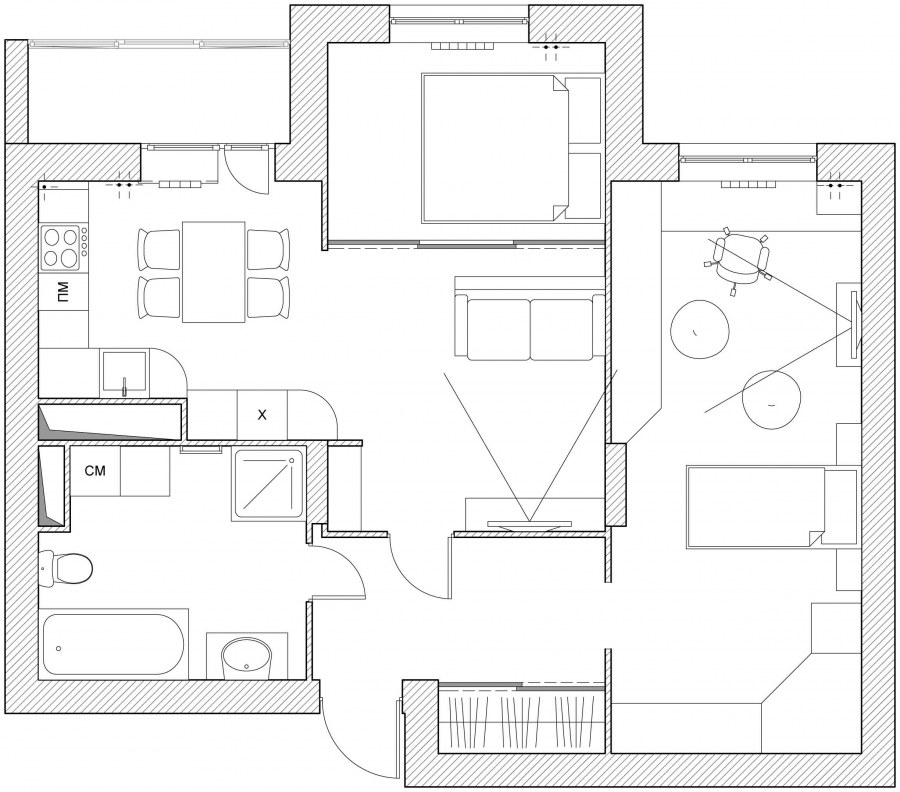
Планировочное решение квартиры
Планировочное решение квартиры

Планировочное решение гостиной
Планировочное решение гостиной

Revit планировка квартиры
Revit планировка квартиры

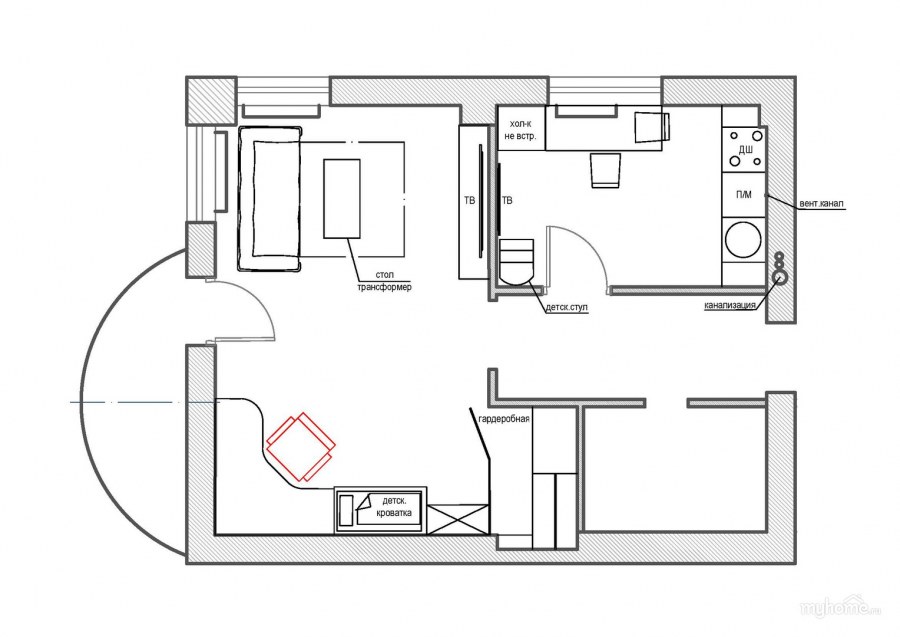
Планировочное решение с мебелью
Планировочное решение с мебелью

План планировочного решения
План планировочного решения

План планировочного решения
План планировочного решения

Архитектурно планировочное решение квартиры
Архитектурно планировочное решение квартиры

Архитектурно планировочное решение квартиры
Архитектурно планировочное решение квартиры

Планировочное решение гостиной
Планировочное решение гостиной

Простая конфигурация планировочного решения
Простая конфигурация планировочного решения

Кухня гостиная планировочные решения
Кухня гостиная планировочные решения

Планировочное решение квартиры
Планировочное решение квартиры

Удобные планировочные решения
Удобные планировочные решения

Планировочное решение квартиры
Планировочное решение квартиры

Удобные планировочные решения
Удобные планировочные решения

Планировочное решение квартиры
Планировочное решение квартиры

Планировочное решение квартиры с размерами
Планировочное решение квартиры с размерами

Планировочное решение магазина
Планировочное решение магазина

Планировочное решение квартиры
Планировочное решение квартиры

Архитектурно-планировочные решения интерьеров
Архитектурно-планировочные решения интерьеров

Планировки городов варианты
Планировки городов варианты

Планировочное решение квартиры
Планировочное решение квартиры

Проект планировочного решения
Проект планировочного решения

Планировочное решение в архикаде
Планировочное решение в архикаде

Объемно-планировочные решения это
Объемно-планировочные решения это

Проектное бюро планировочное решение
Проектное бюро планировочное решение

Сколько стоит планировочное решение офиса
Сколько стоит планировочное решение офиса

Интерьерно-планировочное решение
Интерьерно-планировочное решение

Проект квартиры чертежи
Проект квартиры чертежи

Схема функционального зонирования здания
Схема функционального зонирования здания

Планировка пик евротрешка
Планировка пик евротрешка

Варианты планировок квартир
Варианты планировок квартир

3д планировка квартиры
3д планировка квартиры

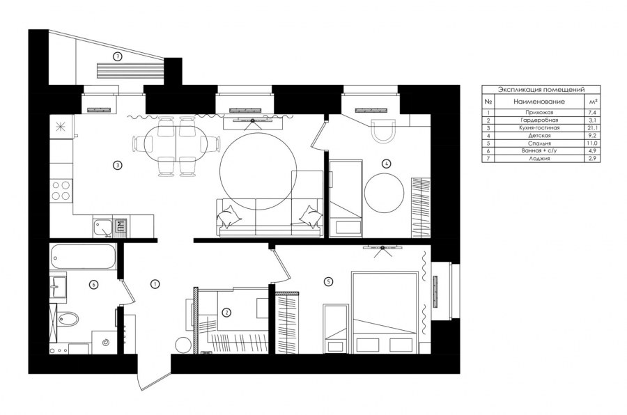
Состав помещений квартиры
Состав помещений квартиры

Варианты планировочных решений
Варианты планировочных решений

Перепланировка объекта недвижимости
Перепланировка объекта недвижимости

Перепланировка квартиры
Перепланировка квартиры

Дизайнер квартиры чертеж
Дизайнер квартиры чертеж

Горбунова 10к2 планировка
Горбунова 10к2 планировка

Проект трехкомнатной квартиры 80 кв.м
Проект трехкомнатной квартиры 80 кв.м

Планировочное решение кабинета
Планировочное решение кабинета

Планировочное решение студии
Планировочное решение студии

Планировочные решения простое
Планировочные решения простое

Планировочное решение детская
Планировочное решение детская

Планировка интерьера
Планировка интерьера

Большая трёхкомнатная квартира планировка
Большая трёхкомнатная квартира планировка

Перепланировка п3 двухкомнатная
Перепланировка п3 двухкомнатная

Планировочное решение квартиры
Планировочное решение квартиры

Планировочное решение в подарок
Планировочное решение в подарок

Планировочное решение квартиры
Планировочное решение квартиры

Схема функционального зонирования квартиры
Схема функционального зонирования квартиры

Планировочное решение спальни
Планировочное решение спальни

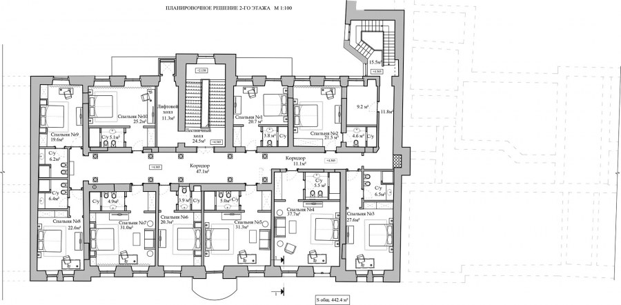
Планировочное решение этажа
Планировочное решение этажа

Проект планировочного решения
Проект планировочного решения

Планировочное решение квартиры
Планировочное решение квартиры

3д интерьера в Revit
3д интерьера в Revit

Разработка вариантов планировочного решения
Разработка вариантов планировочного решения

Коллаж проекта интерьера
Коллаж проекта интерьера

Планировочное решение квартиры с размерами
Планировочное решение квартиры с размерами

Планировочное решение чертеж
Планировочное решение чертеж

Что такое планировочное решение в дизайн проекте
Что такое планировочное решение в дизайн проекте

Проект перепланировки
Проект перепланировки

Планировочное решение квартиры
Планировочное решение квартиры

Планировка большой квартиры
Планировка большой квартиры

Узаконить планировку квартиры
Узаконить планировку квартиры

Строительный проект квартиры
Строительный проект квартиры

Технический дизайн квартиры СПБ
Технический дизайн квартиры СПБ


  • Просмотров: 808
  • Добавлено: 27 ноябрь
Категории: ---
Комментарии (0)
Кликните на изображение чтобы обновить код, если он неразборчив
Похожие фото