Японский дом планировка (69 фото)

Японский дом — это не просто архитектурная форма, а целая философия, отражающая гармонию с природой и внутреннее спокойствие. Планировка японского дома основана на принципах простоты и функциональности, что делает его идеальным местом для жизни, работы и отдыха. Пространство в таком доме часто организовано так, чтобы создать ощущение открытости и связи с окружающей средой.

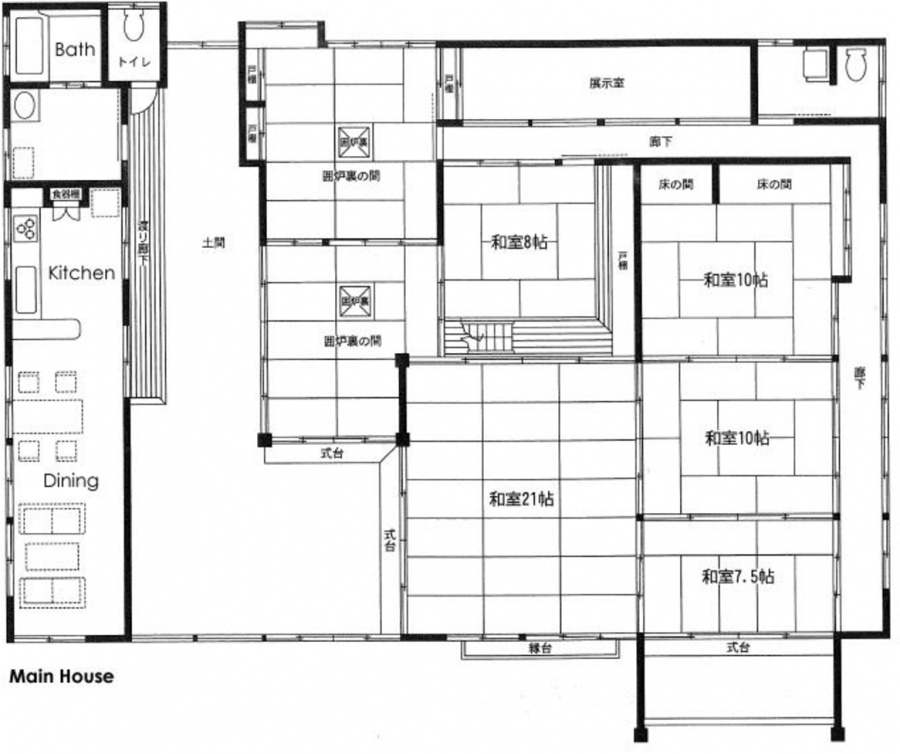
Традиционный японский дом планировка Минка
Традиционный японский дом планировка Минка


Одной из ключевых особенностей японской планировки является использование раздвижных перегородок, или «тё». Эти легкие конструкции позволяют легко изменять пространство в зависимости от нужд жильцов. Например, в дневное время можно открыть комнаты, чтобы создать обширную зону для общения и семейных встреч, а к вечеру снова разделить пространство на более уединенные зоны. Это добавляет гибкости в использовании пространства и помогает поддерживать порядок.

Традиционный японский дом планировка
Традиционный японский дом планировка


Кроме того, японские дома часто имеют открытые террасы и внутренние дворики, которые обеспечивают доступ к естественному свету и свежему воздуху. Эти элементы не только улучшают микроклимат в доме, но и служат местом для медитации и отдыха на природе. Создание небольшого сада или даже просто размещение нескольких растений в таком уголке может значительно повысить качество жизни и привнести в дом атмосферу спокойствия.

Традиционный японский дом планировка
Традиционный японский дом планировка


Цветовая палитра в японских домах обычно включает натуральные оттенки, такие как светлые бежевые, серые и зеленые тона. Эти цвета способствуют созданию уютной и расслабляющей атмосферы. Например, использование деревянных элементов в интерьере, таких как полы или балки, сочетание с нейтральными стенами и аксессуарами дает ощущение тепла и уюта, что особенно важно в условиях современного ритма жизни.

Миниатюрный японский домик
Миниатюрный японский домик


В заключение, японская планировка дома — это не просто стиль, это способ жизни. Она учит нас ценить пространство, природу и гармонию. Такой подход может вдохновить на создание уютного и функционального жилья, в котором каждая деталь продумана и служит для повышения качества жизни.

Минка планировка
Минка планировка


Минка традиционный дом в Японии план
Минка традиционный дом в Японии план

Традиционный японский дом планировка
Традиционный японский дом планировка

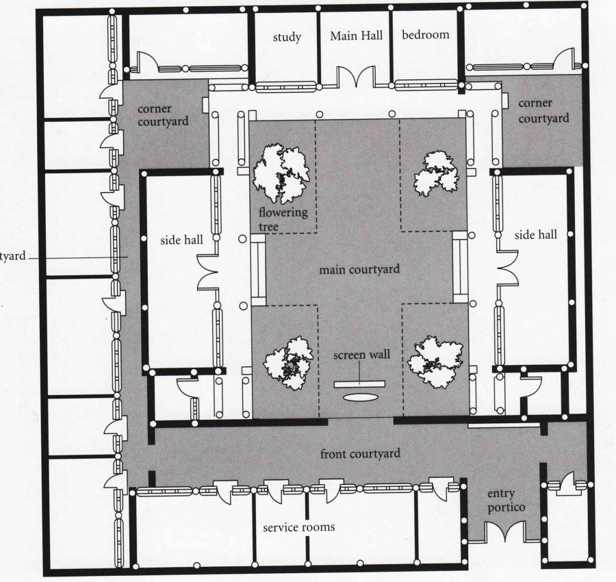
Сыхэюань традиционный китайский дом план
Сыхэюань традиционный китайский дом план

Планировка сыхэюань
Планировка сыхэюань

Китайская усадьба сыхэюань
Китайская усадьба сыхэюань

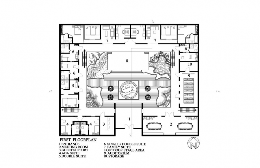
Планировка здания с внутренним двориком
Планировка здания с внутренним двориком

Японский дом планировка чертеж
Японский дом планировка чертеж

Традиционный японский дом план
Традиционный японский дом план

План традиционного японского дома
План традиционного японского дома

Классический японский дом планировка
Классический японский дом планировка

Традиционный японский дом планировка Минка
Традиционный японский дом планировка Минка

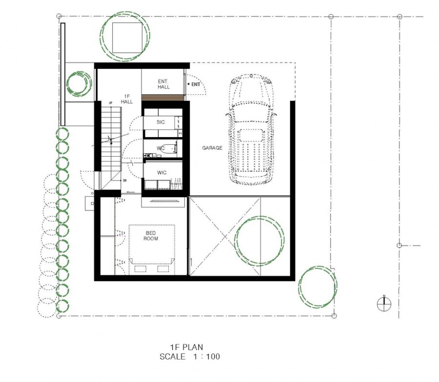
Японский двухэтажный дом
Японский двухэтажный дом

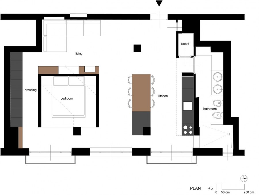
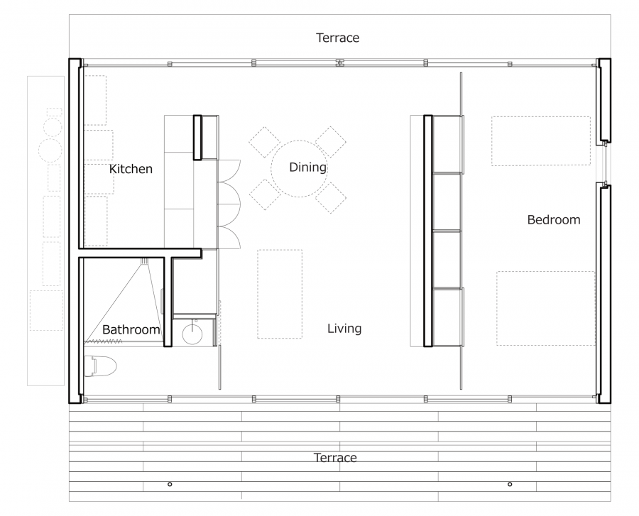
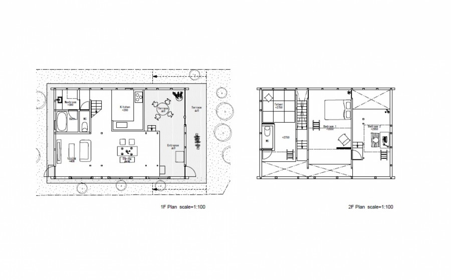
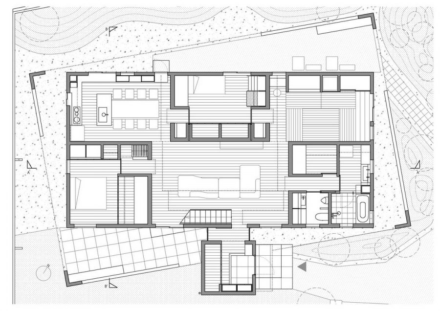
Современный японский дом планировка
Современный японский дом планировка

Минка традиционный японский дом план
Минка традиционный японский дом план

Минка дом в Японии план
Минка дом в Японии план

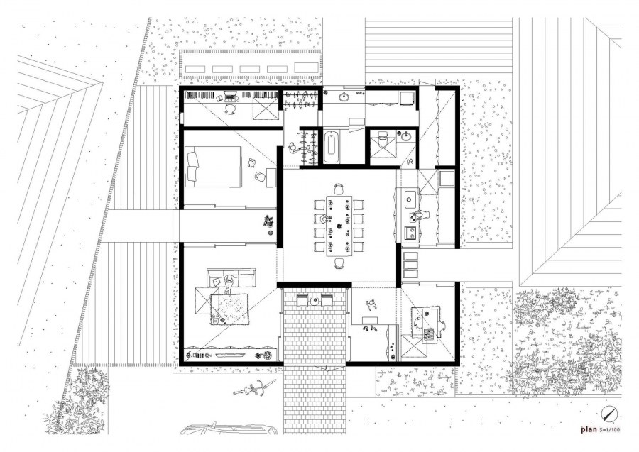
Дом в японском стиле планировка
Дом в японском стиле планировка

Китайская усадьба сыхэюань
Китайская усадьба сыхэюань

Японский дом план
Японский дом план

Планировка сыхэюань
Планировка сыхэюань

Современный японский дом планировка
Современный японский дом планировка

Традиционный японский дом планировка Минка
Традиционный японский дом планировка Минка

Планировка традиционного японского дома
Планировка традиционного японского дома

Японский дом планировка чертеж
Японский дом планировка чертеж

Сыхэюань традиционный китайский дом план
Сыхэюань традиционный китайский дом план

Минка дом в Японии план
Минка дом в Японии план

Маленький японский домик планировка
Маленький японский домик планировка

Проект японского дома с чертежами
Проект японского дома с чертежами

Японские проекты домов планировка
Японские проекты домов планировка

Планировки японских жилых домов
Планировки японских жилых домов

Традиционный японский дом планировка Минка
Традиционный японский дом планировка Минка

Японский домик планировка
Японский домик планировка

Традиционный японский жилой дом планировка
Традиционный японский жилой дом планировка

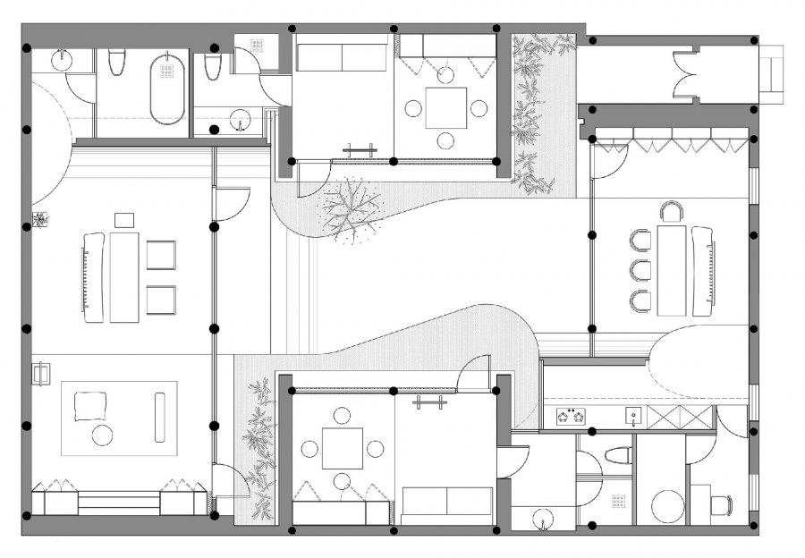
Планировка в японском стиле
Планировка в японском стиле

План квартиры лофт
План квартиры лофт

Традиционный дом в Японии план
Традиционный дом в Японии план

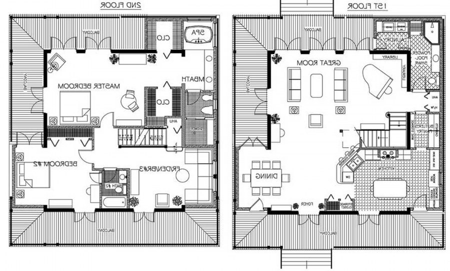
Английский дом планировка
Английский дом планировка

Маленький японский домик планировка
Маленький японский домик планировка

Японские квартиры планировка в домах
Японские квартиры планировка в домах

Cutaway House Sketch
Cutaway House Sketch

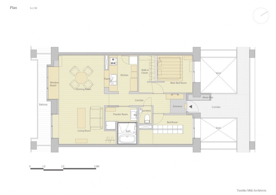
План квартиры в Японии
План квартиры в Японии

Традиционный китайский дом план
Традиционный китайский дом план

Японский домик планировка
Японский домик планировка

Японский дом планировка чертеж
Японский дом планировка чертеж

Традиционный китайский дом сыхэюань
Традиционный китайский дом сыхэюань

Минка дом в Японии внутри
Минка дом в Японии внутри

Минка традиционный дом в Японии план
Минка традиционный дом в Японии план

Японский домик внутри
Японский домик внутри

Японский дом планировка с двориком
Японский дом планировка с двориком

Минка традиционный японский дом план
Минка традиционный японский дом план

Японский дом проект чертеж
Японский дом проект чертеж

Японский дом проект чертеж
Японский дом проект чертеж

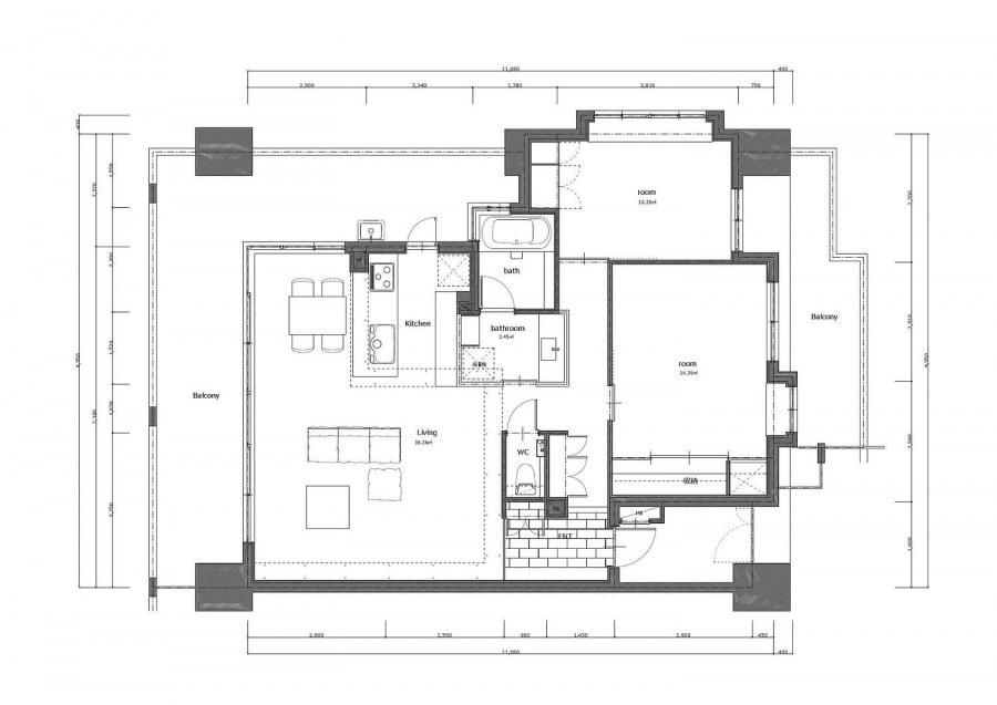
Планировка японского дома с размерами
Планировка японского дома с размерами

Небольшой китайский дом планировка
Небольшой китайский дом планировка

Японские современные дома планировка
Японские современные дома планировка

Сыхэюань традиционный китайский дом план
Сыхэюань традиционный китайский дом план

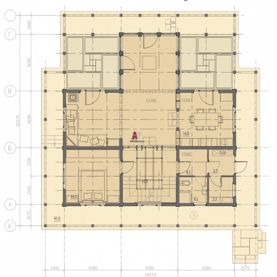
Чертёж современных японских домов
Чертёж современных японских домов

Чертёж современных японских домов
Чертёж современных японских домов

Японский домик внутри
Японский домик внутри

Floorplan 3d проекты
Floorplan 3d проекты

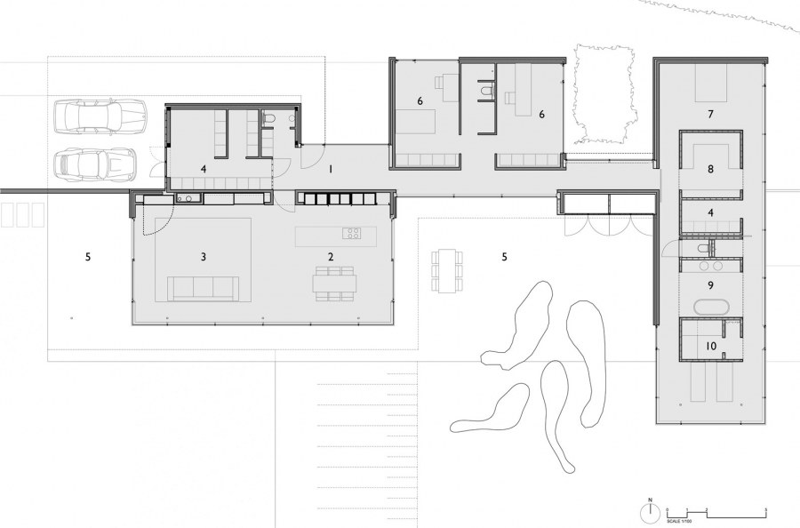
House Plan ground Floor
House Plan ground Floor

Планировка в японском стиле
Планировка в японском стиле

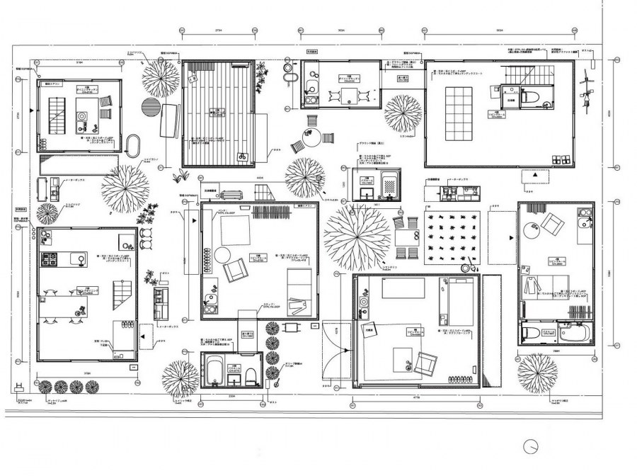
Многоквартирные дома в Японии планы
Многоквартирные дома в Японии планы

Минка традиционный японский дом план
Минка традиционный японский дом план

Японский дом планировка чертеж
Японский дом планировка чертеж

  • Просмотров: 10 487
  • Добавлено: 17 январь
Категории: ---
Комментарии (0)
Кликните на изображение чтобы обновить код, если он неразборчив
Похожие фото