Пример планировки офиса (71 фото)

Пример планировки офиса может включать несколько различных зон, которые оптимизируют рабочие процессы и создают комфортную рабочую среду для сотрудников.

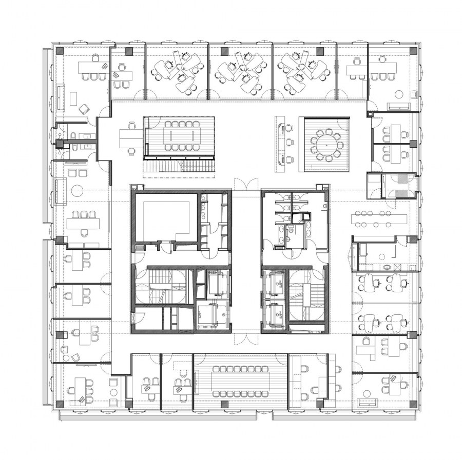
Планировка офиса опен Спейс
Планировка офиса опен Спейс


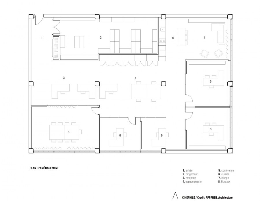
Входная зона может быть первым пространством, в которое попадают посетители и сотрудники. Она может включать ресепшн, где сотрудники могут приветствовать гостей и обрабатывать входящие звонки. Здесь также может быть размещена информационная стойка с информацией о компании и основных контактах.

Планировка офиса
Планировка офиса


Основная рабочая зона офиса может включать открытые рабочие пространства, где сотрудники работают вместе в команде или индивидуально. Здесь могут быть размещены рабочие столы, конференц-зоны и комнаты для переговоров, где сотрудники могут проводить встречи и обсуждать проекты.

Мебель для опенспейс офис
Мебель для опенспейс офис


Дополнительные зоны могут включать персональные кабинеты для руководителей и менеджеров, зоны отдыха и кухню. Зона отдыха может быть обустроена с удобными мебелью и развлекательными элементами, чтобы сотрудники могли расслабиться и получить перерыв от работы. Кухня может быть оборудована всем необходимым для приготовления пищи и перекусов.

Планировка опен Спейс офис 50 м2
Планировка опен Спейс офис 50 м2


Важно учитывать специфику работы и потребности компании при планировке офиса. Гибкость и функциональность пространства должны быть на первом месте, чтобы создать эффективную и комфортную рабочую среду для всех сотрудников.

Планировка офиса
Планировка офиса

Опен Спейс планировка
Опен Спейс планировка

Проект офисного помещения
Проект офисного помещения

Планировка open Space 90 квадратов
Планировка open Space 90 квадратов

План офиса
План офиса

Планировка офиса
Планировка офиса

Опен Спейс планировка
Опен Спейс планировка

Схема офиса
Схема офиса

Планировка офиса опен Спейс
Планировка офиса опен Спейс

Планировка офисных помещений опен Спейс
Планировка офисных помещений опен Спейс

Планировка офиса
Планировка офиса

План офисного помещения
План офисного помещения

Интерьер офиса
Интерьер офиса

План офиса с размерами
План офиса с размерами

Модульные здания планировки АБК
Модульные здания планировки АБК

План офисного помещения
План офисного помещения

План офисного помещения
План офисного помещения

Интерьер офиса план
Интерьер офиса план

Планировки офисного здания чертежи
Планировки офисного здания чертежи

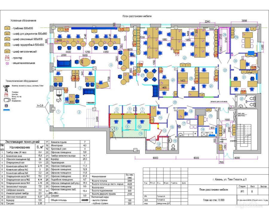
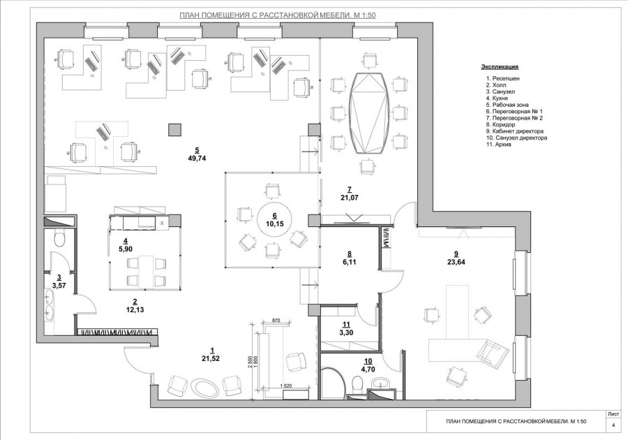
План расстановки офисной мебели в опен-Спейс
План расстановки офисной мебели в опен-Спейс

Планировка офиса
Планировка офиса

План офиса 100 кв м
План офиса 100 кв м

План офиса
План офиса

Планировка офиса коворкинг
Планировка офиса коворкинг

Схема офисного помещения
Схема офисного помещения

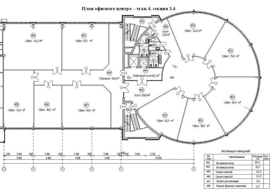
Проект офиса 500м2 чертеж
Проект офиса 500м2 чертеж

План офиса
План офиса

План офиса с расстановкой мебели
План офиса с расстановкой мебели

Планировка офиса
Планировка офиса

План офиса с расстановкой мебели и размерами
План офиса с расстановкой мебели и размерами

План офиса опен Спейс
План офиса опен Спейс

Планировка офиса с размерами
Планировка офиса с размерами

Планировка офиса
Планировка офиса

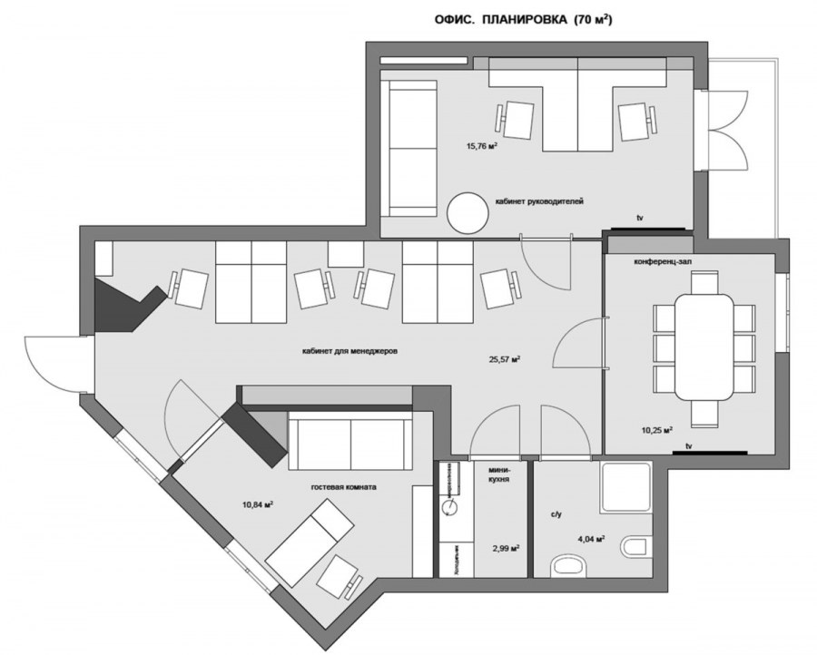
Планировка офиса 80 кв м
Планировка офиса 80 кв м

Планировка офисной мебели
Планировка офисной мебели

Планировка офиса с размерами
Планировка офиса с размерами

Схема офиса
Схема офиса

План офиса с расстановкой
План офиса с расстановкой

Планировка офиса
Планировка офиса

План офиса с размерами
План офиса с размерами

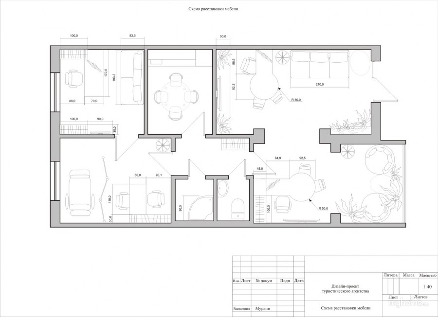
План офиса рекламного агентства
План офиса рекламного агентства

Чертеж офисного помещения
Чертеж офисного помещения

Чертежный план офиса
Чертежный план офиса

Планировка офиса
Планировка офиса

Планировка офиса
Планировка офиса

Планировка маленького кабинета
Планировка маленького кабинета

Планировка модульного здания для офиса
Планировка модульного здания для офиса

План офиса
План офиса

Планировка современного офиса
Планировка современного офиса

Расстановка офисной мебели
Расстановка офисной мебели

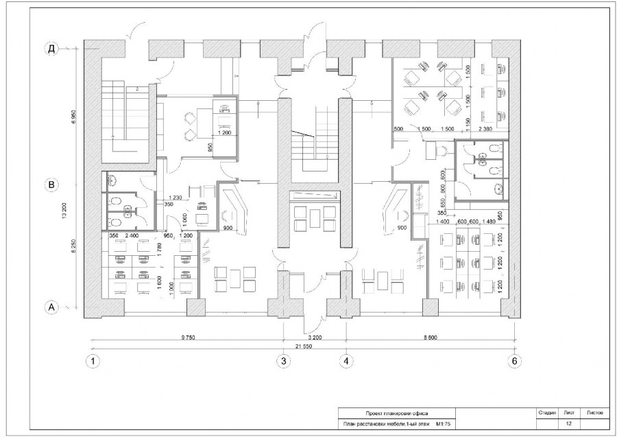
Планировка офисного этажа
Планировка офисного этажа

Коворкинг план помещения
Коворкинг план помещения

Планировка офиса 50 кв
Планировка офиса 50 кв

Планировка офиса
Планировка офиса

Планировка офисного помещения
Планировка офисного помещения

Смешанная планировка офиса
Смешанная планировка офиса

План офиса
План офиса

План офисного здания
План офисного здания

Планировка офиса
Планировка офиса

План помещения
План помещения

Планировка офиса
Планировка офиса

План офисного помещения
План офисного помещения

Пан расстновки мебли офис
Пан расстновки мебли офис

Электрическая схема план офисного здания
Электрическая схема план офисного здания

План офиса чертеж
План офиса чертеж

Планировка офисного здания
Планировка офисного здания

Планировка опен Спейс маленький офис
Планировка опен Спейс маленький офис

  • Просмотров: 18 745
  • Добавлено: 13 май
Категории: Обстановка
Комментарии (0)
Кликните на изображение чтобы обновить код, если он неразборчив
Похожие фото