Линейная двушка дизайн (73 фото)
Работа с вытянутым пространством требует особого чувства ритма: здесь нельзя просто расставить мебель, нужно выстроить последовательность впечатлений. Когда окна расположены только с одной стороны, свет становится ценным ресурсом, который важно провести сквозь всю глубину помещения. Дизайн — это искусство превратить недостаток в преимущество, сделав последовательность линейных комнат не коридором, а маршрутом с чёткой логикой.

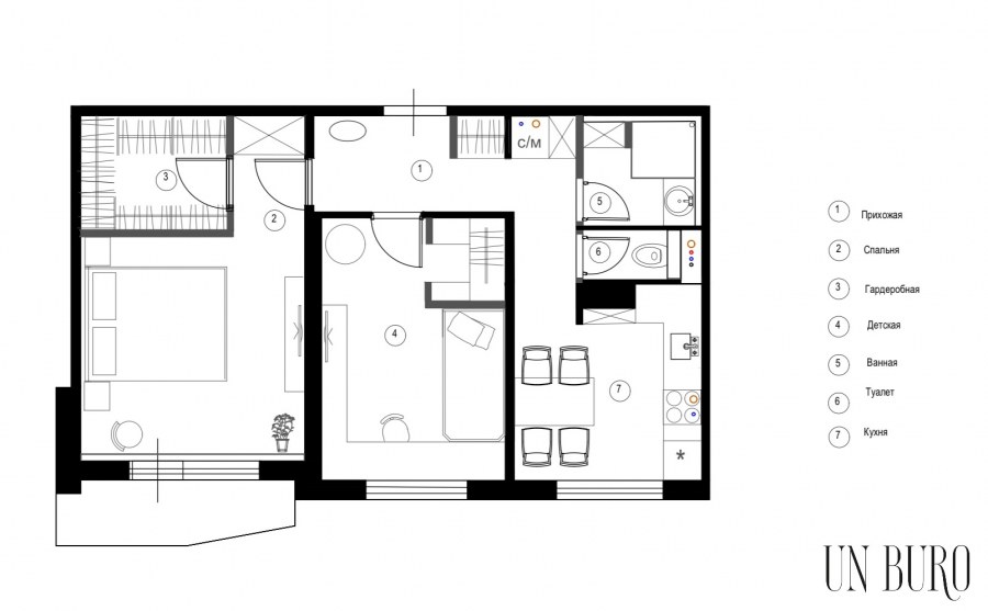
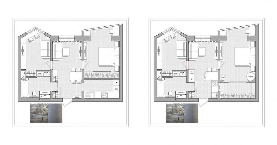
Перепланировка п44 двушка линейка
Однажды в Риге мы отказались от глухих перегородок между комнатами, заменив их раздвижными панелями из матового стекла. Дневной свет из гостиной свободно проникал в спальню, а при необходимости панели закрывались, создавая приватность. При этом коридор перестал быть тёмным тоннелем: он стал светлой транзитной зоной, где каждый метр работал на ощущение простора.
Последовательная планировка диктует строгую иерархию зон. В квартире под Таллином мы разместили кухню у входа, гостиную — в центре, спальню — у окна. Такое распределение соответствовало ритму дня: от активного утра к спокойному вечеру. Мебель подбиралась низкая, с открытыми ножками, чтобы не перекрывать визуальные связи. Даже система хранения была встроена в единый блок вдоль глухой стены, не разрывая пространство.
Освещение играет ключевую роль. Вместо центральной люстры мы использовали сценарный свет: трековые светильники над рабочими зонами, бра у кровати, скрытую подсветку вдоль потолка. В берлинской квартире с похожей планировкой добавили зеркало в конце коридора — оно не просто отражало свет, но и создавало иллюзию продолжения пространства. Никаких сложных конструкций, только точные акценты.
Дизайн линейной двухкомнатной раскрывается, когда перестаёшь бороться с формой и начинаешь следовать ей. Вытянутость становится не ограничением, а возможностью выстроить нарратив: вход, развитие, финал. И когда каждая зона получает свой свет, свой материал, свой ритм, даже скромная площадь обретает характер — не как компромисс, а как осознанный выбор.
а далее изображения...
П44 двушка линейка планировка
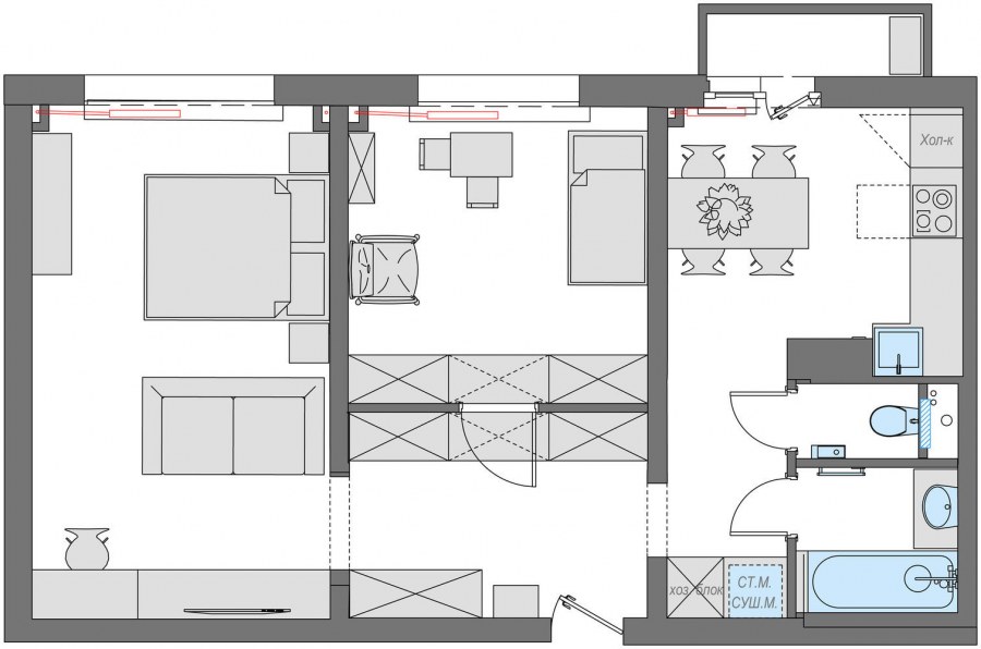
Перепланировка двухкомнатной квартиры п44т
Перепланировка двухкомнатной квартиры п44т
Планировка кухни п44т двушка
Перепланировка п44 двушка линейка
Трешка 65 м2 планировка монолит
П3 планировка двушки
Двушка п3 расстановка мебели
Перепланировка двушки п3м
Планировка квартиры п44т двушка линейка
Интересные планировочные решения квартир
Линейная двухкомнатная квартира интерьер
Трешка 65 м2 планировка монолит
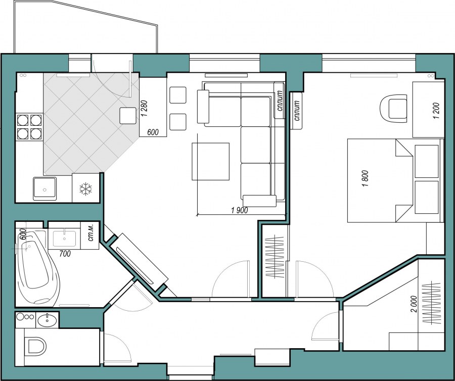
Проект двухкомнатной квартиры 50 м2
Перепланировка п44 двушка линейка
Перепланировка линейной двушки 50кв
Планировочное решение двухкомнатной квартиры
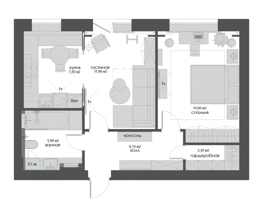
План кухни гостиной
П44т планировки последнего этажа
Размещение на листе 3д планировочных решений
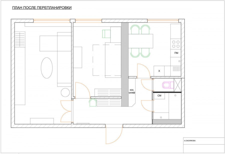
План перепланировки двухкомнатной хрущевки
Перепланировка двухкомнатной квартиры в трехкомнатную план
Перепланировка п-44 двухкомнатная
Кухня в трешке п44т
Планировка кухни п44т
П44 распашонка интерьер
П44т интерьер трехкомнатной
Дизайн двушки распошной
Дизайн двухкомнатной квартиры бабочки с лоджией
Планировочное решение двухкомнатной квартиры
Коридор п44т трешка
Сколковский студия 25 м
Дизайн квартиры распашонки в современном минимализме
Интерьер квартиры 67 кв.м
Линейная квартира
Интерьер гостиной п 44 т
Линейная двухкомнатная квартира интерьер
Дизайн кухни в двухкомнатной квартире
Планировка кухни п44т
Кухня в п55
Перепланировка из двушки в трешку 45 кв
Кухня в коридоре п-44 трешка
Двухкомнатная квартира 44 кв м
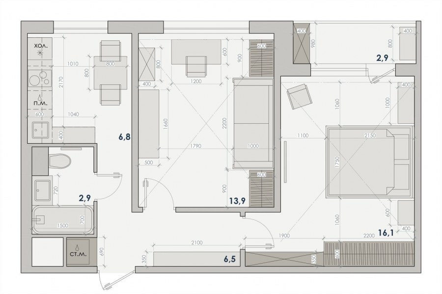
Планировка 2 комнатной квартиры 50 кв.м
П44т однокомнатная квартира дизайн интерьера
Интерьер квартиры двухкомнатной 52м
Перепланировка 2-х комнатной квартиры в панельном доме
План перепланировки двухкомнатной квартиры
Двушка линейка
Гостиная в трешке п44т
П44 двушка линейка
Дизайн квартиры п3м
Планировка кухни п3 трешка
Скандинавский стиль п44
Как стильно оформить однушуц
Евродвушка 45 кв м
Дизайн евродвушки в скандинавском стиле
Кухня интерьер п44т трешка
Перепланировка кухня гостиная
Интерьер квартиры в панельном доме трехкомнатная
Малогабаритная квартира интерьер планировка мебель
Интерьер двухкомнатной квартиры 60 кв.м
Планировка евродвушка 60 кв
Интерьеры 3-х комнатной квартиры в п-44
Похожие фото
↑