Готовые проекты квартир (51 фото)

Продуманные решения, проверенные жизнью и воплощенные в действительности проекты квартир, которые опираются на реальные запросы жильцов: от рационального использования каждого сантиметра до гибкости планировок под разные этапы жизни. В реализованных домах однокомнатная квартира может легко превратиться в уютное пространство для пары с ребёнком, а трёхкомнатная — стать основой для совместного проживания поколений. Такой подход экономит время и снижает риски при ремонте.

Трешка 80 кв м планировка
Трешка 80 кв м планировка


Один из самых востребованных проектов реализован в жилом комплексе на берегу реки в Казани. Здесь кухня-гостиная объединена с лоджией, что добавляет не только света, но и полезной площади без увеличения общей метражности. Большие окна, смещённые перегородки и зонирование за счёт уровня пола — всё это делает интерьер современным, но при этом технологичным для массового строительства. Покупатели ценят, что не нужно «изобретать велосипед»: всё уже просчитано, согласовано и адаптировано под коммуникации.

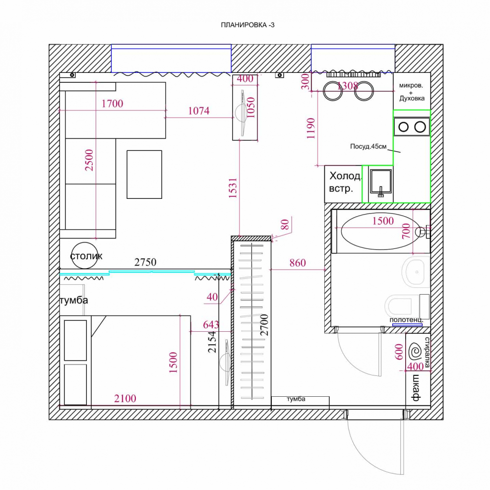
Планировка квартиры
Планировка квартиры


Тщательно проработанные элементы - не только планировка, но и акустику, вентиляцию, освещённость. В проекте дома в Новосибирске каждая квартира ориентирована так, чтобы утреннее солнце попадало в спальню, а вечернее — в гостиную. Звукоизоляция межквартирных стен превышает нормативы, а вентиляционные каналы спроектированы с учётом современных систем очистки воздуха. Это не маркетинговые обещания — это то, что можно проверить ещё на этапе выбора.

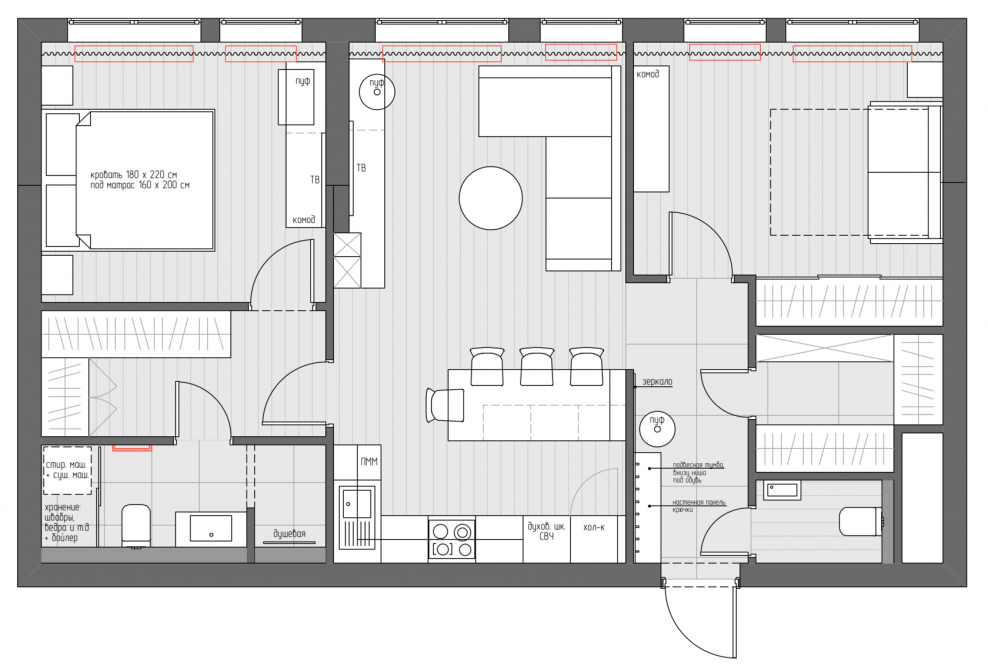
Примеры дизайн проекта двухкомнатной квартиры
Примеры дизайн проекта двухкомнатной квартиры


Апробированные решения позволяют быстрее заселиться и начать жить. Заранее согласованные технические узлы позволяют покупателю выбрать вариант с предчистовой отделкой и быть уверенным, что скрытая инфраструктура соответствует ожиданиям. В одном из комплексов в Екатеринбурге даже в базовой комплектации предусмотрены точки под кондиционер, усиленные перекрытия на балконах и двойные розетки в рабочей зоне кухни — детали, которые обычно появляются только после первого ремонта.

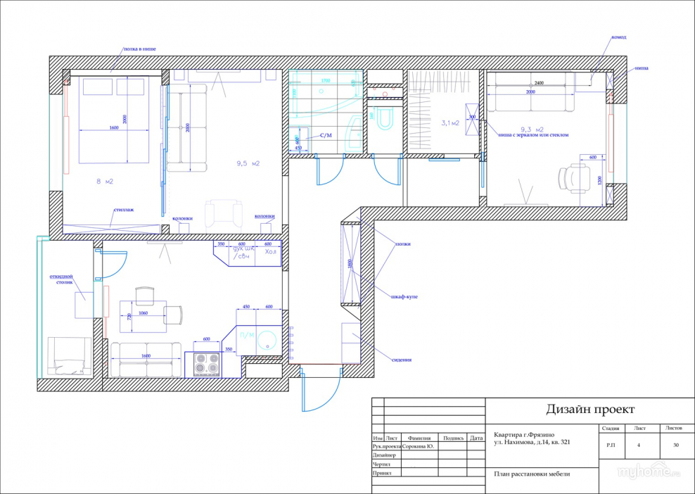
Дизайн проект квартиры план
Дизайн проект квартиры план


Готовый проект — это не ограничение, а основа для уверенности. Он рождается из диалога с будущими жильцами, из анализа сотен отзывов и из желания сделать городскую жизнь комфортной без лишних сложностей. Когда человек выбирает такой проект, он получает не просто стены и потолок, а проверенный годами опыт, вложенный в каждый метр его будущего дома.

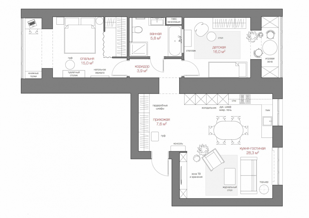
Проект двухкомнатной квартиры
Проект двухкомнатной квартиры

и другие картинки...
Современные планировки квартир
Современные планировки квартир

Планировка большой двухкомнатной квартиры
Планировка большой двухкомнатной квартиры

3д планировка 2 комнатной квартиры
3д планировка 2 комнатной квартиры

Евротрешка планировка в Санкт-Петербурге
Евротрешка планировка в Санкт-Петербурге

Дизайнерская планировка трехкомнатной квартиры
Дизайнерская планировка трехкомнатной квартиры

Планировка евро трешки
Планировка евро трешки

Планировка двушки
Планировка двушки

Планировка евродвушки 45 кв м
Планировка евродвушки 45 кв м

Планировка интерьера квартир в 3д
Планировка интерьера квартир в 3д

Планировка 60 м2
Планировка 60 м2

Планировка квартиры вид сверху
Планировка квартиры вид сверху

Планировка трехкомнатной квартиры
Планировка трехкомнатной квартиры

Необычная планировка двухкомнатной квартиры
Необычная планировка двухкомнатной квартиры

Красивые планировки квартир
Красивые планировки квартир

Квартира 70 кв.м планировка
Квартира 70 кв.м планировка

Планировка четрырех комнатной квартиры
Планировка четрырех комнатной квартиры

Макет квартиры
Макет квартиры

1 Комнатная квартира 40 кв планировка
1 Комнатная квартира 40 кв планировка

Двухкомнатная квартира вид сверху
Двухкомнатная квартира вид сверху

Дизайнерский проект квартиры
Дизайнерский проект квартиры

Планировка 50 кв м
Планировка 50 кв м

Планировка интерьера 3д
Планировка интерьера 3д

Дизайн проект квартиры
Дизайн проект квартиры

Проект квартиры
Проект квартиры

Планировка квартиры
Планировка квартиры

Дизайн-проекты квартир готовые бесплатно
Дизайн-проекты квартир готовые бесплатно

Разработка дизайн проекта квартиры
Разработка дизайн проекта квартиры

Планировка трёхкомнатной кв.
Планировка трёхкомнатной кв.

Дизайнерский план квартиры
Дизайнерский план квартиры

2х комнатная студия планировка
2х комнатная студия планировка

Готовый проект гостиной
Готовый проект гостиной

Планировка двухкомнатной квартиры
Планировка двухкомнатной квартиры

Типовые планировки однокомнатных квартир
Типовые планировки однокомнатных квартир

Планировка кв 80кв м
Планировка кв 80кв м

3д планировка квартиры
3д планировка квартиры

3д проект однокомнатной квартиры
3д проект однокомнатной квартиры

Дизайн интерьера заказать
Дизайн интерьера заказать

Перепланировка двухкомнатной квартиры 44 кв.м
Перепланировка двухкомнатной квартиры 44 кв.м

3d планировка 2 комнатной квартиры
3d планировка 2 комнатной квартиры

Планировка кухни гостиной план
Планировка кухни гостиной план

Дизайн двухкомнатной квартиры п-3
Дизайн двухкомнатной квартиры п-3

Уютная квартира планировка
Уютная квартира планировка

Планировка евротрешка распашонка
Планировка евротрешка распашонка

3dx Max планировка квартиры
3dx Max планировка квартиры

Проект однушки 45 кв.м планировка
Проект однушки 45 кв.м планировка

Планировка студии 40кв
Планировка студии 40кв

  • Просмотров: 8 224
  • Добавлено: 01 апрель
Категории: ---
Комментарии (0)
Кликните на изображение чтобы обновить код, если он неразборчив
Похожие фото