Технический рисунок детской площадки (41 фото)

Проектирование начинается не с ярких образов, а с точных линий на бумаге. Прежде чем ребёнок сделает первый шаг к горке, инженер должен просчитать каждый уклон, нагрузку на крепление и радиус безопасности вокруг каждой зоны активности. Это работа, где воображение ограничено нормами, но именно в этих рамках рождается настоящее качество.

Чертежи детских игровых площадок
Чертежи детских игровых площадок


Один из удачных примеров — площадка в пригороде Тарту, спроектированная для детей от трёх до двенадцати лет. Здесь каждая зона была привязана к возрастной группе, а переходы между ними организованы так, чтобы старшие не мешали младшим. Все это было заложено ещё на стадии чертежей: масштаб 1:50, слои по материалам, разрезы по высоте и чёткие обозначения зон падения. Никакой импровизации — только расчёт и опыт.

Детская площадка проект
Детская площадка проект


Технический рисунок детской площадки — это не просто набор видов сверху и сбоку. Это документ, в котором учтены климат, тип грунта, направление ветра и даже тень от ближайших деревьев в полдень. В проекте под Казанью мы специально сместили расположение качелей, чтобы летом они не оказывались под палящим солнцем, а осенью — вне зоны скопления листьев. Такие решения видны только на чертеже, но ощущаются детьми каждый день.

Эскизные проекты детских площадок
Эскизные проекты детских площадок


Важно, чтобы рисунок оставался понятным не только для строителей, но и для заказчика — будь то управляющая компания или родительский комитет. Поэтому мы используем условные обозначения без избыточной графики: чёткие линии, подписи по ГОСТу, легенду с пояснением материалов. В одном случае даже добавили схему обслуживания — где раз в полгода нужно проверять болтовые соединения, где менять резиновое покрытие. Это не прихоть, а ответственность.

Чертеж спортивного комплекса с размерами
Чертеж спортивного комплекса с размерами


Планирование детской площадки — это мост между идеей и безопасностью. Он не кричит о веселье, но создаёт условия, в которых веселье возможно без страха. И когда такой чертёж выполнен с уважением к деталям, он становится невидимой основой для сотен детских историй — тех, что начинаются с «Мам, смотри!» и заканчиваются смехом где-то за поворотом горки.

Эскиз детской площадки
Эскиз детской площадки

и другие картинки...
Эскиз детской игровой площадки
Эскиз детской игровой площадки

Эргономика детской площадки
Эргономика детской площадки

Детская игровая деревянная площадка-корабль Каравелла
Детская игровая деревянная площадка-корабль Каравелла

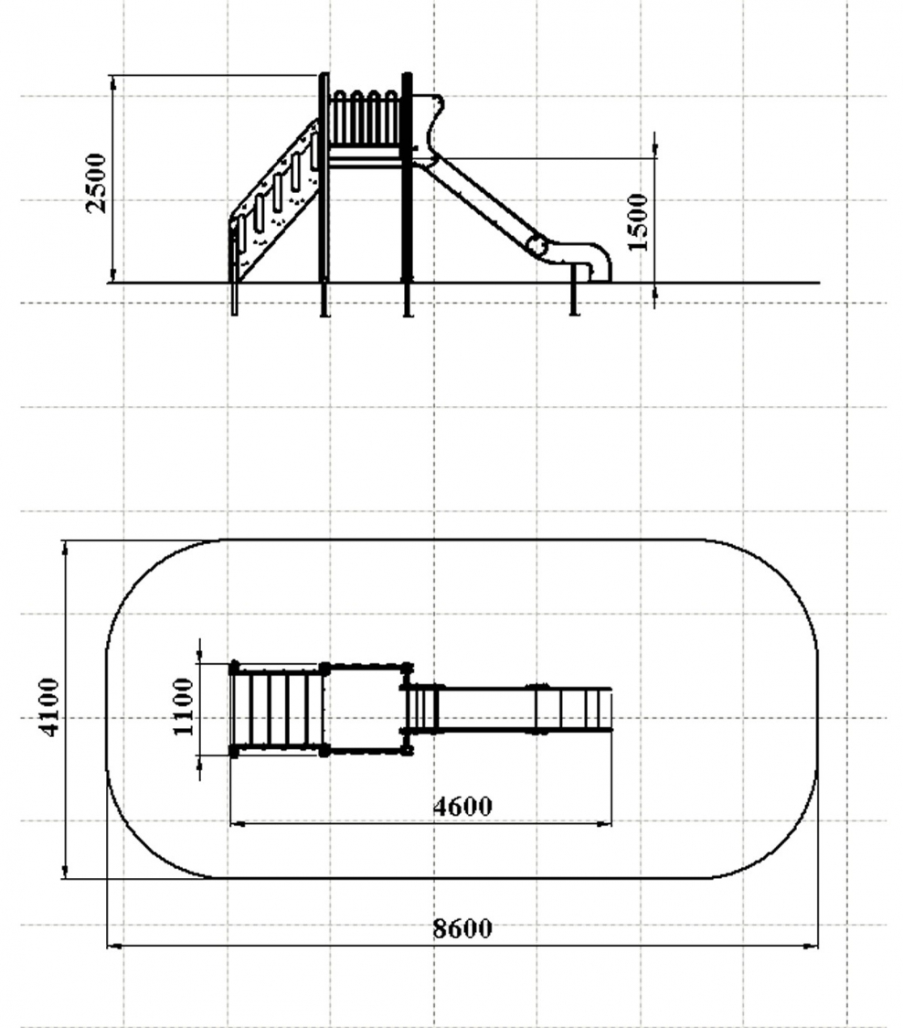
Дио 5.013 — горка н=1500мм вес
Дио 5.013 — горка н=1500мм вес

Детская площадка на даче план
Детская площадка на даче план

Нарисовать проект детской площадки
Нарисовать проект детской площадки

Детская площадка аксонометрия
Детская площадка аксонометрия

Чертеж спортивной площадки
Чертеж спортивной площадки

Детская площадка icon
Детская площадка icon

Сборка детской площадки городок
Сборка детской площадки городок

Детская площадка раскраска
Детская площадка раскраска

Детская площадка макет
Детская площадка макет

Схемы детских площадок
Схемы детских площадок

Оборудование наблюдательной вышки
Оборудование наблюдательной вышки

Детская площадка эскиз
Детская площадка эскиз

Проект детской площадки скетчап
Проект детской площадки скетчап

Детские площадки иконка
Детские площадки иконка

Детская площадка рисунок своими руками
Детская площадка рисунок своими руками

Детская площадка чертежи с размерами
Детская площадка чертежи с размерами

Детская площадка Графика
Детская площадка Графика

Чертеж игрового домика
Чертеж игрового домика

Проекты детских площадок из дерева
Проекты детских площадок из дерева

Рукоход Лиана для детского сада 2100 х 820 х 130 88 кг
Рукоход Лиана для детского сада 2100 х 820 х 130 88 кг

МАФ на плане детской площадке
МАФ на плане детской площадке

Технические площадки для детей
Технические площадки для детей

Детская площадка вид сверху иконка
Детская площадка вид сверху иконка

Эскиз детской площадки
Эскиз детской площадки

Малые архитектурные формы для детских площадок чертежи
Малые архитектурные формы для детских площадок чертежи

Проект деревянной детской площадки
Проект деревянной детской площадки

Детская площадка Графика
Детская площадка Графика

Детский городок чертежи
Детский городок чертежи

Домик на детскую площадку рисунок
Домик на детскую площадку рисунок

Модель ветрогенератора в компас 3d
Модель ветрогенератора в компас 3d

Детская площадка Эскизный проект
Детская площадка Эскизный проект

  • Просмотров: 7 038
  • Добавлено: 22 апрель
Категории: Своими руками
Комментарии (0)
Кликните на изображение чтобы обновить код, если он неразборчив
Похожие фото