Дачные дома проекты и планировки (46 фото)

Проект и планировка дачного дома

Создание дачного дома — это увлекательный и ответственный процесс, который требует внимательного подхода. Начинается все с идеи: представьте себе уютное место, где можно проводить время с семьей и друзьями, наслаждаясь природой. Важно, чтобы проект отражал ваши желания и потребности. Для этого стоит заранее обдумать, какие функции должен выполнять дом, и как он будет вписываться в окружающий ландшафт.

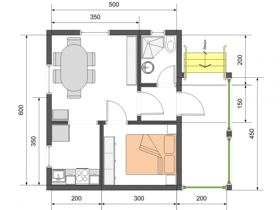
Дачный каркасный домик 6х6 планировка
Дачный каркасный домик 6х6 планировка


При планировке дачного дома стоит учитывать не только его размеры, но и расположение комнат. Например, спальни лучше разместить на тихой стороне, где меньше шума. Гостиные и кухни могут находиться с видом на сад или террасу, что создаст атмосферу уюта и комфорта. Также стоит позаботиться о достаточном количестве окон, чтобы в дом проникало как можно больше естественного света.

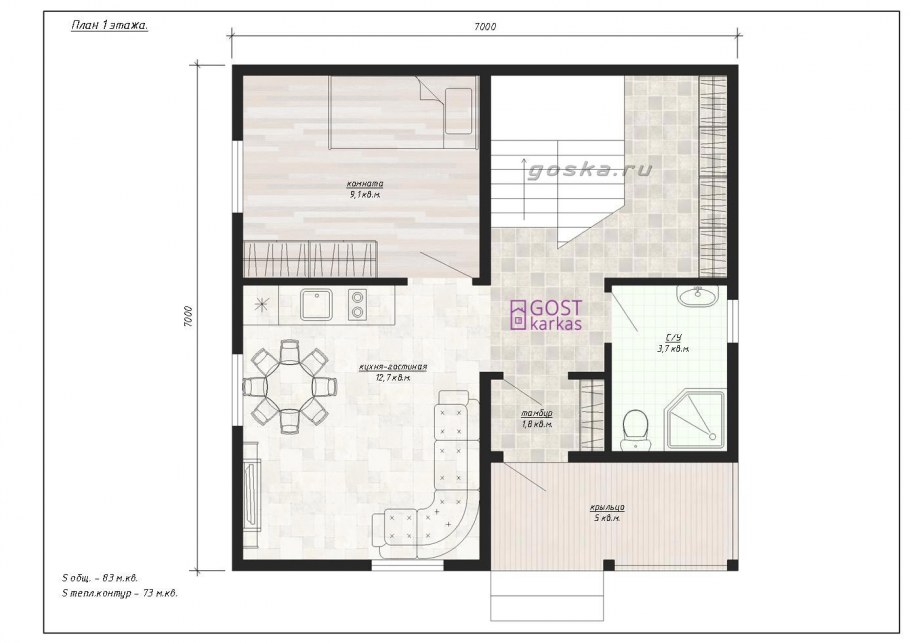
Проект дома 80 кв м одноэтажный с мансардой
Проект дома 80 кв м одноэтажный с мансардой


Одним из положительных аспектов проектирования является возможность создания открытых пространств. Дизайн с открытой планировкой позволяет объединить кухню, столовую и гостиную в одно целое. Это не только визуально увеличивает пространство, но и способствует общению между всеми членами семьи. Открытые террасы и веранды также могут стать отличным дополнением, где можно провести время на свежем воздухе.

Проекты каркасных домов с планом
Проекты каркасных домов с планом


Не забывайте о функциональности. Удобные и продуманные мелочи, такие как встроенные шкафы и кладовые, помогут сохранить порядок. Кроме того, стоит рассмотреть возможность использования многофункциональной мебели, которая позволит сэкономить пространство и сделать дом более практичным. Положительный пример — раздвижные двери, которые могут соединять внутренние помещения с внешними.

Дом баня из бруса планировка
Дом баня из бруса планировка


В конце концов, проект дачного дома — это отражение вашего стиля жизни и предпочтений. Подходите к этому процессу творчески, и ваш дом станет не просто местом для отдыха, но и источником вдохновения. Будь то уютный уголок для чтения или просторная зона для семейных встреч, важно, чтобы каждый элемент приносил радость и комфорт.

Дом с баней проект
Дом с баней проект


Дом 7х7 с мансардой планировка
Дом 7х7 с мансардой планировка

Дачный дом 6 на 4 планировка
Дачный дом 6 на 4 планировка

Проекты домов 6 на 8 с мансардой
Проекты домов 6 на 8 с мансардой

Проект дома 80 м2 с мансардой и верандой
Проект дома 80 м2 с мансардой и верандой

Дачный домик 5х7 одноэтажный
Дачный домик 5х7 одноэтажный

Баня с хозблоком и верандой 4x6 м
Баня с хозблоком и верандой 4x6 м

Проект дачного дома Нева
Проект дачного дома Нева

Планировка дачного домика 5х5
Планировка дачного домика 5х5

Дачные домики 5 на 8
Дачные домики 5 на 8

Дом шалаш a-frame планировка
Дом шалаш a-frame планировка

Проект дома Ремстройсервис
Проект дома Ремстройсервис

Планировки каркасных домов 7х8
Планировки каркасных домов 7х8

Проекты домов 6х6 с верандой
Проекты домов 6х6 с верандой

Небольшой домик с мансардой
Небольшой домик с мансардой

Проекты домов 6 на 7 с мансардой из пеноблоков
Проекты домов 6 на 7 с мансардой из пеноблоков

Проекты одноэтажных дачных домиков
Проекты одноэтажных дачных домиков

Проект дачного домика с ба
Проект дачного домика с ба

Дачный дом 6х5 планировка с туалетом
Дачный дом 6х5 планировка с туалетом

Проекты каркасных дачных домов
Проекты каркасных дачных домов

Двухэтажная дача с кухней гостиной планировка
Двухэтажная дача с кухней гостиной планировка

Готовые проекты каркасных домов
Готовые проекты каркасных домов

Дачный домик 4х6 двухэтажный чертёж
Дачный домик 4х6 двухэтажный чертёж

Планировка дачного домика 6х6 одноэтажный
Планировка дачного домика 6х6 одноэтажный

Небольшой дачный домик с мансардой
Небольшой дачный домик с мансардой

Типовой проект каркасного одноэтажного домика
Типовой проект каркасного одноэтажного домика

Дачный домик 6 на 6 с мансардой проект
Дачный домик 6 на 6 с мансардой проект

Дачный домик 5 на 6
Дачный домик 5 на 6

Проекты дачных домиков с баней
Проекты дачных домиков с баней

Проекты дачных домов из бруса 6х6
Проекты дачных домов из бруса 6х6

Дачный дом 6 на 6 планировка
Дачный дом 6 на 6 планировка

Проекты каркасных домов с планом
Проекты каркасных домов с планом

Планировка маленького дачного домика
Планировка маленького дачного домика

Проекты маленьких домов чертежи
Проекты маленьких домов чертежи

Планы каркасныхтдомов
Планы каркасныхтдомов

Проект баня с летней кухней и верандой с барбекю
Проект баня с летней кухней и верандой с барбекю

Садовый домик с мансардой и верандой
Садовый домик с мансардой и верандой

Планировка каркасного домика
Планировка каркасного домика

Дачный домик 6х6 планировка комнат
Дачный домик 6х6 планировка комнат

Дом одноэтажный с мансардой 80кв м
Дом одноэтажный с мансардой 80кв м

Каркасный дом 6х8 планировка
Каркасный дом 6х8 планировка

  • Просмотров: 11 521
  • Добавлено: 05 январь
Категории: Дача
Комментарии (0)
Кликните на изображение чтобы обновить код, если он неразборчив
Похожие фото