Проектирование розеток (75 фото)

Не простая техническая задача, на вместе с тем важная часть создания комфортного и продуманного интерьера - это проектирование розеток. Грамотно расположенные розетки позволяют избежать нагромождения удлинителей и визуального хаоса, сохраняя чистоту пространства. Например, в современной кухне, где используется множество приборов — от кофемашины до мультиварки, — размещение блока розеток за фартуком или в выдвижном ящике делает использование техники незаметным и удобным. Такое решение не только практично, но и визуально элегантно, особенно если розетки скрыты за декоративной панелью.

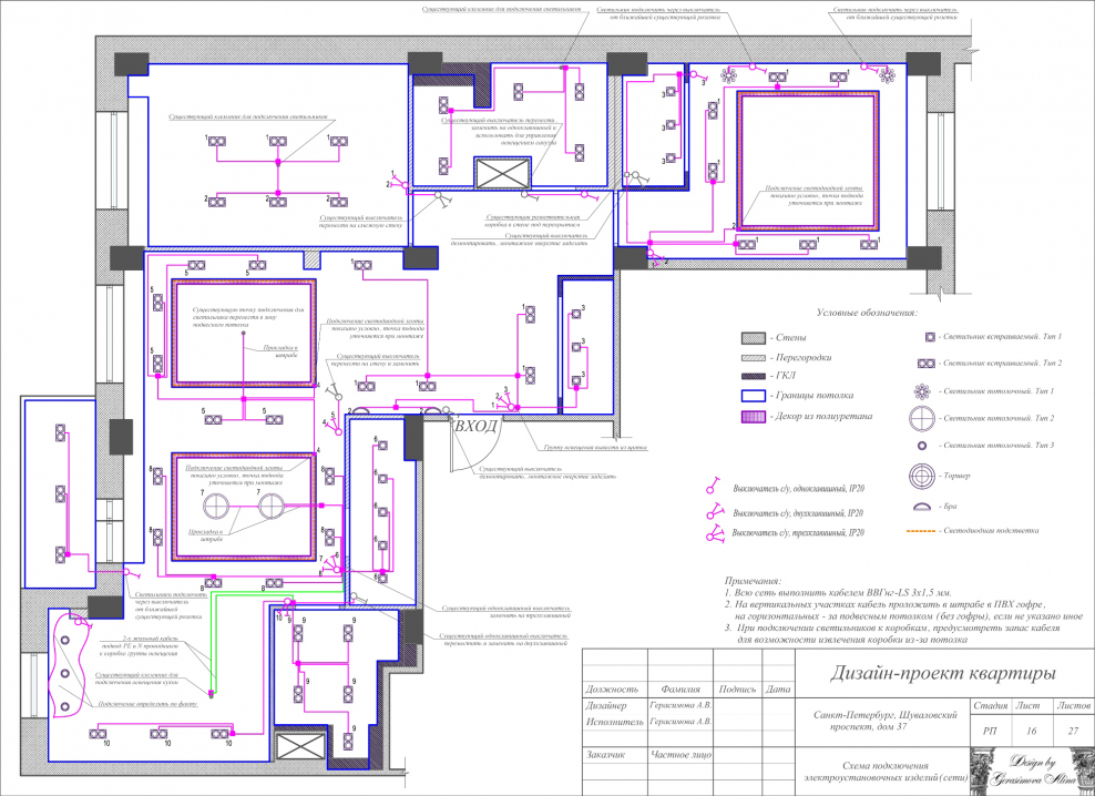
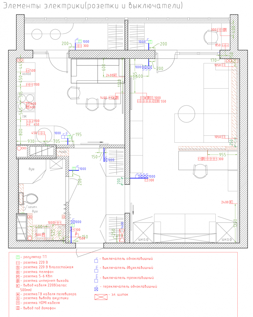
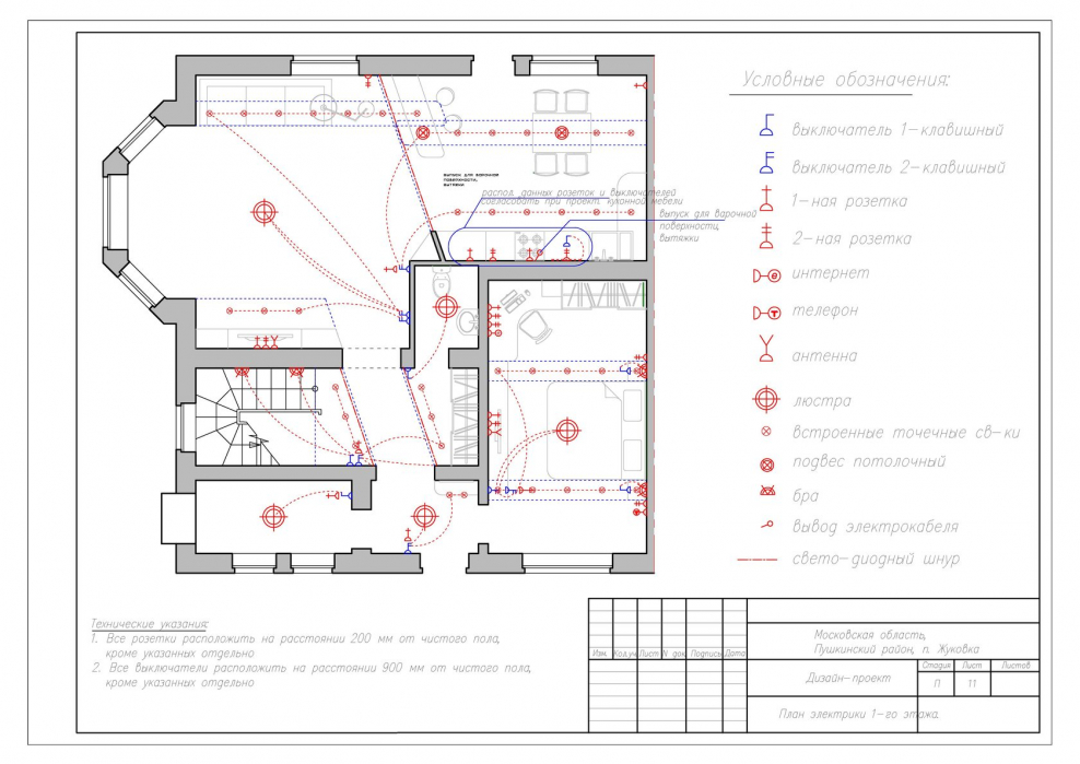
План электрики в щитке
План электрики в щитке


В гостиной, где важна как функциональность, так и эстетика, проектирование розеток учитывает расположение мебели и зон активного пользования. Например, розетки у дивана или кресла позволяют легко подключать ноутбуки, лампы или заряжать гаджеты, не нарушая общей композиции интерьера. Встроенная розетка в подлокотнике или в нижней части стены, рядом с напольным светильником, становится незаметной, но всегда доступной. Это особенно важно в интерьерах в стиле минимализм, где каждый элемент должен быть оправдан и скрыт от излишнего внимания.

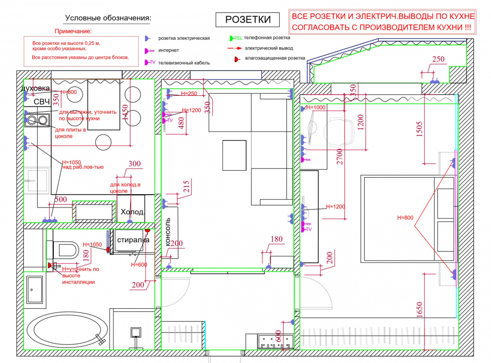
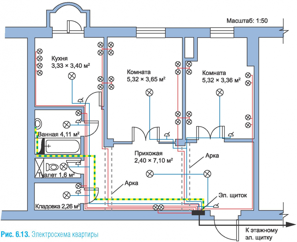
Схема расположения розеток и источников освещения с размерами
Схема расположения розеток и источников освещения с размерами


В спальне проектирование розеток требует особого внимания к зоне у изголовья кровати. Удобно, когда розетки расположены на уровне прикроватных тумбочек — так можно подключать бра, зарядные устройства или увлажнитель воздуха без необходимости тянуть провода через всю комнату. Современные решения, такие как комбинированные блоки с USB-портами, упрощают жизнь и избавляют от необходимости использовать переходники. Такие детали, на первый взгляд незначительные, существенно повышают уровень комфорта.

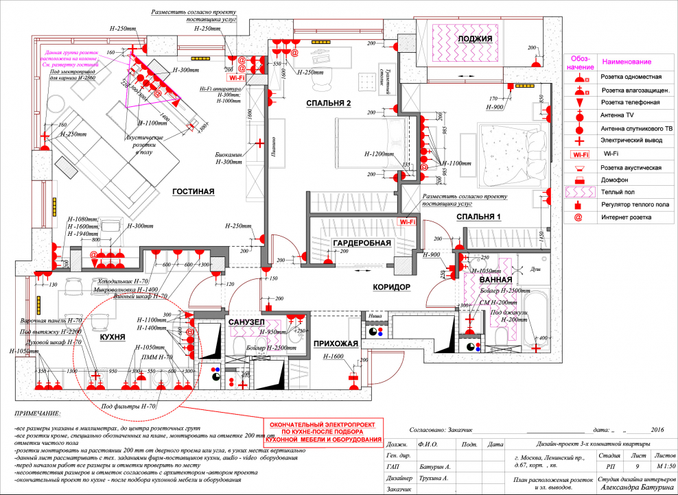
План электрики розетки
План электрики розетки


В детской комнате проектирование розеток обязательно учитывает безопасность и будущие потребности. Розетки с защитными шторками и расположенные на безопасной высоте — базовый стандарт. Но важно также предусмотреть дополнительные точки подключения у рабочей зоны, где ребенок будет делать уроки или заниматься творчеством. Удобно, когда рядом есть розетки для настольной лампы, планшета или компьютера, а всё это продумано ещё на этапе чертежей, а не добавлено уже после ремонта.

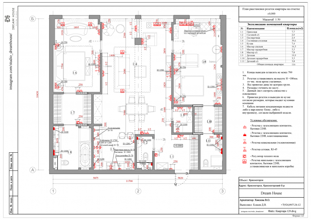
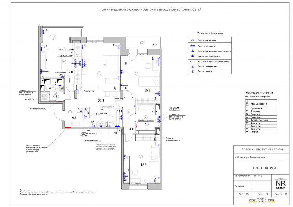
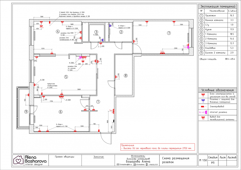
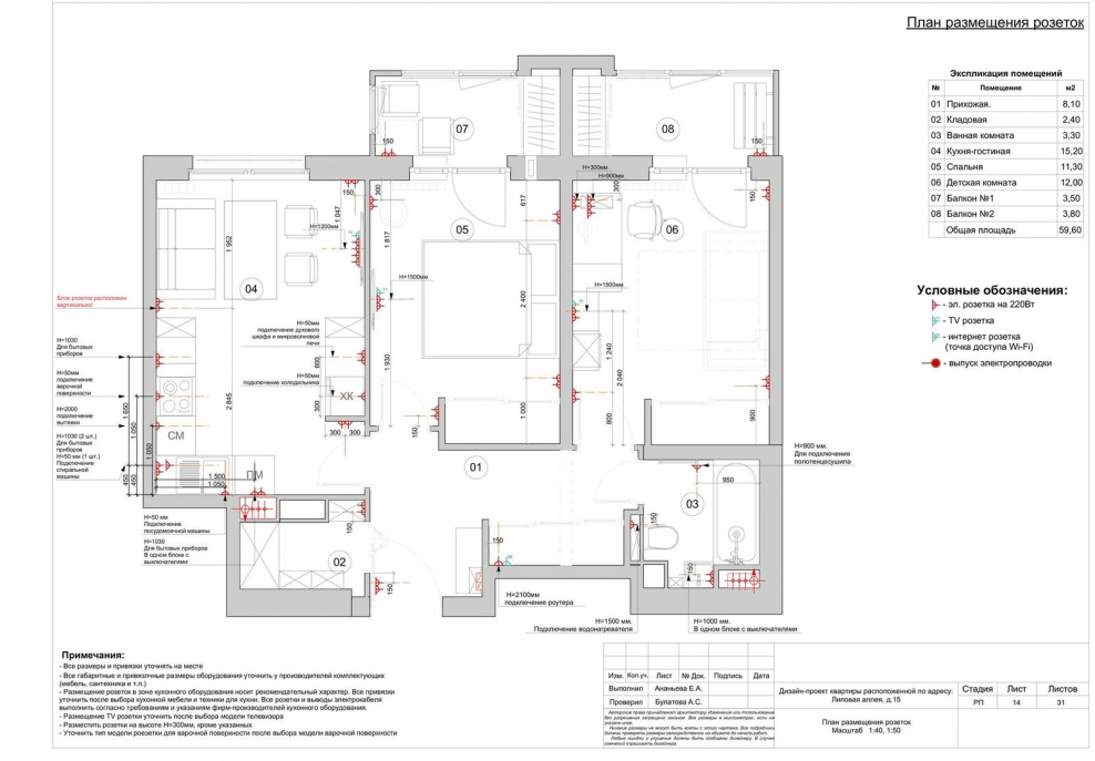
План размещения розеток
План размещения розеток


Итоговое решение по расположению розеток всегда зависит от образа жизни владельцев, планировки помещения и стилистического направления интерьера. Хороший дизайнер не просто размещает розетки по нормативам, а интегрирует их в концепцию пространства, делая их частью общей гармонии. Проектирование розеток — это тонкая работа, где важна каждая деталь, ведь именно от неё зависит, насколько легко и приятно будет жить в этом доме.

Силовая розетка на плане
Силовая розетка на плане

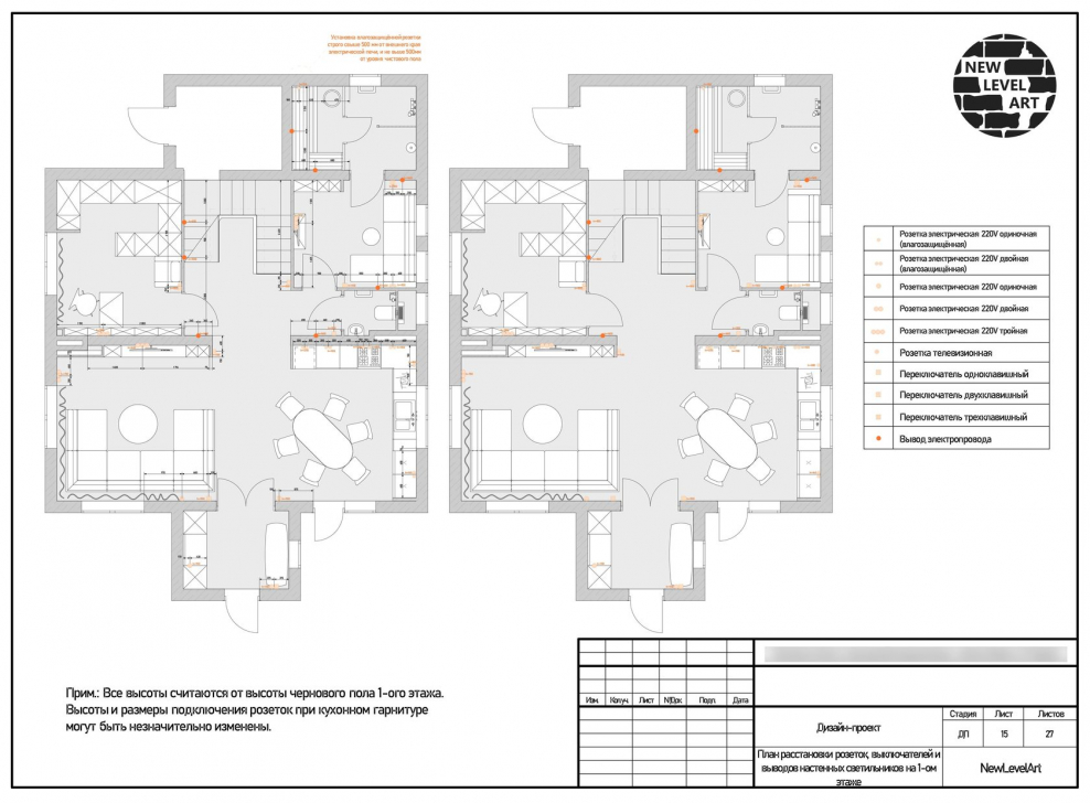
План розеток и выключателей в квартире
План розеток и выключателей в квартире

План размещения розеток и выключателей
План размещения розеток и выключателей

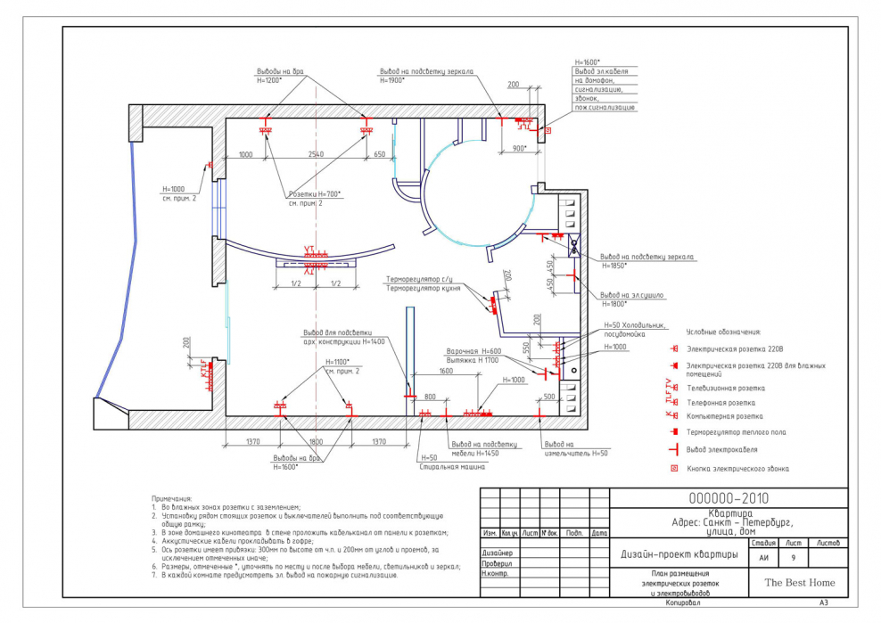
Чертеж расположения розеток и выключателей
Чертеж расположения розеток и выключателей

План электрики условные обозначения
План электрики условные обозначения

Слаботочная розетка обозначение на схеме
Слаботочная розетка обозначение на схеме

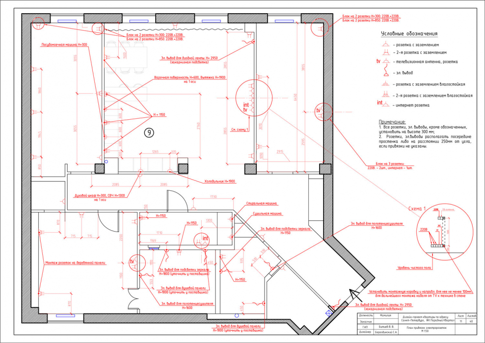
План привязки выключателей
План привязки выключателей

Розетка на схеме
Розетка на схеме

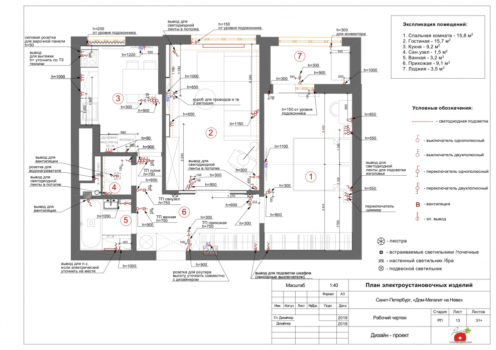
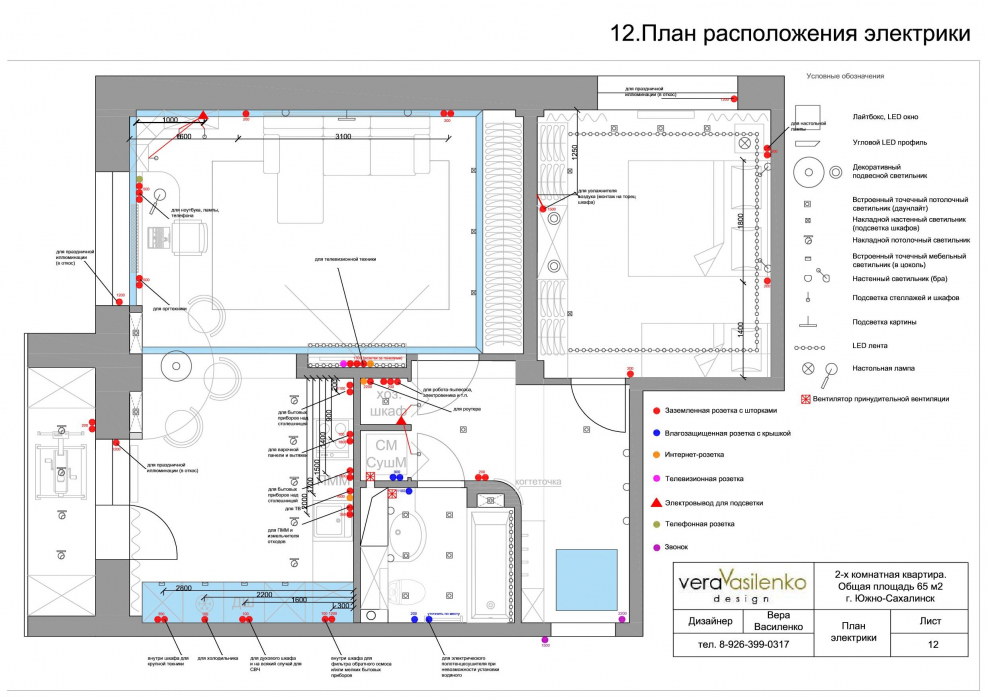
План освещения дизайн проект
План освещения дизайн проект

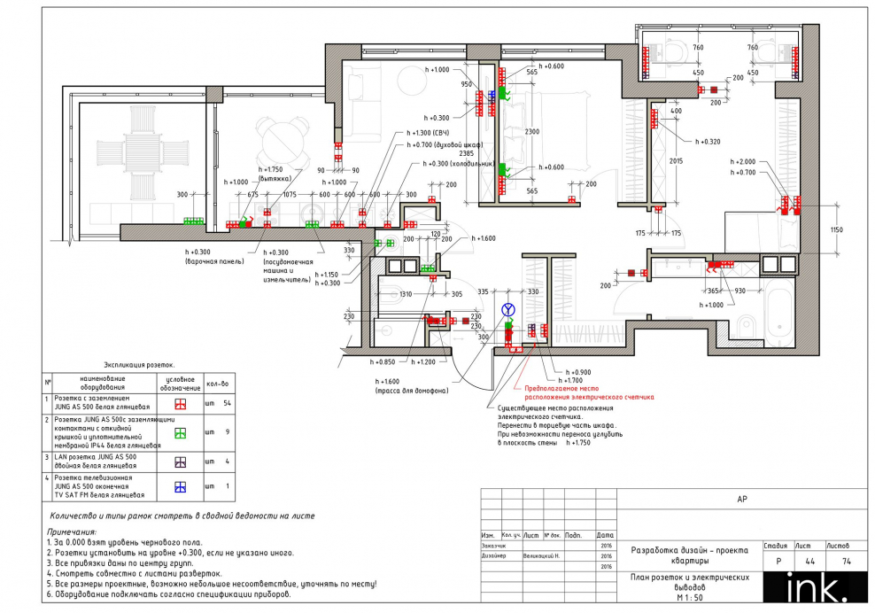
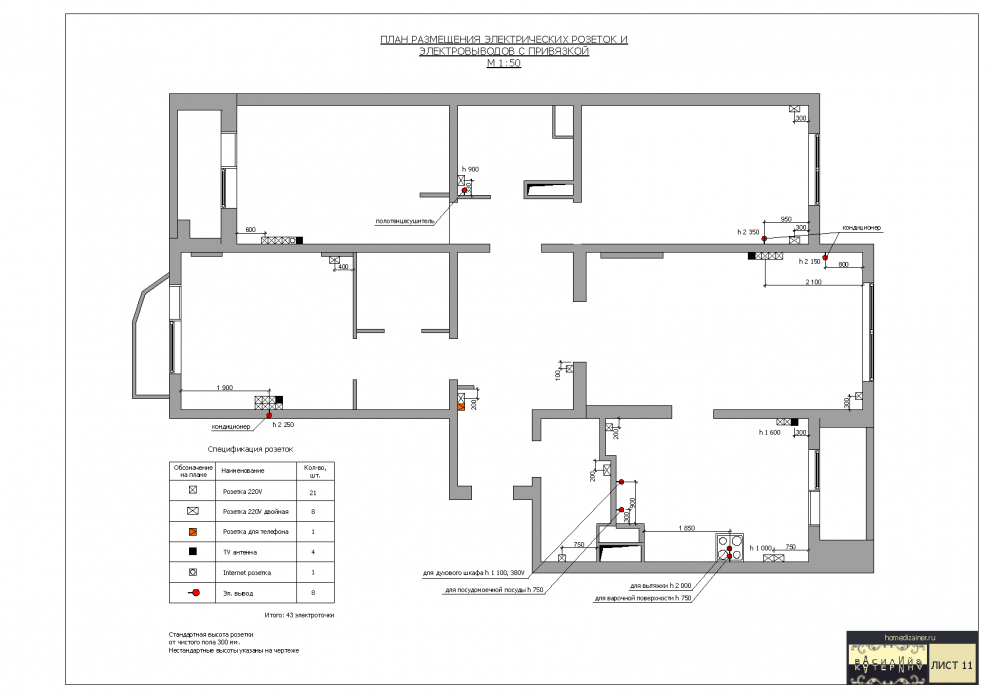
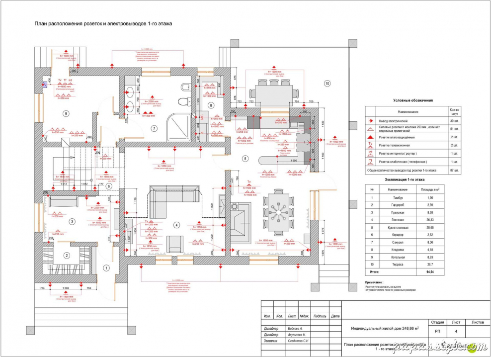
План размещения электрических розеток и электровыводов
План размещения электрических розеток и электровыводов

Чертеж установки розеток электрических
Чертеж установки розеток электрических

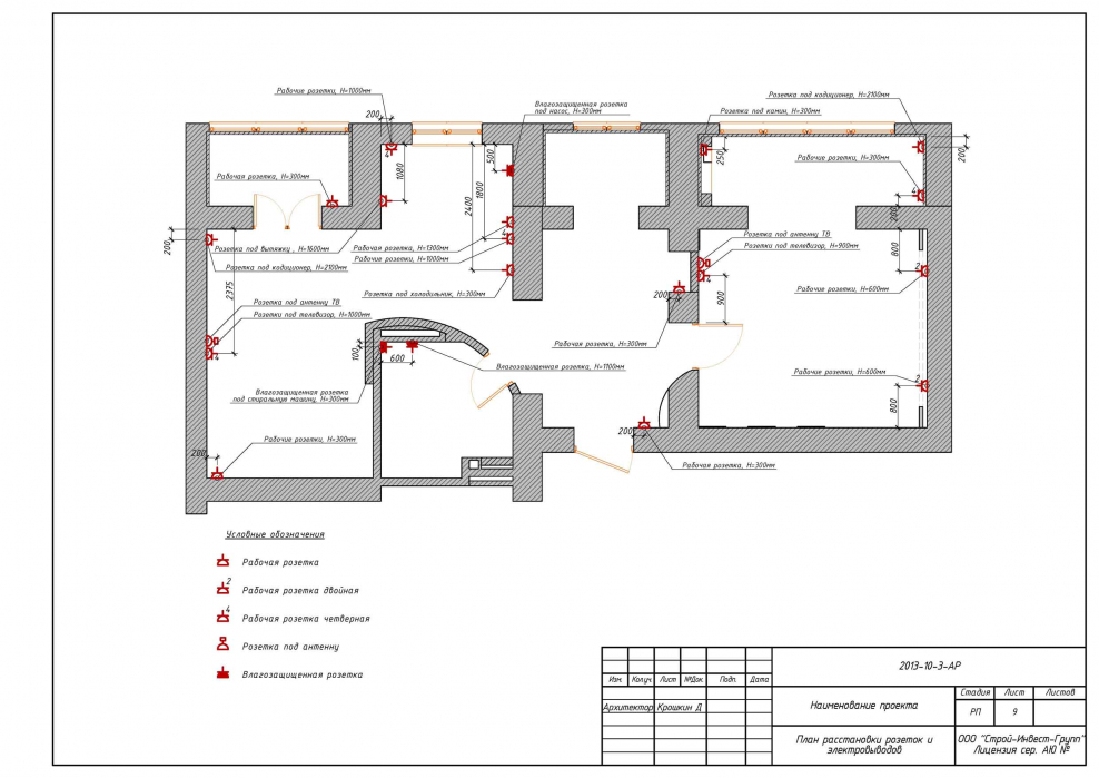
Схема расстановки розеток и выключателей
Схема расстановки розеток и выключателей

Монтажная схема розеточной сети освещения
Монтажная схема розеточной сети освещения

Чертеж расположения розеток и выключателей
Чертеж расположения розеток и выключателей

План розеток и выключателей в архикаде
План розеток и выключателей в архикаде

Условное обозначение розетки
Условное обозначение розетки

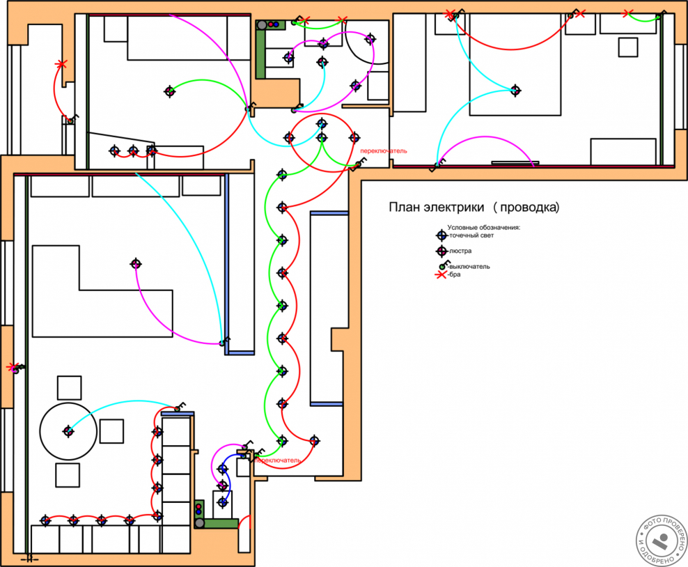
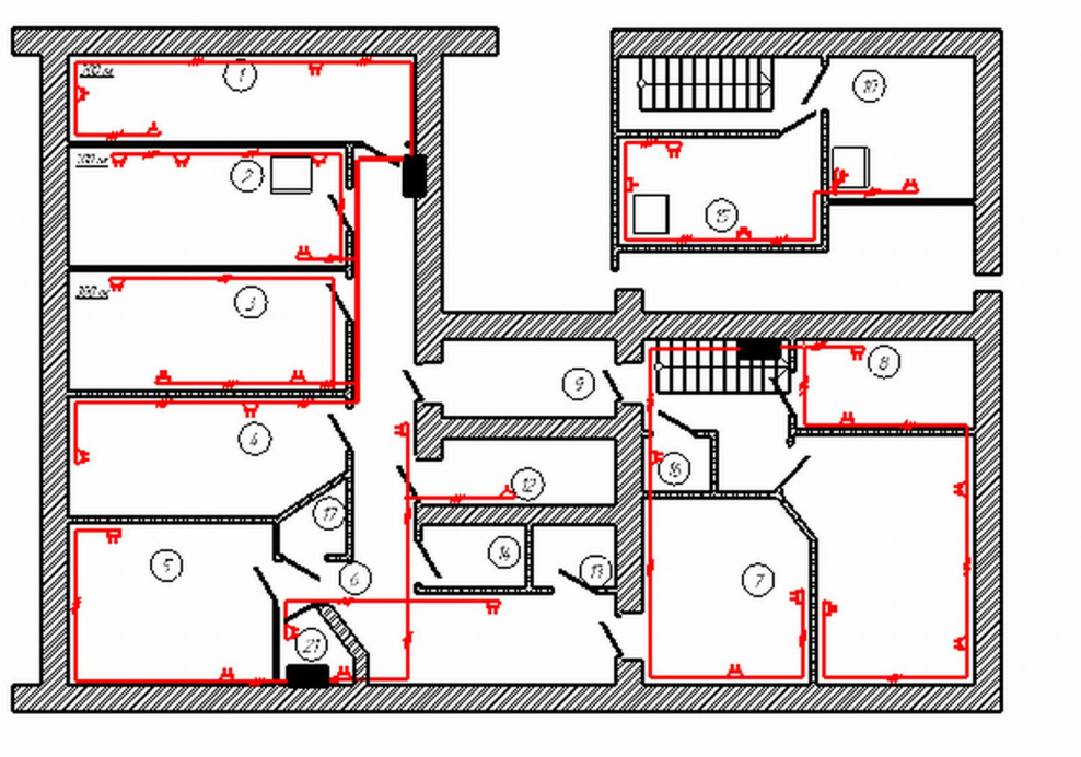
Схема разводки проводки в квартире
Схема разводки проводки в квартире

Схема электропроводки в квартире дизайн
Схема электропроводки в квартире дизайн

Нормы прокладки электропроводки в жилых помещениях
Нормы прокладки электропроводки в жилых помещениях

Схема расстановки розеток и выключателей в жилых помещениях
Схема расстановки розеток и выключателей в жилых помещениях

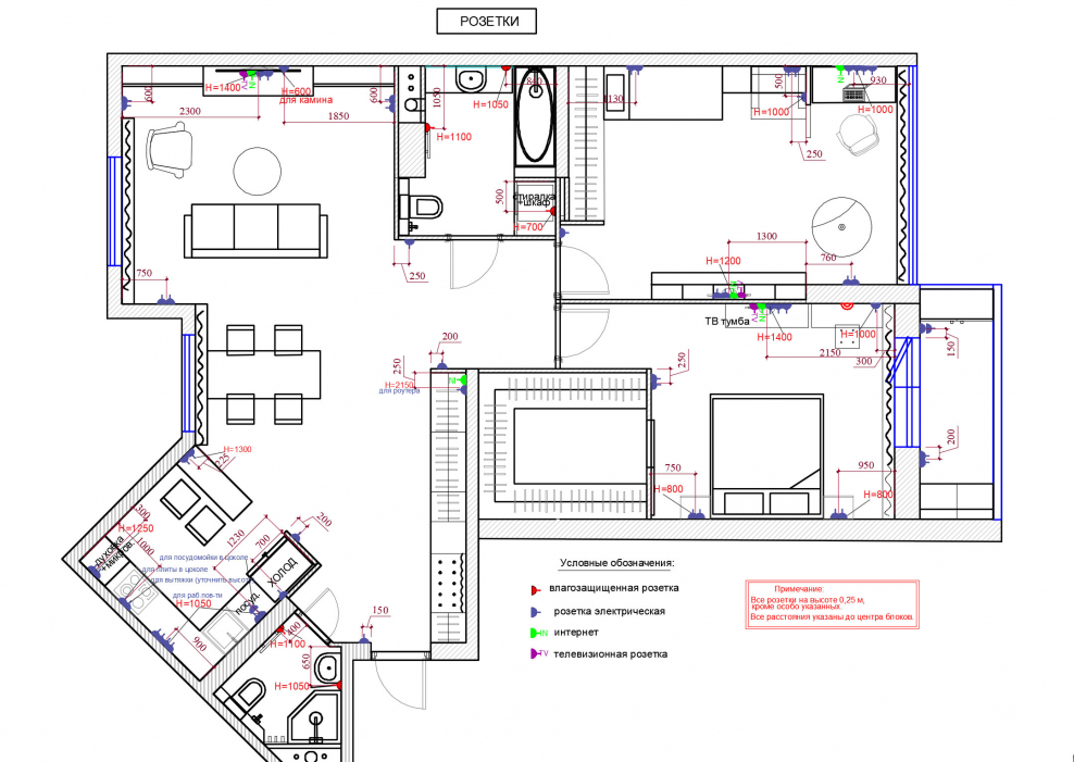
План расположения розеток
План расположения розеток

Схема проводки в квартире 1 комнатной 40 кв
Схема проводки в квартире 1 комнатной 40 кв

План проект электрики в квартире
План проект электрики в квартире

План размещения розеток и выключателей в квартире
План размещения розеток и выключателей в квартире

Привязка розеток и выключателей на чертежах
Привязка розеток и выключателей на чертежах

Обозначение выключателя теплого пола на схеме
Обозначение выключателя теплого пола на схеме

Электрическая схема квартирной электропроводки обозначения
Электрическая схема квартирной электропроводки обозначения

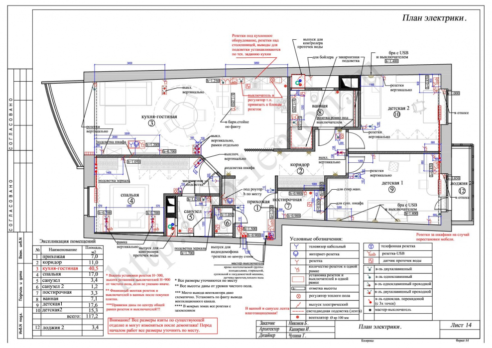
План электрики
План электрики

Монтажная схема розеточной сети освещения
Монтажная схема розеточной сети освещения

WIFI обозначение на плане
WIFI обозначение на плане

План размещения розеток
План размещения розеток

Розетка в полу на плане
Розетка в полу на плане

Планировка розеток
Планировка розеток

План розеток и выключателей в квартире
План розеток и выключателей в квартире

План электрики в дизайн-проекте
План электрики в дизайн-проекте

План потолка с розетками
План потолка с розетками

Схема розеток и выключателей в квартире
Схема розеток и выключателей в квартире

Эл. Схема разводки в кабинете розеток и выключателей
Эл. Схема разводки в кабинете розеток и выключателей

План электрики розетки
План электрики розетки

Акустическая розетка схема подключения
Акустическая розетка схема подключения

План привязки розеток и выключателей
План привязки розеток и выключателей

Чертежи электрики план освещения и выключателей
Чертежи электрики план освещения и выключателей

План светильников и розеток
План светильников и розеток

План розеток в офисе
План розеток в офисе

План электрики в дизайн-проекте
План электрики в дизайн-проекте

План расположения розеток в доме
План расположения розеток в доме

План размещения розеток
План размещения розеток

Торшер на плане
Торшер на плане

План розеток и электровыводов
План розеток и электровыводов

План расположения розеток и электровыводов
План расположения розеток и электровыводов

Схема электропроводки 1 комнатной квартиры 40 кв
Схема электропроводки 1 комнатной квартиры 40 кв

Схема расстановки розеток
Схема расстановки розеток

План квартиры электрика
План квартиры электрика

План электрики
План электрики

План привязки розеток
План привязки розеток

План расстановки розеток и выключателей
План расстановки розеток и выключателей

План электропроводки квартиры обозначения
План электропроводки квартиры обозначения

Условное обозначение розетки для электроплиты
Условное обозначение розетки для электроплиты

План размещения электророзеток квартира
План размещения электророзеток квартира

Схема локальной сети офиса
Схема локальной сети офиса

Обозначение домофона на чертежах электрики
Обозначение домофона на чертежах электрики

Схема расстановки электрооборудования в квартире
Схема расстановки электрооборудования в квартире

Как обозначается розетка на плане квартиры
Как обозначается розетка на плане квартиры

Обозначение Ethernet розеток на чертеже
Обозначение Ethernet розеток на чертеже

План проект электрики в квартире
План проект электрики в квартире

План размещения розеток
План размещения розеток

План электрики
План электрики

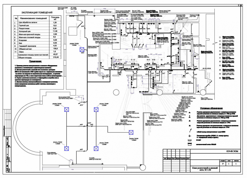
План розеток в кафе
План розеток в кафе

План розеток
План розеток

Розетки СКС на чертеже
Розетки СКС на чертеже

План электрики розетки
План электрики розетки

  • Просмотров: 7 322
  • Добавлено: 05 август
Категории: ---
Комментарии (0)
Кликните на изображение чтобы обновить код, если он неразборчив
Похожие фото