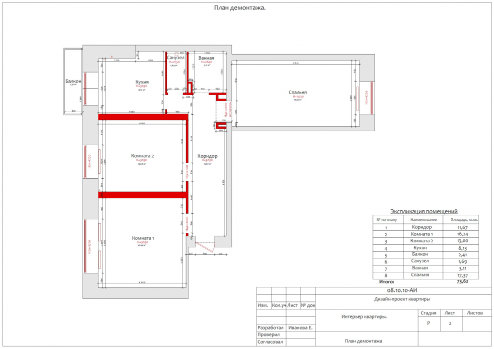
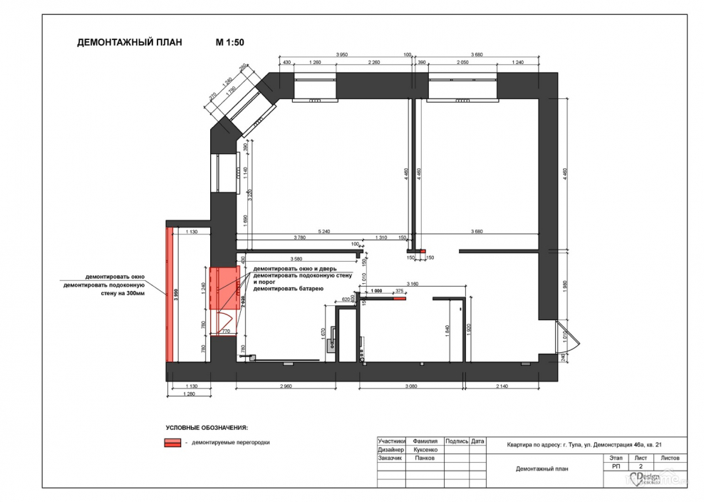
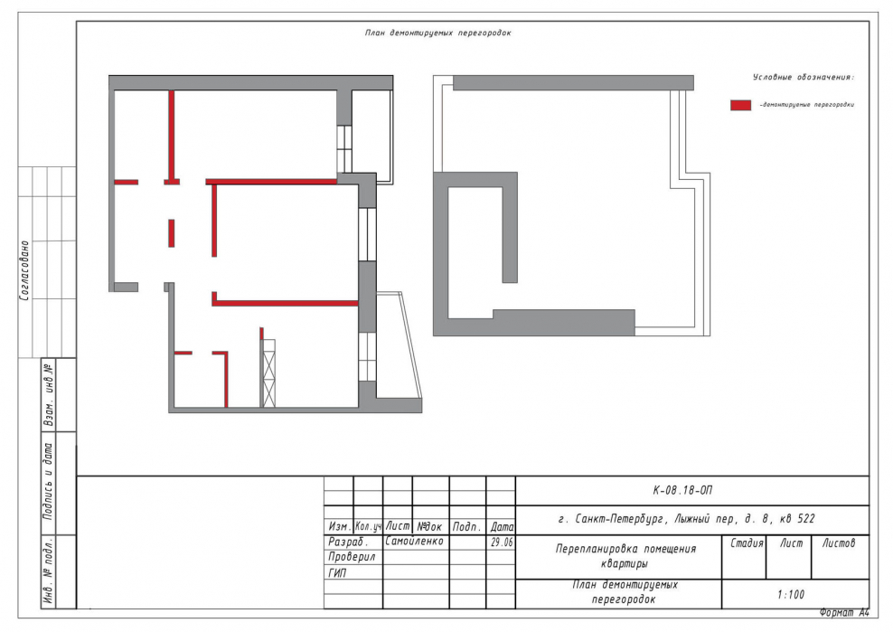
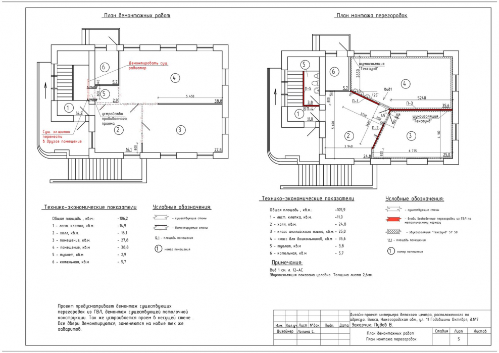
План демонтажа или реконструкции (72 фото)

При разработке плана демонтажа или реконструкции важно с самого начала учитывать архитектурные особенности помещения и его текущее техническое состояние. Качественный подход начинается с детального обследования пространства: оценки несущих стен, расположения коммуникаций, состояния перекрытий. Например, в одном из проектов в старом жилом доме мы сохранили оригинальные балки перекрытия, интегрировав их в современный интерьер — это не только сократило объем демонтажных работ, но и придало помещению уникальный характер. Такой подход к плану демонтажа или реконструкции позволяет находить баланс между функциональностью и эстетикой.

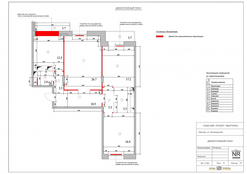
План монтажа и демонтажа перегородок
План монтажа и демонтажа перегородок


Работа с инженерными системами требует особого внимания. В ходе реконструкции квартиры в историческом здании мы перенесли разводку электрики и сантехники, сохранив при этом оригинальную планировку некоторых зон. Это стало возможным благодаря тщательному планированию и согласованию всех этапов с инженерами. План демонтажа или реконструкции в таких случаях включает не только удаление старых элементов, но и подготовку основы для новых решений, которые будут служить десятилетия.

Чертеж демонтаж перегородок
Чертеж демонтаж перегородок


Особое внимание уделяется экологичности и безопасности. Мы всегда выбираем методы, минимизирующие пыль и шум, используем современное оборудование для локализации работ. В одном из проектов в детской квартире-студии был организован поэтапный демонтаж перегородок с немедленной утилизацией строительного мусора. Это позволило избежать загрязнения жилой зоны и ускорило последующие этапы ремонта. План демонтажа или реконструкции в таких случаях строится с учётом комфорта будущих жильцов.

План демонтажа пола
План демонтажа пола


Важно помнить, что каждый проект уникален. В пентхаусе с панорамными окнами мы отказались от полного сноса внутренних стен, ограничившись частичным демонтажем для зонирования пространства. Такое решение сохранило целостность конструкции и усилило ощущение простора. План демонтажа или реконструкции здесь стал инструментом тонкой корректировки архитектуры, а не её радикального изменения. Подход, основанный на уважении к существующему пространству, часто даёт самые выразительные результаты.

План демонтажа потолка
План демонтажа потолка


В финальной стадии планирования мы согласовываем все технические детали с подрядчиками, обеспечивая чёткое понимание сроков и последовательности работ. Это позволяет избежать ошибок и простоев на объекте. В одном из проектов на Невском проспекте грамотно составленный план демонтажа или реконструкции позволил уложиться в график даже при сложных логистических условиях. Такой уровень подготовки — основа доверия клиентов и успешной реализации интерьерных идей.

План демонтажа перегородок и план возводимых перегородок
План демонтажа перегородок и план возводимых перегородок

План монтажа и демонтажа стен
План монтажа и демонтажа стен

Чертеж демонтажа перегородок в квартире
Чертеж демонтажа перегородок в квартире

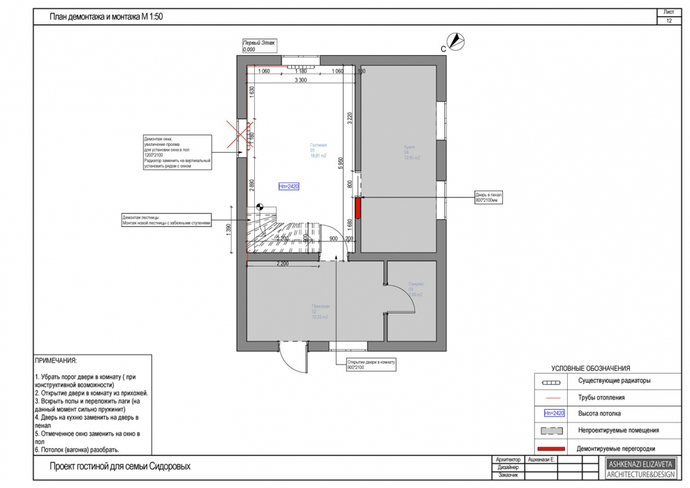
План демонтажа в дизайн проекте
План демонтажа в дизайн проекте

План демонтажа окон
План демонтажа окон

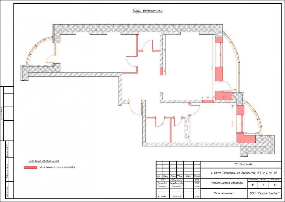
План демонтажа квартиры
План демонтажа квартиры

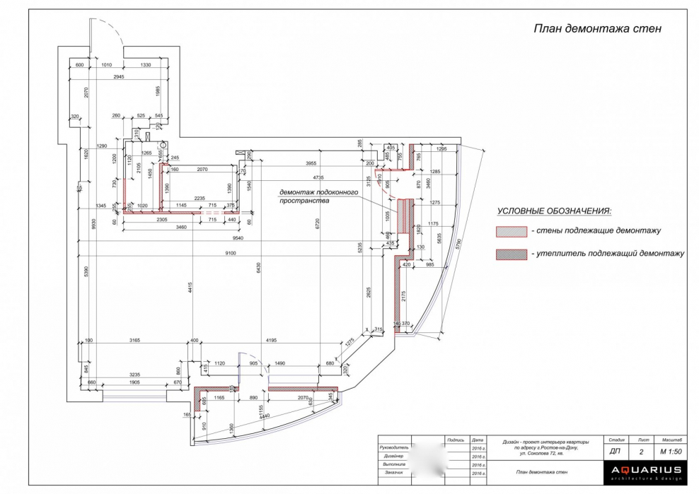
План демонтажа стен
План демонтажа стен

План квартиры образец
План квартиры образец

Демонтажный план при реконструкции
Демонтажный план при реконструкции

План монтажа перегородок чертеж
План монтажа перегородок чертеж

План демонтажа перегородок и дверей
План демонтажа перегородок и дверей

План демонтажа пример
План демонтажа пример

Чертеж монтаж демонтаж перегородок
Чертеж монтаж демонтаж перегородок

План монтажа и демонтажа
План монтажа и демонтажа

План монтажа и демонтажа стен
План монтажа и демонтажа стен

Демонтаж перегородок ар чертеж
Демонтаж перегородок ар чертеж

Демонтаж стены схема исполнительная
Демонтаж стены схема исполнительная

Демонтаж здания ППР поэлементно
Демонтаж здания ППР поэлементно

План демонтажа плитки
План демонтажа плитки

Монтаж демонтаж квартиры план
Монтаж демонтаж квартиры план

План демонтажа перегородок
План демонтажа перегородок

Демонтажный план этажа пример
Демонтажный план этажа пример

Как выглядит план демонтажа
Как выглядит план демонтажа


План монтажа и демонтажа перегородок
План монтажа и демонтажа перегородок

Демонтажный план чертеж
Демонтажный план чертеж

План демонтажа перегородок оформление
План демонтажа перегородок оформление

План демонтажа перегородок и план возводимых перегородок
План демонтажа перегородок и план возводимых перегородок

План демонтажных работ
План демонтажных работ

Демонтаж в архикаде
Демонтаж в архикаде

План монтажа стен и перегородок
План монтажа стен и перегородок

Обозначение демонтажа балконных блоков
Обозначение демонтажа балконных блоков

План демонтажа в дизайн проекте
План демонтажа в дизайн проекте

План демонтажа в дизайн проекте
План демонтажа в дизайн проекте

Схема демонтажа здания
Схема демонтажа здания

Демонтаж дверного проема чертеж план
Демонтаж дверного проема чертеж план

План демонтажа объем
План демонтажа объем

План монтажа и демонтажа перегородок
План монтажа и демонтажа перегородок

План монтажных и демонтажных работ
План монтажных и демонтажных работ

План демонтажа проводов
План демонтажа проводов

Монтажный план и демонтаж
Монтажный план и демонтаж

Проект организации строительства на демонтаж
Проект организации строительства на демонтаж

План монтажа и демонтажа перегородок
План монтажа и демонтажа перегородок

Площадь демонтируемых перегородок
Площадь демонтируемых перегородок

Демонтажный план ГОСТ
Демонтажный план ГОСТ

План демонтажа отопления
План демонтажа отопления

План демонтажа потолка
План демонтажа потолка

План демонтажа стен и перегородок
План демонтажа стен и перегородок

Перегородка для согласования перепланировки
Перегородка для согласования перепланировки

План демонтажа перегородок в архикад
План демонтажа перегородок в архикад

Чертеж демонтаж перегородок
Чертеж демонтаж перегородок

План демонтажа и монтажа перегородок чертеж квартиры
План демонтажа и монтажа перегородок чертеж квартиры

Демонтажный план чертеж
Демонтажный план чертеж

Исполнительная схема на демонтаж конструкций
Исполнительная схема на демонтаж конструкций

План демонтажа архикад
План демонтажа архикад

Таблица ведомость демонтажных работ ГОСТ
Таблица ведомость демонтажных работ ГОСТ

Проект организации демонтажа чертеж
Проект организации демонтажа чертеж

Демонтаж дверных проемов план
Демонтаж дверных проемов план

Схема демонтажа перегородок
Схема демонтажа перегородок

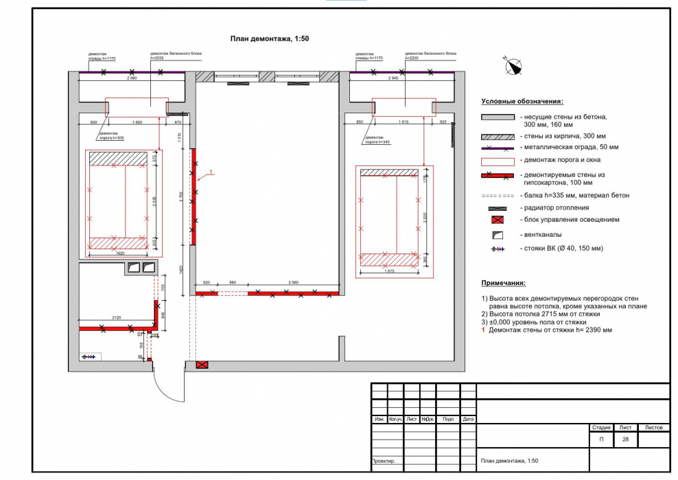
План демонтажа
План демонтажа

План демонтажных работ пример
План демонтажных работ пример

План демонтажа ведомость
План демонтажа ведомость

Вент короб чертеж на плане
Вент короб чертеж на плане

Демонтажные чертежи
Демонтажные чертежи

Чертеж монтаж демонтаж перегородок
Чертеж монтаж демонтаж перегородок

Демонтаж дверного проема чертеж план
Демонтаж дверного проема чертеж план

Демонтажный план
Демонтажный план

План демонтажа
План демонтажа

  • Просмотров: 7 454
  • Добавлено: 03 август
Категории: ---
Комментарии (0)
Кликните на изображение чтобы обновить код, если он неразборчив
Похожие фото