Планировка потолков (76 фото)

Не просто технический этап в создании интерьера, а важная часть архитектурного замысла, которая задаёт ритм пространству и подчёркивает стилистическую целостность. Удачно продуманная конструкция способна визуально увеличить высоту помещения, акцентировать зоны или, наоборот, придать уют, опуская уровень в определённых участках. Например, в одном из проектов в квартире с низкими потолками мы применили лёгкое многоуровневое решение с плавными переходами — это позволило скрыть коммуникации и при этом не перегрузить пространство.

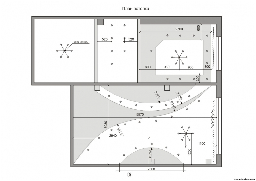
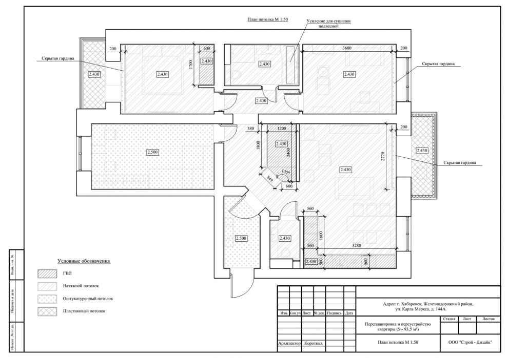
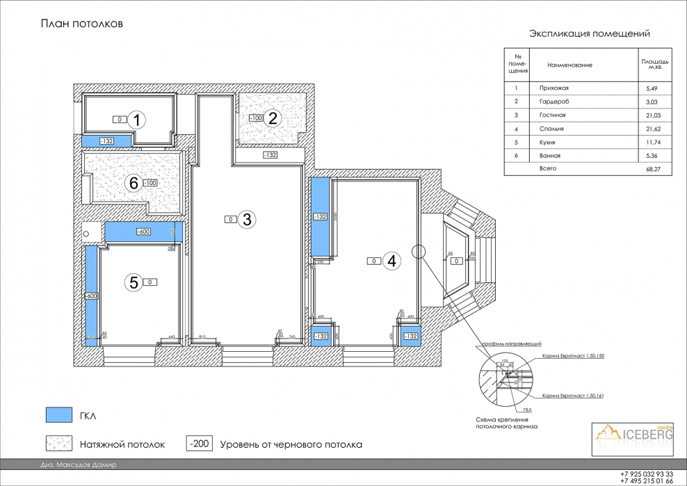
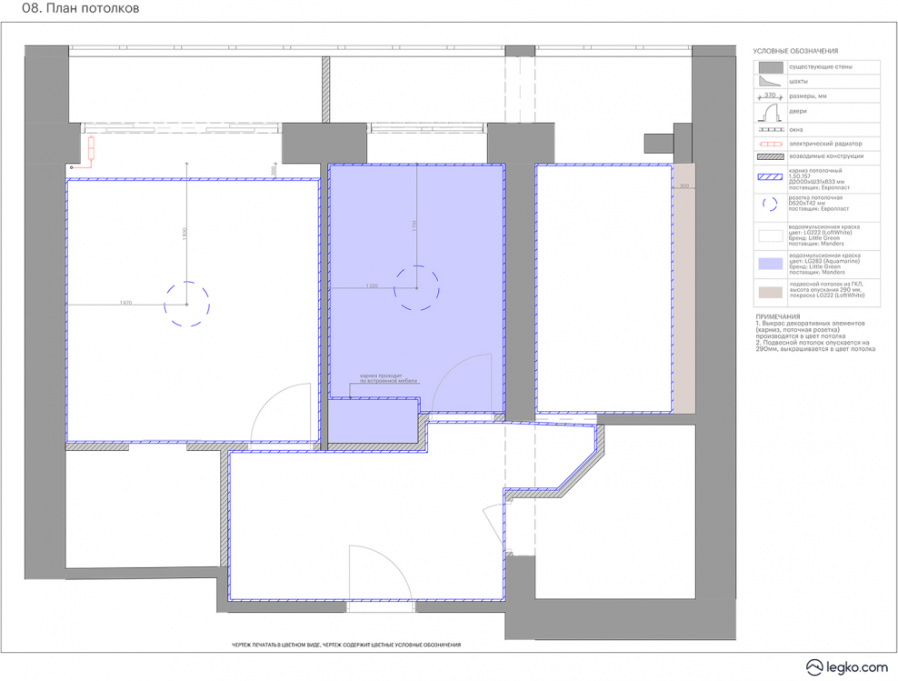
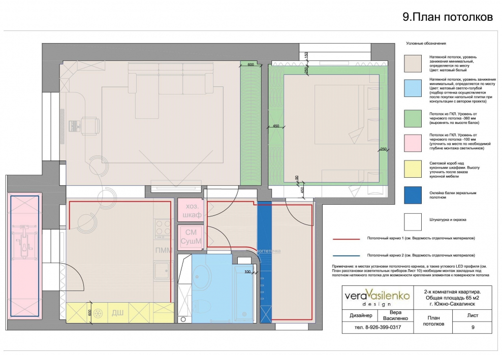
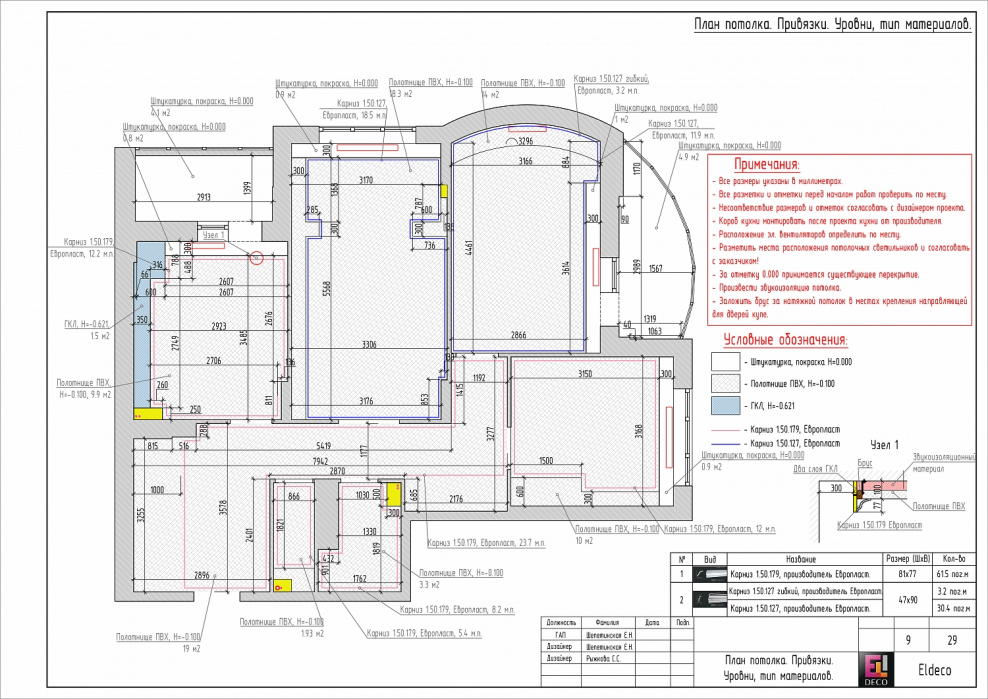
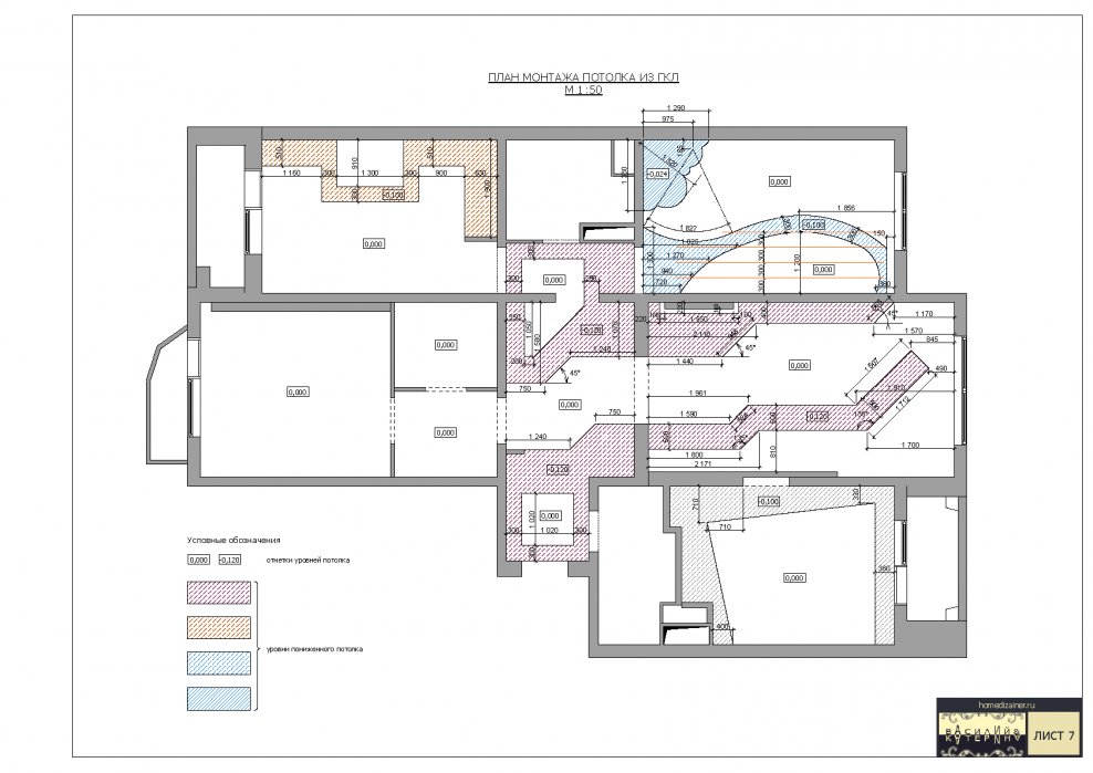
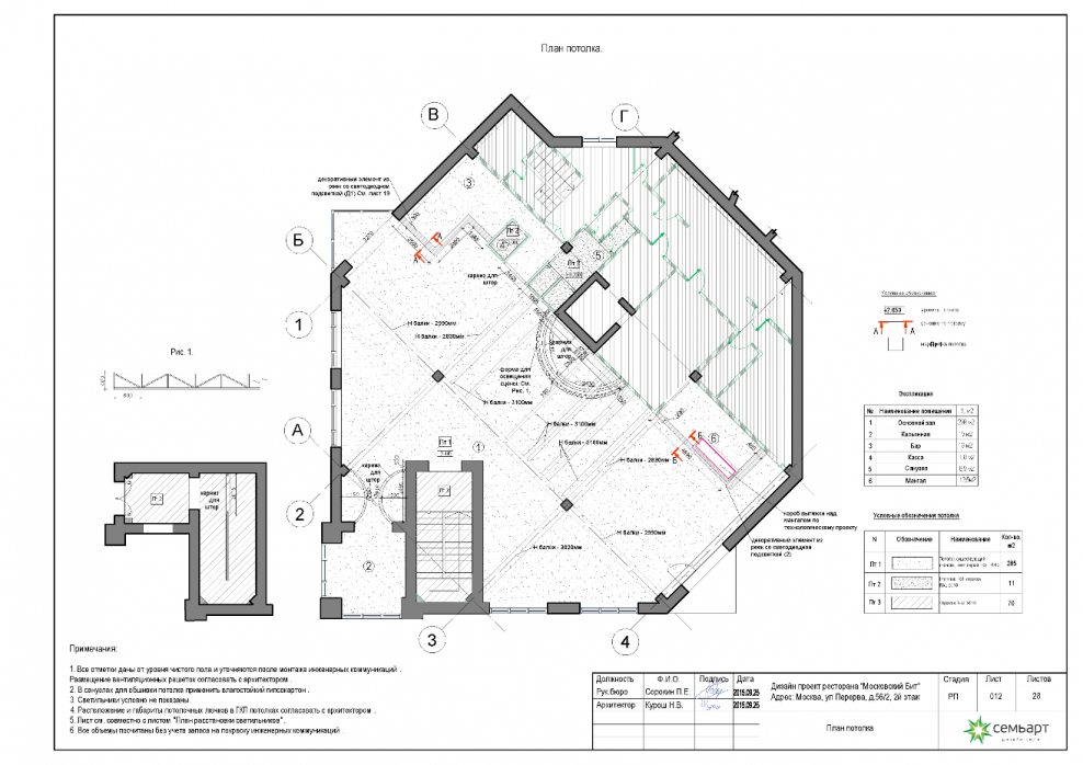
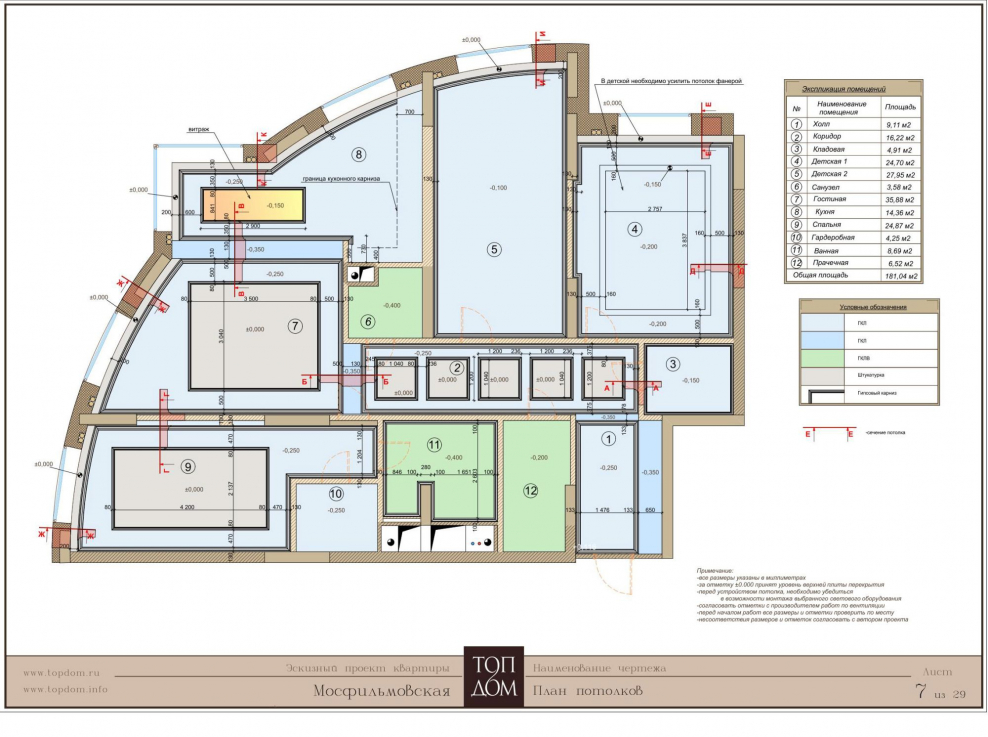
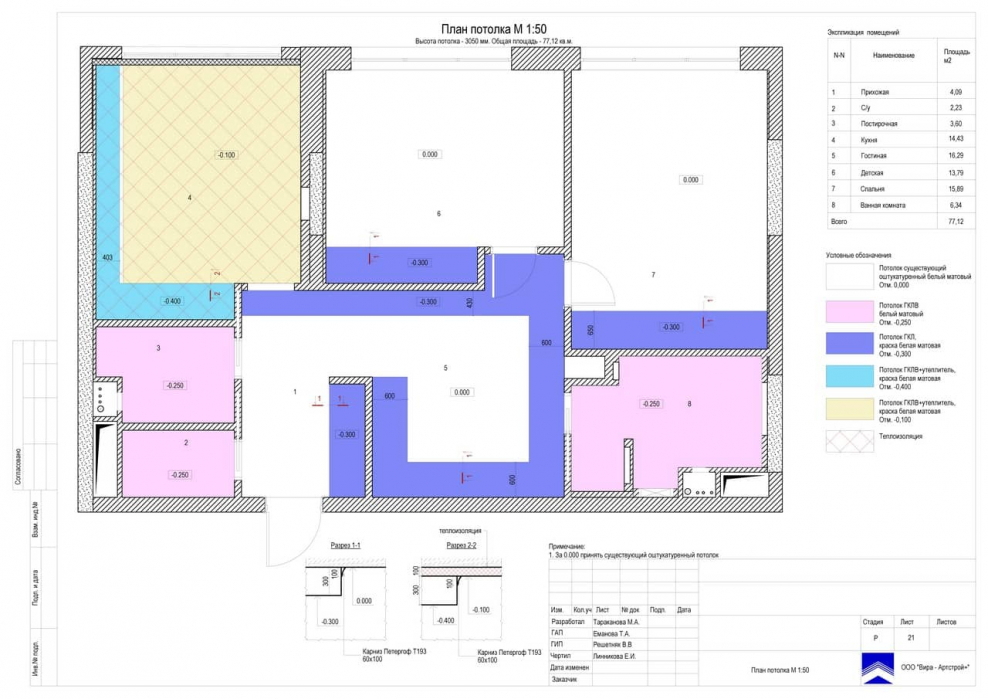
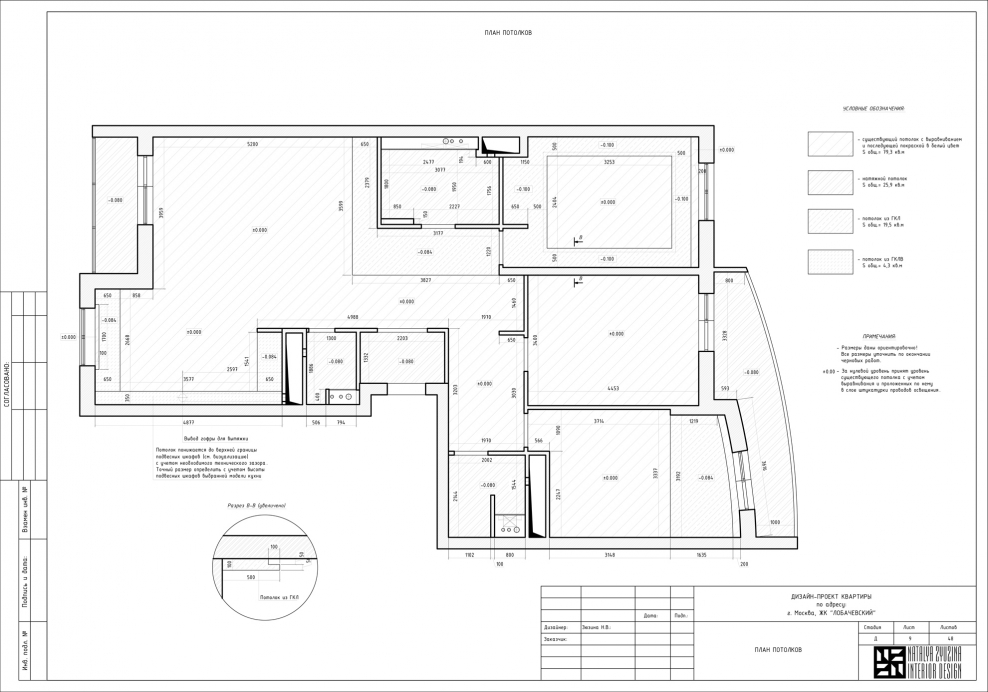
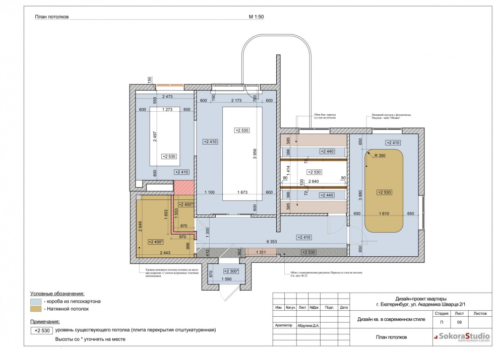
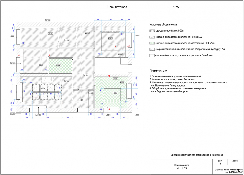
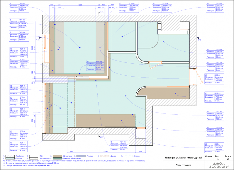
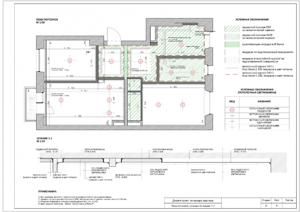
План потолков (с указанием отметок и узлами)
План потолков (с указанием отметок и узлами)


Особое внимание при планировке потолка стоит уделить световому дизайну. Встроенное освещение, если оно грамотно вписано в структуру, становится не просто функциональным элементом, а частью декора. В проекте загородного дома мы использовали скрытую подсветку по периметру потолка в гостиной — мягкий свет подчёркивал объём комнаты и создавал атмосферу лёгкости, особенно в вечернее время. Такой приём работает особенно выразительно в интерьерах с минималистичной эстетикой.

План потолков (с указанием отметок и узлами)
План потолков (с указанием отметок и узлами)


Материалы также играют ключевую роль. Глянцевые поверхности помогают отразить свет и визуально приподнять потолок, а матовые — создают ощущение тепла и уюта. В детской комнате мы применили комбинированный подход: глянцевые вставки над игровой зоной и матовые — над спальным местом. Это позволило разделить пространство без перегородок и сохранить ощущение открытости. Планировка потолка здесь стала не только эстетическим, но и зонирующим решением.

План потолков дизайн проект
План потолков дизайн проект


Иногда потолок может стать главным акцентом интерьера. В одном из лофт-проектов мы оставили балки на виду, подчеркнув их чёрным металлическим профилем и дополнив точечными светильниками. Такой ход подчеркнул характер помещения, сохранив его индустриальную основу. При этом планировка потолка была тщательно продумана с учётом расположения мебели и маршрутов передвижения, чтобы свет не слепил и равномерно распределялся по комнате.

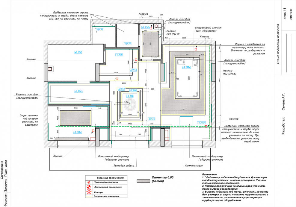
План натяжного потолка с освещением чертеж
План натяжного потолка с освещением чертеж


Важно помнить, что даже самая красивая идея должна работать в реальности. Учитывая высоту помещения, расположение окон, особенности меблировки, мы подходим к планировке потолка как к органичной части интерьера, а не к отдельному элементу. Когда все детали сбалансированы — конструкция, свет, материалы — потолок перестаёт быть фоном и становится частью истории пространства, которую хочется рассматривать снова и снова.

План потолков дизайн проект
План потолков дизайн проект

План потолка чертеж
План потолка чертеж

План потолков (с указанием отметок и узлами)
План потолков (с указанием отметок и узлами)

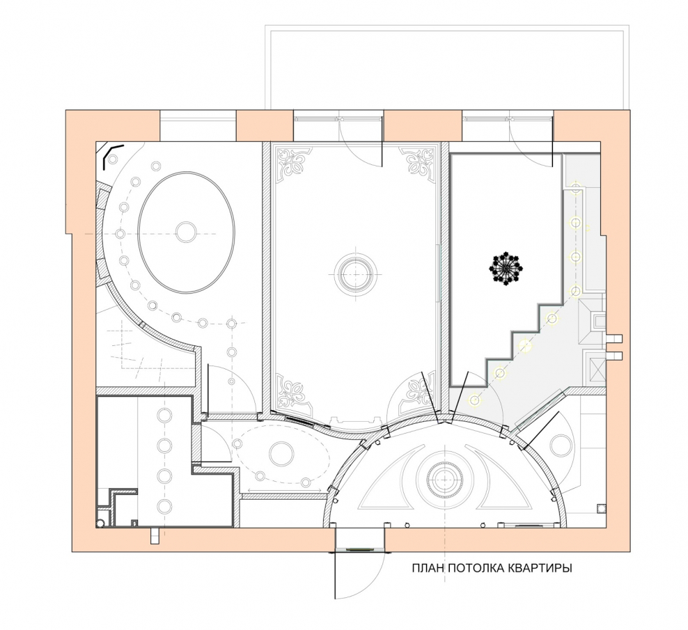
План потолка квартиры
План потолка квартиры

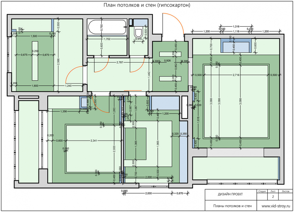
План гипсокартонного потолка
План гипсокартонного потолка

План перекрытий архикад
План перекрытий архикад

План потолка архикад
План потолка архикад

План потолка
План потолка

План потолков дизайн проект
План потолков дизайн проект

План потолка
План потолка

План многоуровневого потолка
План многоуровневого потолка

План потолков дизайн проект
План потолков дизайн проект

Отметка потолка на плане
Отметка потолка на плане

План потолков дизайн проект
План потолков дизайн проект

План потолков дизайн проект
План потолков дизайн проект

План потолка комнаты
План потолка комнаты

План потолка квартиры
План потолка квартиры

План потолка квартиры
План потолка квартиры

План потолка квартиры
План потолка квартиры

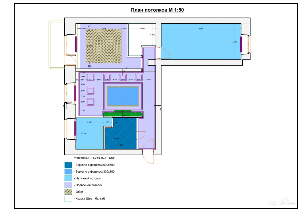
План потолка с размерами
План потолка с размерами

План потолка с размерами
План потолка с размерами

План потолка
План потолка

План потолка
План потолка

План потолка квартиры
План потолка квартиры

Отметка уровня потолка на плане
Отметка уровня потолка на плане

План потолка
План потолка

План потолка в интерьере
План потолка в интерьере

План потолков дизайн проект
План потолков дизайн проект

Схема потолка в архикаде
Схема потолка в архикаде

План потолков в дизайн проекте квартиры
План потолков в дизайн проекте квартиры

План потолка
План потолка

План потолка
План потолка

Высота потолка на планировке
Высота потолка на планировке

План подвесного потолка
План подвесного потолка

План потолков в автокаде
План потолков в автокаде

Материалы для потолков план
Материалы для потолков план

Чертеж двухуровневого потолка
Чертеж двухуровневого потолка

План потолка чертеж
План потолка чертеж

План потолка
План потолка

Планы потолков для дизайнеров
Планы потолков для дизайнеров

План расстановки освещения чертеж
План расстановки освещения чертеж

План монтажа потолка
План монтажа потолка

План потолка с привязкой
План потолка с привязкой

Чертежи двухуровневых натяжных потолков
Чертежи двухуровневых натяжных потолков

План потолка
План потолка

План потолка чертеж
План потолка чертеж

План потолков в дизайн проекте квартиры
План потолков в дизайн проекте квартиры

План потолка
План потолка

План потолка с вентиляцией
План потолка с вентиляцией

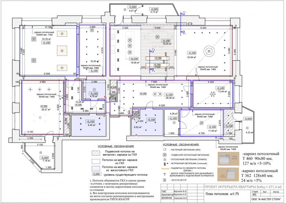
План потолочных конструкций
План потолочных конструкций

План потолков в дизайн проекте квартиры
План потолков в дизайн проекте квартиры

План отделки потолков
План отделки потолков

План подвесного потолка
План подвесного потолка

План потолка рабочие чертежи
План потолка рабочие чертежи

План потолков дизайн проект
План потолков дизайн проект

План потолка офис
План потолка офис

План перекрытий архикад
План перекрытий архикад

План потолка спальни
План потолка спальни

Рабочие чертежи дизайн интерьера
Рабочие чертежи дизайн интерьера

Черновое планирование отметка периметра
Черновое планирование отметка периметра

План натяжного потолка чертеж
План натяжного потолка чертеж

План потолка чертеж приточно вытяжная вентиляция
План потолка чертеж приточно вытяжная вентиляция

План потолка чертеж
План потолка чертеж

План потолков дизайн проект
План потолков дизайн проект

План потолка
План потолка

План потолка классика
План потолка классика

План потолка с освещением
План потолка с освещением

Обмерочный план потолка
Обмерочный план потолка





  • Просмотров: 6 985
  • Добавлено: 02 август
Категории: ---
Комментарии (0)
Кликните на изображение чтобы обновить код, если он неразборчив
Похожие фото