Правила планировки детской комнаты (81 фото)
План детской комнаты
Планировка детской комнаты план 12 кв м
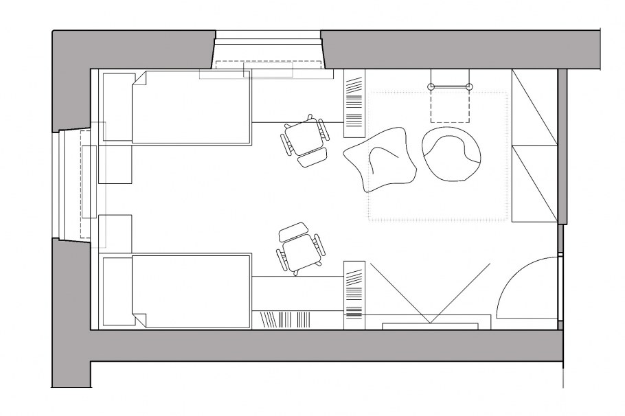
Детская 20 кв м для двоих разнополых
Планировка детской комнаты план
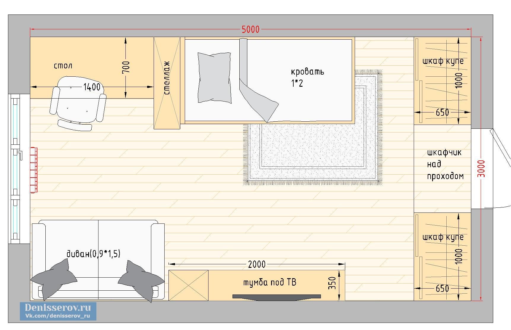
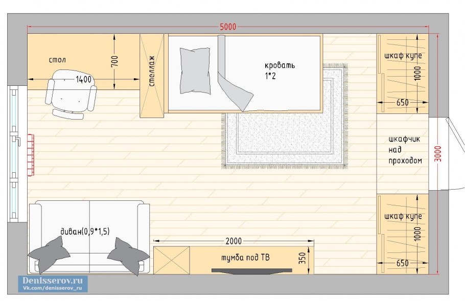
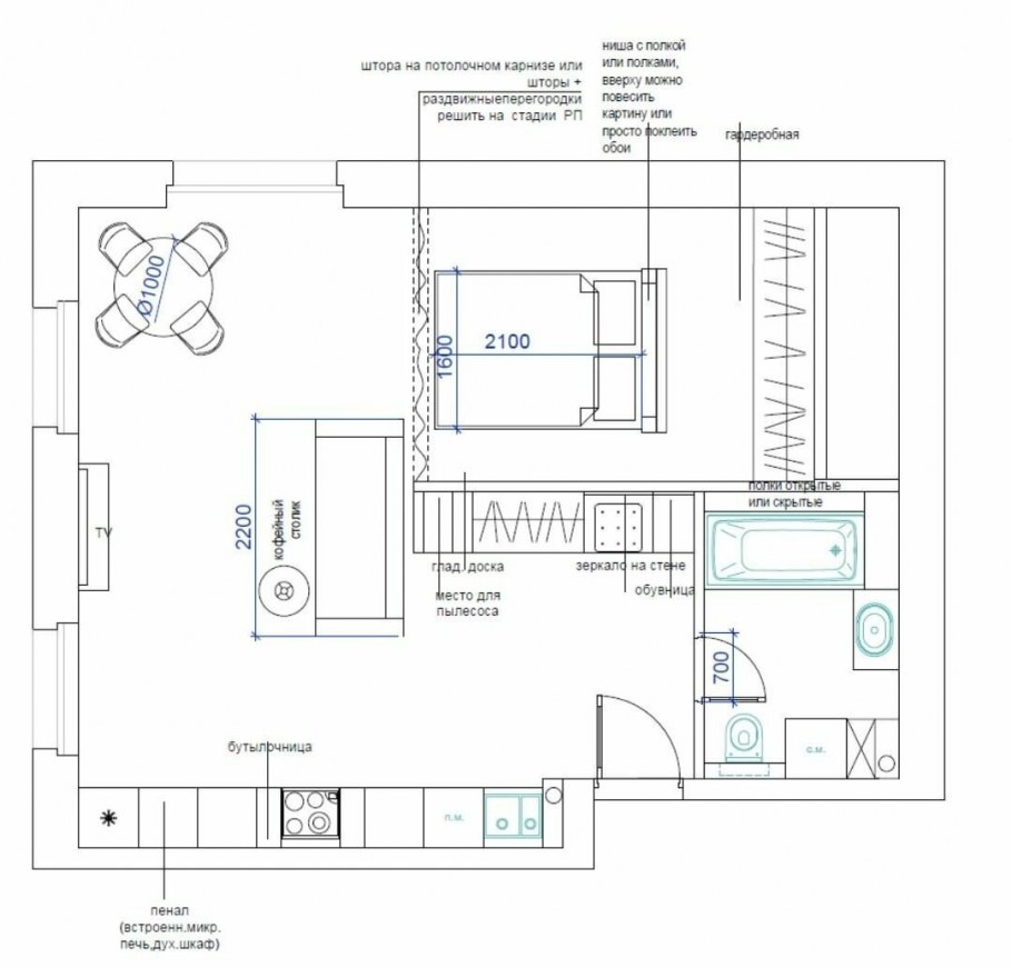
План расстановки мебели с размерами спальня
Зонирование детской комнаты
Детская мебель для двоих разнополых детей
Комната 15 кв м для двоих детей разнополых
Планировка детской комнаты
Комната 15 кв м для двоих детей разнополых подростков
Планировка маленькой комнаты план понятный
Детская комната планировка
Детской комнаты для двоих разнополых 20 кв.м
Квадратная детская комната
Детская комната комната для двоих разнополых детей
Детская комната для двоих детей
Комната 10 кв для двоих детей
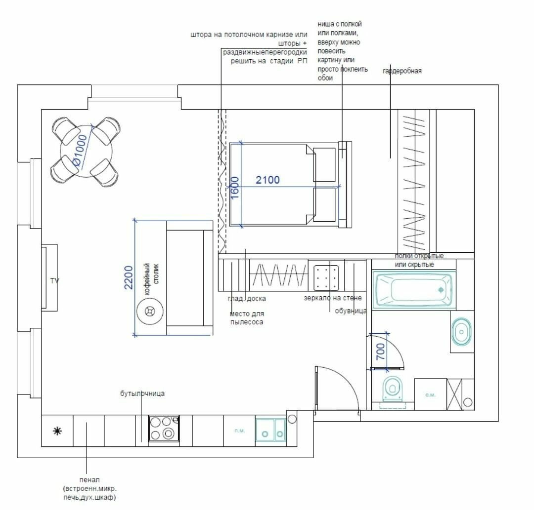
План расстановки мебели кухня чертеж
Комната 9 кв для двоих детей
Комната школьника для девочки
Спальная планировка
Нестандартная планировка детской комнаты
Зандирование детской комнаты
Узкая детская комната для двоих
Зонирование детской комнаты
Двухэтажная детская комната
Варианты расстановки мебели в спальне
Большая детская для девочки 7 лет с 2мя зонами
Мебель для маленькой комнаты
Обустройство детской комнаты для двоих
Детская комната для двоих детей
Чертеж маленькой игровой комнаты
Детские комнаты для двоих детей
3 Д проект детской

Интерьер маленькой комнаты
Интерьер детской
Детская комната для девочки
Дизайнерский проект детской комнаты мальчику
Схема расстановки мебели в гостиной
Обстановка маленьких комнат
Планировка детской комнаты с балконом
Интерьер детской для двух разнополых школьников

План детской комнаты с размерами
Детская комната
Интерьер детской для двоих детей
Интерьер детской для девочки
Интерьер детской 9 кв.м
Планировка детской комнаты для подростка
Компактная комната
Планировка детской в хрущевке
Детская для двоих разнополых школьников 18 метров
Планировка детской комнаты
Планировка детской комнаты 20 кв.м
Детская комната 10 кв м для двоих разнополых
Визуализация детской комнаты с диванами
Планировка детской дошкольника
Детская интерьер
Интерьер школьника
Детская комната интерьер эконом
Проекты детских комнат
План комнаты для дошкольников
Комната 15 кв м для двоих детей разнополых детей
Планировка детской комнаты для девочки
Игровая комната для детей
Школа ремонта детская комната
Похожие фото
↑