Проекты одноэтажных домов в казахстане (78 фото)
Создание дома - процесс, позволяющий воплотить в жизнь собственные идеи и фантазии. Такое строение может служить не только функциональным укрытием для инвентаря или местом для отдыха, но и стать настоящим украшением участка. Главное – определиться с назначением будущего сооружения, чтобы правильно подойти к выбору материалов и дизайна.
Перед началом строительства важно продумать расположение дома на участке. Он должен гармонично вписываться в ландшафт и быть удобно доступным. Например, если вы планируете хранить в нем садовый инвентарь, лучше разместить его ближе к огородной зоне. Для летней гостиной или места для чтения книг предпочтительнее выбрать тенистый уголок с видом на цветники. Также стоит учесть рельеф местности, чтобы избежать проблем с отводом воды во время дождей.
Материалы для строительства можно выбрать исходя из ваших возможностей и предпочтений. Дерево – классический вариант, который хорошо сочетается с природным окружением и позволяет создавать уникальные конструкции. Оно достаточно долговечно, если правильно обработать древесину антисептиками и защитными составами. Более бюджетным решением может стать использование металлического каркаса с покрытием из поликарбоната или другого современного материала. Важно помнить, что внешний вид дома будет зависеть от качества выбранного сырья.
Когда основные параметры и материалы определены, переходят к чертежам и расчетам. Это один из ключевых этапов, так как от точности плана зависит надежность и комфорт будущего строения. Если вы новичок в строительстве, начните с простых форм – прямоугольных или квадратных конструкций. При этом не забудьте предусмотреть все необходимые элементы: двери, окна, вентиляцию и внутреннюю отделку. Хорошая планировка сэкономит время и силы при реализации проекта.
Наконец, не менее важен этап декорирования дома. Именно он придаст сооружению индивидуальность и сделает его частью общего стиля. Можно покрасить фасад яркими красками, украсить его резьбой или добавить живые элементы, такие как вьющиеся растения. Также важно позаботиться о внутреннем убранстве: установить полки, скамейки или даже маленький столик. Такой дом станет не просто функциональным объектом, а любимым местом для всей семьи.
Одноэтажный дом 250 кв м проект
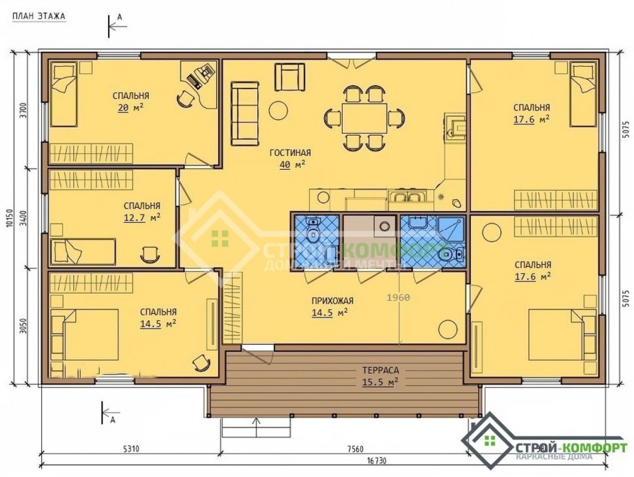
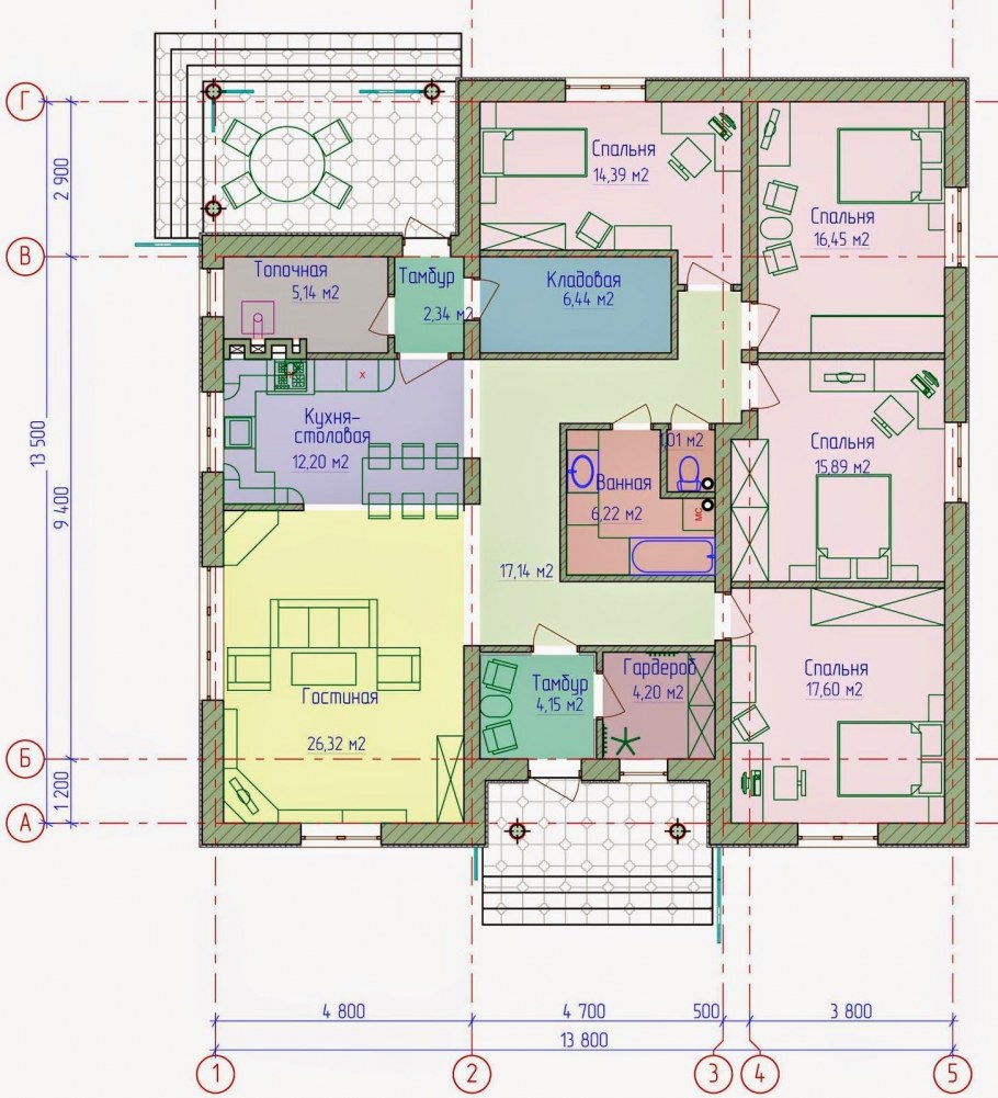
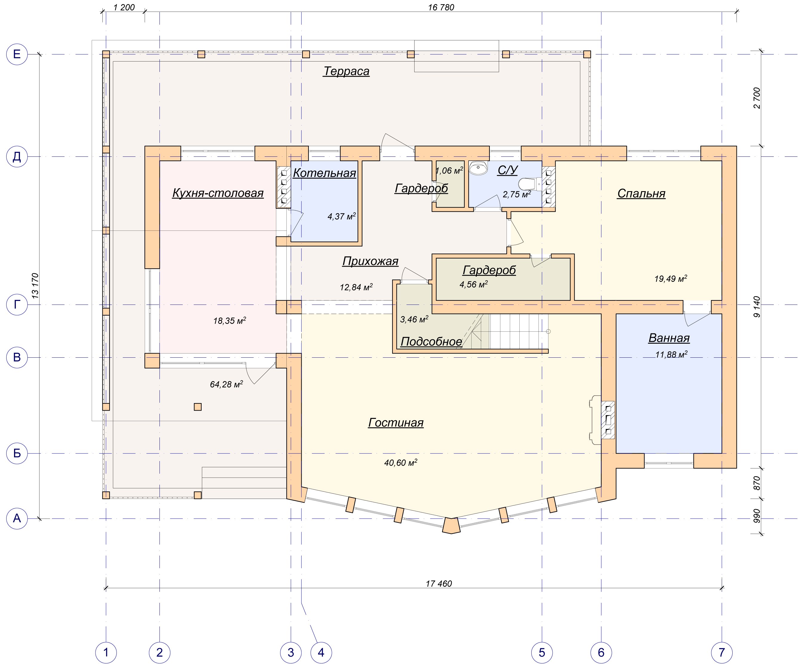
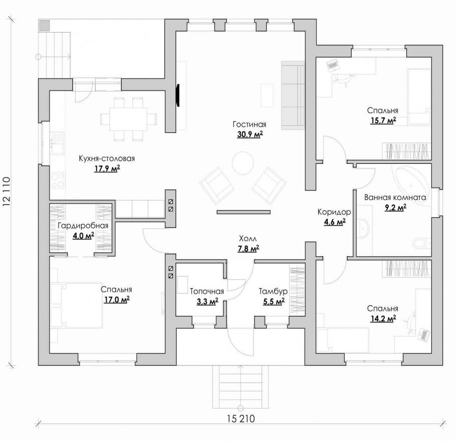
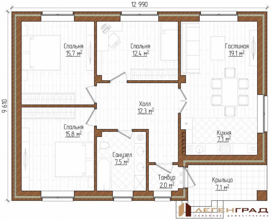
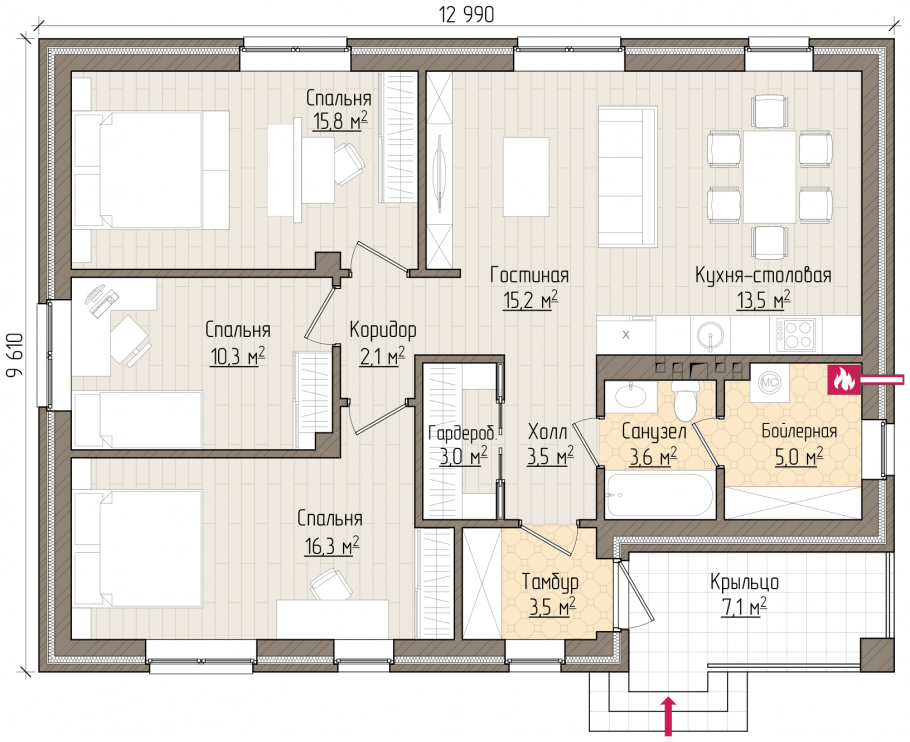
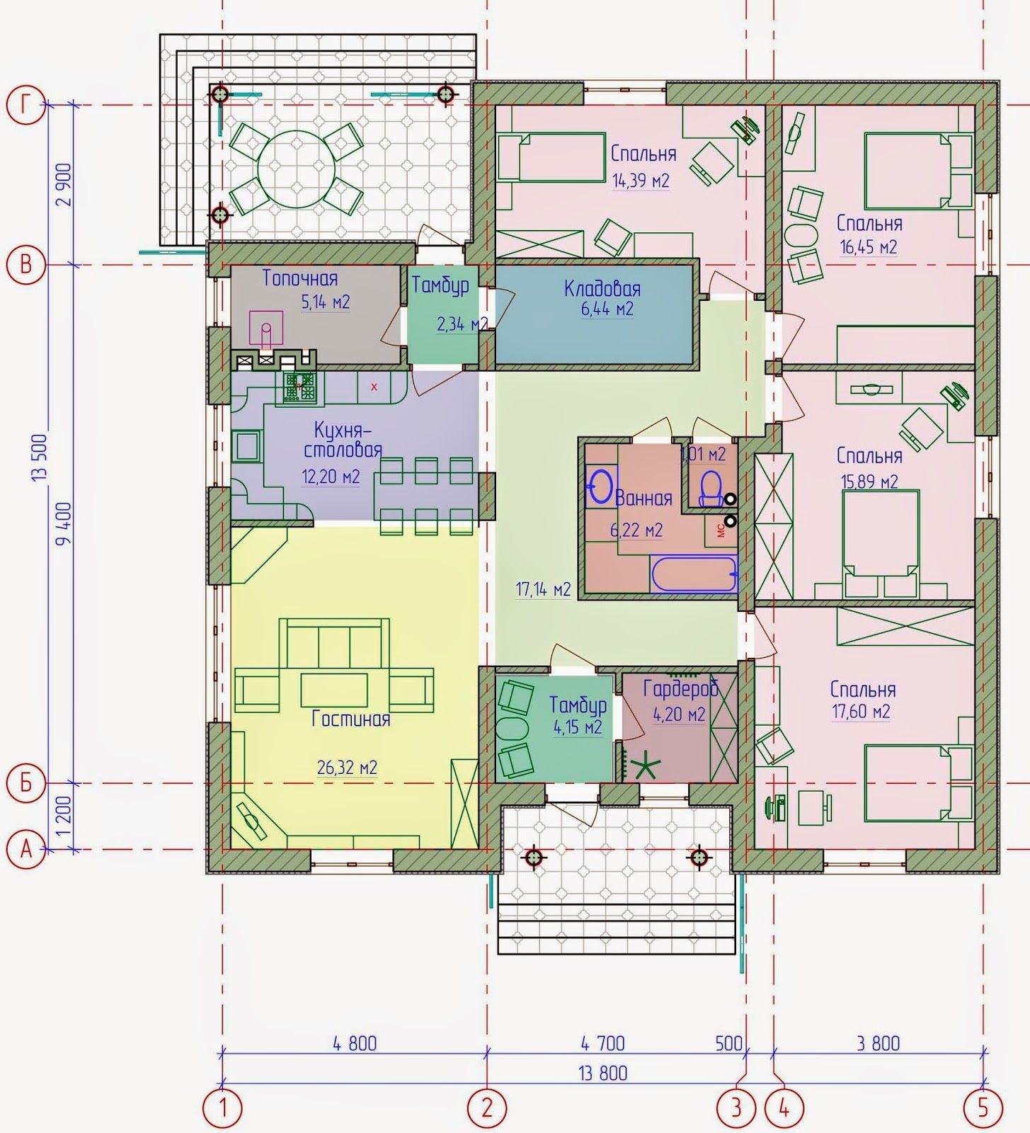
План дома с размерами
3д проекты одноэтажных домов
Одноэтажный дом 12х14
Проекты домов 12 на 14 одноэтажный
Планы одноэтажных домов с террасой
План одноэтажного дома с эркером
Ред Лайт 100 планировка
Проекты частных домов одноэтажных
Проект дома
Проекты частных домов с планом
Планировка одноэтажного 150 кв дома
Планировки одноэтажных домов 120кв
Archmasters одноэтажный дом
Проекты одноэтажных домов из газобетона 10х10
Планировка одноэтажного дома 115 м2
План одноэтажного дом с 130 кв
Проекты домов от Евгения Морозова
Удобный одноэтажный дом
Одноэтажный дом 110 кв,м с мансардой
Проект 4х комнатного одноэтажного дома
План одноэтажного коттеджа с террасой
Дом 80 м2 одноэтажный
Проекты одноэтажныйдомов

Проект дома 20 на 20 одноэтажный
Чертежи одноэтажных домов 150 м2
АРХМАСТЕРС archmasters
Планировка одноэтажного дома 115 м2
Одноэтажный дом проекты 200кв
Проекты домов
Проект одноэтажного дома 15х15 с отличной планировкой
План коттеджа 1 этажного
Одноэтажный дом
Проекты домов от Евгения Морозова 12201
Z500 проект 241
Проекты одноэтажныйдомов
Одноэтажный дом 150 кв планировка
Одноэтажные индивидуальные жилые дома
Проект одноэтажного дома с гаражом и террасой
Планировка одноэтажного дома 150 кв.м с 3 спальнями
Проект дома 12 на 20 одноэтажный
Проект дома
Одноэтажный дом шестигранный
Проекты одноэтажных домов из пеноблоков с вальмовой крышей
Польские проекты одноэтажных домов до 150 кв.м
Одноэтажный дом z64
Проект z10 одноэтажный дом с террасой
Проект дома 12х15 одноэтажный
Проект z10 одноэтажный дом 140 кв м 10х15 с мансардой
Одноэтажные дом с гаражом z10
Дим из сибита в стиле Шале
Планировка одноэтажного дома 9 на 10м с тремя спальнями
3д проекты одноэтажных домов
Проект одноэтажного дома с 3 спальнями и гаражом
Z500 проекты одноэтажных домов с гаражом
Планировки одноэтажных домов 120кв
Одноэтажный дом проекты 200кв
Одноэтажный дом 200 кв
Арчмастерс проекты

Пятикомнатный одноэтажный дом
Проект дома z273 чертежи
Планировка 4-х комнатного одноэтажного дома
Одноэтажный дом с эркером 100 кв проекты
Z500 проекты одноэтажных с террасой
Одноэтажный дом 12х12 планировка

Ош проект уйлордун
План одноэтажного коттеджа с размерами
T2tz одноэтажный
Проекты больших одноэтажных домов
Одноэтажный дом 12х15 проект
Похожие фото
↑