Планировка салона красоты 50 квадратов (73 фото)

Планировка салона красоты

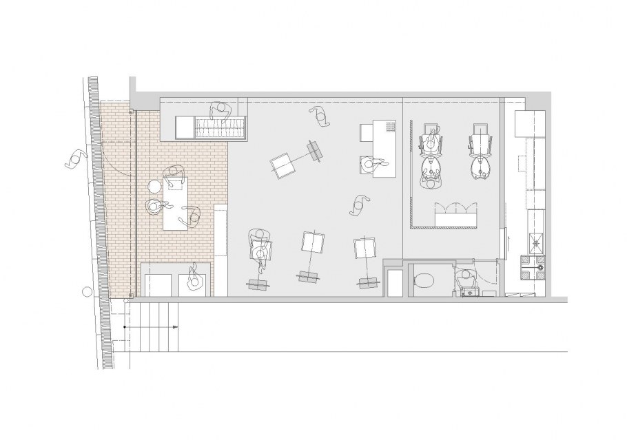
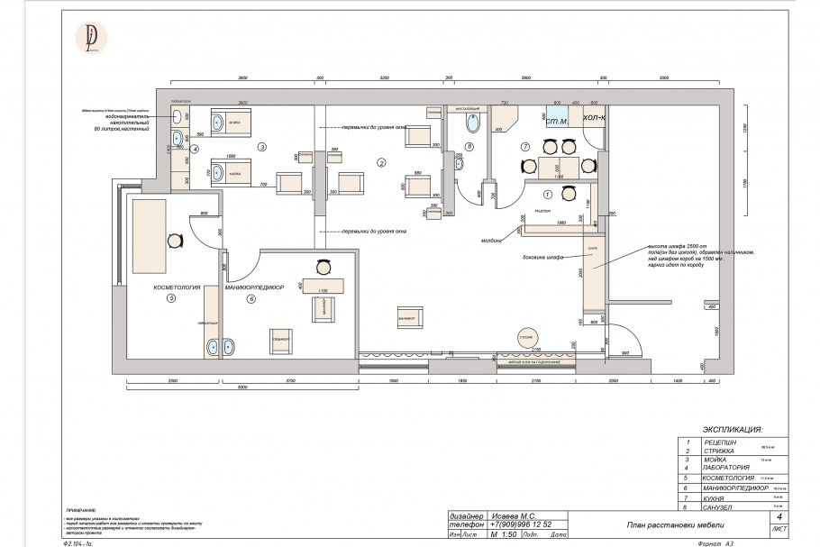
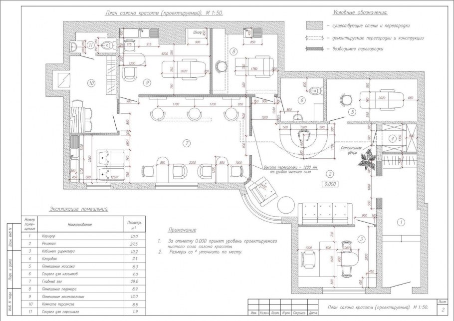
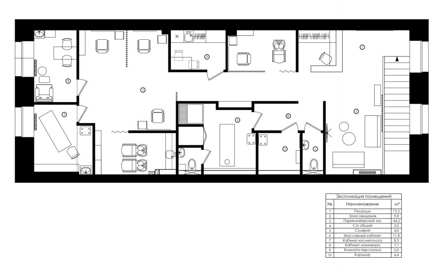
При планировке салона красоты площадью 50 квадратных метров важно создать эффективное и функциональное пространство, которое будет привлекательным для клиентов и удобным для персонала. Ключевым моментом является грамотное зонирование, позволяющее максимально использовать доступную площадь.

Планировка салона красоты 50 кв
Планировка салона красоты 50 кв


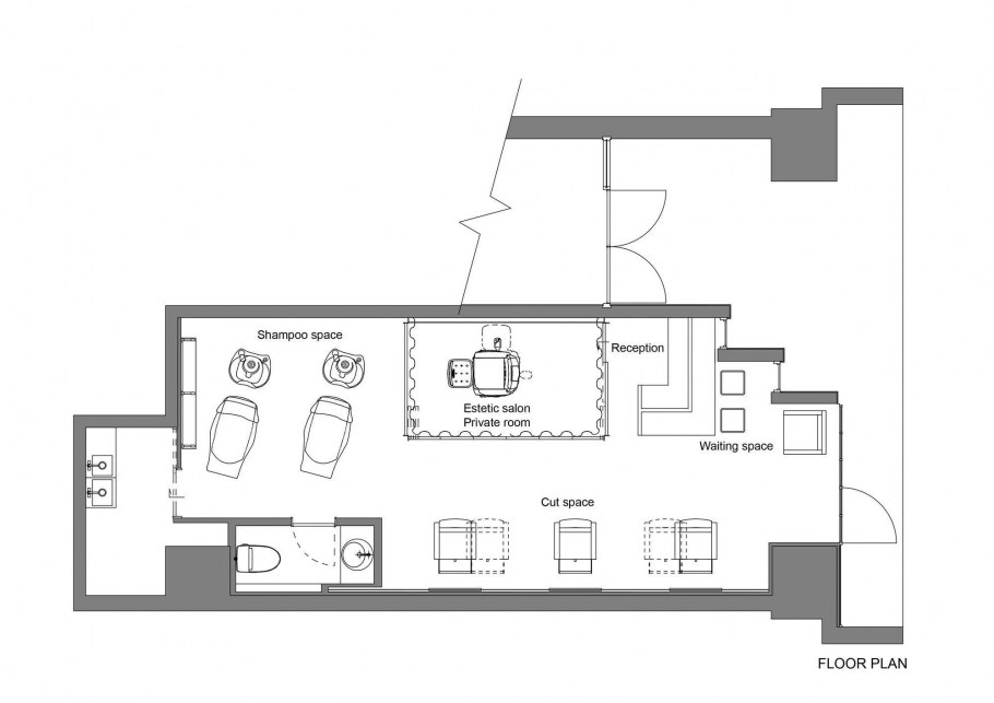
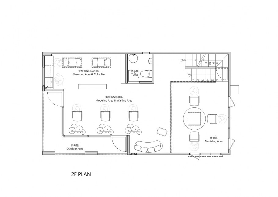
Одним из важных аспектов является размещение основных рабочих зон - зоны ожидания, зоны для стрижек и укладок, а также зоны для маникюра и педикюра. Необходимо продумать логичные маршруты перемещения клиентов, чтобы обеспечить плавный и комфортный процесс обслуживания. Кроме того, стоит уделить внимание созданию уютной и расслабляющей атмосферы в зоне ожидания, где клиенты могут с комфортом провести время.

3d планировка спа салона
3d планировка спа салона


Не менее важно правильно организовать подсобные помещения - комнату персонала, складские и технические зоны. Эти помещения должны быть функциональными и легко доступными для сотрудников, но при этом не занимать слишком много места в основном пространстве салона. Грамотное планирование и расстановка мебели и оборудования позволит создать гармоничное и эффективное пространство, которое будет радовать как клиентов, так и владельцев салона.

Планировочный план салона красоты
Планировочный план салона красоты


Планировка салона красоты 50 кв метров
Планировка салона красоты 50 кв метров

План помещения салона красоты
План помещения салона красоты

Салон красоты проект планировка
Салон красоты проект планировка

Планировка салона парикмахерской
Планировка салона парикмахерской

Планировка салона красоты с размерами
Планировка салона красоты с размерами

Планировка салона красоты 50 кв метров
Планировка салона красоты 50 кв метров

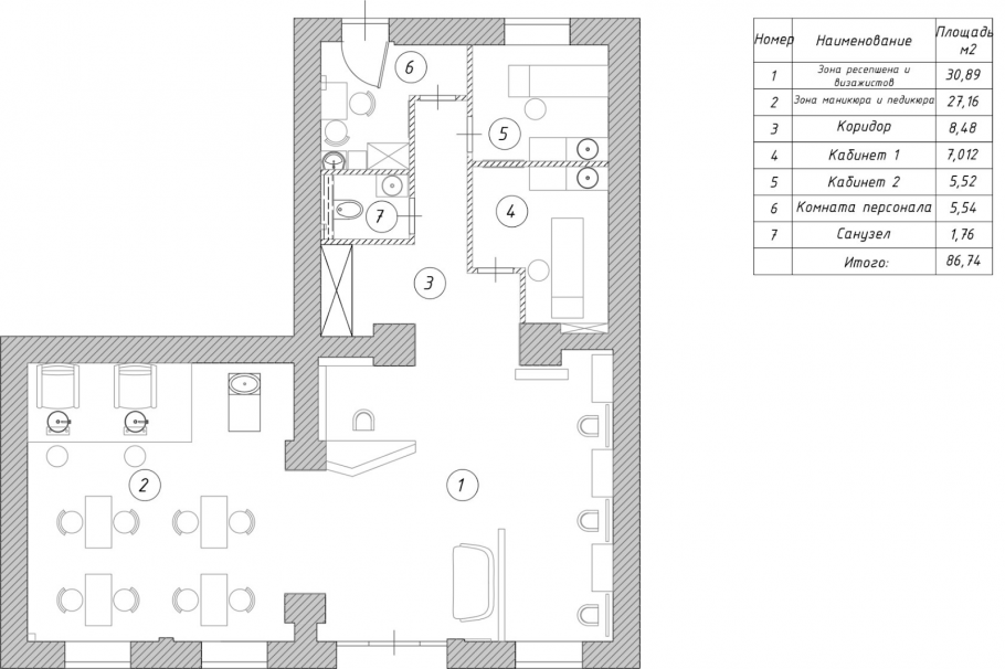
Экспликация помещений для салона красоты
Экспликация помещений для салона красоты

Планировка маленького салона красоты
Планировка маленького салона красоты

Схема плана помещения салона красоты
Схема плана помещения салона красоты

Проектирование салона красоты
Проектирование салона красоты

Планировка студии красоты
Планировка студии красоты

Проект парикмахерской
Проект парикмахерской

Планировка маленькой парикмахерской
Планировка маленькой парикмахерской

Типовой проект салона красоты
Типовой проект салона красоты

Планировка салона красоты 50 кв
Планировка салона красоты 50 кв

Проект салона красоты
Проект салона красоты

Планировка салона красоты 50 кв
Планировка салона красоты 50 кв

Планировка салона красоты 50 кв метров
Планировка салона красоты 50 кв метров

Проект салона красоты
Проект салона красоты

Планировка маленькой парикмахерской
Планировка маленькой парикмахерской

Дизайн проект салона красоты
Дизайн проект салона красоты

Планировка студии красоты
Планировка студии красоты

Планировка салон красоты на 50 кв.м
Планировка салон красоты на 50 кв.м

План салона красоты чертеж
План салона красоты чертеж

Интерьер студии красоты 50 кв
Интерьер студии красоты 50 кв

План расстановки мебели чертеж
План расстановки мебели чертеж

Проект салона красоты
Проект салона красоты

Схема расстановки оборудования салона парикмахерской
Схема расстановки оборудования салона парикмахерской

Планировка салона парикмахерской
Планировка салона парикмахерской

Kontier салон красоты Москва
Kontier салон красоты Москва

Планировка салона красоты 50 кв метров
Планировка салона красоты 50 кв метров

Планировка салона красоты 50 кв метров
Планировка салона красоты 50 кв метров

Планировка салона парикмахерской
Планировка салона парикмахерской

Интерьер салон красоты 40кв
Интерьер салон красоты 40кв

Проект салона красоты
Проект салона красоты

Интерьер студии красоты 50 кв
Интерьер студии красоты 50 кв

Планировка салона красоты
Планировка салона красоты

Планировка маленькой парикмахерской
Планировка маленькой парикмахерской

Салон красоты планировка помещений 50 кв м
Салон красоты планировка помещений 50 кв м

План салона красоты чертеж
План салона красоты чертеж

Планировка салона маникюра
Планировка салона маникюра

Проект салона красоты
Проект салона красоты

Дизайн салона красоты
Дизайн салона красоты

Планировка салона красоты 50 кв.м
Планировка салона красоты 50 кв.м

Планировка маленькой парикмахерской
Планировка маленькой парикмахерской

Проект салона красоты
Проект салона красоты

Планировка салона красоты 50 кв метров
Планировка салона красоты 50 кв метров

Планировка салона красоты 50 кв метров
Планировка салона красоты 50 кв метров

Интерьер парикмахерской
Интерьер парикмахерской

Планировка салона красоты с размерами
Планировка салона красоты с размерами

Планировка магазина од
Планировка магазина од

Салон Мишель Таганская
Салон Мишель Таганская

Туалетная комната в салоне красоты
Туалетная комната в салоне красоты

План салона красоты чертеж
План салона красоты чертеж

Планировка салона красоты 40 кв
Планировка салона красоты 40 кв

Проект парикмахерской
Проект парикмахерской

Планировка салона красоты 50 кв метров
Планировка салона красоты 50 кв метров

Расстановка мебели в салоне красоты
Расстановка мебели в салоне красоты

План расстановки мебели в офисе 40 кв
План расстановки мебели в офисе 40 кв

Салон красоты во Франции интерьер
Салон красоты во Франции интерьер

Помещение для салона
Помещение для салона

Интерьер парикмахерской
Интерьер парикмахерской

Разделение зон в салоне красоты
Разделение зон в салоне красоты

Входная зона салона красоты
Входная зона салона красоты

План маникюрного салона
План маникюрного салона

План салона красоты
План салона красоты




  • Просмотров: 12 448
  • Добавлено: 28 ноябрь
Категории: ---
Комментарии (0)
Кликните на изображение чтобы обновить код, если он неразборчив
Похожие фото