Маленький санузел с душевой планировка (51 фото)
Маленький санузел с душевой может стать уютным и функциональным пространством, даже если его размеры ограничены. Правильное планирование и выбор материалов помогут создать комфортную атмосферу. Важно учитывать, что каждый элемент должен быть не только эстетичным, но и практичным. Например, использование светлых тонов визуально расширяет пространство, а зеркала добавляют глубину.
Душевая кабина — это отличное решение для компактного санузла. Она занимает меньше места, чем ванна, и позволяет эффективно использовать каждый квадратный метр. Современные модели душевых кабин предлагают разнообразные функции, такие как гидромассаж и встроенные полки для хранения. Это делает процесс принятия душа не только удобным, но и приятным.
Не забывайте о деталях, которые могут значительно улучшить функциональность маленького санузла. Удобные полки, компактные раковины и стильные аксессуары помогут создать гармоничное пространство. Правильное освещение также играет важную роль, так как оно может сделать санузел более светлым и привлекательным. В итоге, даже маленький санузел с душевой может стать настоящим оазисом уюта и комфорта.
Эргономика санузла
Минимальный размер санузла с душем
Планировка небольшой ванной комнаты
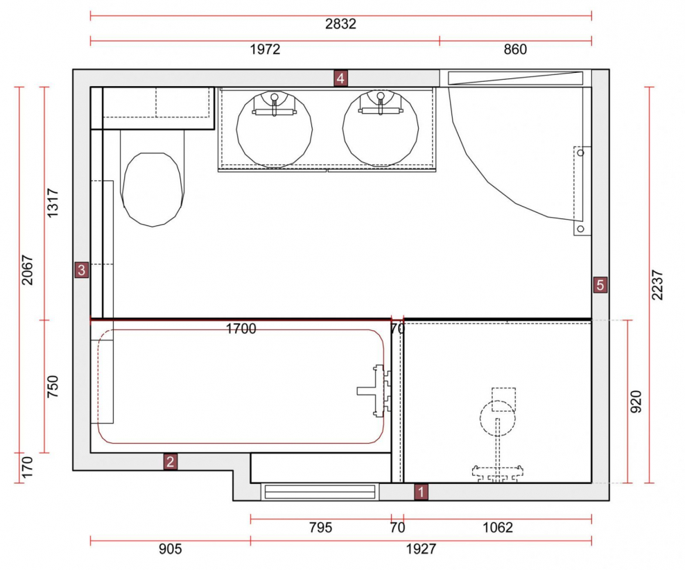
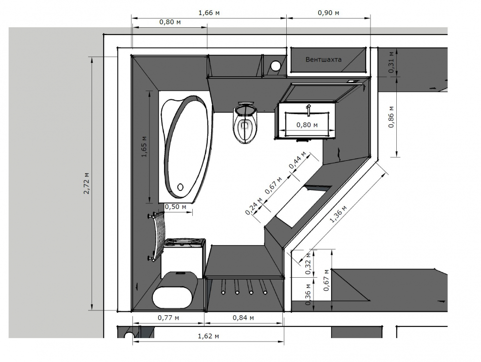
Чертеж ванной комнаты с душевой кабиной 2м на2м
Санузел 2х2,5 планировка с душевой кабиной
Санузел 4м2 планировка с душевой
Чертеж ванной комнаты с душевой кабиной 2м на2м

Санузел 2м2 планировка с душевой
Схема ванной комнаты с душевой кабиной 6м2

Чертеж ванной комнаты с душевой кабиной 2м на2м
Санузел 6м2 планировка с душевой
Планировка санузла с душевой 1.5 на 2.5
Планировка санузла 1,5 на3,5 с душевой кабиной
План размещения сантехники в ванной
Планировка санузла 1,5 на3,5 с душевой кабиной
Минимальные габариты санузла с душевой кабиной
Компактный санузел планировочные решения
Узкий санузел с душем
Ванна 2x2 с душевой кабинкой
Расстановка в маленькой ванной
Биотуалет габариты кабинки Размеры
Санузел с душевой кабиной
Ванная без ванны в стиле душевой
Ванная комната с душевой кабиной дизайн реальные
Small Bathroom Plan
Санузел 6м2 планировка
Планировки санузлов с душевой кабиной и размерами
Планировка санузла с душем и ванной 5 кв.м
Small Bathroom
Узкий санузел с душевой планировка
Схема санузла
Санузел посередине квартиры планировка
Планировка ванной комнаты 9м2
Планировка совмещенного санузла 2х3
Душевое ограждение Domani-Spa Fit
Чертеж сантехники
ASOS маленькая ванная
Ванная комната с душем планировка
Дизайн проект ванной комнаты с прачкой
Планировка ванной с душем
Компактный санузел с душевой в студии
Ванная с душевой кабинкой 2кв м
Планировка туалета с душевой Размеры
Похожие фото
↑