Уличный туалет для дачи своими руками варианты и схемы (60 фото)
Дачный туалет домиком чертежи из дерева с размерами
Дачный туалет ОСБ чертеж
Пудр-клозет что это люфт-клозет
Деревянный туалет Теремок чертежи
Туалет для дачи деревянный чертеж
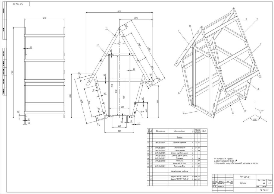
Чертеж каркаса дачного туалета
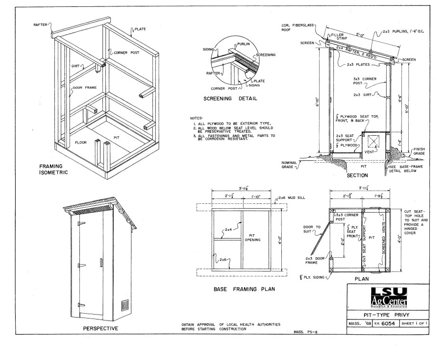
Туалетный домик для дачи
Проект чертёж хозблок туалет душевая из кирпича
Чертеж дачный туалет Теремок
Дачный туалет своими руками чертежи с размерами
Вентиляция в дачном туалете с выгребной ямой схема
Туалет Теремок
Дачный душ с раздевалкой чертежи с размерами
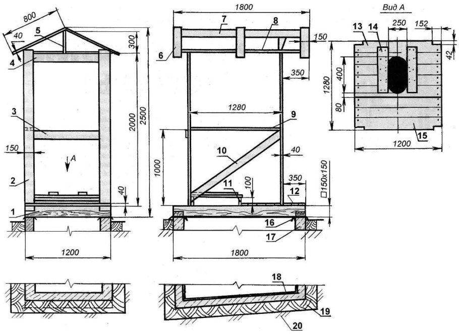
Чертёж уличного туалета с размерами
Туалет деревянный для дачи
Летний туалет
Необычный уличный туалет
Дачный туалет с душевой чертежи с размерами
Схема деревянного туалета для дачи с размерами
Туалет с хозблоком для дачи чертежи деревянный
Каркас деревянного туалета
Туалет деревянный для дачи

Туалет на дачном участке
Туалет с выгребной ямой чертеж
Дачный туалет своими руками чертежи с размерами
Габариты дачного туалета схемы чертежи
Постройка дачного туалета с выгребной ямой чертеж
Пудр-клозет чертеж
Дачный туалет схема монтажа
Каркас для дачного newfktnf
Летний душ для дачи Размеры и чертежи из дерева
Туалет - хозблок - душ №401 (размер 4-2-2.2 м)
Туалет для дачи деревянный каркас
Чертеж каркаса туалета
Уличный туалет из досок
Чертеж дачный туалет Теремок чертеж

Каркас деревянного туалета
Каркас дачного туалета
Каркас сиденья для уличного туалета с размерами
Конструкции уличных туалетов для дачи
Туалет для дачи деревянный чертеж
Пудр-клозет торфяной туалет

Туалет для дачи
Туалет с выгребной ямой чертеж
Чертеж дачный туалет Теремок

Постройка дачного туалета
Габариты дачного туалета схемы чертежи
Проект деревянного туалета для дачи с размерами
Постройка дачного туалета с выгребной ямой чертеж
Дачный туалет ромбиком чертежи

Каркас деревянного туалета
Туалет для дачи
Чертеж туалета для дачи с размерами
Чертеж каркаса дачного туалета

Габариты дачного туалета схемы чертежи

Туалет для дачи своими руками чертежи деревянный
Деревянный туалет Теремок чертежи
Вентиляция в дачном туалете с выгребной ямой
Дачный пудр клозет
Туалет дачный деревянный своими руками чертежи с размерами
Похожие фото
↑