Туалет своими руками чертежи (70 фото)
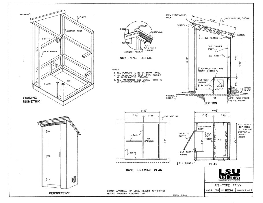
Конструкция уличного туалета с выгребной ямой схема
Чертеж туалета скворечник для дачи с размерами
Дачный туалет пудр клозет
Garden Shed чертеж
Туалет для дачи чертеж
Проект чертёж хозблок туалет душевая из кирпича
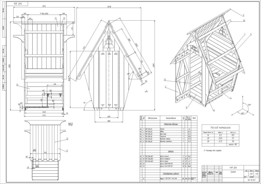
Деревянный туалет Теремок чертежи
Чертёж уличного туалета с выгребной ямой
Чертеж дачный туалет Теремок
Проект дачного туалета Теремок
Силовая рама габариты
Чертеж ванной комнаты с душевой кабиной 2м на2м
Схема дачного туалета с выгребной ямой
Минимальная ширина кабинки санузла
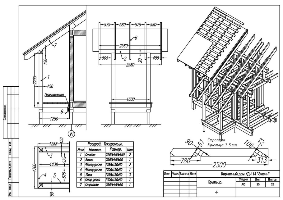
Каркас крыльца из дерева чертежи
Сарай дровяник своими руками чертежи
Чертежи туалета для дачи деревянного Теремок
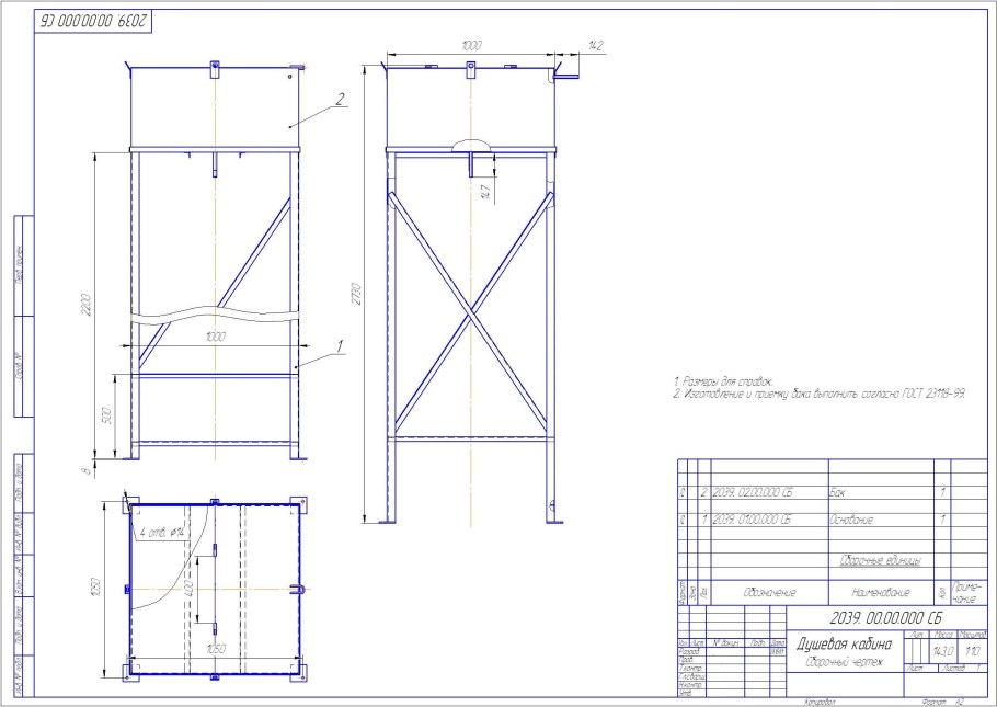
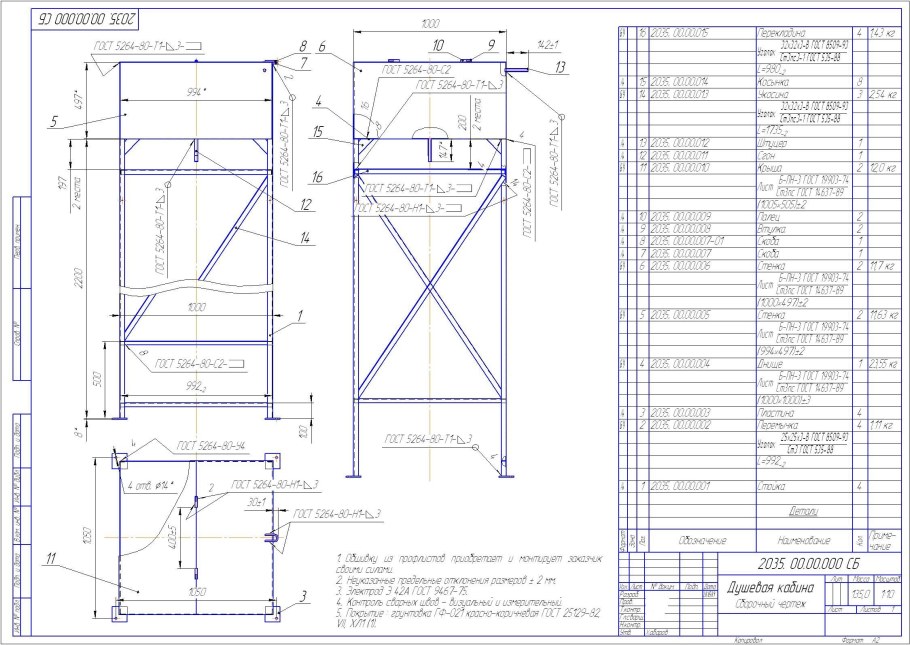
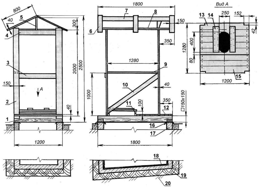
Чертеж душевой кабины для дачи из дерева своими руками
Дачный душ своими руками из профильной трубы чертежи
Чертеж дачного туалета типа шалаш
Схема сборки канализационных труб в частном доме
Пергола 3х4 чертеж
Унитаз дачный чертеж
Туалет дачный своими руками чертеж пошагово
Дачный туалет чертежи с размерами
Размеры скворечника для Скворцов чертеж
Беседка 3 на 2 с чертежами
Чертёж уличного туалета с выгребной ямой
Уличный туалет чертеж
Садовые качели из дерева чертежи с размерами
Каркас дачного туалета
Дачный туалет односкатный чертёж
Каркасный сарай 3х3 чертеж
Хозблок Keter Oakland 754
Чертеж дачный туалет Теремок чертеж
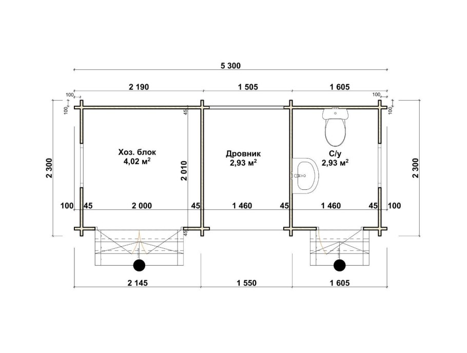
Туалет душ хозблок 3 в 1 чертежи
Размеры деревянного туалета
Туалет дачный своими руками чертеж пошагово
Построить дачный душ своими руками чертежи Размеры
Схема водопровода в бане с водонагревателем
Схема беседки из бруса 3х4
Чертёж сарая 3х4 односкатная
Хозблок 3х5 чертеж

Сарай с душем и туалетом для дачи чертежи
Дачный душ деревянный с раздевалкой чертеж
Домик для скважины чертеж с размерами
Чертеж каркаса дачного туалета
Вентиляция в выгребной яме схема
Туалет для дачи деревянный чертеж
Туалет дачный деревянный чертеж с размерами
Схема ванной комнаты с душевой кабиной 6м2
Дачный туалет своими руками чертежи с размерами
Дачный туалет с душем чертежи Размеры
Пудр-клозет для дачи чертежи
Туалет Теремок Размеры
Туалет шалаш чертежи с размерами
Чертеж дачный туалет Теремок
Хозблок 3х5 чертеж
Хозблок 2х3 чертеж односкатной
Дачный туалет схема чертеж
Схема треугольного туалета для дачи
Хоз блок душ туалет сарай 6х3
Подставка под еврокуб чертеж с размерами
Туалет для дачи с сиденьем чертеж
ТНП 304 туалет чертеж
Чертеж дачного туалета и душа с размерами
Похожие фото
↑