Порядок сборки кухонной мебели (90 фото)
Кухонный уголок Альфа схема сборки
Схема сборки верхнего кухонного шкафчика
Кухонный гарнитур Татьяна 2.0 схема сборки
Каркас кухни из ЛДСП
Схема сборки кухни София 1.6
Тумба под мойку м800 схема сборки
Тумба под мойку м800 схема сборки
Схема сборки кухонного шкафа 80
Схема сборки шкаф мойка на 500-600
Сборка кухонного гарнитура
Кухня крафт 2 м сборка схема
Схема сборки кухни Престиж угловая
Схема сборки кухонного шкафа Нижнего
Схема сборки навесного кухонного шкафа
Схема сбора кухонного гарнитура модуля
Схема сборки тумбы под духовой шкаф ШНД 600
Сборка кухонного шкафа под мойку
Схема сборки кухонных модулей
Сборка шкафов кухонного гарнитура
Схема сборки кухонного гарнитура Маша 2
Кухня Монтана 2.0 схема сборки
Сборочный чертёж корпусной мебели
Схема сборки кухонный гарнитур 2м
Кухня Белладжио 3.15 схема сборки
Кухонные шкафчики схема сборки
Схема сборки кухонной столешницы
Сборка кухонного гарнитура
Схема сборки мойки ТМ 800
Тумба под мойку м800 с цоколем схема сборки
Кухня Глетчер схема сборки угловой тумбы
Схема сборки кухонного гарнитура Венеция угловая
Кухонный гарнитур «София микс» 2 м
Тумба под мойку м800 с цоколем схема сборки
Схема сборки углового шкафа под мойку для кухни
Схема сборки углового шкафа под мойку для кухни

Сборка углового шкафа икеа метод
Тумба под мойку м800 с цоколем схема сборки
Схема сборки комода 4 ящика
Сборщик мебели
Схема сборки навесного кухонного шкафа
Сборщик кухонного гарнитура
Схема сборки кухни уют 2
Схема сборки угла кухонного гарнитура
ШНМ 600 схема сборки
Крепление столешницы кухонного гарнитура
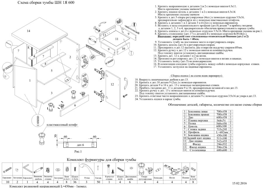
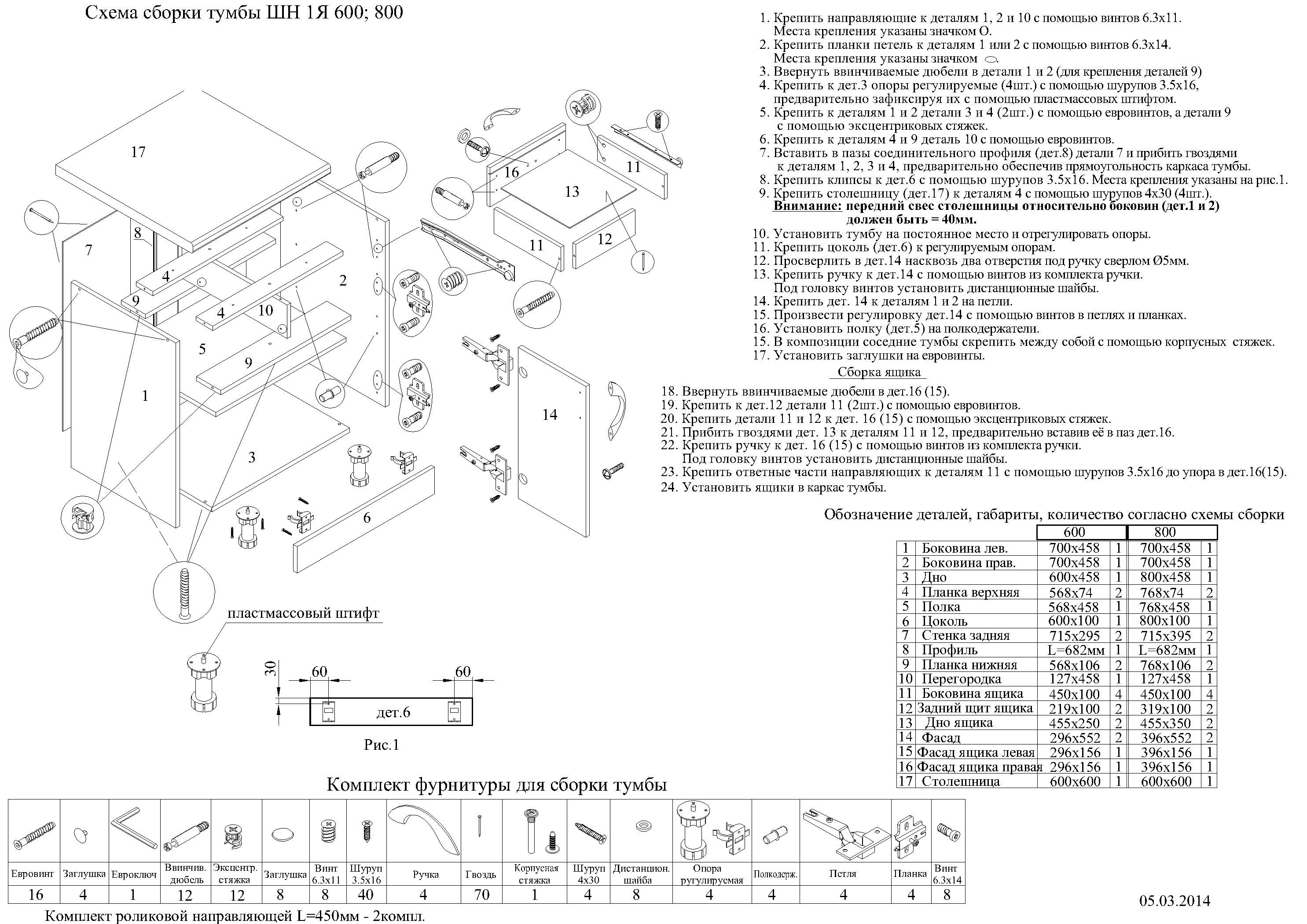
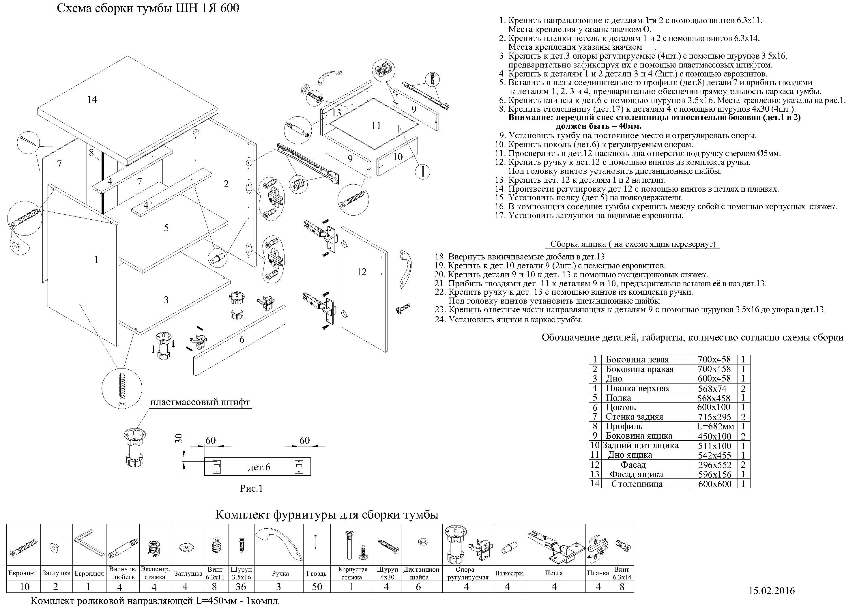
ШН 600 шкаф Нижний 600 схема сборки
Тумба под мойку м800 схема сборки
Корпус кухонного гарнитура
Инструкция сборки мойки Маша 2.0
Тумба выкатная 4 схема сборки
Тумба м3с4-620 сборка

8р2 разделочный стол с 2 ящиками схема сборки
Кухонная мебель своими руками
Кухня Татьяна 2.0 сборка инструкция по сборке
Сборка и монтаж кухонного гарнитура
Кухня «Ксения» - шкаф Нижний угловой стыковочный шну 1000
Сборка мебели
Схема сборки угловых кухонных модулей
Сборка кухонного гарнитура
Тумба прикроватная Октава схема сборки
Монтаж угловой кухни
Сборщик кухни
Дизайн кухни своими руками
Схема сбора кухни
ШН 800 схема сборки
Приспособления для кухни
Кухня Татьяна 2.0м ясень темный/светлый
Тумба METOD ikea
Навески для кухонных шкафов чертежи
Кухня Татьяна 2.0 сборка инструкция по сборке
Каркас для сборки кухонных ящиков
Сборка мебели
Шкаф купе Dolap схема сборки
Кухня София 2.1 инструкция по сборке
Каркас напольный Delinia ID 100x76.8x56 см
Сборщик кухонного гарнитура
Монтаж встраиваемого духового шкафа
Кухонный гарнитур интерьер-центр Маша 2.0 м
Сборка угловой кухни Леруа Мерлен
Самодельная кухонная мебель
Разобрать кухонный гарнитур
Шкаф Мори МШ 1200.1 схема сборки
Каркас кухонного гарнитура
Крепление мойки к столешнице
Сборочный чертеж мебельный
Икеа метод каркасы шкафов кухонных
Сборка шкафов кухонного гарнитура
Сборка кухонных ящиков икеа rationell
Похожие фото
↑