Высота кухонного гарнитура от столешницы до навесных шкафов (63 фото)
Стандартная высота верхних кухонных шкафов Селена 205
Шаблон выбора фасадов кухни
Высота кухонной столешницы стандарт для кухни
Эргономика рабочего места на кухне
Эргономика кухни высота вытяжки
Эргономика кухни высота рабочей поверхности
Эргономика кухни высота вытяжки
Высота кухни от пола до столешницы стандарт
Высота кухонного гарнитура от пола со столешницей стандарт
Эргономика кухни высота столешницы
Кухня 2м фасада ЛДСП С закрытыми ящиками врезная мойка
Стандартные Верхние шкафы кухонного гарнитура
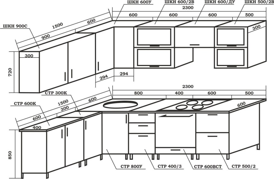
Кухонный гарнитур угловой 1500 на 1200
Как рассчитать размер кухонного фасада
Высота вытяжки над столешницей
Эргономика кухни высота вытяжки
Высота установки навесных кухонных шкафов
Отступ от стены кухонного гарнитура
Схема монтажа модульной детской мебели киви
Высота кухонной столешницы эргономика
Высота кухни от пола со столешницей стандартная высота
Kitchen Set Size
Высота кухонного гарнитура эргономика
Кухонная столешница Размеры стандарт
Эргономика кухонных шкафов
Высота столешницы на кухне стандарт
Эргономика шкафов на кухне
Кухонный гарнитур высота от пола до столешницы
Размер кухонных шкафов стандарты ширина
Высота кухонной столешницы 950мм
Высота кухонной столешницы стандарт для кухни от пола
Расстояние от столешницы до навесных шкафов на кухне стандарт
Кухонный гарнитур Сан-Ремо
Кухня Тристан хофф
Не подошли Размеры ? Кухни
Высота кухонной столешницы эргономика
Высота столешницы для ребенка
Высота кухонных шкафов навесных
Высота столешницы на кухне
Кухонная столешница Размеры стандарт
Высота столешницы кухонного гарнитура стандарт для кухни от пола
Стандартные Размеры столешницы для кухни
Высота кухни от пола со столешницей стандартная высота
Высота верхних шкафов от столешницы
Высота кухонной столешницы стандарт для кухни 80
Стандартная высота фартука на кухне
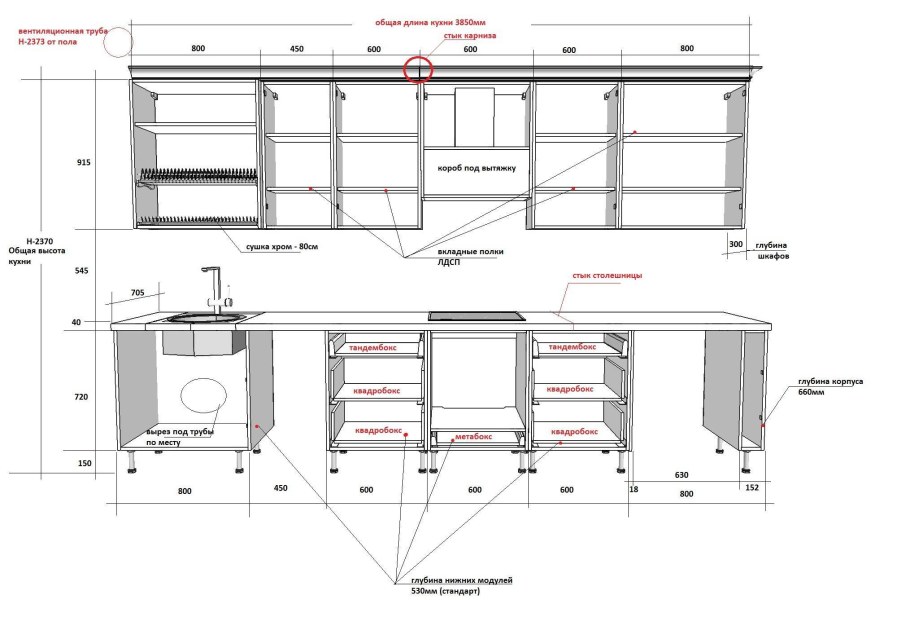
Кухонная мебель составные части
Расстояние от мойки до плиты
Кухня икеа высота кухни
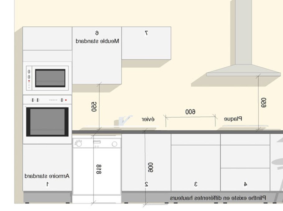
Чертеж современной кухни
Кухня Велес модули
Высота навешивания кухонных шкафов
Проект кухни 3100мм 1000мм
Стандартная ширина кухонного гарнитура схема
Стандартная высота верхних кухонных шкафов Селена 205
Высота кухонной столешницы стандарт для кухни
Глубина верхних кухонных шкафов икеа
Ширина столешницы для кухни

Высота кухонного фартука стандарт
Высота верхних шкафов кухни стандарт от столешницы
Похожие фото
↑