Двушка в девятиэтажке планировка дизайн (71 фото)
Двушка в девятиэтажке — это отличный вариант для тех, кто ищет уютное и функциональное жилье. Планировка таких квартир обычно включает две комнаты, которые могут быть использованы как спальня и гостиная, или же обе комнаты могут служить для отдыха. Просторный коридор соединяет все зоны, создавая комфортное движение по квартире. Нередко в таких планировках предусмотрены небольшие кладовки или встроенные шкафы, что особенно удобно для хранения вещей.
Дизайн двушки в девятиэтажке может варьироваться в зависимости от предпочтений владельца. Многие выбирают светлые тона для стен, что визуально увеличивает пространство и делает его более светлым. Мебель, как правило, должна быть функциональной и стильной. Использование многофункциональных предметов, таких как раскладные диваны или столы, позволяет эффективно использовать каждый квадратный метр. Важно учитывать и освещение: большие окна наполняют комнаты естественным светом, а правильно подобранные источники света создают уютную атмосферу.
Создание гармоничного пространства в двушке требует тщательного подхода к выбору отделки и мебели. Использование текстурных материалов, таких как дерево или текстиль, добавляет warmth и уникальности. Кроме того, акцент на детали, такие как картины или декоративные элементы, может сделать интерьер более индивидуальным. Важно не забывать о функциональности: каждая деталь должна служить своей цели, а пространство должно быть удобным для жизни. В итоге, двушка в девятиэтажке может стать не просто квартирой, а настоящим домом, где комфорт и стиль идут рука об руку.
Планировка двушки в панельном доме
Пепрпланировка однокомнатной кв
Планировка двушки
Интерьер кухни в панельном доме
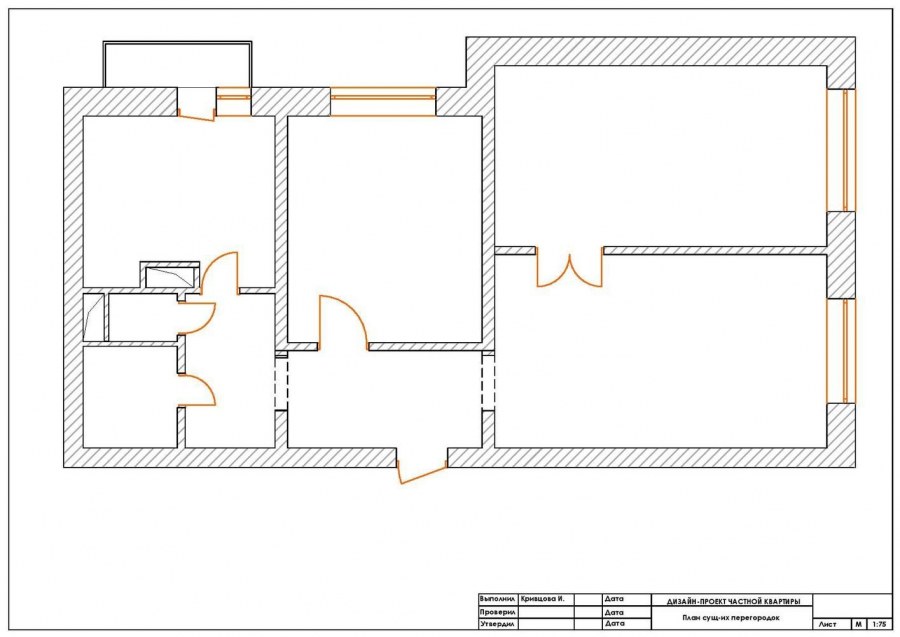
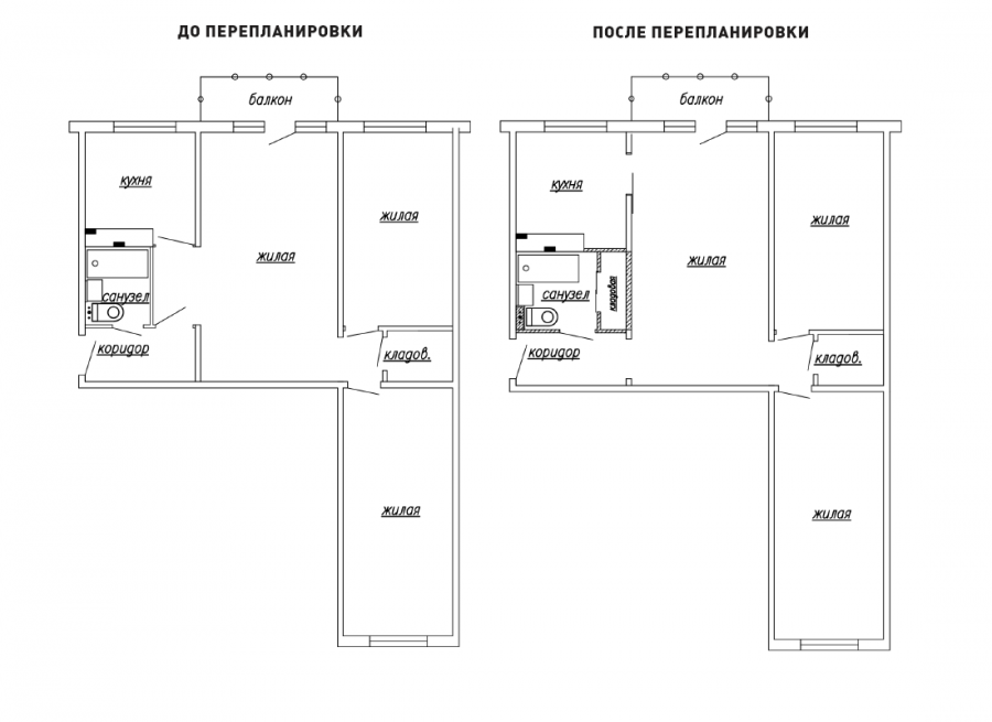
План перепланировки однокомнатной квартиры хрущевки
Спальня в панельном доме
Перепланировка кухня гостиная
Двушка в панельке планировка
2х комнатная хрущевка планировка 44м2 перепланировка
Спальня в двушке в панельном доме
Перепланировки трёшки п-49д
Планировка панельной двушки
Схема 2-х комнатной квартиры в панельном доме
Спальня в двухкомнатной хрущевке
Кухня в трехкомнатной квартире
Планировка однокомнатной квартиры в панельном доме
П3 планировка двушки
Перепланировка линейной двушки 50кв
Перепланировка 1 комнатной квартиры хрущевки 30 кв.м
П44 двушка линейка планировка
Интерьер гостиной в чешке
Прихожая в двухкомнатной хрущевке
Планировка в однушке
Планировка однушки 38 кв
Интерьер зала в трехкомнатной квартире
Планировка 1 комнатной квартиры
Перепланировка п3 двухкомнатная

Перепланировка трехкомнатной хрущевки 56 м.кв
Перепланировка 1 комнатной квартиры в панельном доме
Кухня в панельном доме
План двухкомнатной квартиры

Перепланировка хрущевки 45 кв.м
Перепланировка в 3х комнатной квартире панельного дома примеры
Трешка в панельном доме планировка
Планировка 3к кв 137 серия
Перепланировка трехкомнатной хрущевки проекты
Планировка кухни в панельном доме
Двушка малогабаритка 35 кв планировка
Кухня гостиная в панельном доме
Трешки в домах п44
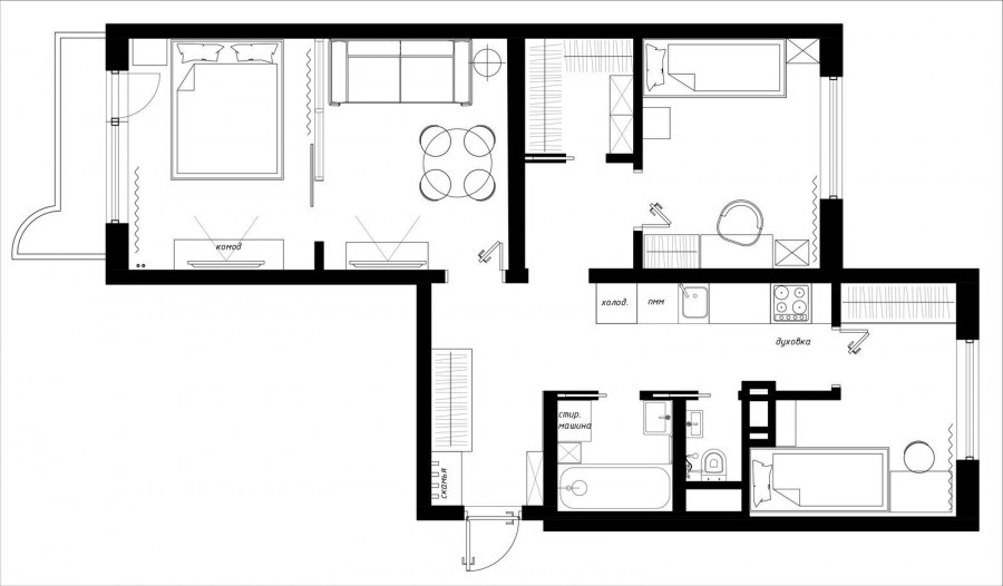
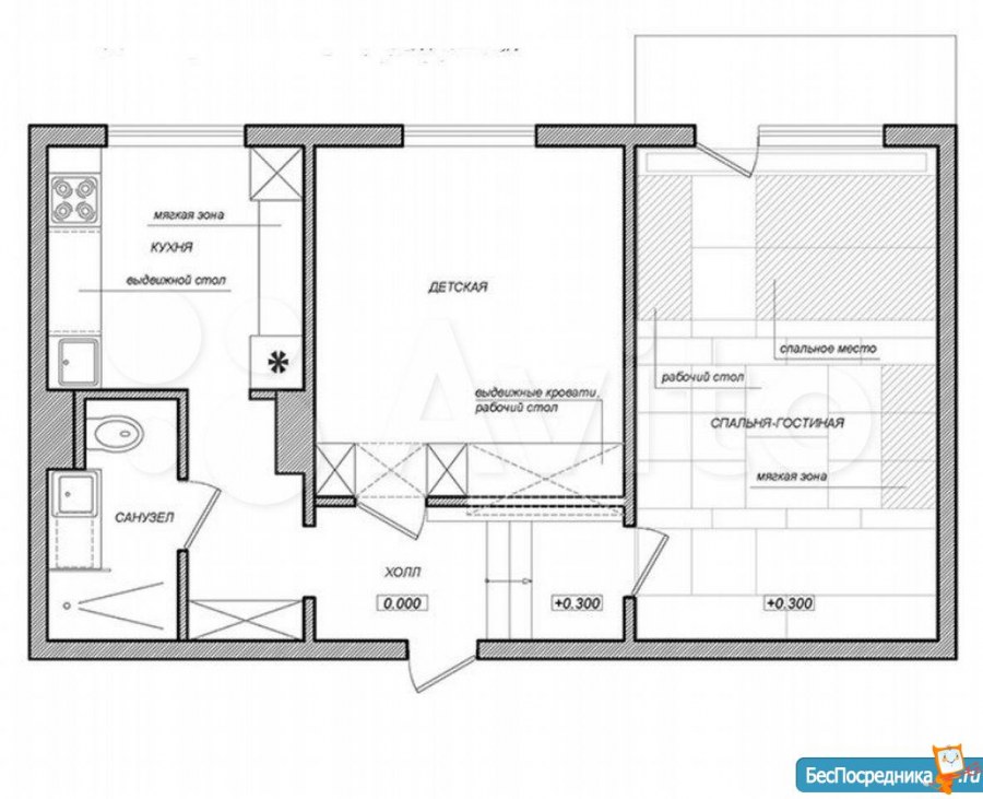
План двухкомнатной квартиры для семьи с ребенком
Интерьер кухни в 9 этажном панельном доме
Квартира 30 кв м в панельном доме
Планировка однокомнатной хрущевки 30 кв.м
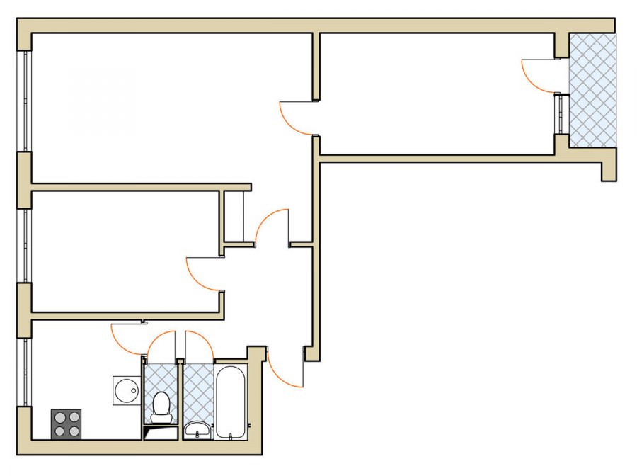
Перепланировка 2-х комнатной квартиры
Проект п3 квартира двухкомнатная
Перепланировка хрущевки 1-335
Перепланировка линейной двушки 50кв
Интерьер трехкомнатной квартиры
Интерьер трехкомнатной квартиры
Планировка квартиры п44т двушка
Перепланировка хрущевки 1 комнатной 28 кв.м
Дизайн трехкомнатной квартиры в панельном доме
Планировка однокомнатной хрущевки 30 кв.м
Планировка кухни п3
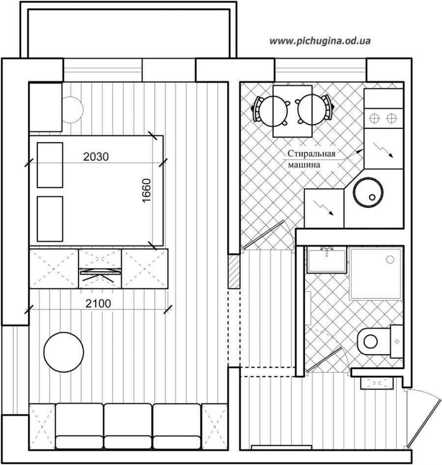
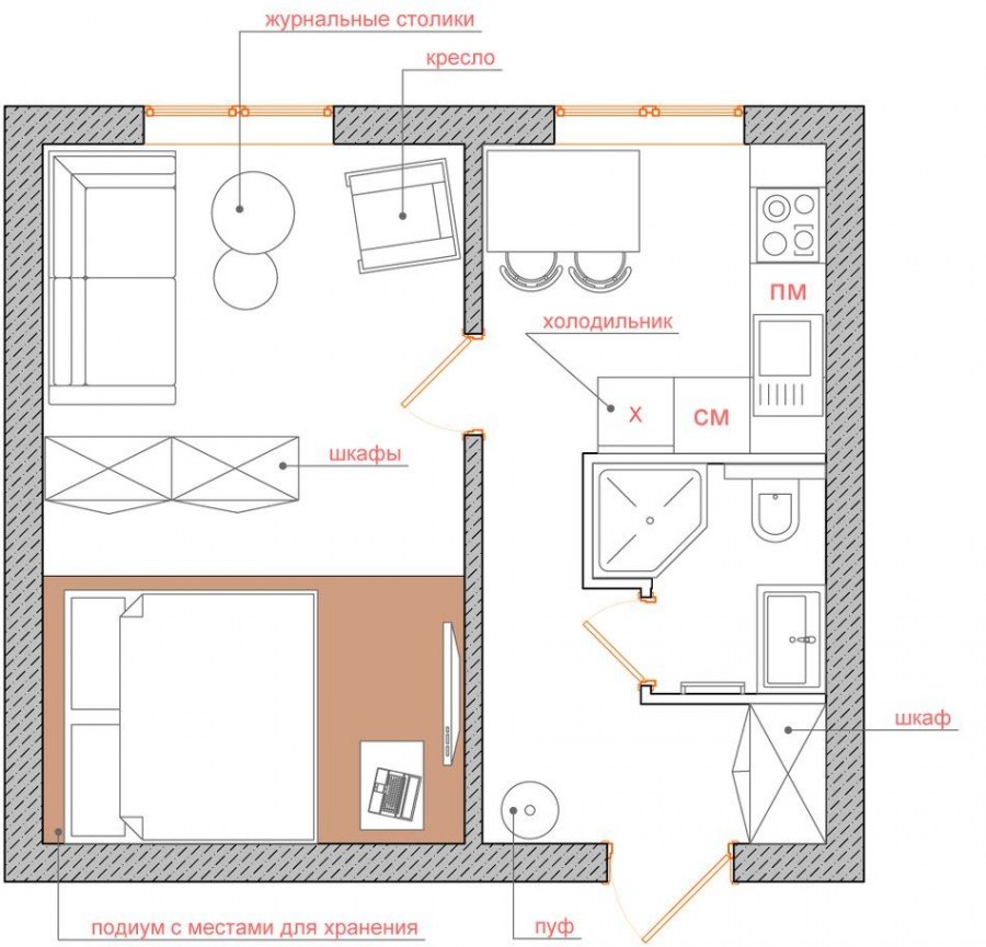
Планировка студии 36 м2
Дизайнерская планировка двухкомнатной квартиры
1605 Ам планировка трешки
Проект двухкомнатной квартиры
Планировка квартиры студии 30 кв.м
Перепланировка двушки п3м
Перепланировка трехкомнатной хрущевки 56 м.кв
Интерьер двухкомнатной квартиры 65 кв.м
Кухня гостиная 43 кв м
Перепланировка трехкомнатной квартиры в панельном доме 9 этажей
Перепланировка кухни в хрущевке
Интерьер комнаты в панельном доме
II 29 перепланировка двухкомнатной
Похожие фото
↑