Однокомнатная кпд квартира в хрущевке (31 фото)
Переделка однушки
Гостиная комната в хрущевке в серых тонах
Мария Дадиани дизайнер
Перепланировка в однокомнатной хрущевке

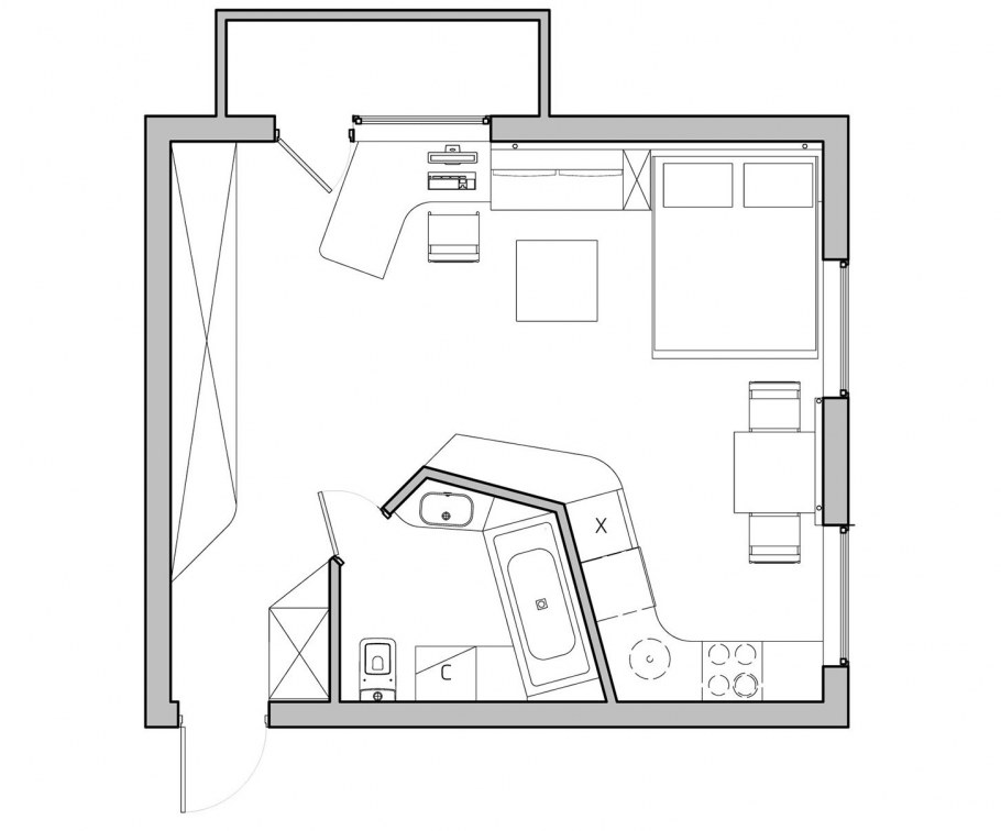
Планировка однушки студии 30 м кв
Однокомнатная квартира для молодых людей
Квартиру КПД В Якутске
Дизайн квартиры КПД Якутск
План однокомнатной хрущевки 30 кв.м
Планировка однушки хрущевки 30 кв.м
Хрущёвка 2 комнатная в стиле минимализма
Интерьер КПД квартиры 3 комнатной
Двухкомнатная квартира на автозаводе
План однокомнатной хрущёвки
Хрущевка на Таганке
Интерьер стандартного зала квартиры
Планировка хрущевки 30 м2
Планировка однокомнатной хрущевки 30 кв.м
Перепланировка однокомнатной квартиры студии в хрущевке схема
Интерьер зала в хрущевке с балконом 18 кв.м с 2 входами в спальни
Современный интерьер хрущевки
Планировка 1 комнатной хрущевки
Перепланировка квартиры в пятиэтажке 1 комнатная
Фото 1 ком квартиры хрущевки
Интерьер однушки 30кв м
КПД евроремонт
Республики 188/6 Тюмень
Квартира в панельном доме без ремонта
Гостиная в трехкомнатной квартире
Похожие фото
↑