Планировка двушки в панельном доме (20 фото)

Планировка двушки в панельном доме — аспект, влияющий на комфорт и функциональность жилого пространства. Обычно такие квартиры имеют две комнаты, которые могут быть использованы как спальня и гостиная. Одна из ключевых особенностей планировки заключается в том, что комнаты могут быть изолированными или смежными. Изолированные комнаты обеспечивают большую приватность, тогда как смежные могут создавать ощущение единого пространства.

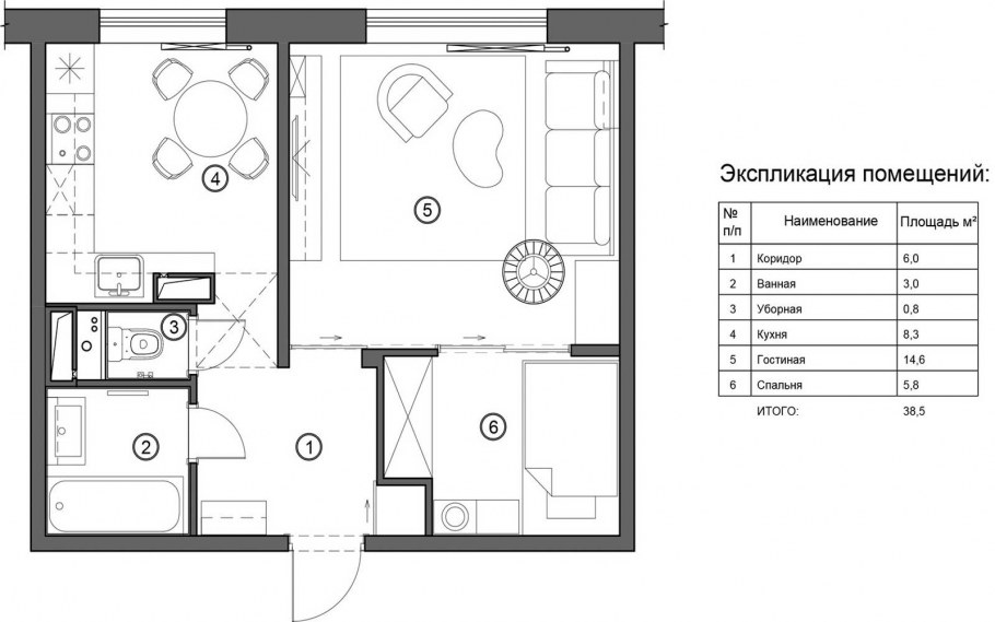
Планировка двушки
Планировка двушки


При выборе планировки стоит учитывать, как будет организовано движение по квартире. Хорошо спланированная двушка должна обеспечивать легкий доступ ко всем помещениям. Кухня часто располагается рядом с гостиной, что облегчает приготовление еды и прием гостей. Также важно, чтобы в квартире было достаточно мест для хранения вещей. Это могут быть встроенные шкафы или кладовки, которые помогают поддерживать порядок и создают уютную атмосферу.

Планировка
Планировка


Не менее значимым является и освещение в квартире. Окна в обеих комнатах должны обеспечивать достаточное количество солнечного света в течение дня. Правильное размещение мебели и использование светлых оттенков в интерьере помогут визуально увеличить пространство и сделать его более уютным. В итоге, грамотная планировка двушки в панельном доме способствует созданию комфортного и функционального жилого пространства, отвечающего потребностям его обитателей.

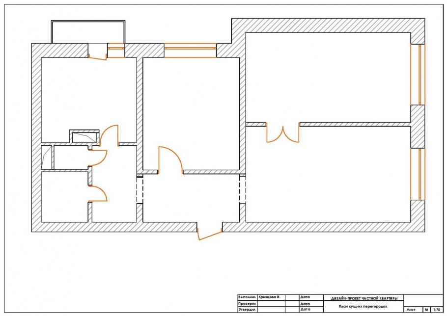
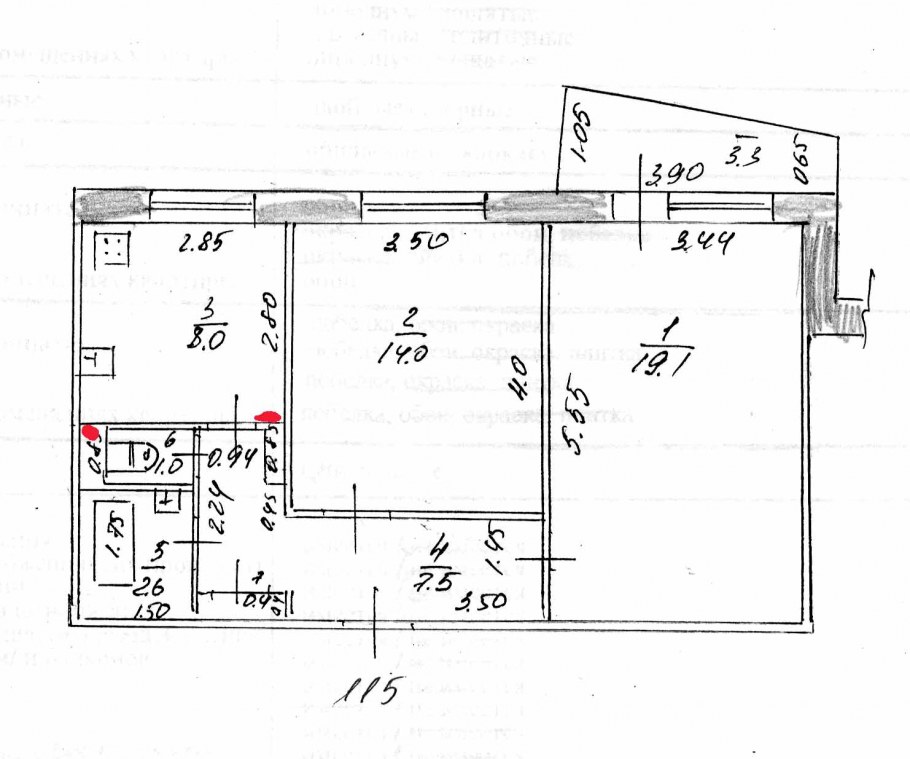
Хрущёвка перепланировка 44м
Хрущёвка перепланировка 44м


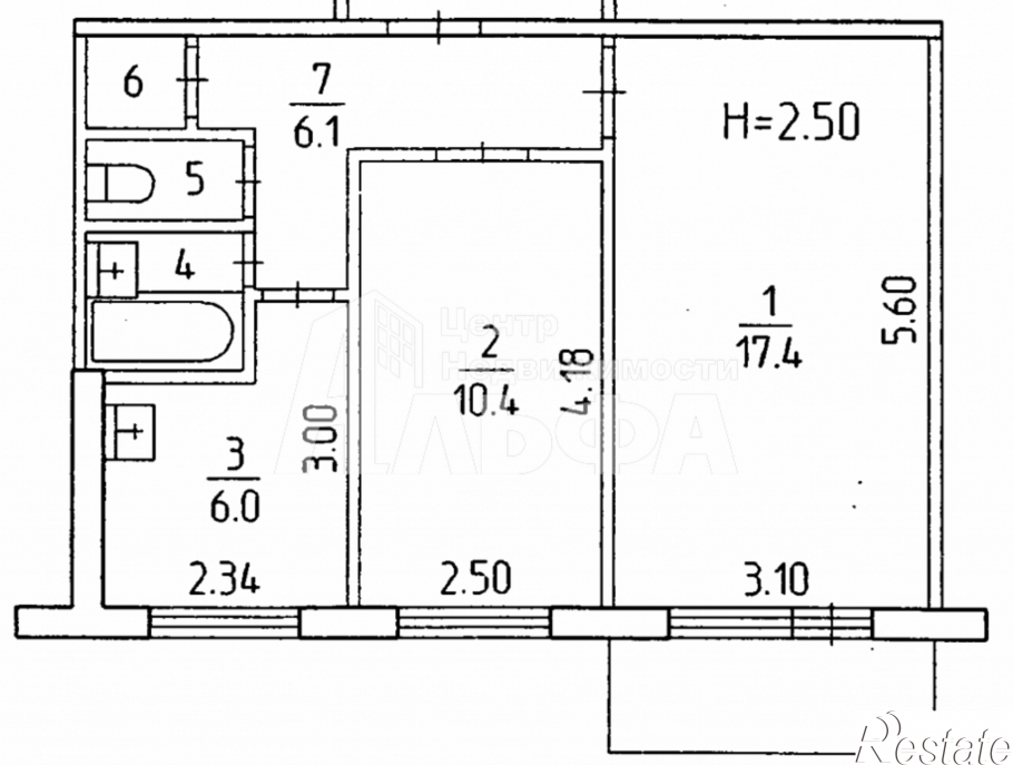
Планировка двухкомнатной квартиры в панельном доме
Планировка двухкомнатной квартиры в панельном доме

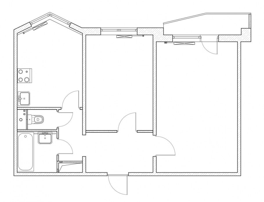
Евродвушка 45 кв м
Евродвушка 45 кв м

Планировка 2 комнатной квартиры в панельном доме
Планировка 2 комнатной квартиры в панельном доме

Схема 2-х комнатной квартиры в панельном доме
Схема 2-х комнатной квартиры в панельном доме

Перепланировка однокомнатной квартиры в двухкомнатную 48 кв.м
Перепланировка однокомнатной квартиры в двухкомнатную 48 кв.м

Планировка 1 комнатной квартиры с размерами
Планировка 1 комнатной квартиры с размерами

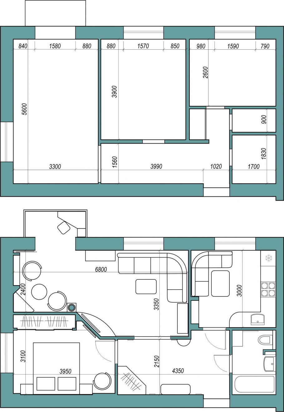
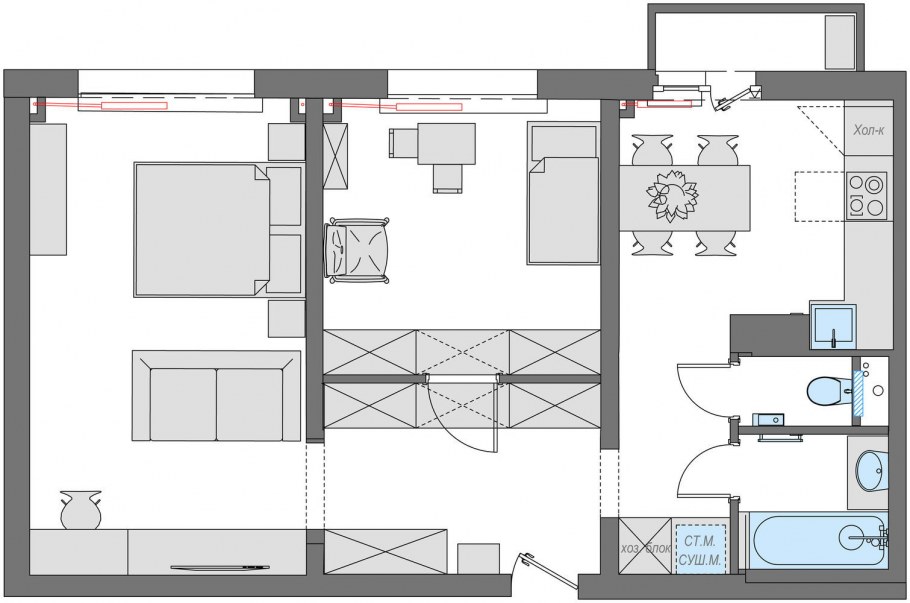
План расстановки мебели в двухкомнатной квартире
План расстановки мебели в двухкомнатной квартире

Проект двухкомнатной квартиры 50 м2
Проект двухкомнатной квартиры 50 м2

Схема 2-х комнатной квартиры в панельном доме
Схема 2-х комнатной квартиры в панельном доме

План 2 квартиры в панельном доме
План 2 квартиры в панельном доме

Планировка квартиры п44 однушка
Планировка квартиры п44 однушка

Перепланировка панельной двушки
Перепланировка панельной двушки

Планировки советских квартир
Планировки советских квартир

Перепланировка трехкомнатной квартиры п42
Перепланировка трехкомнатной квартиры п42

Планировка двухкомнатных квартир в панельных домах 9 этажей
Планировка двухкомнатных квартир в панельных домах 9 этажей

Планировка 2 комнатной квартиры в панельном доме 5 этажей
Планировка 2 комнатной квартиры в панельном доме 5 этажей

П3м перепланировка 1 комнатной квартиры
П3м перепланировка 1 комнатной квартиры

  • Просмотров: 10 822
  • Добавлено: 29 ноябрь
Категории: ---
Комментарии (0)
Кликните на изображение чтобы обновить код, если он неразборчив
Похожие фото