Привязка сантехники в дизайн проекте (64 фото)

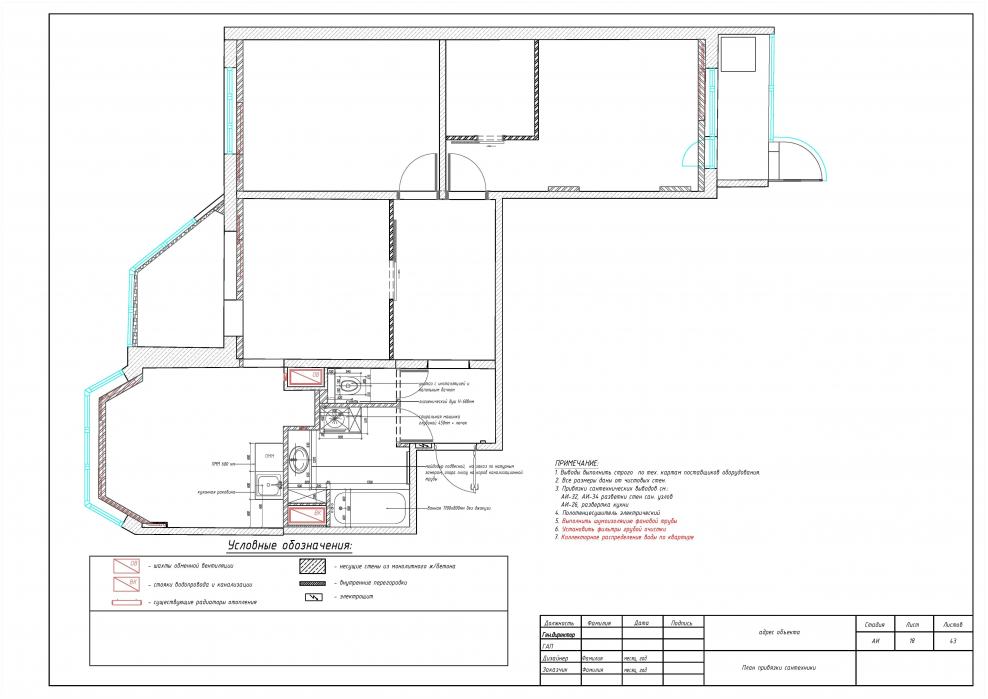
Привязка сантехники является важной частью любого дизайн-проекта, будь то квартира, дом или коммерческое помещение. От правильного расположения сантехнических узлов зависит не только функциональность пространства, но и его эстетика. Дизайнеры уделяют этой задаче особое внимание, чтобы объединить удобство и стиль в одном решении.

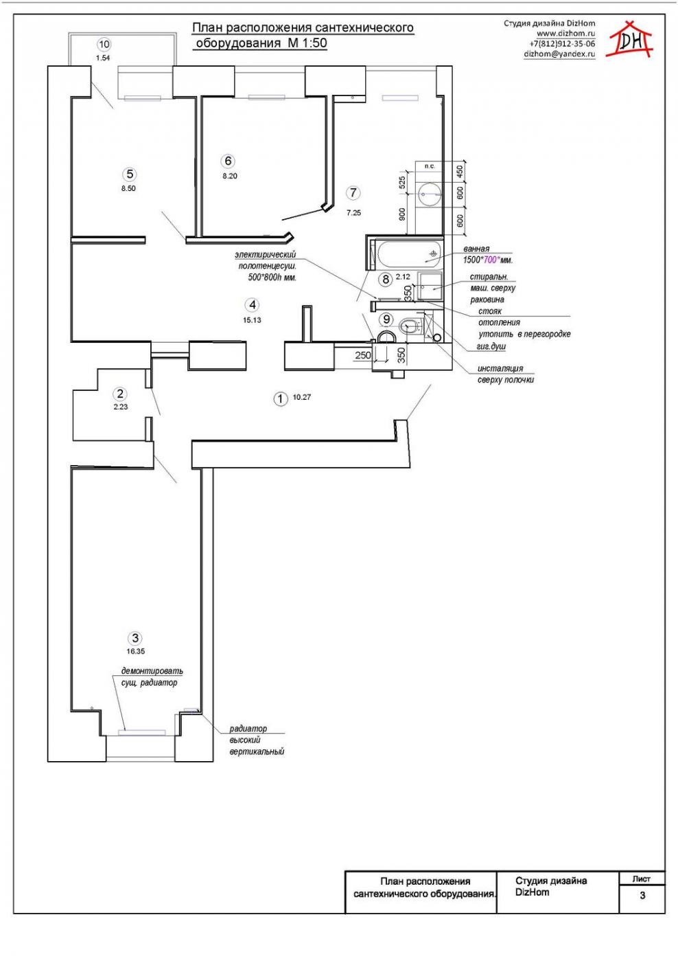
План расположения сантехнических приборов
План расположения сантехнических приборов


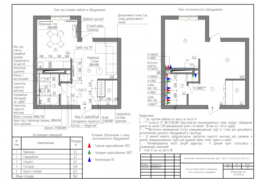
Одним из положительных примеров можно считать проект ванной комнаты, где сантехника гармонично вписывается в общий интерьер. Например, использование подвесного унитаза и встроенных смесителей позволяет не только сэкономить пространство, но и создать ощущение легкости и современности. Благодаря привязке коммуникаций к заранее продуманным точкам, такие решения становятся возможными без лишних сложностей.

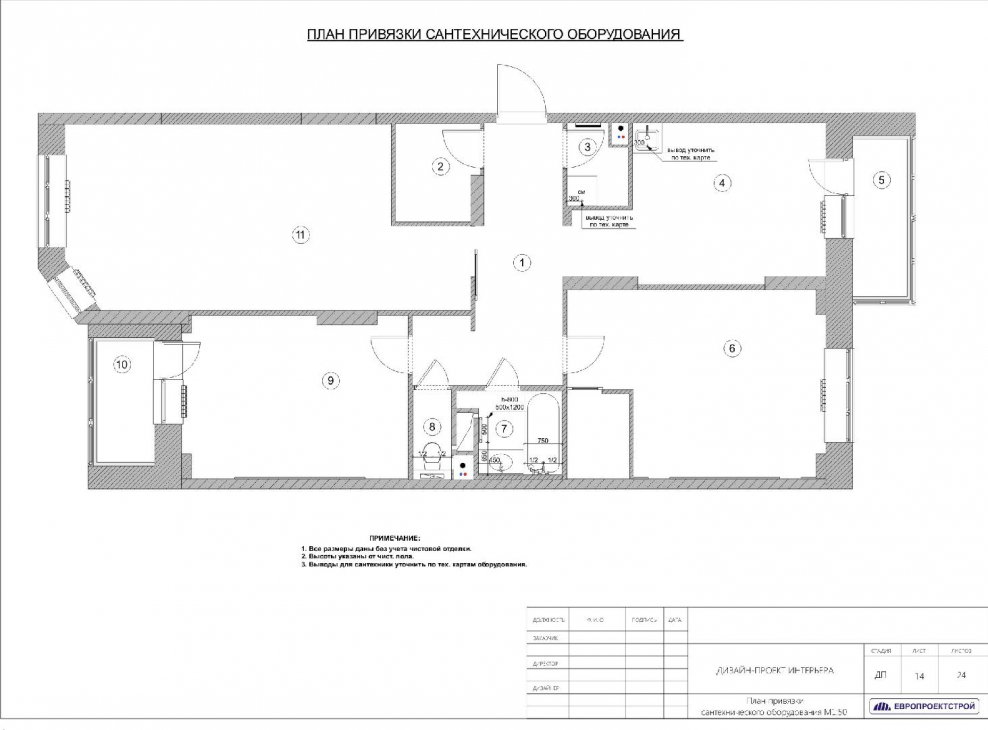
Привязка сантехнического оборудования чертеж
Привязка сантехнического оборудования чертеж


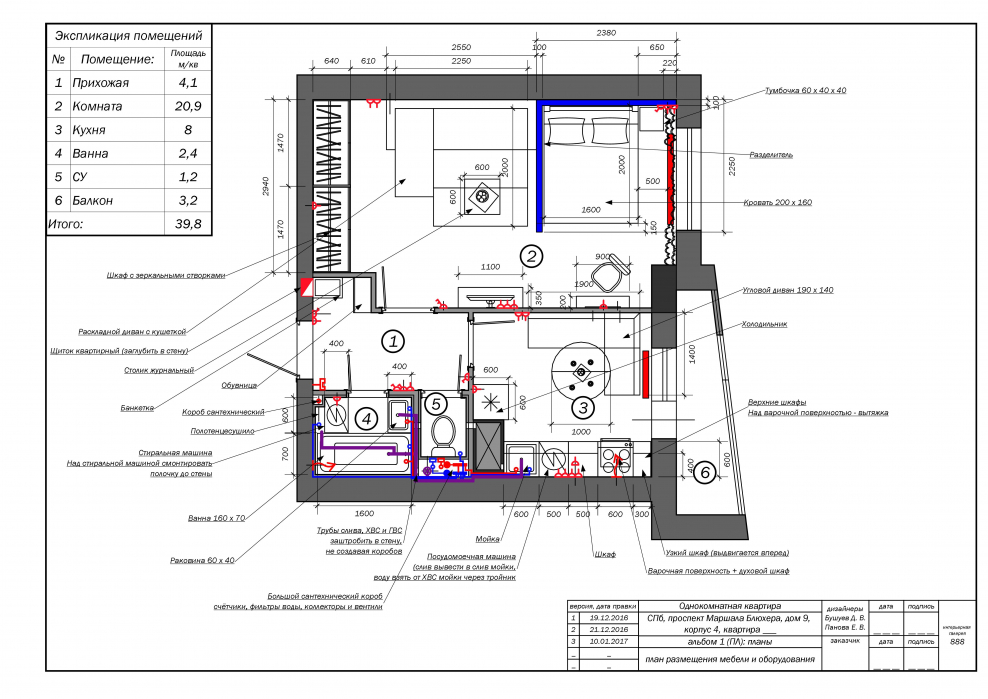
В кухне привязка сантехники играет ключевую роль для организации рабочего пространства. Для удобства использования раковина часто размещается рядом с посудомоечной машиной, а смеситель выбирается с учетом эргономики. Удачный пример — проект, в котором раковина расположена у окна, что не только делает процесс готовки приятнее, но и позволяет максимально эффективно использовать естественное освещение.

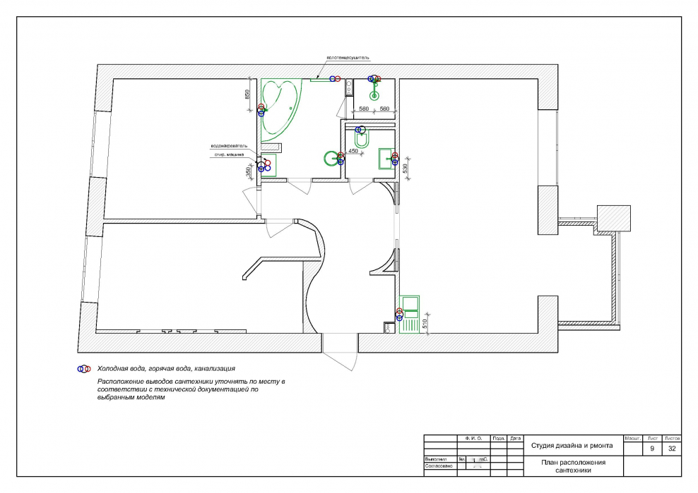
План расположения сантехнических приборов
План расположения сантехнических приборов


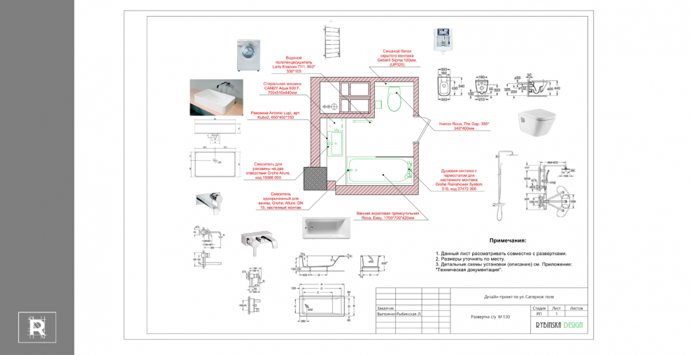
В современных проектах также большое внимание уделяется скрытым системам, которые делают интерьер более лаконичным. Например, ванных комнатах часто используют скрытые инсталляции, которые позволяют спрятать трубы и коммуникации за отделкой. Это решение создаёт ощущение минимализма и аккуратности, что особенно важно для небольших помещений.

Что такое план привязок сантехнического
Что такое план привязок сантехнического


Таким образом, грамотная привязка сантехники — это не только технический аспект, но и возможность сделать пространство более комфортным и функциональным. Важно помнить, что каждая деталь, будь то расположение раковины или выбор смесителя, влияет на общий результат. Хорошо спланированный проект всегда вдохновляет своей продуманностью и гармонией!

Схема привязки сантехнического оборудования
Схема привязки сантехнического оборудования


Привязка унитаза чертеж
Привязка унитаза чертеж

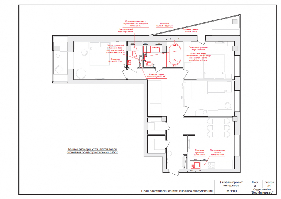
План расстановки сантехнического оборудования
План расстановки сантехнического оборудования

План привязки сантехнического оборудования
План привязки сантехнического оборудования

План сантехники чертежи
План сантехники чертежи

Схема подключения сантехнического оборудования
Схема подключения сантехнического оборудования

Что такое план привязок сантехнического
Что такое план привязок сантехнического

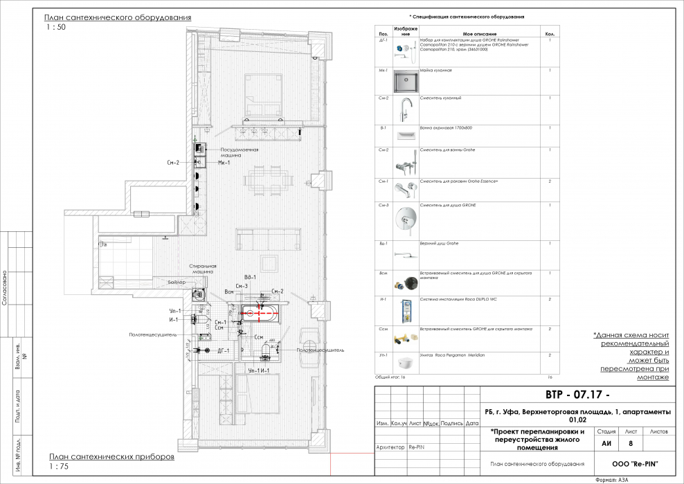
План сантехнического оборудования
План сантехнического оборудования

План привязки санитарно-технического оборудования
План привязки санитарно-технического оборудования

План расположения сантехнического оборудования с привязками
План расположения сантехнического оборудования с привязками

Схема установки сантехнического оборудования
Схема установки сантехнического оборудования

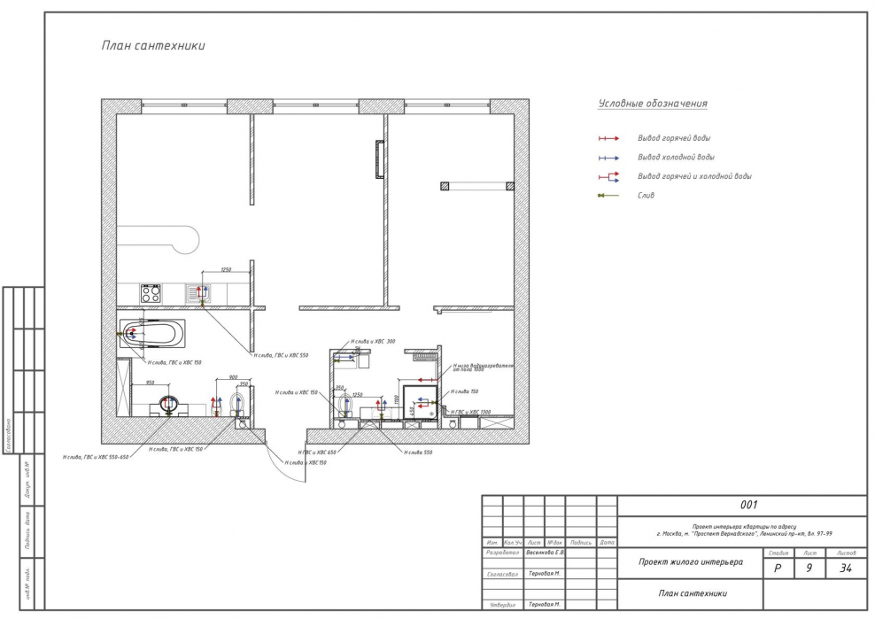
План сантехники
План сантехники

План сантехники в дизайн проекте
План сантехники в дизайн проекте

Схема подключения сантехнического оборудования
Схема подключения сантехнического оборудования

Схема установки сантехнического оборудования
Схема установки сантехнического оборудования

Сантехническое оборудование на чертежах
Сантехническое оборудование на чертежах

План сантехники в дизайн проекте
План сантехники в дизайн проекте

Чертеж выводов сантехнических
Чертеж выводов сантехнических

План размещения сантехнических приборов
План размещения сантехнических приборов

Привязка сантехнического оборудования чертеж
Привязка сантехнического оборудования чертеж

Привязка сантехнического оборудования чертеж
Привязка сантехнического оборудования чертеж

План привязки сантехники в дизайн проекте
План привязки сантехники в дизайн проекте

Сантехнический короб на плане
Сантехнический короб на плане

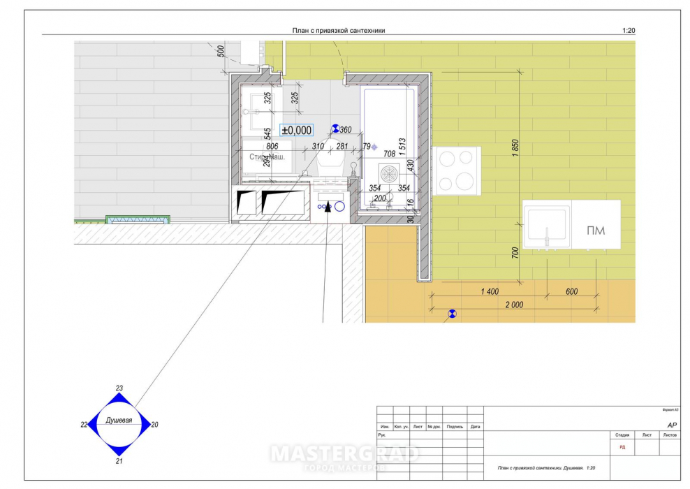
Сантехнические привязки душевой на плане
Сантехнические привязки душевой на плане

План привязки сантехнического оборудования
План привязки сантехнического оборудования

План привязки сантехники в дизайн проекте
План привязки сантехники в дизайн проекте

План расстановки сантехники
План расстановки сантехники

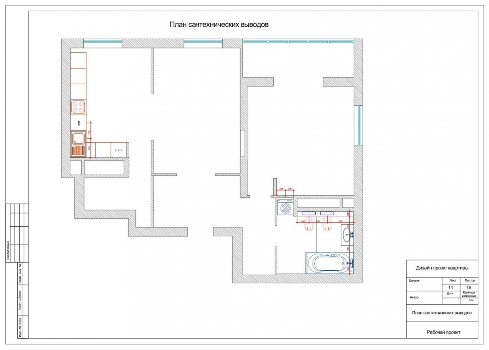
План сантехнических выводов
План сантехнических выводов

План сантехнических коммуникаций
План сантехнических коммуникаций

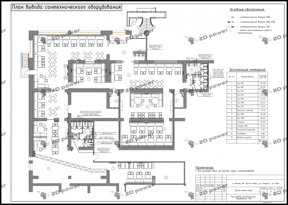
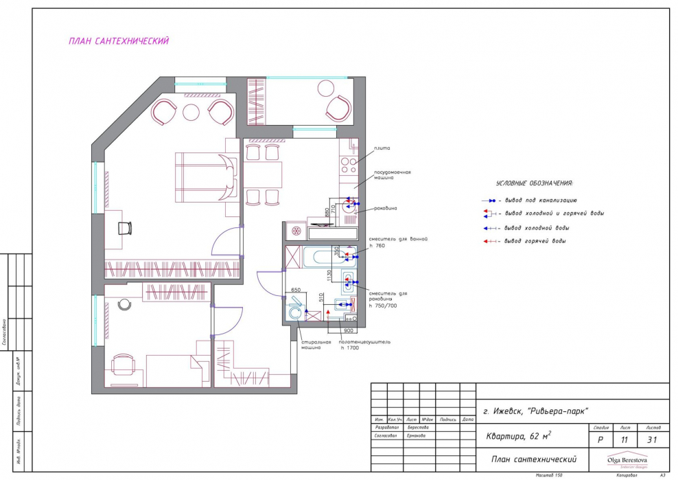
Схема расположения выводов водоснабжения и канализации
Схема расположения выводов водоснабжения и канализации

План размещения сантехнического оборудования с привязкой
План размещения сантехнического оборудования с привязкой

Обозначение бойлера на чертежах
Обозначение бойлера на чертежах

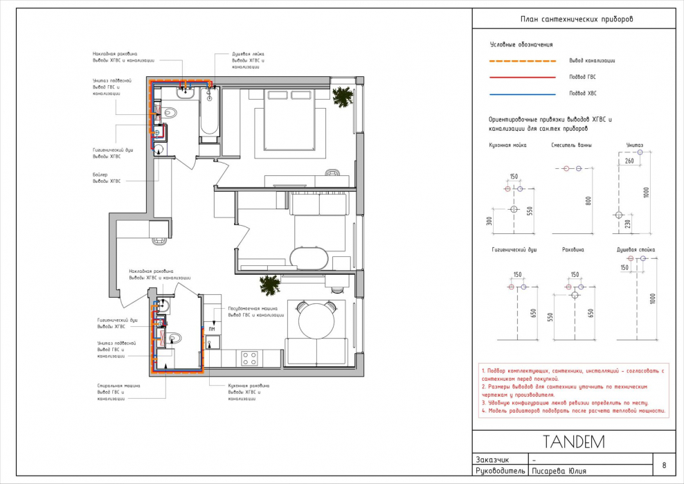
Схема размещения сантехнических приборов
Схема размещения сантехнических приборов

План сантехники
План сантехники

План выводов сантехнического оборудования
План выводов сантехнического оборудования

Схема расположения сантехнического оборудования чертеж
Схема расположения сантехнического оборудования чертеж

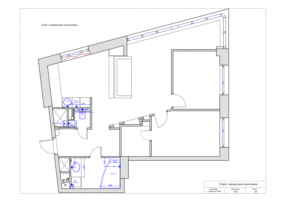
Подвод воды на плане
Подвод воды на плане

План квартиры чертеж сантехника
План квартиры чертеж сантехника

Сантехнический план в дизайн проекте
Сантехнический план в дизайн проекте

Привязка сантехнического оборудования
Привязка сантехнического оборудования

План расстановки сантехники
План расстановки сантехники

План сантехники в квартире
План сантехники в квартире

План привязки сантехнического оборудования
План привязки сантехнического оборудования

Схема привязки сантехнического оборудования
Схема привязки сантехнического оборудования

План расстановки сантехнического оборудования
План расстановки сантехнического оборудования

План привязки оборудования
План привязки оборудования

Схема установки сантехнического оборудования
Схема установки сантехнического оборудования

План привязки сантехнического оборудования
План привязки сантехнического оборудования

Привязки оборудования в проекте
Привязки оборудования в проекте

План сантехнических выводов
План сантехнических выводов

Чертеж выводов сантехнических
Чертеж выводов сантехнических

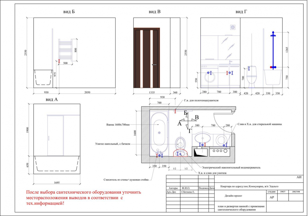
Санузел МГН развертки стен чертеж
Санузел МГН развертки стен чертеж

План сантехники в дизайн проекте
План сантехники в дизайн проекте

Развертка сантехнического оборудования
Развертка сантехнического оборудования

План привязки сантехнического оборудования
План привязки сантехнического оборудования

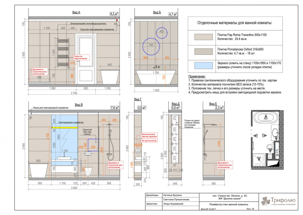
Развертка стен санузла чертеж
Развертка стен санузла чертеж

План размещения сантехнических приборов
План размещения сантехнических приборов

План привязки сантехнических выпусков
План привязки сантехнических выпусков

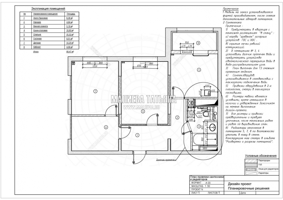
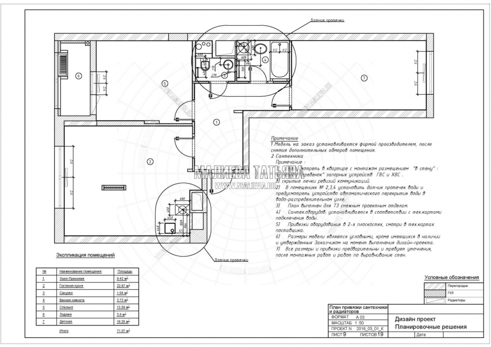
Защита от протечек на чертежах
Защита от протечек на чертежах

План установки сантехнического оборудования
План установки сантехнического оборудования

  • Просмотров: 10 247
  • Добавлено: 05 февраль
Категории: Дизайн
Комментарии (0)
Кликните на изображение чтобы обновить код, если он неразборчив
Похожие фото