Нормы для сауны в доме (78 фото)

Сауна в доме — это не просто дополнение к быту, а продуманная зона отдыха, где каждая деталь должна отвечать как эстетике, так и техническим нормам. В частном доме реализовать такой проект проще, чем в квартире, но и здесь нельзя пренебрегать требованиями безопасности, вентиляции и пожарной защиты. Удачный пример — загородный дом под Хельсинки, где сауна расположена у большого окна с видом на лес, а все коммуникации и изоляция выполнены строго по скандинавским стандартам, известным своей строгостью и практичностью.

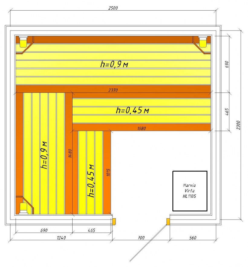
Парилка в бане 2х2 Размеры
Парилка в бане 2х2 Размеры


Одним из ключевых аспектов является правильная гидро- и пароизоляция. Даже если сауна занимает всего несколько квадратных метров, её стены и потолок должны быть защищены многослойной системой, предотвращающей проникновение влаги в конструкцию дома. В проекте под Таллином использовали алюминиевую фольгу с перехлёстом швов и вентилируемый зазор между обшивкой и утеплителем — решение, которое не только соответствует нормам, но и обеспечивает долгий срок службы без гниения или плесени.

Парилка в бане 2х2 Размеры
Парилка в бане 2х2 Размеры


Вентиляция играет не меньшую роль. Без приточно-вытяжной системы воздух в сауне быстро станет спёртым, а древесина — подверженной деформации. В одном московском таунхаусе дизайнеры интегрировали скрытые вентканалы в деревянную обшивку, сохранив чистоту линий интерьера. При этом система работает бесшумно и эффективно: свежий воздух поступает у пола, а тёплый отводится под потолком, создавая естественную циркуляцию — именно так рекомендуют нормативные документы.

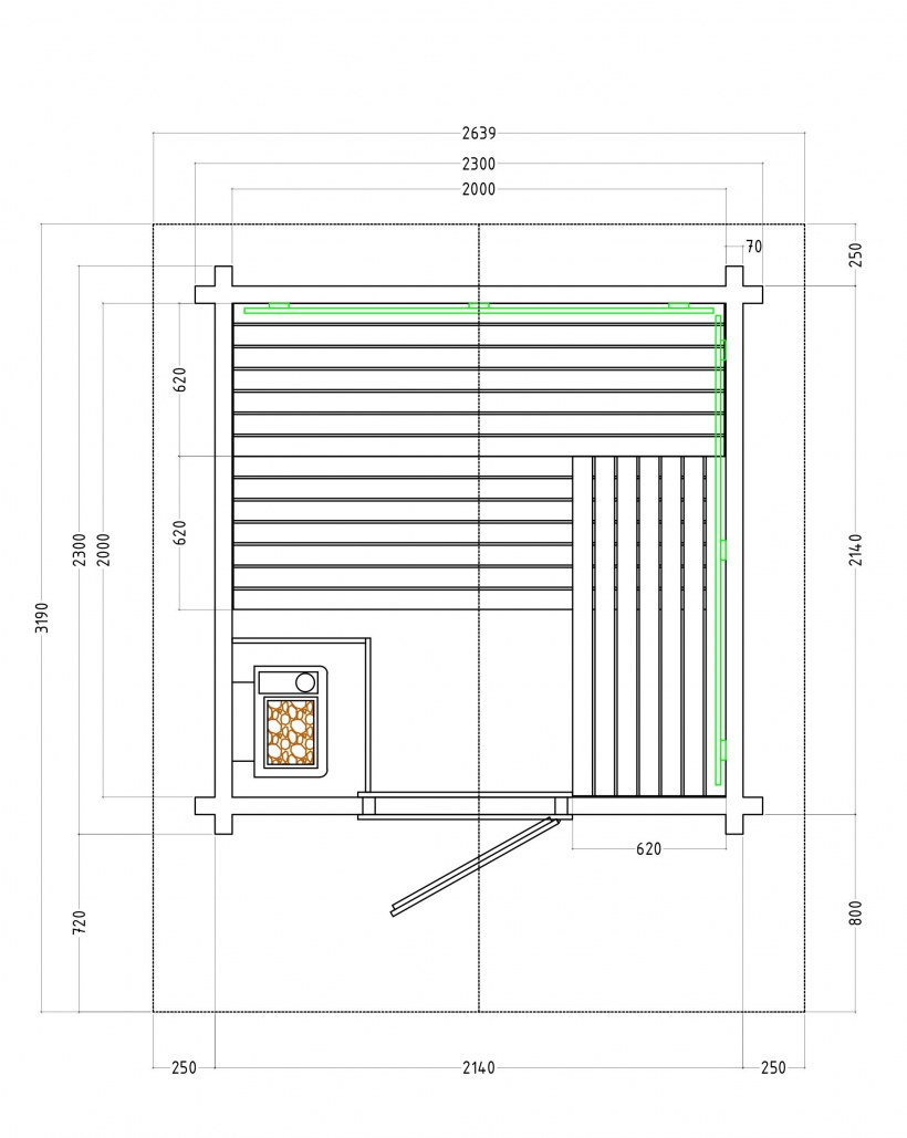
Парилка 2х2 планировка
Парилка 2х2 планировка


Электрика в сауне требует особого подхода. Все элементы должны быть термостойкими, а проводка — проложена вне нагреваемых зон. В финском проекте, где сауна соседствует с душевой и зоной отдыха, электрощит вынесен за пределы парной, а управление печью осуществляется через выносной термостат с защитой от влаги. Такое решение полностью соответствует требованиям ПУЭ и европейским стандартам безопасности, при этом остаётся незаметным для глаза.

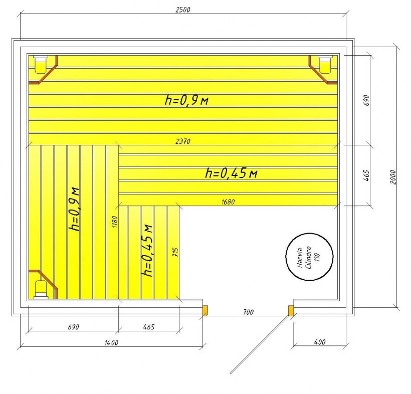
Планировка парилки 2.5 на 2.5
Планировка парилки 2.5 на 2.5


Сауна в доме, спроектированная с учётом норм, становится не просто местом для процедур, а гармоничной частью жилого пространства. Она не нарушает целостность интерьера, но при этом функционирует надёжно и безопасно годами. Именно соблюдение этих принципов позволяет превратить ритуал тепла в повседневную практику, а не в источник тревог о возможных последствиях.

Парилка 1.5 на 2 чертеж
Парилка 1.5 на 2 чертеж

Планировка парилки 2.5 на 2.5
Планировка парилки 2.5 на 2.5

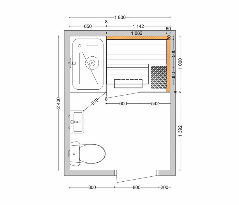
Раздевалка нормы проектирования
Раздевалка нормы проектирования

Парилка 2.5 на 2.5 схема
Парилка 2.5 на 2.5 схема

Парилка 1.5 на 2 чертеж
Парилка 1.5 на 2 чертеж

Планировка сауны 6кв м
Планировка сауны 6кв м

Размер парилки 2.2 на 2.6
Размер парилки 2.2 на 2.6

Размер парилки 2 на 1.5
Размер парилки 2 на 1.5

Баня 2 на 2 планировка парной
Баня 2 на 2 планировка парной

Парная 2х2 планировка парилки
Парная 2х2 планировка парилки

Парилка 1.5 на 2 чертеж
Парилка 1.5 на 2 чертеж

Баня 2 на 2 планировка парной
Баня 2 на 2 планировка парной

Размер парилки на 2 -3 человека
Размер парилки на 2 -3 человека

ИК сауна размещение излучателей
ИК сауна размещение излучателей

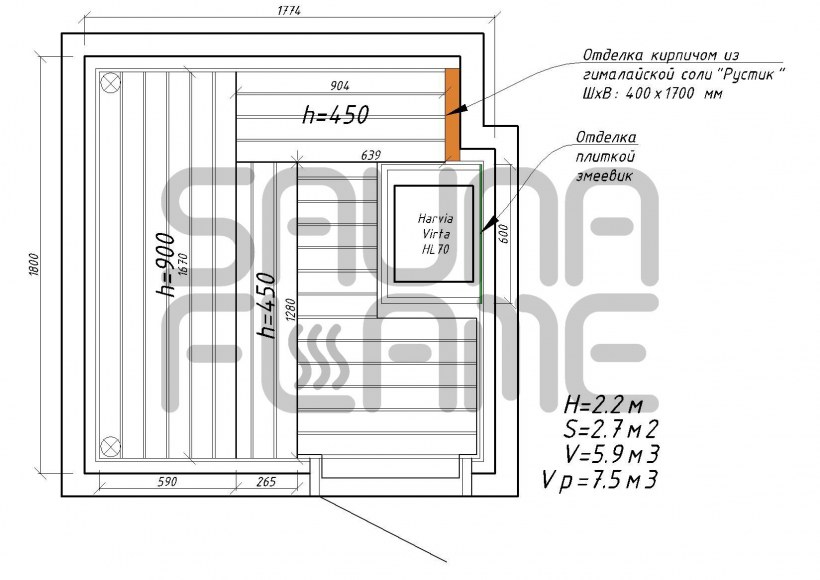
Проект мини сауны
Проект мини сауны

Парилка 2.5 на 2.5 схема
Парилка 2.5 на 2.5 схема

Защитное ограждение Harvia wx017
Защитное ограждение Harvia wx017

Баня 4х4 размер парилки
Баня 4х4 размер парилки

Сауна Harvia variant s1215r
Сауна Harvia variant s1215r

Схема парилки бани 6х4
Схема парилки бани 6х4

Баня 4х2.5 планировка чертежи
Баня 4х2.5 планировка чертежи

Баня хамам чертеж
Баня хамам чертеж

Парилка 1500 на 2000 чертеж
Парилка 1500 на 2000 чертеж

Парилка 2х2 планировка с душевой
Парилка 2х2 планировка с душевой

Конструкция сауны
Конструкция сауны

Размер полок в парилке бани схема установки
Размер полок в парилке бани схема установки

Схема подключения парогенератора для хамама Tylo
Схема подключения парогенератора для хамама Tylo

Аспен ричардсен сауна
Аспен ричардсен сауна

Мини дом с сауной планировка
Мини дом с сауной планировка

Двери в спа зону
Двери в спа зону

Парилка 6на6
Парилка 6на6

Печь харвия 22 дуо
Печь харвия 22 дуо

Планировка парилка парилка 2х2
Планировка парилка парилка 2х2

Парилка 2.5 на 2.5 схема
Парилка 2.5 на 2.5 схема

Баня с помывочной и парилкой схема
Баня с помывочной и парилкой схема

Разница между сауной и русской баней
Разница между сауной и русской баней

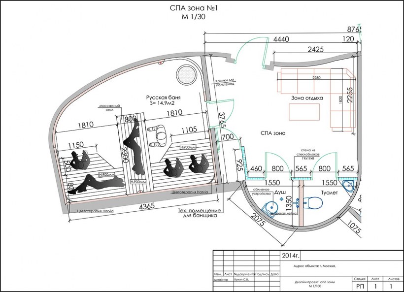
Спа салон планировка
Спа салон планировка

Раздевалка с душем и унитазом для МГН
Раздевалка с душем и унитазом для МГН

Хамам 2.1х2 чертеж
Хамам 2.1х2 чертеж

План хамама с парогенератором
План хамама с парогенератором

Баня 3 на 3 планировка
Баня 3 на 3 планировка

Противопожарный зазор между печью и стеной
Противопожарный зазор между печью и стеной

Планировка бани с парилкой и хамамом
Планировка бани с парилкой и хамамом

Сауна на Вильского Красноярск
Сауна на Вильского Красноярск

Мобильные бани чертежи
Мобильные бани чертежи

Полок в парилке Размеры, высота
Полок в парилке Размеры, высота

Планировка парилки 2х2.5
Планировка парилки 2х2.5

Harvia s2020r
Harvia s2020r

Схема хамама
Схема хамама

Чертеж бани высота
Чертеж бани высота

Сауна so2200 Kuikka (дров.)
Сауна so2200 Kuikka (дров.)

Парилка из абаша
Парилка из абаша

Инфракрасная мини сауна чертежи
Инфракрасная мини сауна чертежи

Чертежи каркасной бани 4х2
Чертежи каркасной бани 4х2

Габариты сауны
Габариты сауны

Вентиляция сауны с электрокаменкой в частном доме
Вентиляция сауны с электрокаменкой в частном доме

Сауна Harvia Sirius sc1412
Сауна Harvia Sirius sc1412

Sauna Party 4k
Sauna Party 4k

Сауна 2х1.5 Tylo
Сауна 2х1.5 Tylo

Сауна Harvia Sauna s
Сауна Harvia Sauna s

Парная на 3 человека размер
Парная на 3 человека размер

Проектирование бассейнов СП 31-113-2004
Проектирование бассейнов СП 31-113-2004

Небольшой дом с сауной
Небольшой дом с сауной

Проектирование сауны
Проектирование сауны

Финская баня градусы
Финская баня градусы

Сауна 1,2х1,8
Сауна 1,2х1,8

Высота потолка в парной
Высота потолка в парной

Воздуховод для сауны
Воздуховод для сауны

Финская сауна Harvia variant
Финская сауна Harvia variant

Противопожарные нормы установки печи и дымохода
Противопожарные нормы установки печи и дымохода

Баня вагончик планировка 6х2,3
Баня вагончик планировка 6х2,3

Маленькая финская сауна
Маленькая финская сауна


  • Просмотров: 7 302
  • Добавлено: 15 январь
Категории: ---
Комментарии (0)
Кликните на изображение чтобы обновить код, если он неразборчив
Похожие фото