Водоприемник чертеж (62 фото)
Узел внутреннего водостока плоской кровли
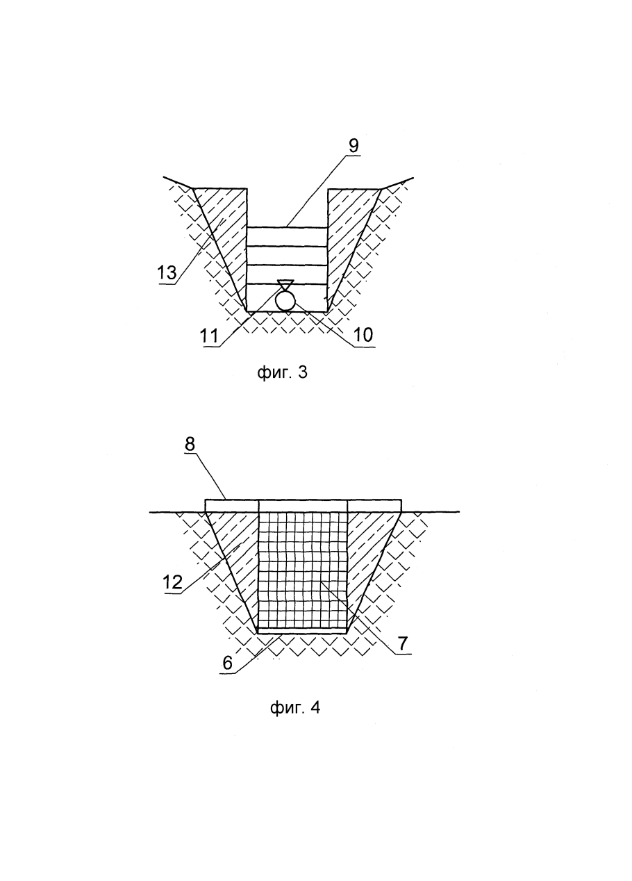
Безнапорный донный решетчатый водоприемник
Схема монтажа дренажного колодца
Береговой колодец водозабор
Дождеприемник Gidrolica point ДП-30.30 - пластиковый универсальный
Устройство дренажа вокруг дома схема
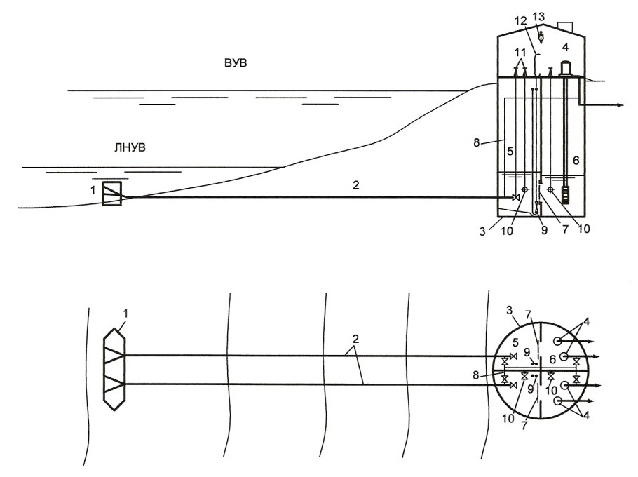
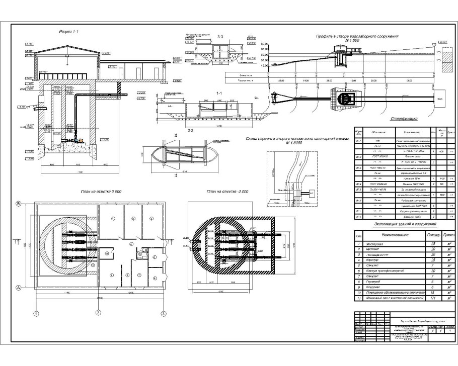
Схема Берегового водозаборного сооружения
Схема водоснабжения с забором воды из подземного источника
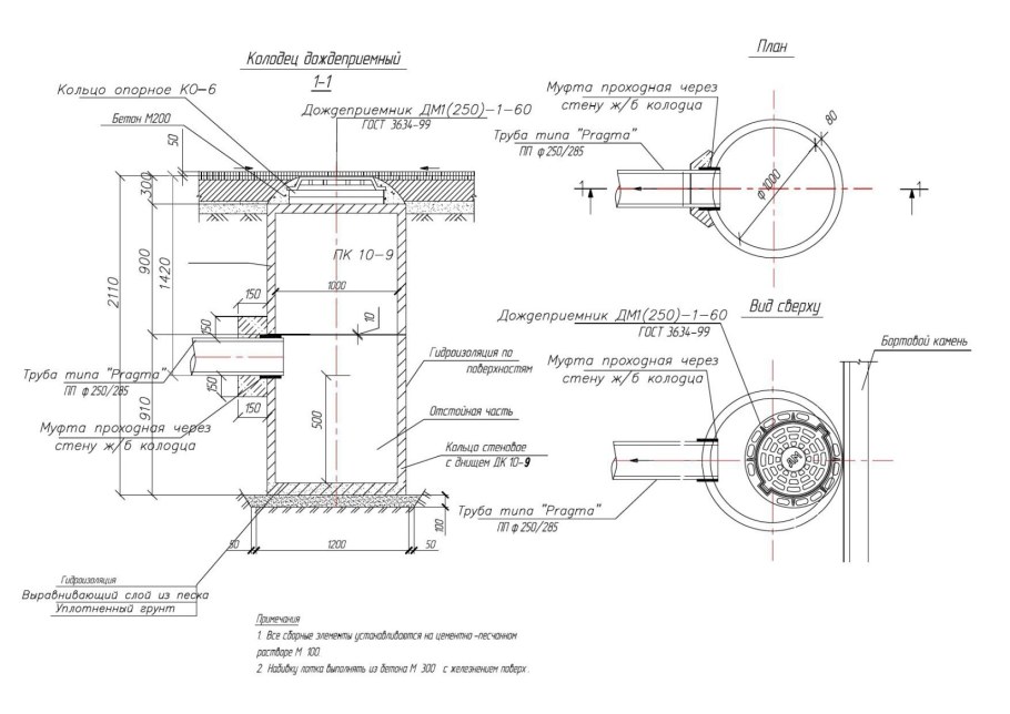
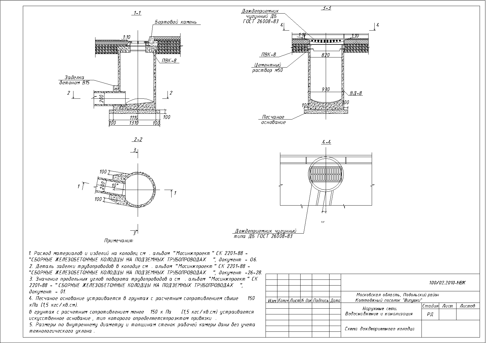
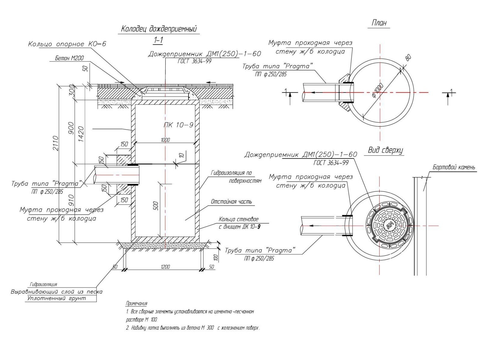
Колодец дождеприемный ВД-8 С решеткой
Колонка водоразборная эжекторная кв-4
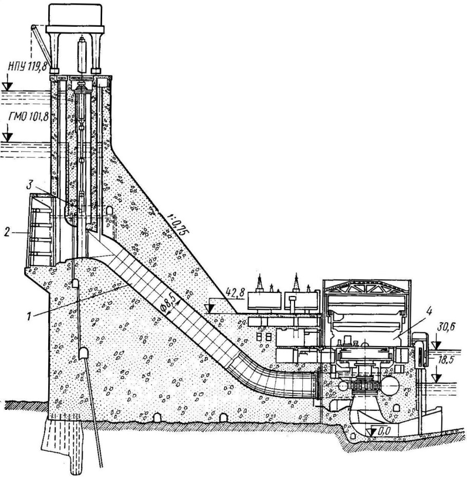
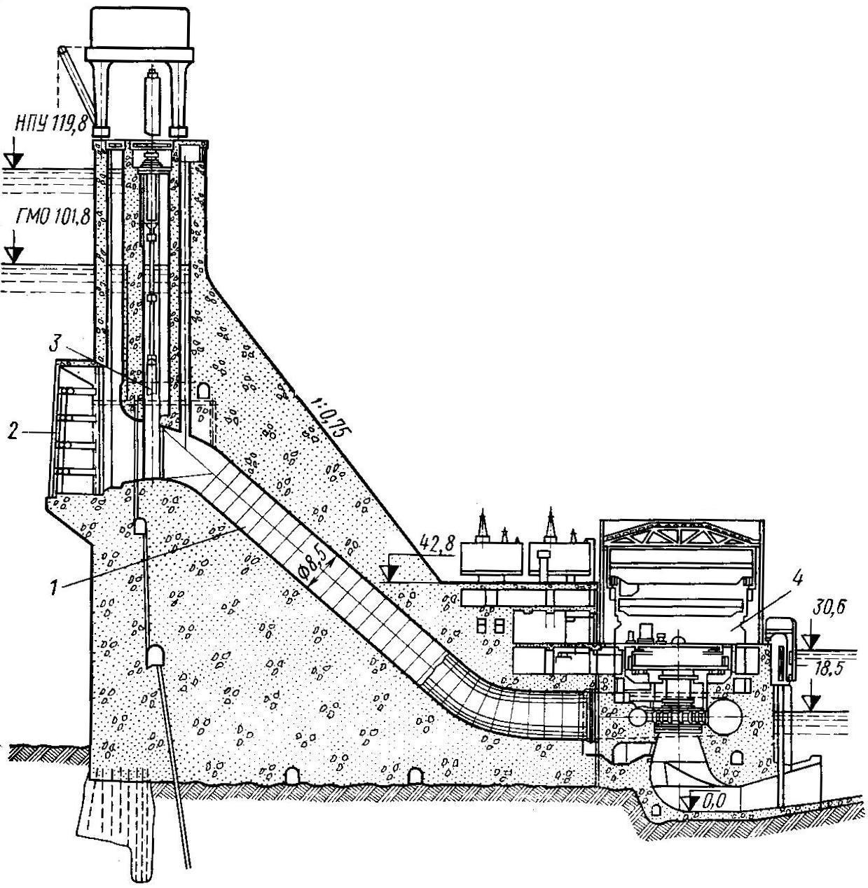
Разрез плотины Саяно-Шушенской ГЭС
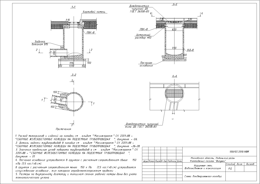
Ливневая канализация колодцы чертеж
Узел парапетной воронки ТЕХНОНИКОЛЬ
Водоприемник на катере
Аэрационная труба ГЭС
Дождеприемник Gidrolica point ДП-20.20
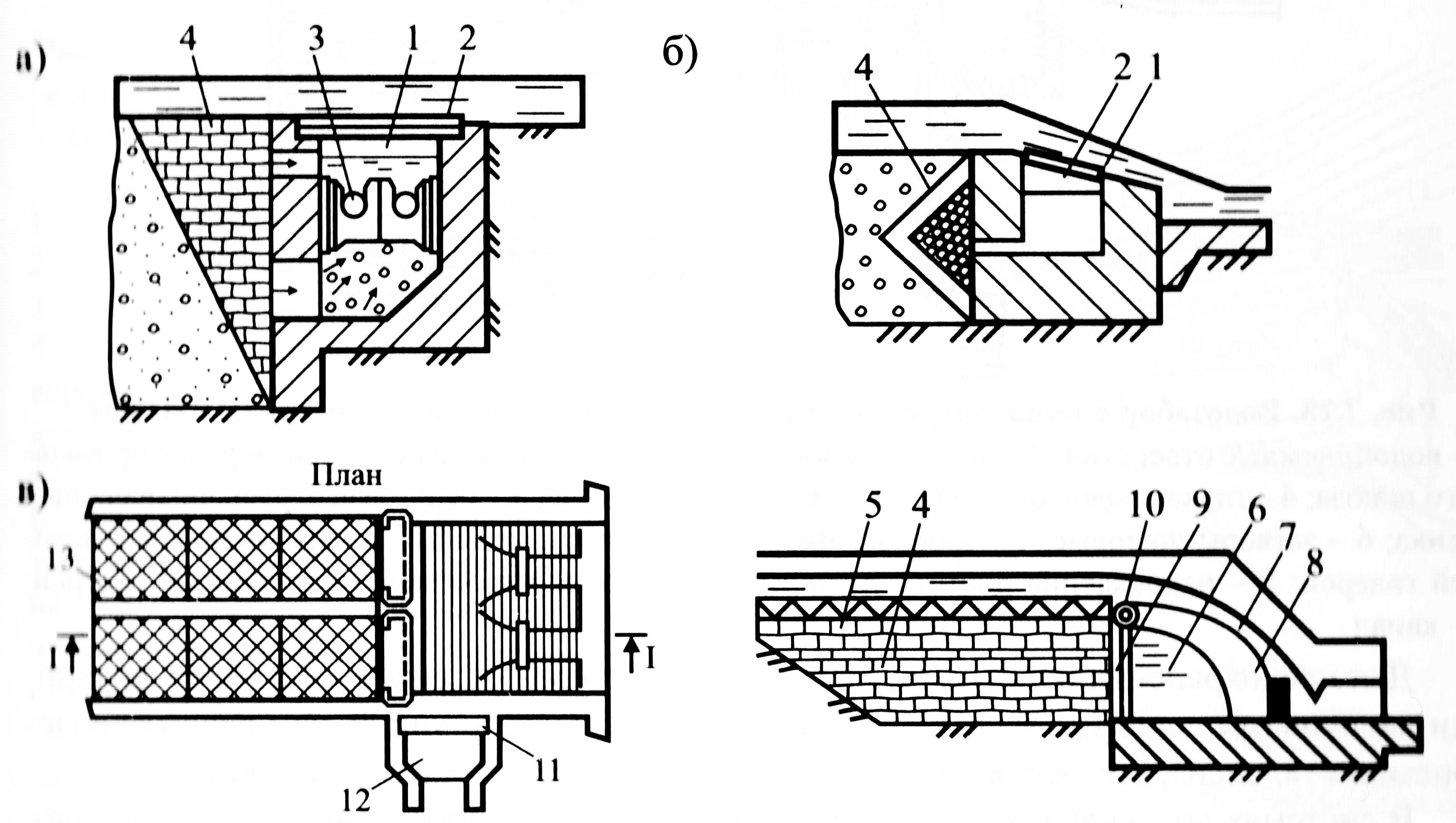
Водозаборные сооружения руслового типа схемы
Водоприемник ленточны
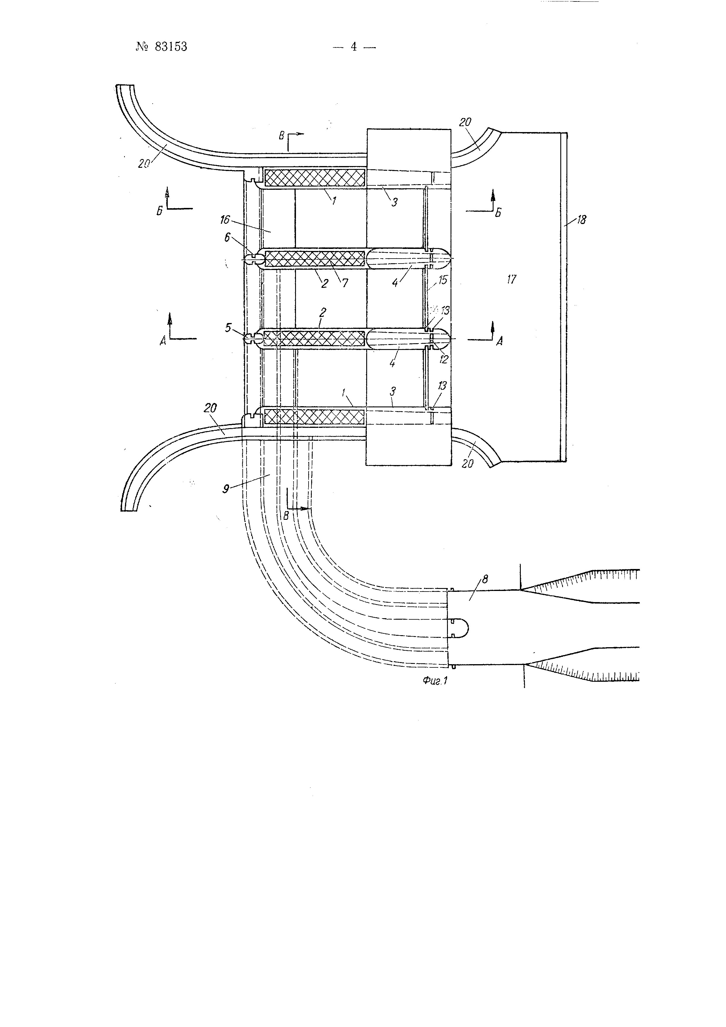
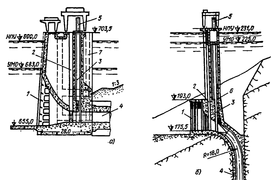
Водоприемник ГЭС чертеж
Дренажная система Альта дренаж

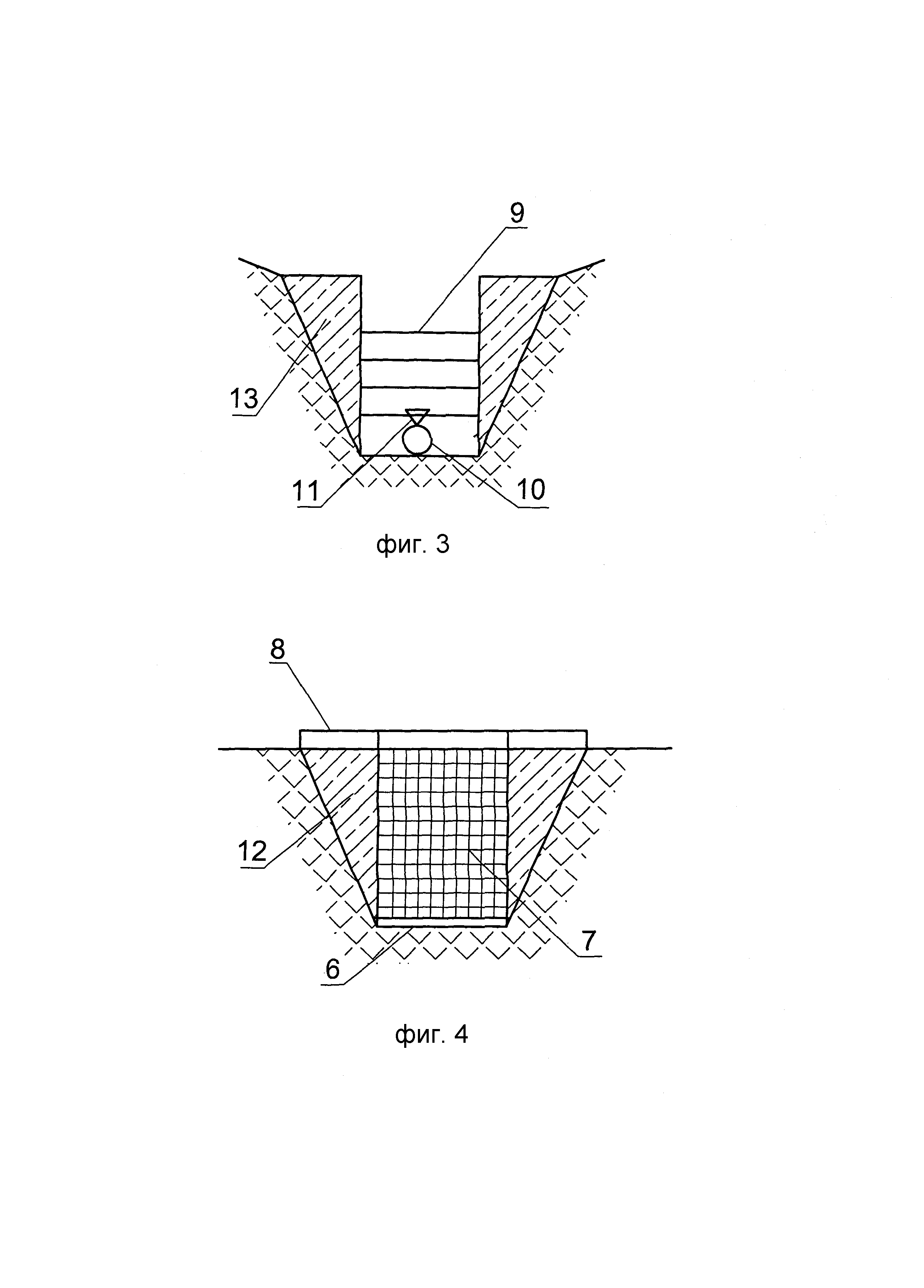
Устройство для регулирования дренажного стока
Водонапорная башня ЖД чертеж
Водозабор руслового типа чертеж
Водоприемный ковш

Воронка чугунная ву-100
Подрусловый водозабор типовой проект
Спиральная камера водоприемника ГЭС
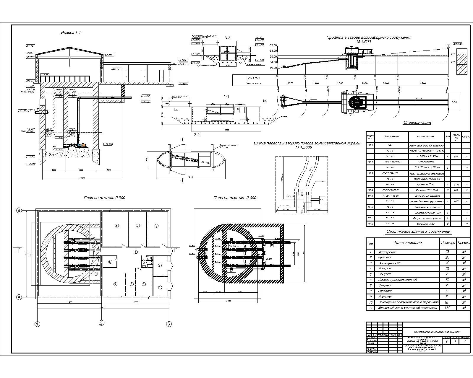
Генплан насосная станция водозабора
Схема централизованной системы водоснабжения
Схема руслового водозабора раздельного типа
Безнапорный донный решетчатый водоприемник
Схемы водозаборных сооружений поверхностных
1. Схема водоприемника Берегового типа.
Водоприемник в газоне схема
Дренажный колодец монтажная схема
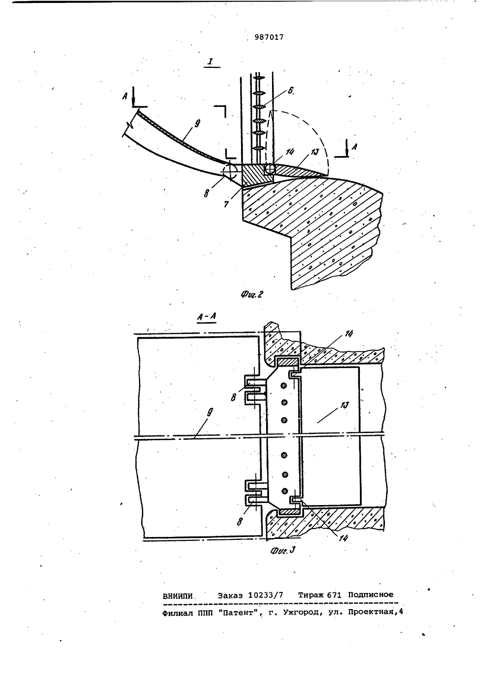
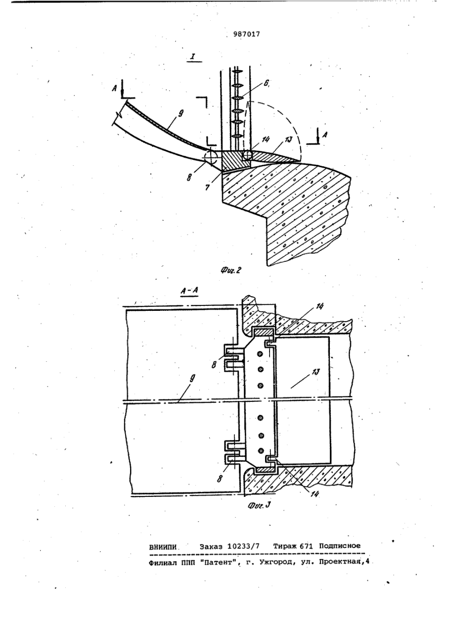
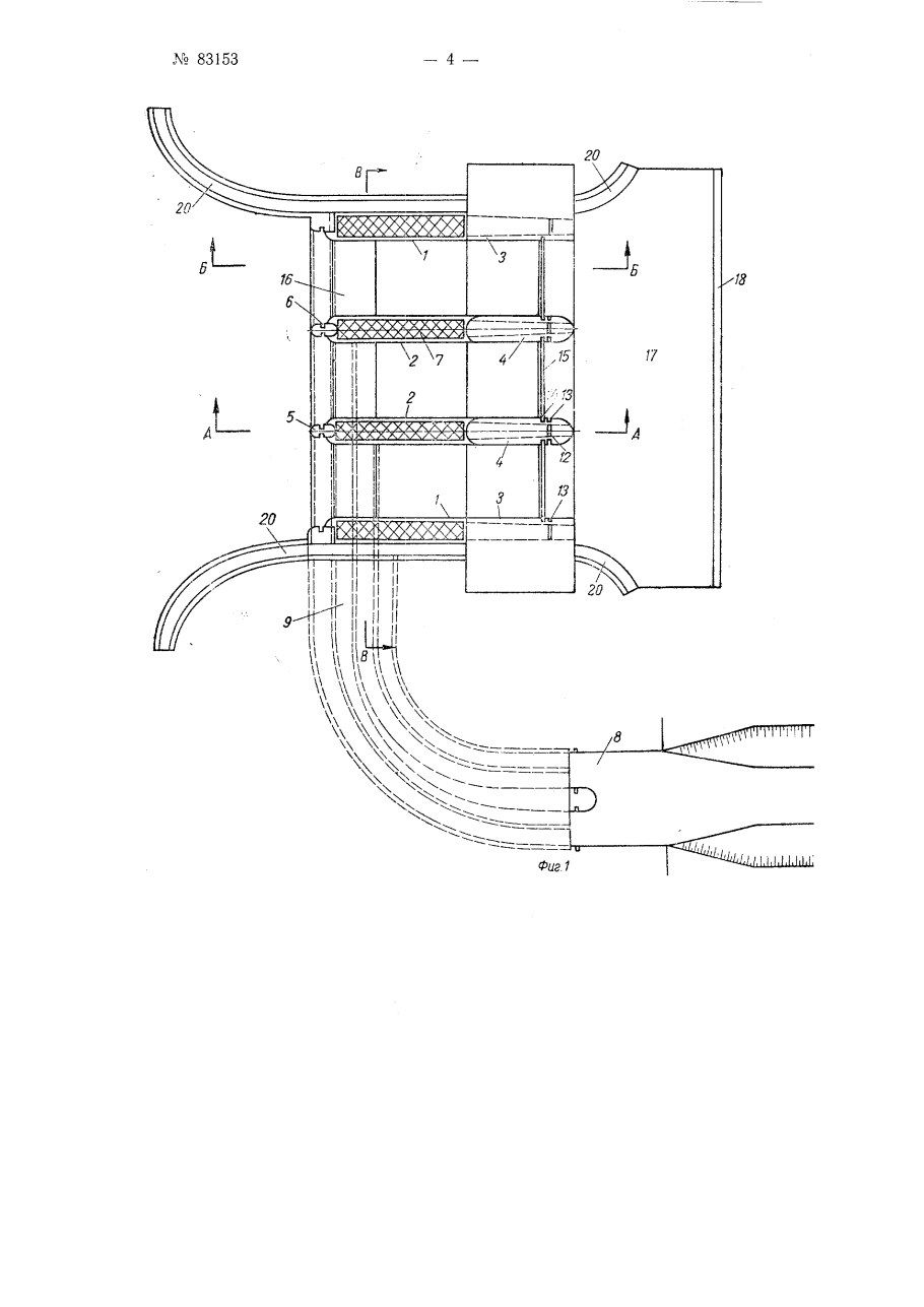
Чертежи водоприемников
Открытая дренажная канава схема
Дождеприемник универсальный 300х300 в сборе (без решетки)
Русловой водозабор совмещенного типа
Водозаборные сооружения схема
Схема соединения лотков ливневой канализации
Устройство для верхнего забора воды
Водоприёмник навесной

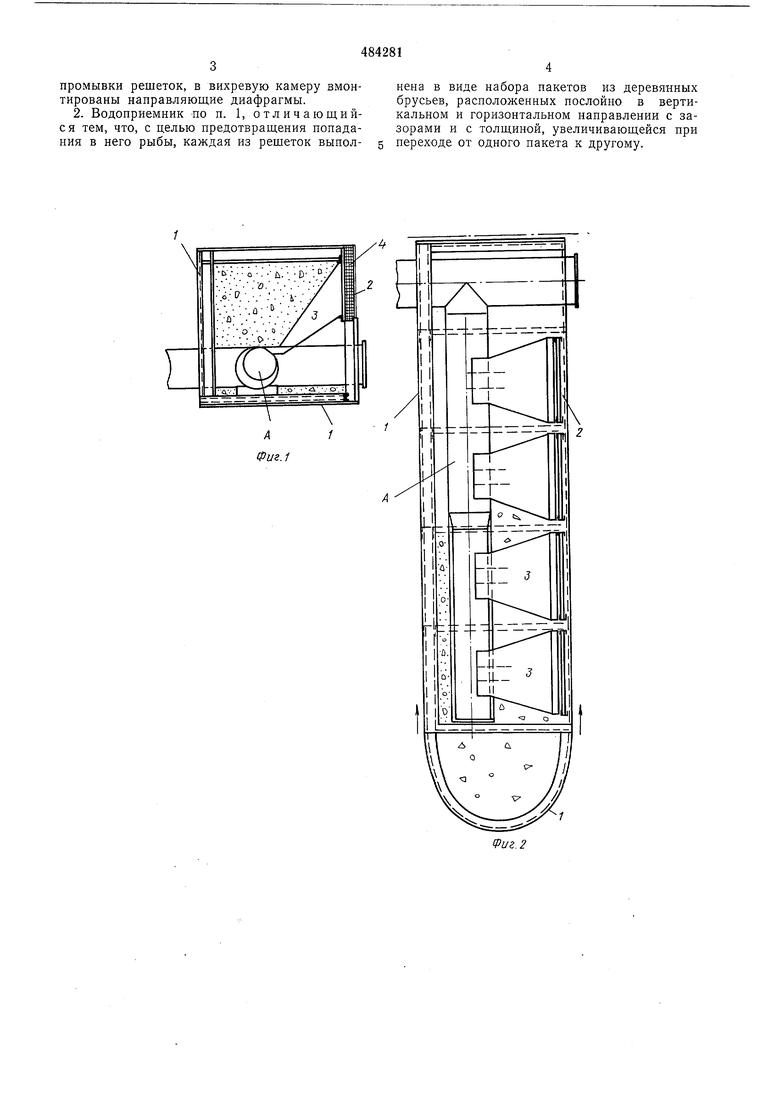
Трубчатый односекционный водоприемник с вихревой камерой
Трап уличный Gidrolica Rain ту-30.16,6.20
Деривационные ГЭС уравнительный резервуар это
Водозаборные устройства конца 18 века
Дождеприёмник 200x200 Aquastok
Схема компоновки сооружений ГАЭС
Схема водоприемник дренажа
Трап уличный Гидролика Рейн
Гидротурбина ГЭС схема
Похожие фото
↑