Чертеж деревенского туалета (68 фото)
Чертеж дачного душа с раздевалкой с размерами
Туалет дачный
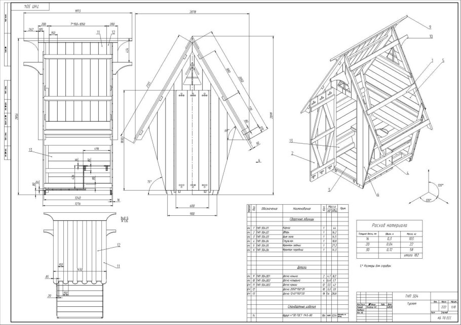
ТНП 304 туалет чертеж
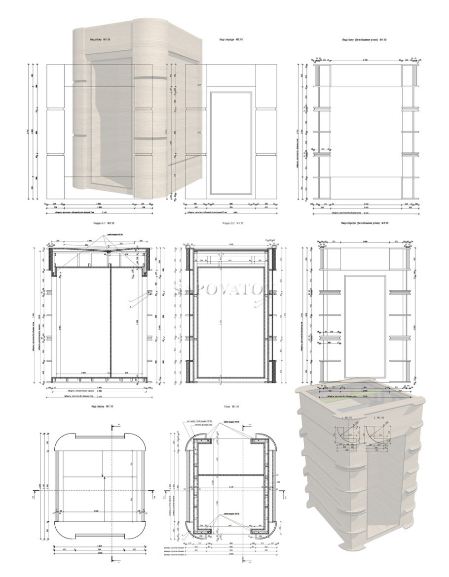
Каркас дачного туалета
Постройка деревянного туалета
Подставка под еврокуб чертеж с размерами
Чертеж дачный туалет Теремок чертеж
Туалет с односкатной крышей чертеж
Каркас дачного туалета
Дачные туалеты Волоколамск
Туалет типа пудр-клозет
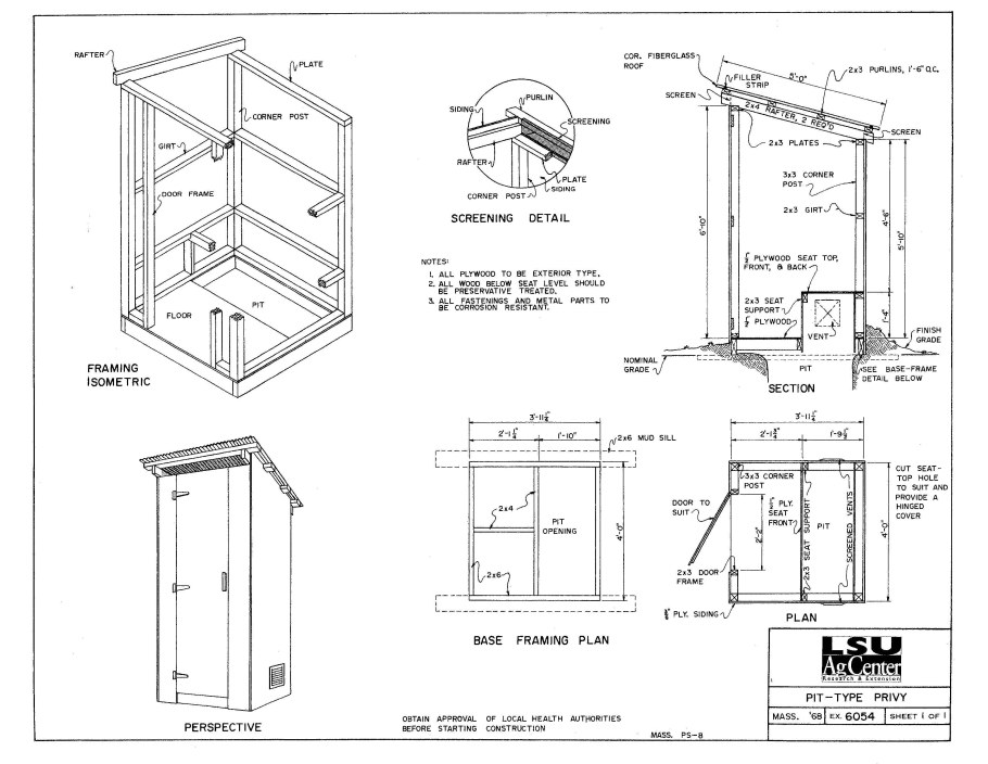
Конструкция уличного туалета с выгребной ямой
Размеры дачного туалета с душем
Garden Shed чертеж
Деревянный туалет Теремок чертежи
Вентиляция в выгребной яме схема
Постройка деревянного туалета
Хозблок 3х5 чертеж
Туалет - душ - хозблок (размер 2-1,2-1,2 м)
Чертеж туалета скворечник для дачи с размерами
Пудр-клозет для дачи чертежи
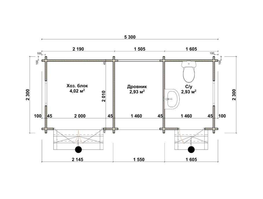
Проект чертёж хозблок туалет душевая из кирпича
Туалет-душ для дачи деревянный своими руками чертежи с размерами
Туалет для дачи деревянный чертеж
Чертеж дачного туалета
Дачный туалет Теремок чертежи Размеры
Туалет с односкатной крышей чертеж
Чертеж дачного туалета типа шалаш
Хозблок с туалетом и душем для дачи чертежи
Чертеж дачный туалет Теремок
Чертеж дачного туалета
Туалет Теремок чертежи
Каркас туалета Теремок
Туалетный домик на дачу Размеры
Чертежи туалета пудр клозет
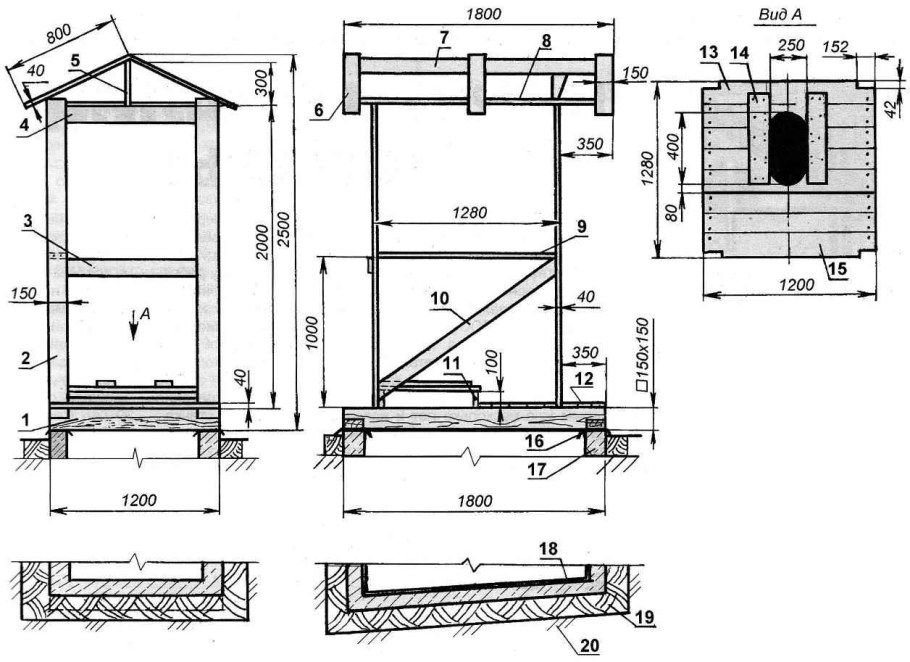
Схема дачного туалета с выгребной ямой
Дачный туалет пудр клозет
Размеры деревянного туалета
Туалет деревянный Теремок
Дачный туалет с душем чертежи Размеры
Чертёж хозблока душ, туалет, сарай с размерами

Пудр-клозет для дачи чертежи
Сливная яма для воды из бочек 200 литров
Дачный туалет односкатный чертёж
Каркас дачного туалета
Дачный туалет фахверк
Чертеж дачный туалет Теремок
Чертеж каркаса дачного туалета
Дачный туалет из металлопрофиля чертежи
Туалет Теремок
Туалет дачный деревянный чертеж с размерами
Чертеж дачный туалет Теремок
Туалет дачный деревянный чертеж с размерами
Материал для туалета на даче
Домик для детей Теремок чертеж
Чертеж дачный туалет Теремок
ТНП 304 туалет чертеж
Дачный туалет с вы гребной чмой
Туалет дачный ОСП
Смета дачного туалета с размерами
Туалет с выгребной ямой чертеж
Размеры уличного туалета
Схема треугольного туалета для дачи
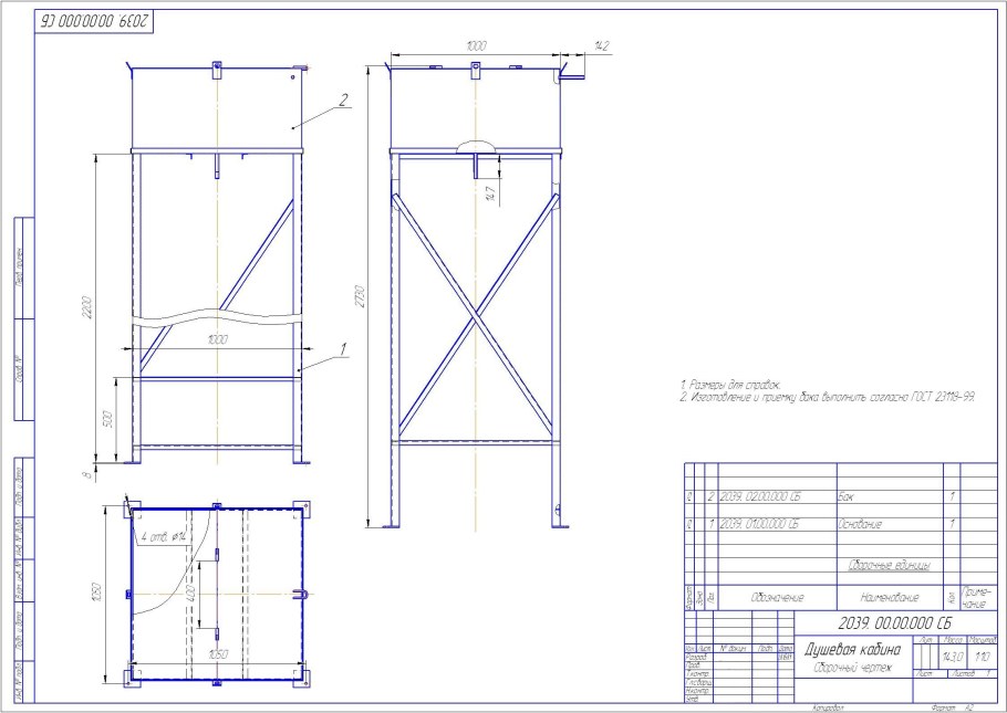
Чертеж душевой кабины с раздевалкой для дачи
Туалет дачный своими руками чертеж пошагово
Похожие фото
↑