Чертеж банной печи горыныч (58 фото)
Банная печь Горыныч 3 Термосфера
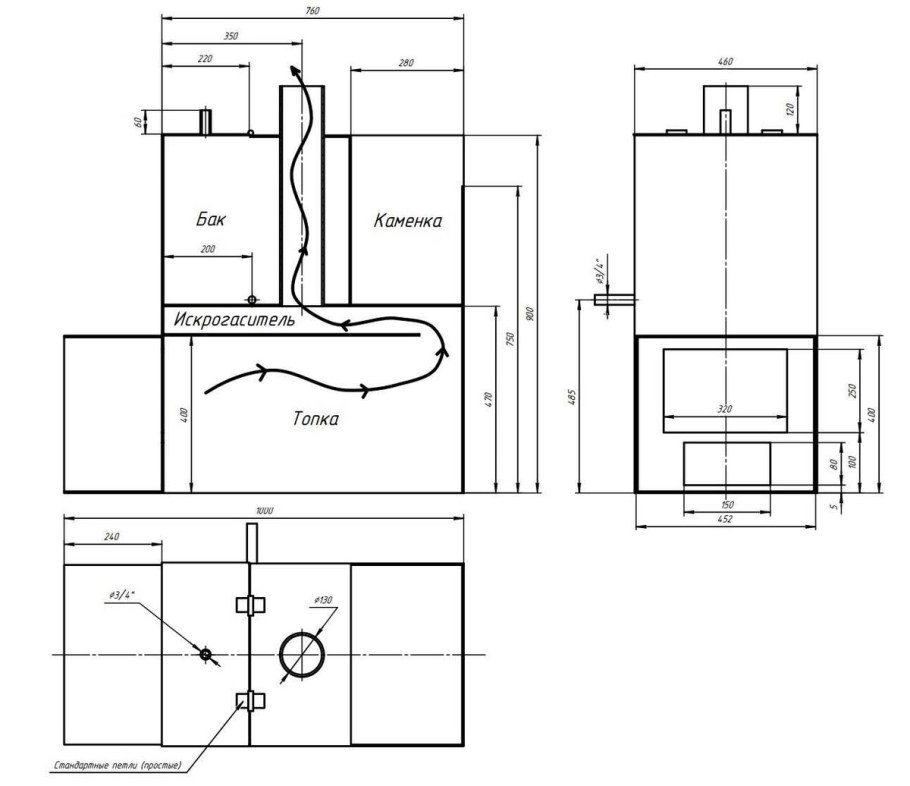
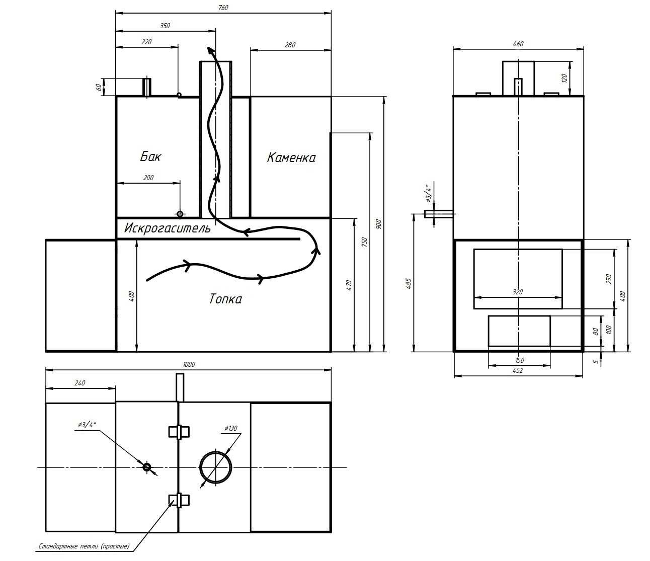
Банные печи чертежи с размерами
Портал печи тройка
Чертеж печи Теплодар Русь 18 л
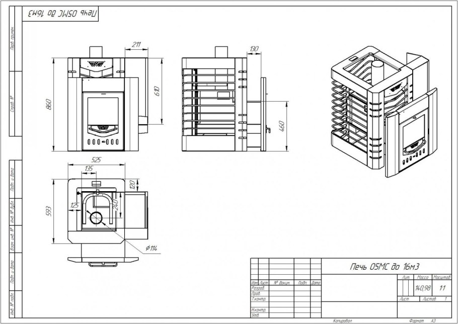
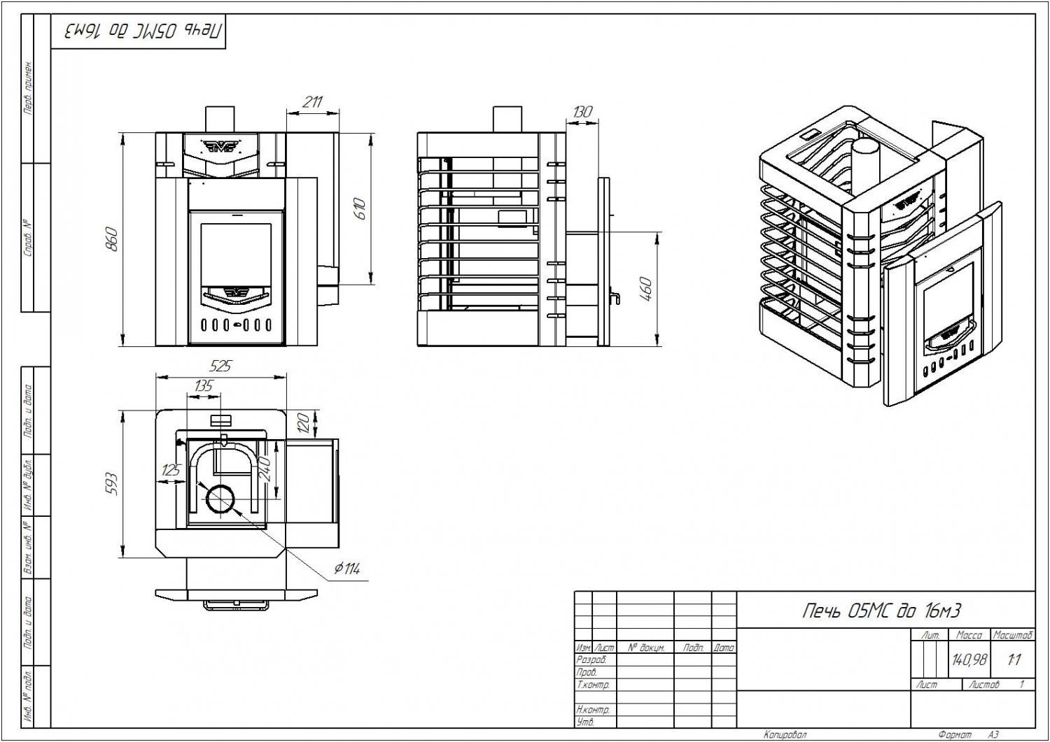
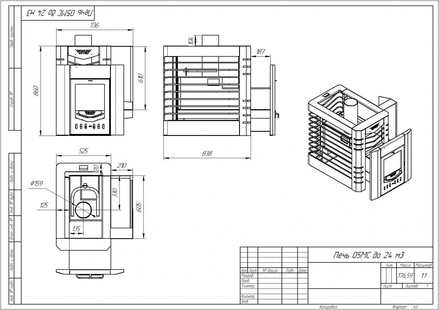
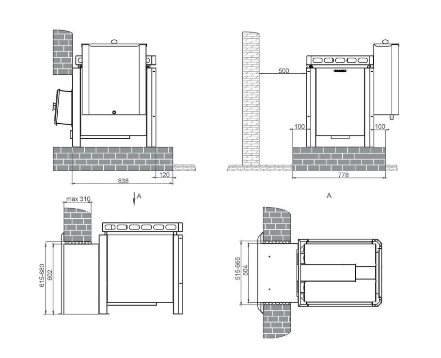
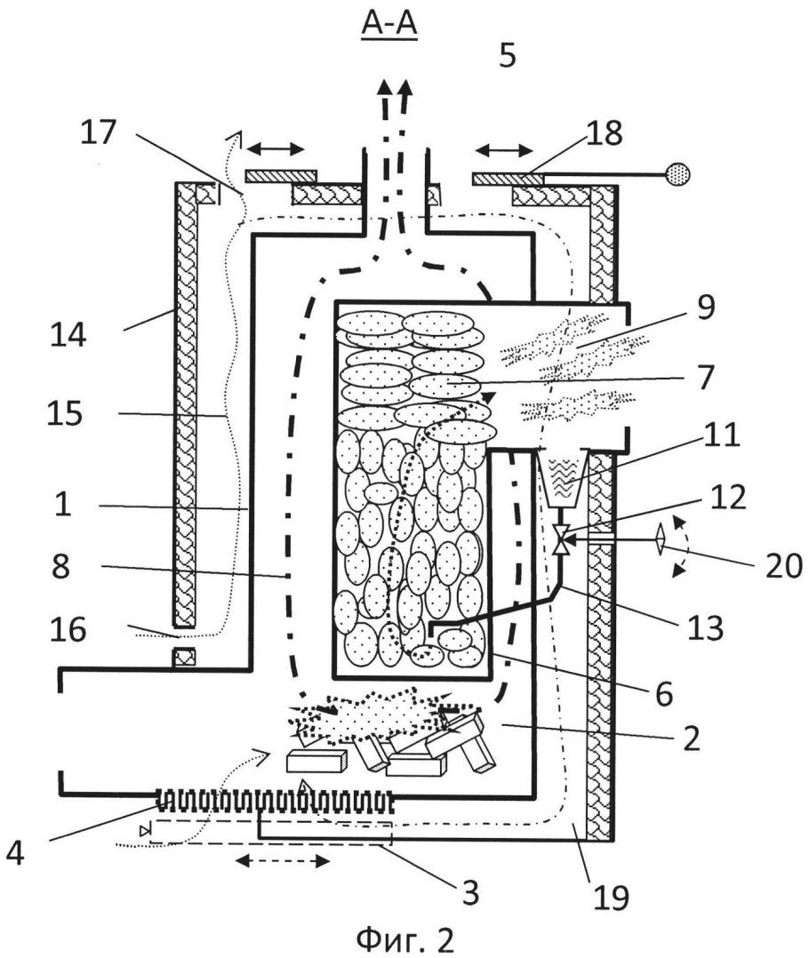
Схема печи для бани Горыныч 3
Банная печь тройка чертеж
Печь банная финка чертеж
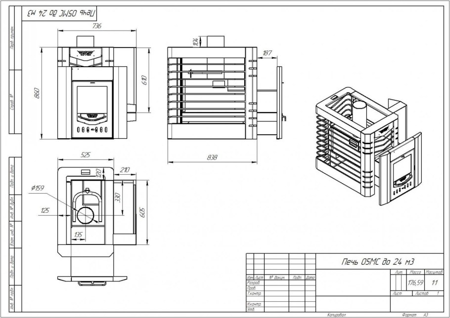
Горыныч 3 печь банная Термофор
Термосфера печи для бани печь Горыныч 3
Печь Грация Башпечи
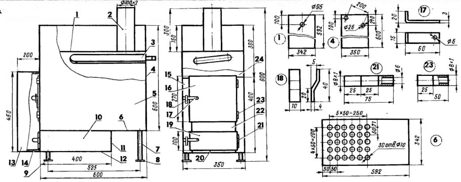
Печка из 21 кирпича схема
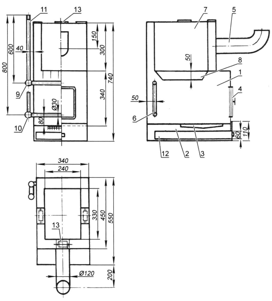
Печь для бани с закрытой каменкой из трубы 530 чертежи вертикально
Печь для бани из трубы 530 вертикальная чертеж
Печь для мобильной бани чертеж
Печь банная Меркурий
Дровяная банная печь TMF Гекла
Вертикальная банная печь из трубы 530 чертежи
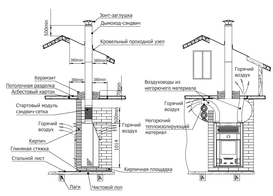
Конструкция кирпичной банной печи
Печь для бани тройка 06 чертежи
Печь для бани Теплодар Русь 18 ЛНЗП профи
Печь с трубы 530 с теплообменником
Печь банная Горыныч 3 схема чертежи
Чертежи банной печи из металла с топкой из предбанника
Защитное ограждение Harvia wx017
Банная печь Гефест схема
Банная печь с топкой из предбанника схема
Фундамент под печь Горыныч 3
Печь банная с 530 трубы чертежи
Печь камин с дымоходом сзади
Котёл в баню из трубы 530 чертёж
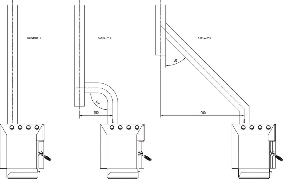
Схема установки дымохода для печи буржуйки

Банная печь своими руками из металла с баком для воды чертеж
Банная печь из трубы горизонтальная чертежи
Печь для бани жара-Люкс 20
Дровяная банная печь жара супер 700
Банная печь Гейзер 2014 inox Витра ЗК антрацит
Печь буржуйка ТЕПЛОСТАЛЬ чертежи
Печь банная RST 20
Печь жара Люкс 20
Чертежи печей из жаропрочной стали
Печь для бани тройка 06 чертежи
Банная печь Горыныч 2
Парогенератор для банной печи чертежи
Печь Колибри Башпечи
Банная кирпичная печь с закрытой каменкой порядовка
Банная печь дллительного горения чертёж
Печь Саяны Витра Термофор
Чертеж печки буржуйки длительного горения
Железная печь для бани чертежи
Печка длительного горения чертежи
Печь банная Горыныч чертежи
Печь для бани с трубы 530 чертежи размерами
Печь банная Горыныч-3 с баком
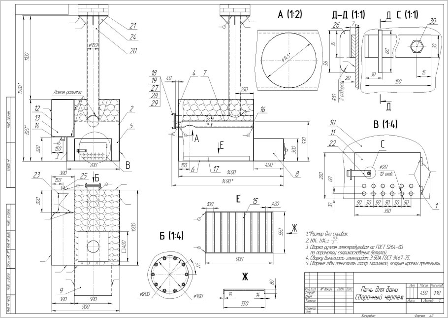
Чертеж печи для бани с закрытой каменкой
Печь Варвара термо Каменка в разрезе
Похожие фото
↑