Размеры уличного туалета своими руками из дерева на даче (74 фото)
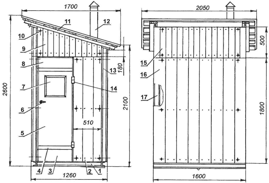
Туалет с односкатной крышей чертеж
Чертеж дачный туалет Теремок
Постройка деревянного туалета
Зеленое сечение дачный туалет
Чертеж деревянного скворечника
Проект чертёж хозблок туалет душевая из кирпича
Размеры уличного туалета
Качеля Садовая своими руками из дерева чертёж
Чертеж душевой кабины для дачи из дерева своими руками
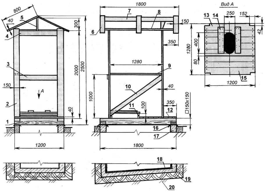
Каркас туалета
Пудр-клозет торфяной туалет
Проект дачного туалета Теремок
Чертеж дачный туалет Теремок
Туалет для дачи
Чертеж каркаса дачного туалета
Материал для туалета на даче
Уличный туалет домиком
Хоз блок душ туалет сарай 6х3
Чертеж дачный туалет Теремок
Уличный туалет Теремок
Каркас дачного туалета
Туалет типа пудр-клозет
Проект деревянного туалета для дачи
Туалет для дачи деревянный каркас
Сарай с душем и туалетом для дачи чертежи
Габариты дачного туалета
Туалет Теремок блок Хаус
Дачный туалет избушка чертежи и Размеры
Дачный туалет своими руками чертежи с размерами
Дачный туалет с выгребной ямой на даче
Туалет дачный деревянный чертеж с размерами
Дачный туалет шалаш чертежи Размеры
Дачный туалет Теремок чертежи Размеры
Туалет из поддонов чертеж
Туалет с выгребной ямой чертеж
Каркас деревянного туалета
Чертёж уличного туалета с выгребной ямой
Туалет скворечник чертежи с размерами
Вентиляция в дачном туалете с выгребной ямой схема

Хозблок для дачи 2х2 чертеж
Туалет для дачи деревянный чертеж
Каркас туалета
Проект дачного сарая с туалетом
Деревянный туалет скворечник
Деревянный туалет избушка
Каркас для садового туалета
Дачный туалет чертежи с размерами
Чертеж дачного туалета
Туалет с односкатной крышей чертеж
Дачный туалет Теремок каркас
Туалет для дачи с сиденьем чертеж
Кетер сарай фактор 4х6
Дачные туалеты Волоколамск
Сарай дровяник своими руками чертежи
Каркас дачного туалета
Деревянный туалет Теремок чертежи
Стульчак в деревянном туалете
Туалет дачный деревянный чертеж с размерами
Чертеж дачного туалета односкатная крыша
Туалет на участке
Туалет для дачи деревянный чертеж
Пудр-клозет для дачи чертежи
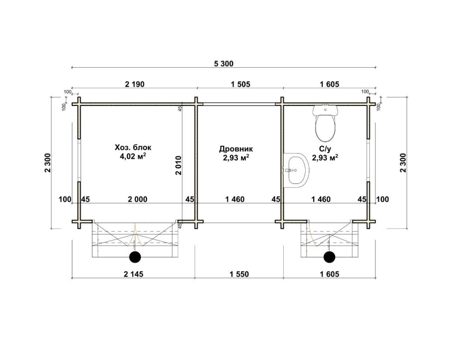
Туалет - душ - хозблок (размер 2-1,2-1,2 м)
Треугольный дачный туалет
Треугольный уличный туалет
Дачный туалет чертежи с размерами
Туалет душ хозблок 3 в 1 чертежи
Туалет шалаш чертежи с размерами

Дачный туалет схема чертеж
Уличный туалет чертеж
Похожие фото
↑