Чертеж летнего душа (59 фото)
Схема водопровода в бане с водонагревателем
Бак Sterh Shower 150 Black
Схема подключения стиральной машины на даче без водопровода
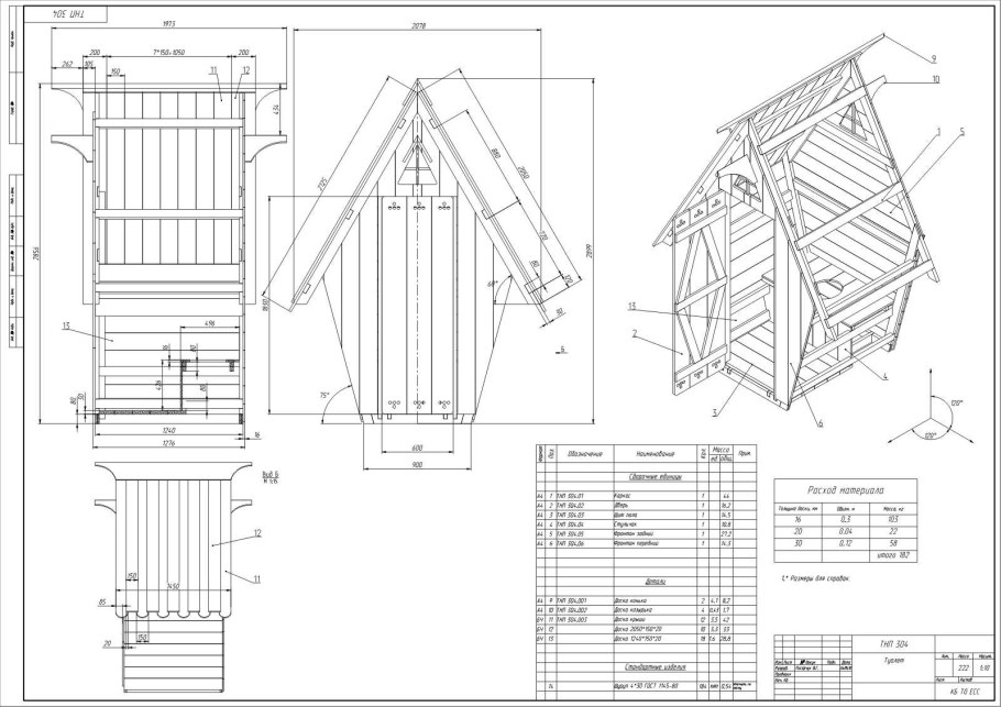
Чертеж дачного душа с раздевалкой
ТЭН для пластикового бака
Бак для душа с подогревом 250л размер
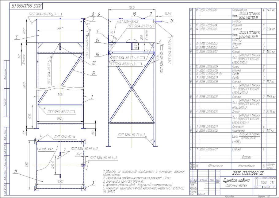
Проект чертёж хозблок туалет душевая из кирпича
Высота установки лейки тропического душа
Проект туалета с душем для дачи
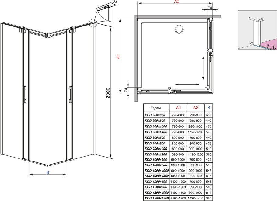
Душевая кабина 80х80 схема подключения
Летний душ из бочки чертеж
Бак для душа 250 л “роса” с подогревом
Летний душ 2 на 1 чертеж
Бак для летнего душа чертеж
Стандартный каркас для туалета

Душевая своими руками из подручных материалов своими руками чертежи
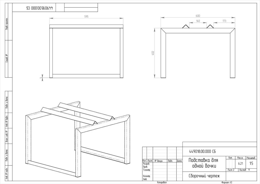
Ретеж подставки под еврокуб
Lt-301 душевая система с термостатом Denberg
Дачный туалет Теремок чертежи Размеры
Дачный туалет с душем чертежи Размеры
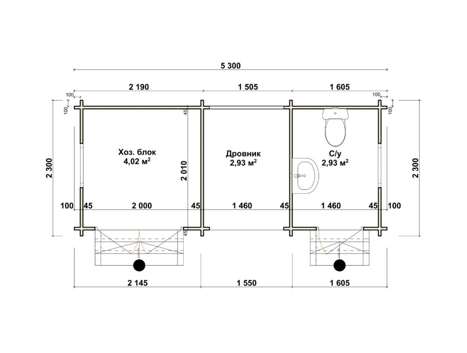
Хозблок 2х1,2
Хозблок с туалетом и душем для дачи чертежи
Душ летний для дачи ИМПЛАСТ-премиум с тамбуром.
Размеры летнего душа для дачи с раздевалкой
Душ летний для дачи ИМПЛАСТ-премиум с тамбуром.
Циркулярный душ схема
Летний душ еврокуб чертеж
Дачный туалет пудр клозет чертежи
Дачный туалет пудр клозет чертежи
Подставка под еврокуб чертеж с размерами
Хозблок 3 в1 душ туалет и сарай
Построить дачный душ своими руками чертежи Размеры
Душевая система Hansgrohe Crometta s 240 1jet Showerpipe 27267000
Дачный туалет с душем чертежи Размеры
Бак для душа с подогревом ЭКОПРОМ Rostok 201.1500.899.1, 150 л
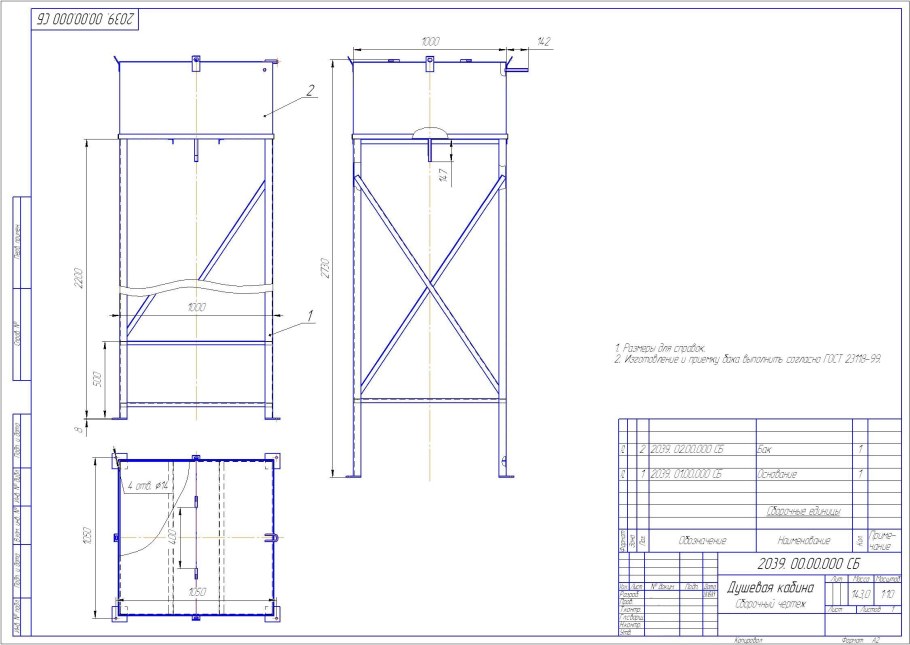
Чертеж душевой кабины для дачи из дерева своими руками
Солнечный коллектор для нагрева воды своими руками чертежи
Туалет дачный своими руками чертеж пошагово
Электрическая схема дачного умывальника с подогревом
Дачный туалет с душем чертежи Размеры
Бак для душа «Rostok» 110л
Пудр-клозет для дачи чертежи
Душ-туалет-хозблок 5х2,3м
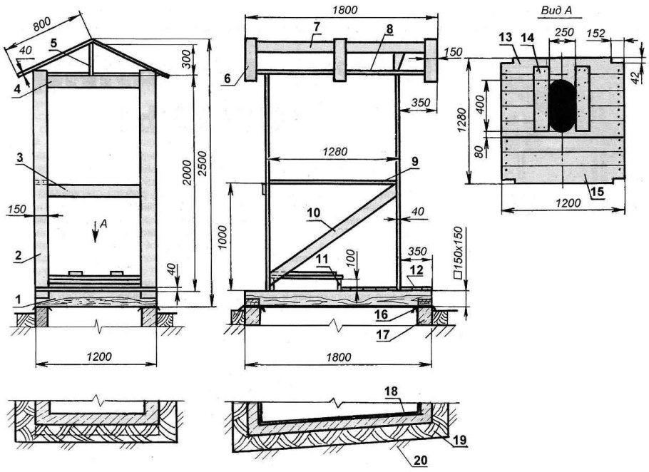
Чертеж деревянного душа с размерами
Каркасный сарай 3х3 чертеж
Чертеж летнего душа уличного с раздевалкой
Уличный туалет с душем планировка
Чертеж бытовки 4х2
Душевая кабина для дачи чертеж
Туалет скворечник чертежи с размерами
Парилка в бане схема и устройство
Душ для дачи с раздевалкой чертеж с размерами
Туалет с выгребной ямой чертеж
Туалет-душ для дачи деревянный своими руками чертежи с размерами
Хозблок 2 х 3 м чертежи
Металлический каркас уличного душа 1х2
Похожие фото
↑