Обозначения в планировке квартиры (79 фото)

Обозначения в планировке квартиры


При изучении планировки квартиры могут встречаться различные обозначения, которые помогают понять расположение и функциональность различных помещений. Вот некоторые общие знаки, которые могут встречаться в планировке квартиры:

Обозначение мебели на чертежах
Обозначение мебели на чертежах


Спальня: Обычно обозначается как "С" или "Сп". Это помещение, предназначенное для сна и отдыха.

Обозначения на планировках
Обозначения на планировках


Гостиная: Обозначается как "Г" или "Гост". Это общая зона для отдыха и развлечений.

Условные обозначения на планировке квартиры
Условные обозначения на планировке квартиры


Кухня: Обычно обозначается как "К" или "Кух". Это помещение, предназначенное для готовки пищи.

Как обозначается шкаф на чертеже
Как обозначается шкаф на чертеже


Ванная комната: Обозначается как "В" или "Ванн". Это помещение, где располагаются санитарные узлы, такие как раковина, туалет и ванна или душ.

Обозначение крана на чертеже сантехника
Обозначение крана на чертеже сантехника


Балкон: Обозначается как "Б" или "Балк". Это открытое пространство, которое может использоваться для отдыха или хранения вещей.

Буквенные обозначения на строительных чертежах
Буквенные обозначения на строительных чертежах


Коридор: Обозначается как "Кор" или "Корид". Это проходное пространство, соединяющее различные помещения в квартире.

План квартиры с площадями
План квартиры с площадями


Гардеробная: Обозначается как "Гд" или "Гард". Это помещение, предназначенное для хранения одежды и аксессуаров.

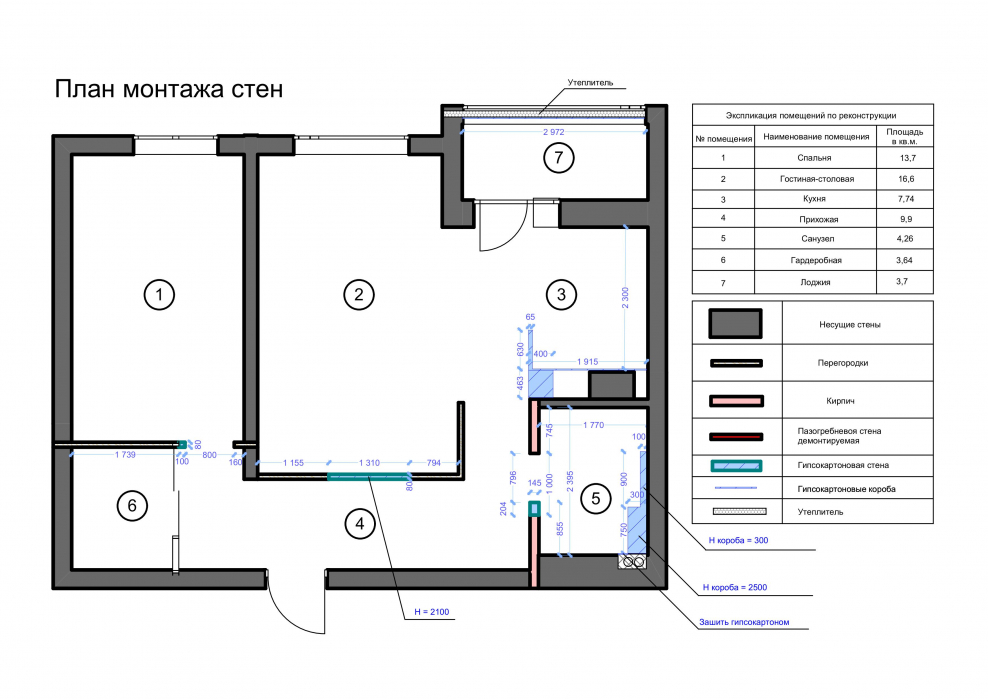
План монтажа перегородок
План монтажа перегородок


Техническое помещение: Обозначается как "Т" или "Техн". Это помещение, где располагаются технические системы, такие как электрический щиток или системы отопления и вентиляции.

Обозначение площади помещения на чертежах
Обозначение площади помещения на чертежах


Это лишь некоторые общие обозначения, которые могут встречаться в планировке квартиры. В каждом конкретном случае могут быть использованы различные обозначения в зависимости от проекта и разработчика.

Обозначения кухонной мебели на чертежах
Обозначения кухонной мебели на чертежах

Обозначение электрокотла на поэтажном плане
Обозначение электрокотла на поэтажном плане

Писсуар условное обозначение на чертежах
Писсуар условное обозначение на чертежах

Условные обозначения на планировке квартиры
Условные обозначения на планировке квартиры

Обозначения на плане БТИ
Обозначения на плане БТИ

Обозначение мебели на чертежах
Обозначение мебели на чертежах

Обозначения на плане квартиры
Обозначения на плане квартиры

Обозначения на планировке квартиры
Обозначения на планировке квартиры

Как обозначается шкаф на чертеже
Как обозначается шкаф на чертеже

Обозначение стеллажа на схеме
Обозначение стеллажа на схеме

План БТИ квартиры с размерами
План БТИ квартиры с размерами

Условные обозначения на чертежах квартир
Условные обозначения на чертежах квартир

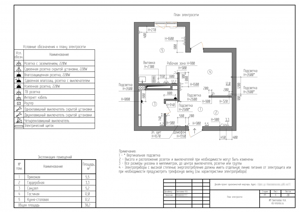
План розеток в квартире чертеж и пояснения
План розеток в квартире чертеж и пояснения

Как обозначаются несущие стены на плане
Как обозначаются несущие стены на плане

Обозначения на плане квартиры
Обозначения на плане квартиры

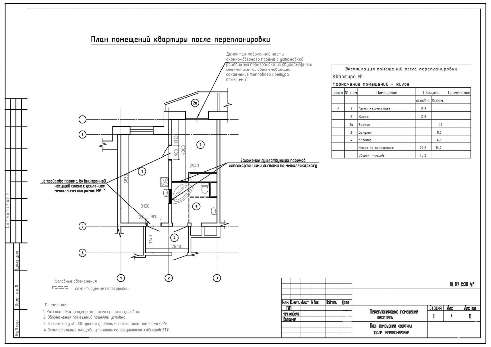
План перепланировки квартиры образец
План перепланировки квартиры образец

Условные обозначения на планировке квартиры
Условные обозначения на планировке квартиры

Электрическая схема квартирной электропроводки обозначения
Электрическая схема квартирной электропроводки обозначения

Обозначение оборудования на технологических схемах
Обозначение оборудования на технологических схемах

Обозначения на планировках
Обозначения на планировках

Обозначение электрики на плане квартиры
Обозначение электрики на плане квартиры

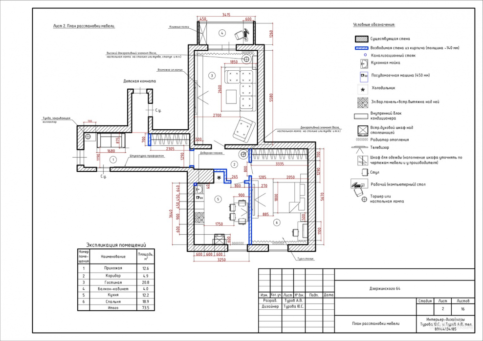
План меблировки
План меблировки

План электрики в квартире
План электрики в квартире

Схема расстановки розеток и выключателей в жилых помещениях
Схема расстановки розеток и выключателей в жилых помещениях

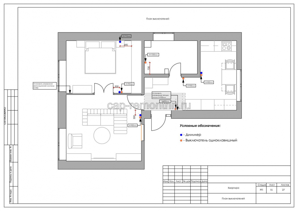
Как на плане обозначаются розетки и выключатели
Как на плане обозначаются розетки и выключатели

Обозначение диммера на схеме
Обозначение диммера на схеме

План расположения розеток rj45
План расположения розеток rj45

Холодильник на плане квартиры
Холодильник на плане квартиры

Обозначение помещений на плане
Обозначение помещений на плане

План размещения осветительных приборов
План размещения осветительных приборов

Чертеж звукоизоляции квартиры
Чертеж звукоизоляции квартиры

Овные обозначения на плане дома
Овные обозначения на плане дома

Проект квартиры чертежи
Проект квартиры чертежи

Как обозначается несущая стена на плане
Как обозначается несущая стена на плане

Планировка возводимых стен
Планировка возводимых стен

Чертеж розеток и выключателей в квартире
Чертеж розеток и выключателей в квартире

Настенный светильник на плане
Настенный светильник на плане

Обозначения на плане БТИ
Обозначения на плане БТИ

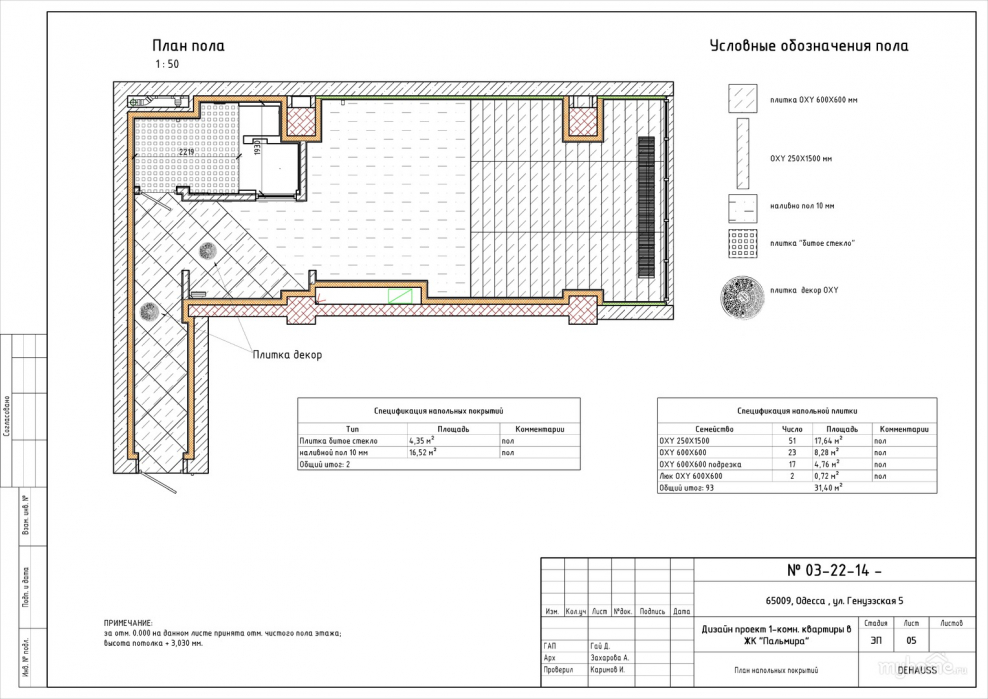
План отделки стен
План отделки стен

Как обозначается диммер на чертежах
Как обозначается диммер на чертежах

Электрический щиток на плане
Электрический щиток на плане

Условное обозначение посудомоечной машины на чертежах
Условное обозначение посудомоечной машины на чертежах

Обозначение на схеме БТИ Эл. Плит
Обозначение на схеме БТИ Эл. Плит

Обозначение рабочего места на схеме
Обозначение рабочего места на схеме

Обозначение вентиляционной камеры на чертеже
Обозначение вентиляционной камеры на чертеже

Посудомоечная машина на чертеже в плане
Посудомоечная машина на чертеже в плане

Планировка освещения
Планировка освещения

Полотенцесушитель на чертеже в плане
Полотенцесушитель на чертеже в плане

Как обозначается холодильник на плане
Как обозначается холодильник на плане

Обозначение щитка на плане
Обозначение щитка на плане

Обозначения на плане квартиры
Обозначения на плане квартиры

Как обозначается смеситель на схеме
Как обозначается смеситель на схеме

Строительное черчение сантехнические обозначение
Строительное черчение сантехнические обозначение

План электрики
План электрики

План электрики в санузле
План электрики в санузле

Терморегулятор для теплого пола на плане
Терморегулятор для теплого пола на плане

Как обозначается несущая стена на плане
Как обозначается несущая стена на плане

Шумоизоляция помещения чертеж
Шумоизоляция помещения чертеж

Юсб розетка обозначение на чертежах
Юсб розетка обозначение на чертежах

Условные обозначения в архитектурно-строительных чертежах
Условные обозначения в архитектурно-строительных чертежах

Схема электропроводки в квартире условные обозначения
Схема электропроводки в квартире условные обозначения

План электрики условные обозначения
План электрики условные обозначения

План розеток и электровыводов
План розеток и электровыводов

Условные обозначения на чертежах квартир
Условные обозначения на чертежах квартир

Обозначение площади помещения на чертежах
Обозначение площади помещения на чертежах

План по перепланировке квартиры
План по перепланировке квартиры

Схема электроснабжения квартиры розетки и выключатели
Схема электроснабжения квартиры розетки и выключатели

Демонтажный план квартиры
Демонтажный план квартиры

Обозначение электроплиты на чертеже ГОСТ
Обозначение электроплиты на чертеже ГОСТ

Освещение в интерьере план
Освещение в интерьере план

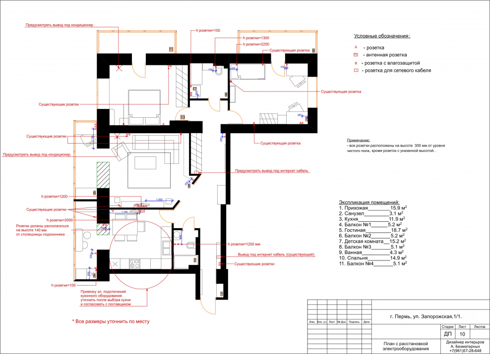
План расстановки электрооборудования
План расстановки электрооборудования

  • Просмотров: 39 102
  • Добавлено: 06 август
Категории: Квартира
Комментарии (0)
Кликните на изображение чтобы обновить код, если он неразборчив
Похожие фото