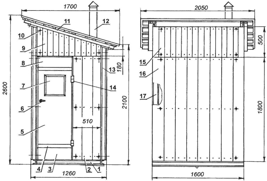
Дачный туалет чертежи с размерами и деталировкой (76 фото)
Каркасный сарай 3х3 чертеж
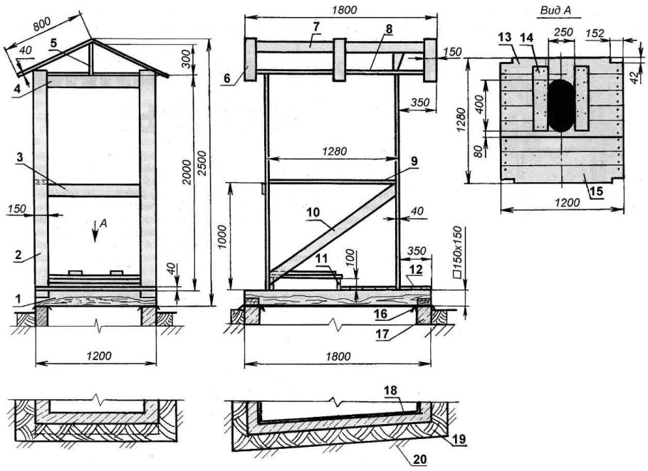
Чертеж дачный туалет Теремок
Туалет для дачи с сиденьем чертеж
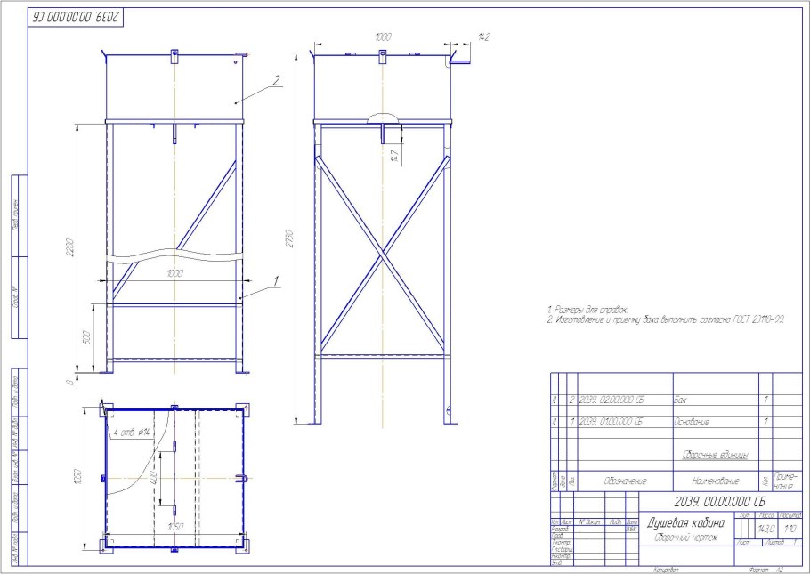
Летний душ еврокуб чертеж
Туалет с односкатной крышей чертеж

Дачный туалет Теремок чертежи Размеры
Чертеж дачного туалета
Дачный туалет односкатный чертёж
Вентиляция в дачном туалете с выгребной ямой схема
Садовые качели из дерева чертежи с размерами
Силовая рама габариты
Чертеж пластикового погреба
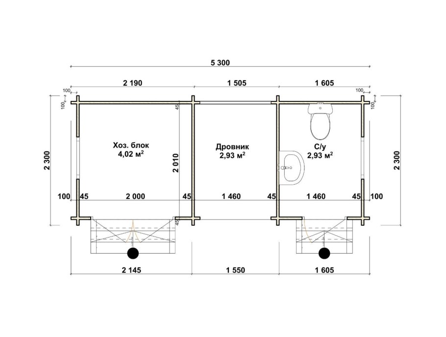
Чертёж хозблока душ, туалет, сарай с размерами
Чертеж дачного туалета
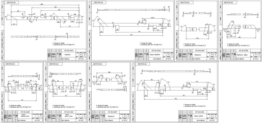
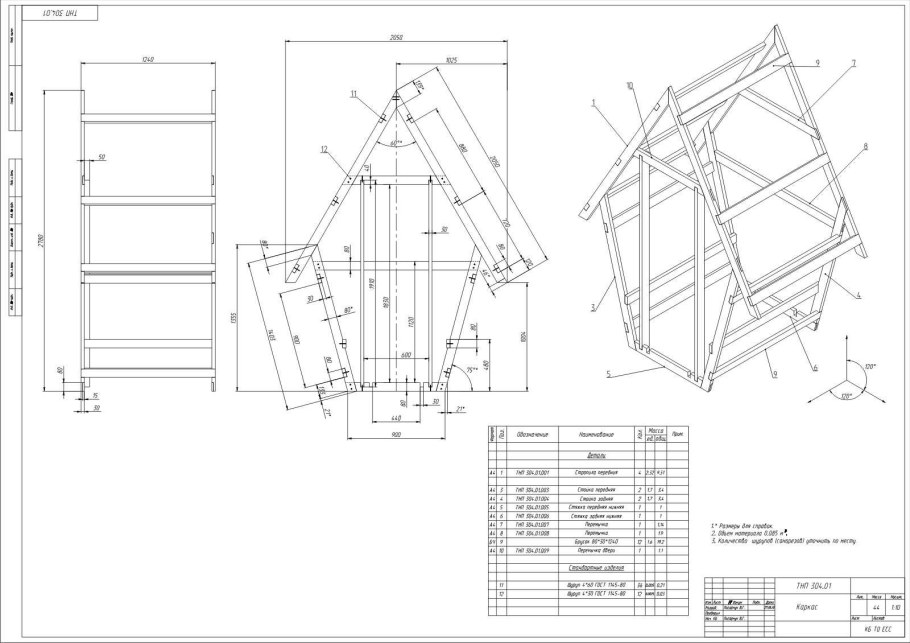
Каркас дачного туалета
Дачный туалет шалаш чертежи Размеры
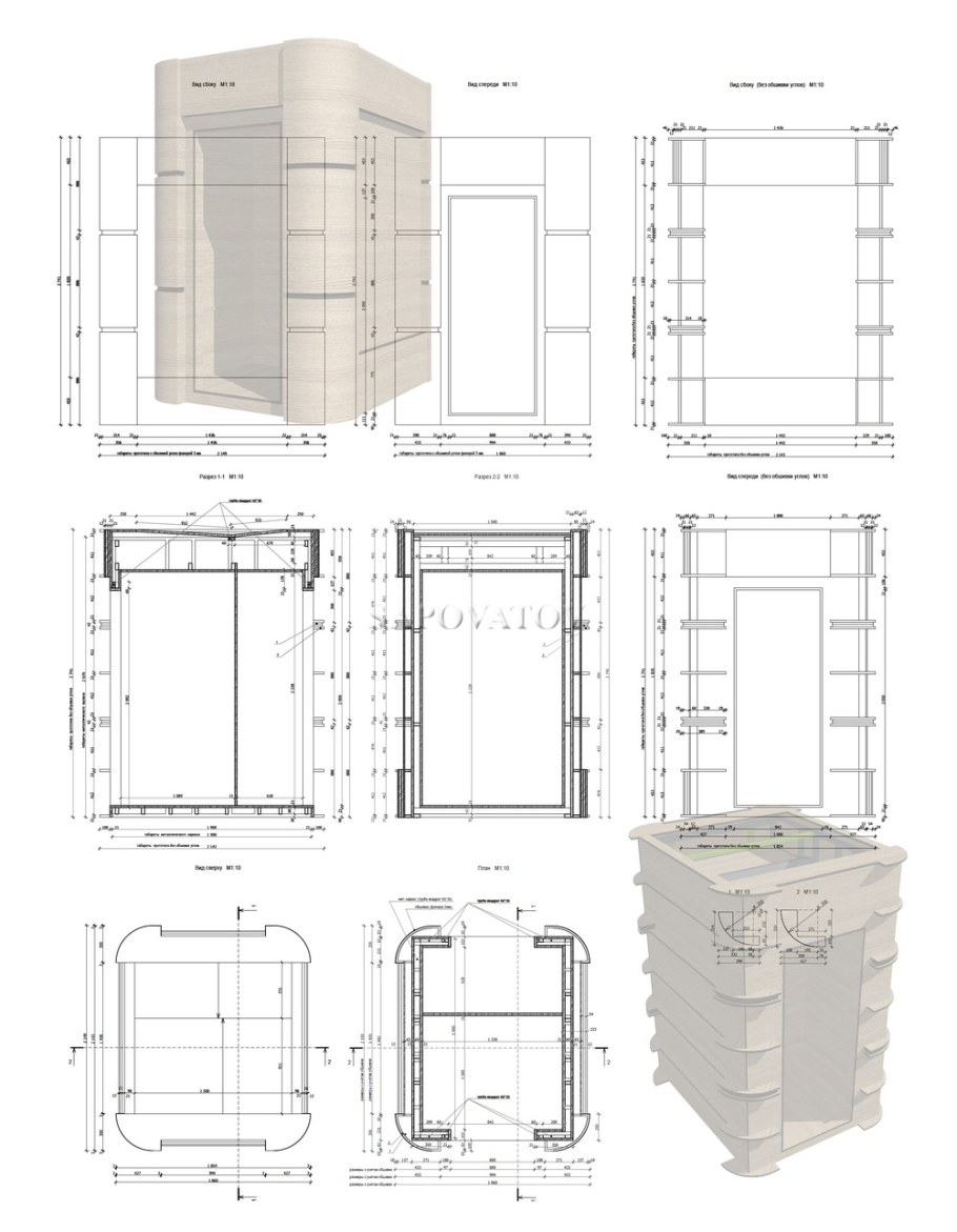
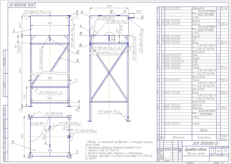
Чертеж душевой кабины с раздевалкой для дачи
Хозблок с туалетом и душем для дачи чертежи
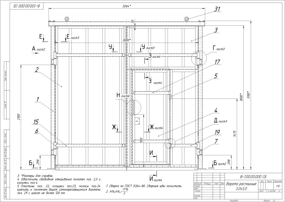
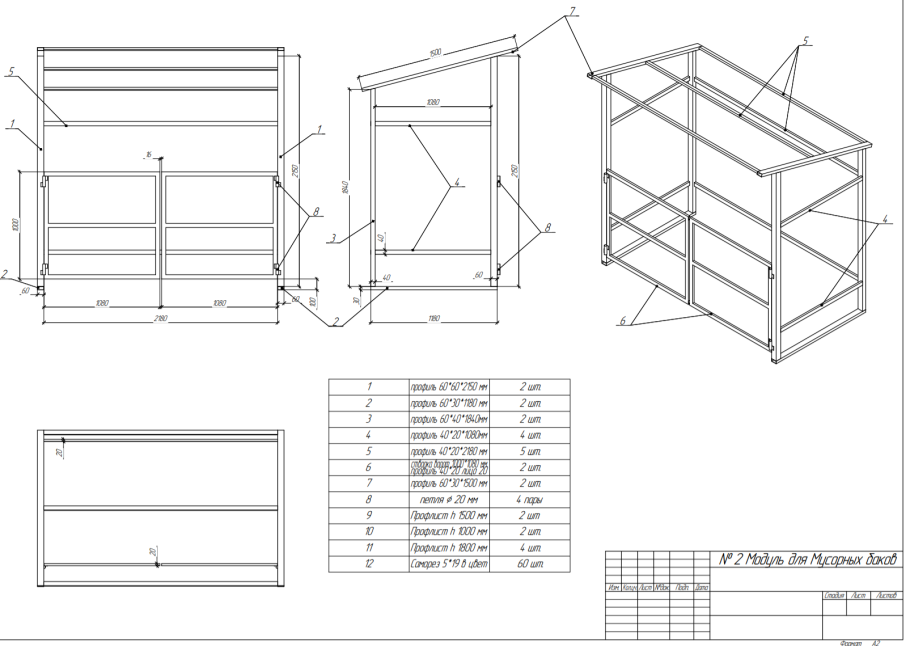
Чертеж сварки металлической коробки
Чертеж деревянной беседки 4/4
Пудр-клозет для дачи чертежи
Пудр-клозет торфяной туалет
Туалет Теремок чертежи
Чертеж каркаса дачного туалета
Чертеж дачного душа с раздевалкой с размерами
Туалет дачный деревянный чертеж с размерами
Дачный туалет с душем чертежи Размеры
Чертёж сарая 3х4 односкатная
Чертеж душевой кабины для дачи из дерева своими руками
Чертеж дачный туалет Теремок
Хозяйственный блок Keter Oakland 759
Туалет шалаш чертежи с размерами
Схема треугольного туалета для дачи
Чертеж бытовки 3на4 ОСБ
Garden Shed чертеж
Энцо Мари чертежи
Туалет для дачи деревянный чертеж
Дачный туалет из металлопрофиля чертежи
Туалет домиком чертеж
Сарай дровяник своими руками чертежи
Дачный туалет Теремок чертежи Размеры
Туалет из бревен с чертежами
Кетер сарай фактор 4х6
Туалет с хозблоком для дачи чертежи
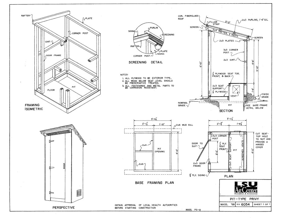
Проект туалета ТНП 304.01
Чертеж опора под еврокуб
Чертеж дачный туалет Теремок чертеж
Каркасный сарай 3х3 чертеж
Туалет дачный деревянный чертеж с размерами
Дачные туалеты Волоколамск
Чертеж туалета скворечник для дачи с размерами
Пудр-клозет для дачи чертежи
Туалет - душ - хозблок (размер 2-1,2-1,2 м)
Технологическая карта по технологии 5 класс для мальчиков скворечник
Туалет дачный деревянный чертеж с размерами
Деревянный туалет Теремок чертежи
Дачный туалет избушка чертежи и Размеры
Туалет с выгребной ямой чертеж
Туалет на 4 очка типовой проект
Туалет дачный своими руками чертеж пошагово
Домик для колодца своими руками чертежи
Схема беседки из бруса 3х4
Туалет Теремок чертежи
Дачный туалет фахверк
Проект дачного туалета Теремок
Каркасный дом 6х6 схема постройки
Чертежи курятника на 20 кур зимний
Похожие фото
↑