Домик для ежика на даче размеры и чертежи (65 фото)
Домик для ежика своими руками
Домик для ежей
Деревянные домики для ежиков
Домик для ежика чертеж
Кормушка для птиц своими руками из дерева чертежи
Домик для ежей на даче
Чертеж размер гнезда для индоуток
Дуплянка для Скворцов Размеры
Чертеж скворечника для синиц
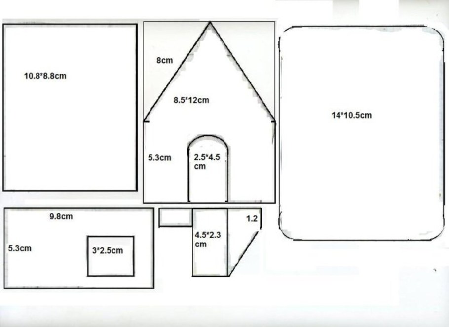
Пряничный домик из картона шаблон
Выкройка Рождественского пряничного домика
Домик для ежей
Детский деревянный домик чертеж
Скворечник план постройки
Домик для ежей
Чертеж каркасного сарая 4х3
Дом шалаш Моделист конструктор
Размеры скворечника для птиц чертеж
Ящики ежив
Кормушка для птиц домик с чертежами
Детский деревянный домик чертеж
Домики для ежей в саду
Домик для ежа зимний
Пряничный домик схема
Домики для ежей в саду
Каркасный сарай с односкатной крышей 2.5 х 4 м
Двухъярусная кровать домик чертеж 160 80
Будка для котика Размеры и чертежи
Размеры скворечника и синичника
Схема дома из картона
Домик для Ёжика на даче
Чертеж будки для немецкой овчарки
Размеры домика для ежа
Размеры скворечника для Скворцов чертеж
Контейнер для ежа
Домик для ежа зимний
Детский домик на даче Размеры
Пряничный домик чертеж
Параметры скворечника для Скворцов
Чайный домик из фанеры своими руками чертежи
Чертеж по производству детской кровати домик
Будка для собаки чертеж для немецкой овчарки
Дом для ежа чертеж
Домик для ежика своими руками
Баня с односкатной крышей проекты 4х6
Кровать домик (80 х 180) чертежи
Каркасник с верандой чертеж
Домик для Ёжика на даче
Домики для ежей Размеры
Домик для подсадной утки
Хозблок 2х3 чертеж односкатной
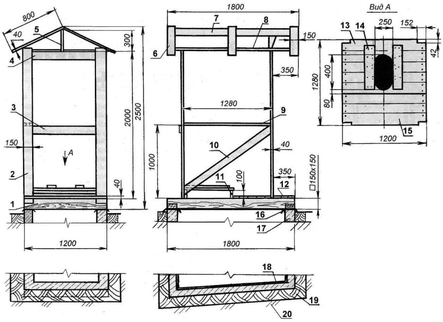
Дачный туалет Теремок чертежи Размеры
Чертеж дачный туалет Теремок
Лоток для ежа
Домик для ежей на даче
Домик для ежей
Правильный размер скворечника для Скворцов чертеж и Размеры
Чертеж домика скворечника технология

Размеры скворечника для Скворцов чертеж

Кровать домик чертеж с размерами 160 80
Деревянный домик для ежа
Домик для ежей
Собачья конура чертежи с размерами
Домик для синички чертеж и Размеры
Схема выкройки пряничного домика
Похожие фото
↑