Дачный туалет размеры и чертежи (73 фото)
Подставка под еврокуб чертеж с размерами
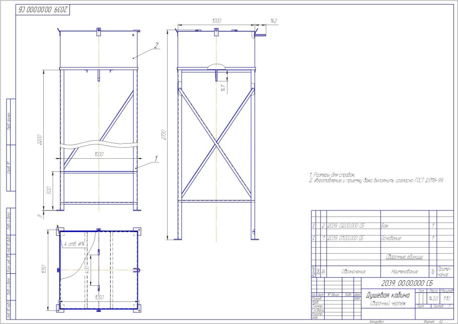
Летний душ для дачи чертежи с раздевалкой и туалетом
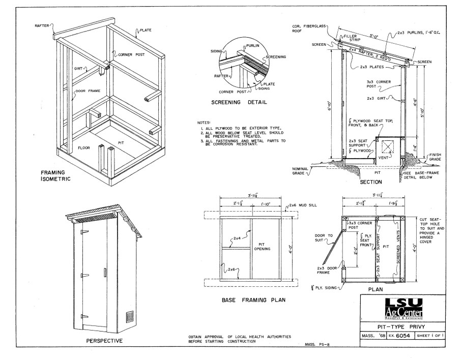
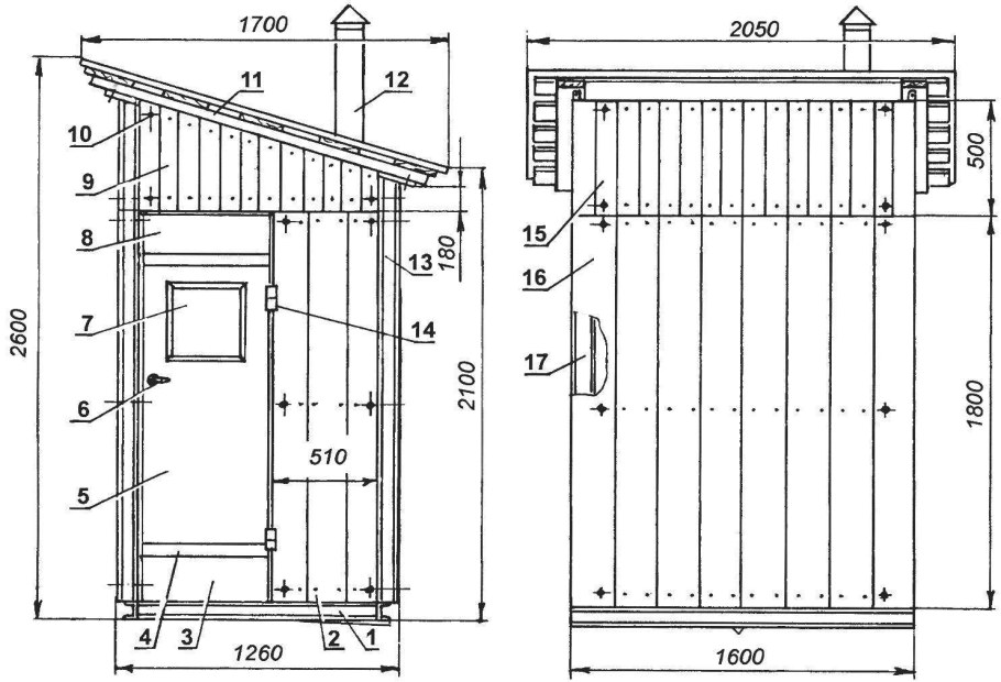
Дачный туалет односкатный чертёж
Домик для колодца своими руками чертежи
Дачный туалет пудр клозет чертежи
Дачный душ деревянный с раздевалкой чертеж
Чертеж душевой кабины с раздевалкой для дачи
Пудр-клозет для дачи чертежи
Дачный туалет Теремок чертежи Размеры
Туалет дачный своими руками чертеж пошагово
Дачный туалет шалаш чертежи Размеры

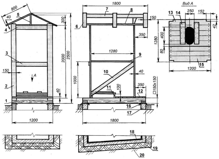
Силовая рама чертеж
Габариты дачного туалета
Размеры деревянного туалета
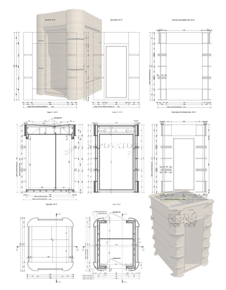
Уличный туалет чертеж
Туалет для дачи деревянный чертеж
Чертеж дачный туалет Теремок
Дачный туалет избушка чертежи и Размеры
Хозблок 3х5 чертеж
Пластиковый сарай Factor 4х6
Туалет Теремок Размеры
Чертеж душевой кабины с раздевалкой для дачи
Туалет типа пудр-клозет
Хозблок 3х5 чертеж
Хозблок 3х4 чертежи
Туалет Размеры дачный шалаш чертежи и Размеры
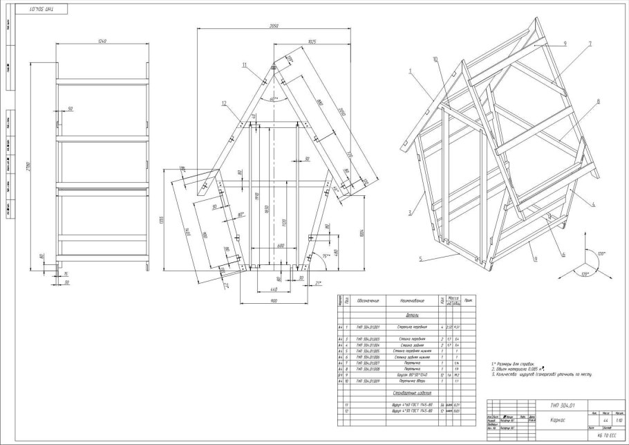
ТНП 304.01
Чертеж деревянного скворечника
Проект дачного туалета Теремок
Туалет дачный деревянный чертеж с размерами
Садовые качели из дерева чертежи с размерами
Дачный туалет своими руками чертежи с размерами
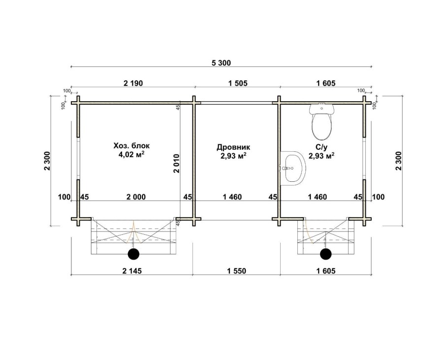
Туалет - душ - хозблок (размер 2-1,2-1,2 м)
Туалет для дачи чертеж
Туалет Теремок чертежи
Туалет - душ - хозблок (размер 2-1,2-1,2 м)
ТНП 304 туалет чертеж
Чертежи курятника на 20 кур зимний
Душ-туалет-хозблок 5х2,3м
Размеры уличного туалета
Дачный туалет из металлопрофиля чертежи
Туалет Теремок чертежи
Хозблок 2х2 чертеж
Чертёж сарая 3х4 односкатная
Конструкция уличного туалета с выгребной ямой схема
Беседка 3х3 с двухскатной крышей чертеж
Туалет для дачи деревянный Размеры
Туалет с выгребной ямой чертеж
Туалет для дачи с сиденьем чертеж
Чертежи туалета для дачи деревянного Теремок
Туалет душ хозблок 3 в 1 чертежи
Сарай дровяник своими руками чертежи
Чертеж деревянной беседки 4/4
Смета дачного туалета с размерами
Пудр-клозет для дачи чертежи
Уличный туалет чертеж
Дачный туалет с выгребной ямой на даче
Чертёж хозблока душ, туалет, сарай с размерами
Туалет с односкатной крышей чертеж
Дачный туалет чертежи с размерами
Хозблок 3х5 чертеж
Размеры деревянного туалета
Туалет скворечник чертежи с размерами
Кишат в дачном туалете
Хозяйственный блок Keter Oakland 759
Дачный туалет Теремок чертежи Размеры
Подставка под еврокуб для полива чертеж
Похожие фото
↑