Туалет дачный деревянный своими руками (65 фото)

Обустройство туалета на даче
Туалет дачный деревянный
Туалет для дачи
Туалет с душем для дачи
Сарай с душем и туалетом для дачи чертежи
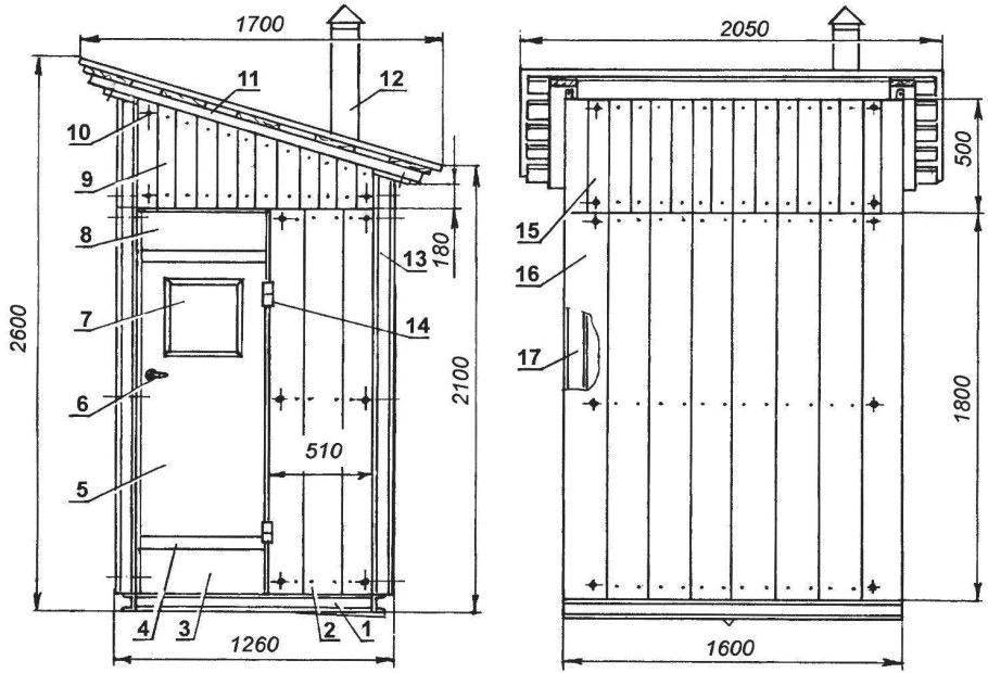
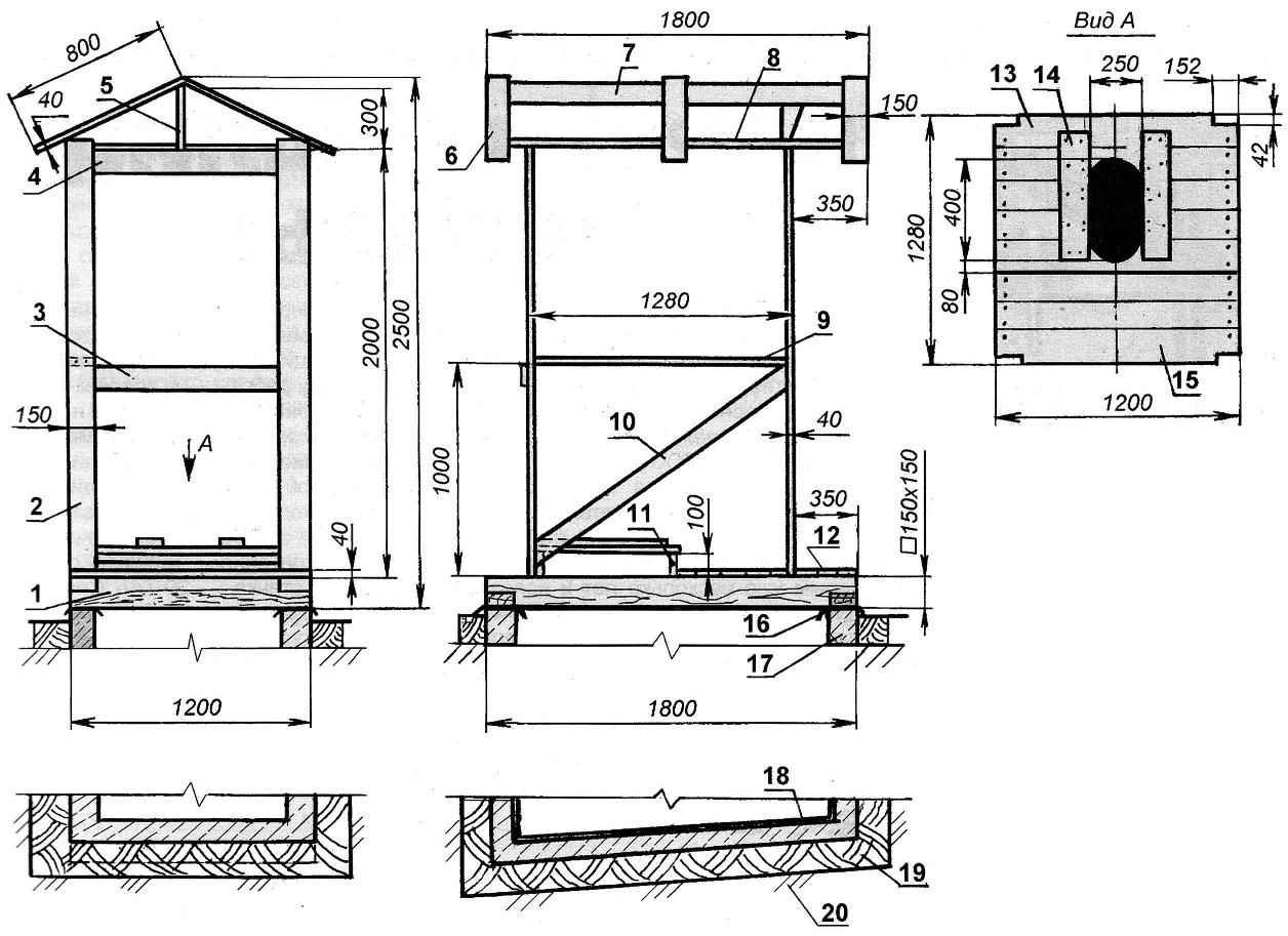
Туалет дачный деревянный чертеж с размерами
Туалет для дачи деревянный каркас
Оригинальный дачный туалет
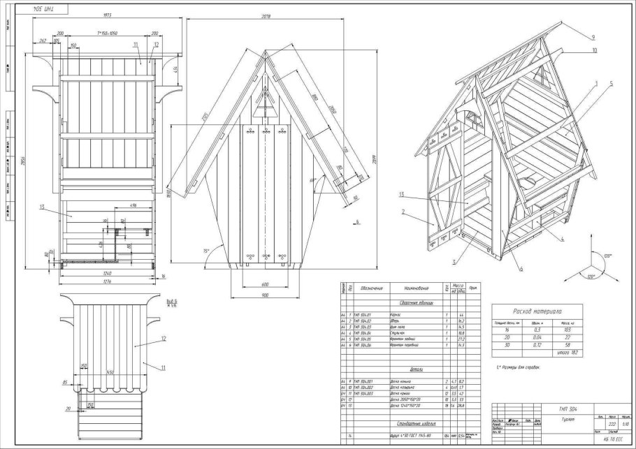
Garden Shed чертеж
Туалет дачный деревянный
Деревянный туалет на участке
Деревянный стульчак для дачного туалета

Деревянный туалет
Туалет дачный
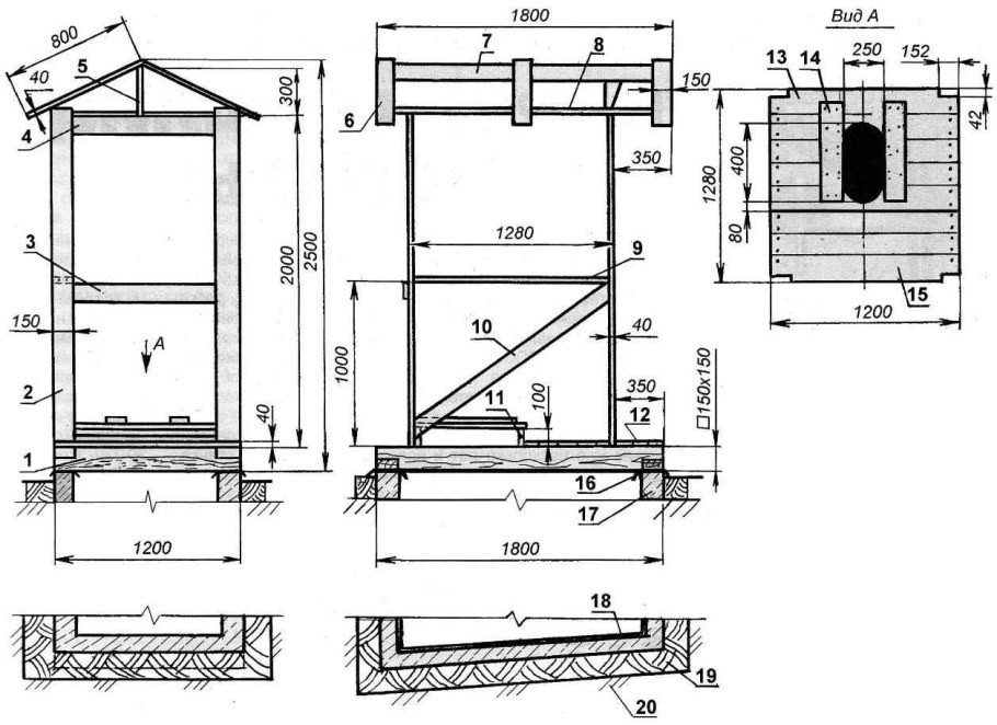
Чертеж каркаса дачного туалета
Каркас туалета
Уличный туалет для дачи

Дверь для дачного туалета
Деревянный туалет
Туалет из фанеры
Туалет из поддонов
Туалет для дачи
Дачный туалет Теремок каркас
Дачный туалет Теремок чертежи Размеры
Туалет дачный своими руками чертеж пошагово
Туалет из досок
Материал для туалета на даче
Туалет деревянный для дачи
Дверь для дачного туалета
Чертеж дачного туалета односкатная крыша
Проект деревенского туалета
Туалет дачный деревянный внутри
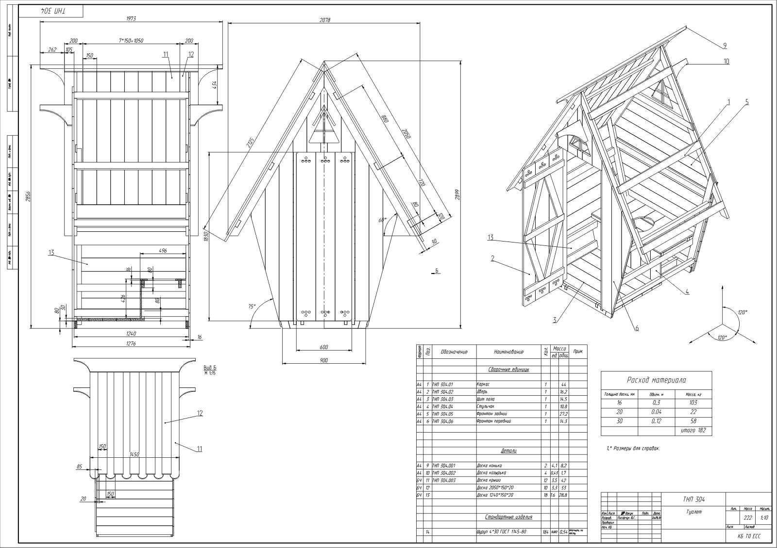
ТНП 304 туалет чертеж
Дачный туалет своими руками чертежи с размерами
Стульчак для дачного туалета
Унитаз для уличного туалета
Дачный туалет 1мх1м
Дачный туалет из ОСБ плиты
Туалет дачный
Треугольный дачный туалет
Туалет шалаш чертежи с размерами
Каркас деревянного туалета
Туалет дачный
Деревянный туалет на участке
Каркас деревянного туалета
Туалет дачный деревянный чертеж с размерами
Деревянный туалет скворечник
Туалет для дачи деревянный чертеж
Постройка туалета на даче
Каркас деревянного туалета
Уличный туалет домиком
Уличный туалет для дачи
Туалет деревянный для дачи
Сказочный туалет для дачи
Туалет дачный
Дачный сдвоенный туалет
Каркас деревянного туалета
Проект деревянного туалета для дачи
Каркас дачного туалета
Чертеж дачный туалет Теремок

Постройка дачного туалета
Уличный туалет для дачи
Дверь для дачного туалета
Туалет Теремок блок Хаус
Похожие фото
↑