Уличный туалет для дачи размеры (76 фото)
Хоз блок душ туалет сарай 6х3
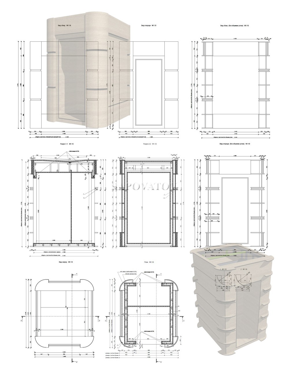
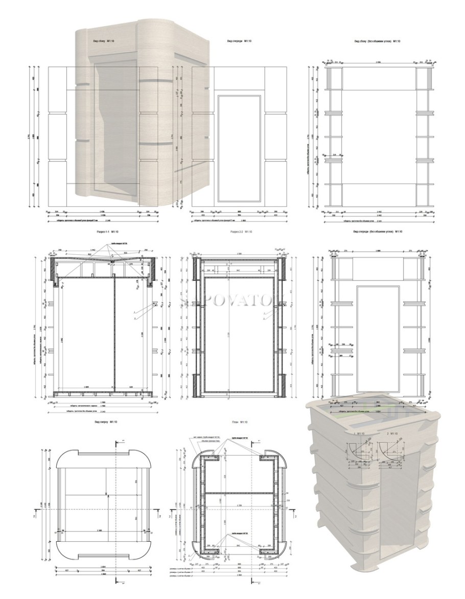
Туалет для дачи деревянный чертеж
Туалет дачный 1х1.2
Туалет дачный 1х1.2
Туалет - душ - хозблок (размер 2-1,2-1,2 м)
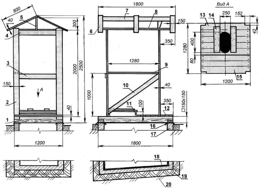
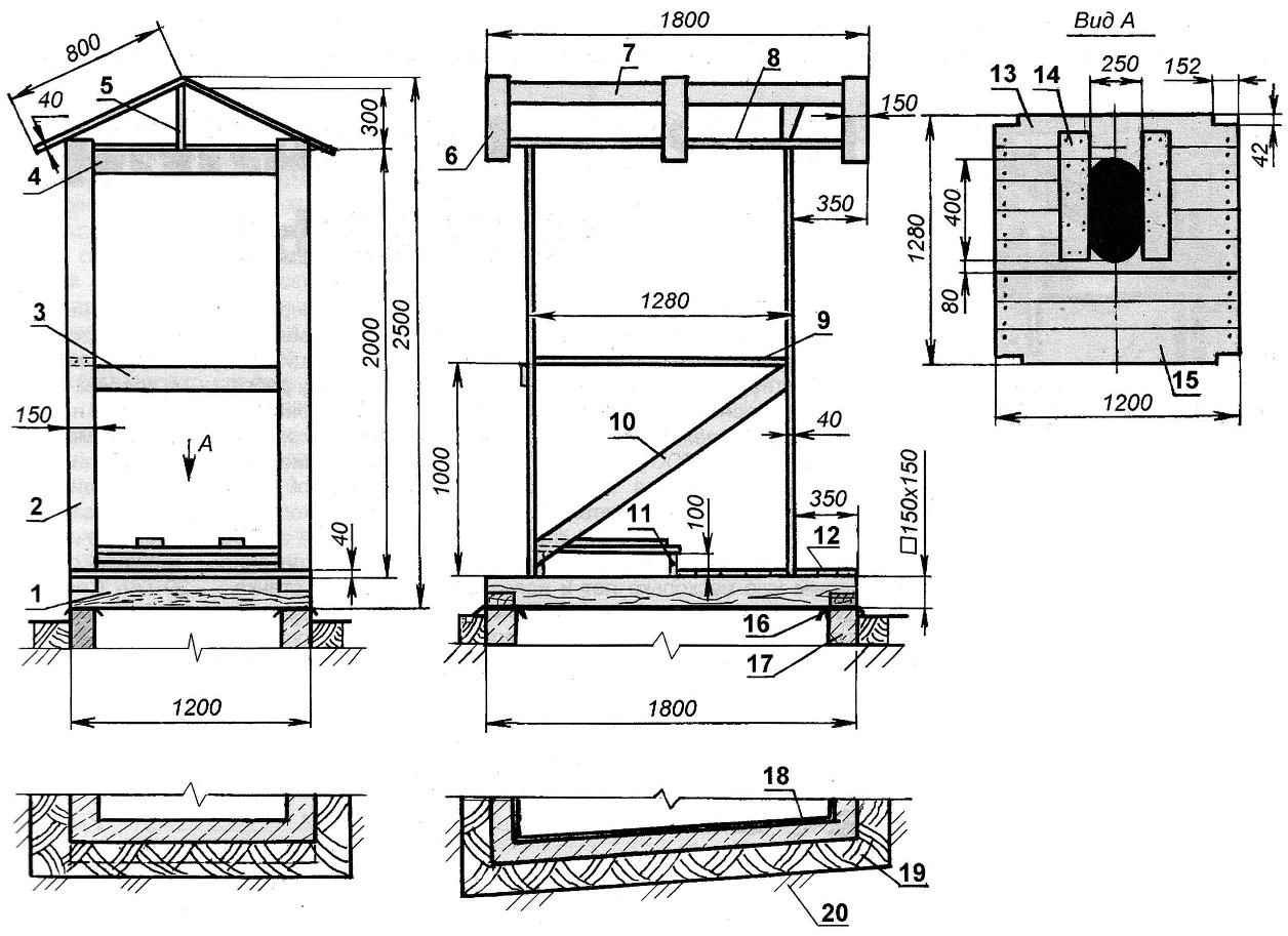
Чертеж дачного туалета
Чертеж деревянной будки
Туалет дачный деревянный чертеж с размерами
Дачный туалет шалаш чертежи Размеры
ТНП 304.01
Туалет для дачи деревянный чертеж
Туалет с односкатной крышей чертеж
Чертеж дачный туалет Теремок
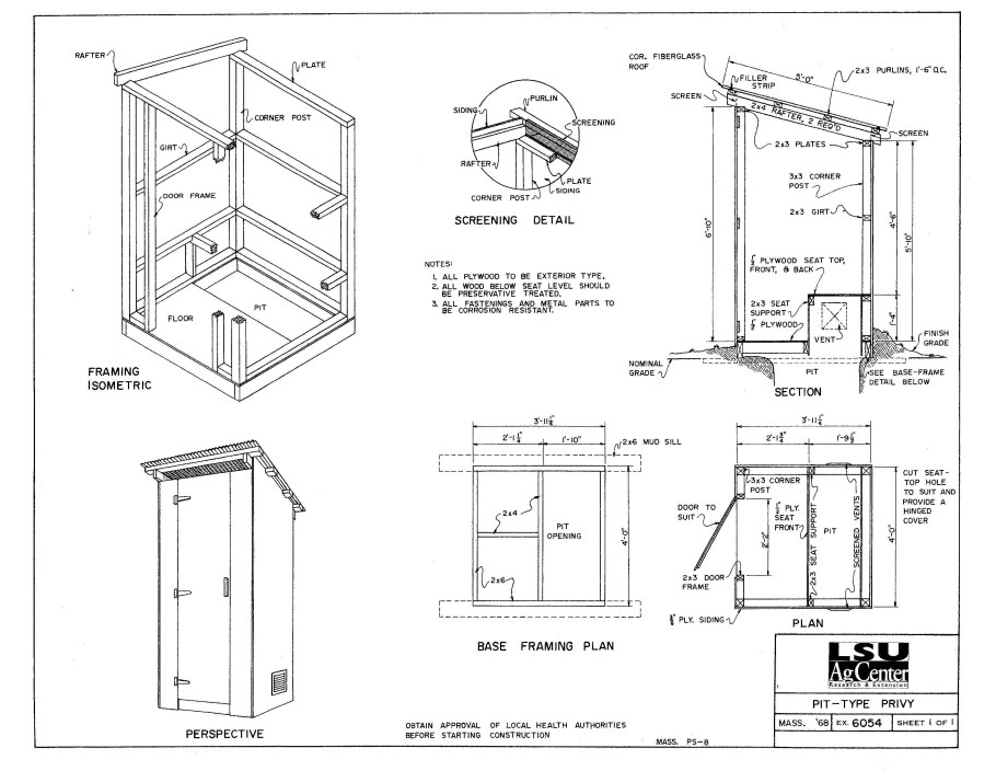
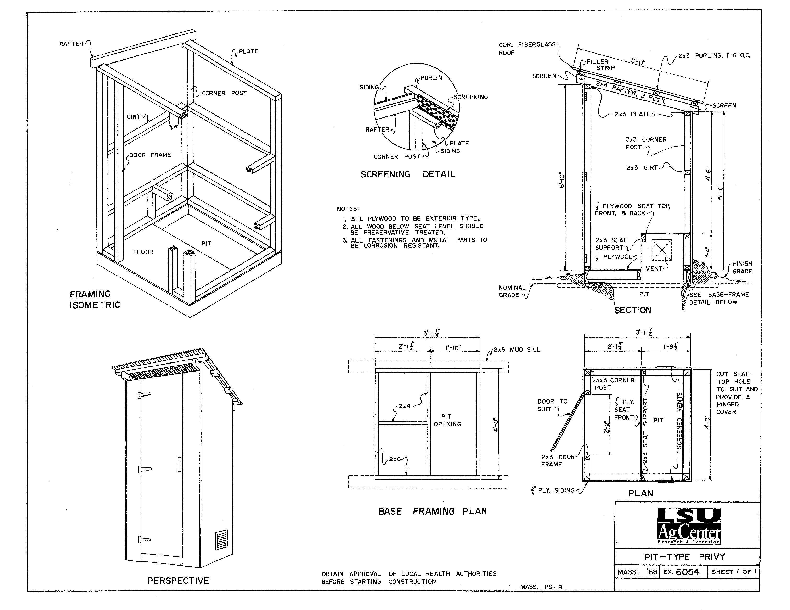
Туалет с выгребной ямой чертеж
Хозблок 2х3 чертеж
Деревянный туалет скворечник
Туалет дачный деревянный чертеж с размерами
Чертеж дачный туалет Теремок
Садовые качели из дерева чертежи с размерами
Туалет для дачи деревянный Размеры
Туалет из поддонов чертеж
Треугольный дачный туалет
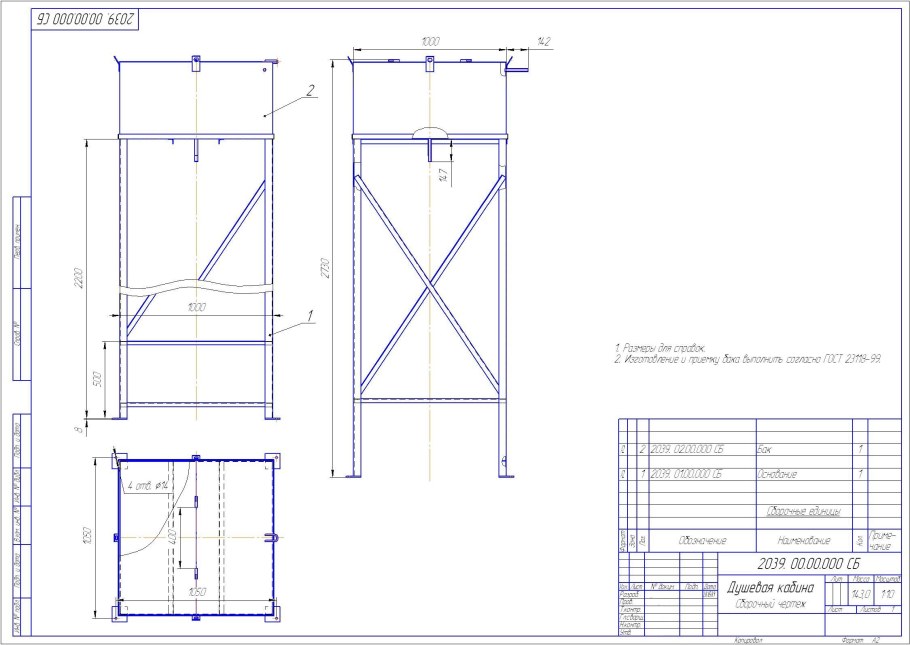
Чертеж дачного душа с раздевалкой с размерами
Конструкция уличного туалета с выгребной ямой
Дачный туалет пудр клозет
Чертеж дачный туалет Теремок
Хоз блок душ туалет сарай 6х3
Туалет деревянный Теремок
Проект дачного сарая с туалетом
Душ садовый с тамбуром ИМПЛАСТ "Престиж"
Дачный туалет Теремок чертежи Размеры
Проект чертёж хозблок туалет душевая из кирпича
Размеры дачного туалета Теремок
Чертеж душевой кабины для дачи из дерева своими руками
Круг для дачного туалета
Чертеж опора под еврокуб
Дачный туалет Теремок чертежи Размеры
Чертеж туалета скворечник для дачи с размерами
Зеленое сечение дачный туалет
Чертеж деревянного скворечника
Каркас деревянного туалета
Уличный туалет Теремок
Материал для туалета на даче
Туалет домиком чертеж

Пудр-клозет для дачи чертежи
Туалет дачный деревянный чертеж с размерами
Туалет Теремок Размеры
Каркас дачного туалета
Хозблок 3х3 чертеж
Размеры уличного туалета
Чертеж дачный туалет Теремок чертеж
Туалет дачный деревянный чертеж с размерами
Туалет с двускатной крышей
Поленница своими руками на даче
Дачный туалет односкатный чертёж
Дачные туалеты Волоколамск
Деревянный туалет избушка
Чертёж хозблока душ, туалет, сарай с размерами
Garden Shed чертеж
Дачный туалет из металлопрофиля чертежи
Туалет для дачи скворечник
Пудр-клозет для дачи чертежи
Дачный туалет с выгребной ямой на даче
Голубой дачный туалет
Вентиляция в дачном туалете с выгребной ямой схема
Домик для детей Теремок чертеж
Сливная яма для воды из бочек 200 литров
Туалет с односкатной крышей чертеж
Туалет - душ - хозблок (размер 2-1,2-1,2 м)
Размеры уличного туалета
Туалет типа пудр-клозет
Чертеж дачного туалета
Пластиковый сарай Factor 4х6
Похожие фото
↑