Вытяжка для дачного туалета своими руками (73 фото)
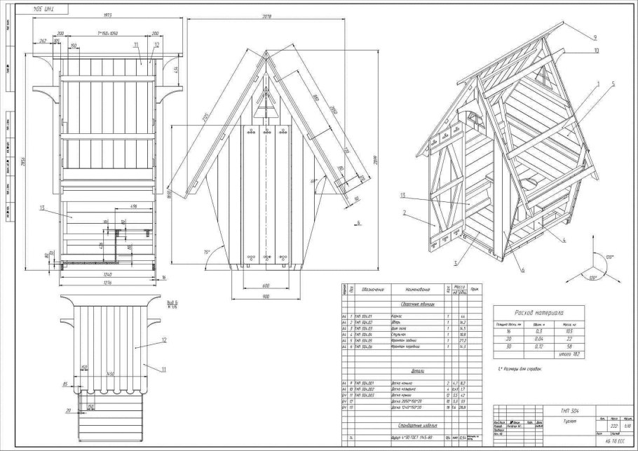
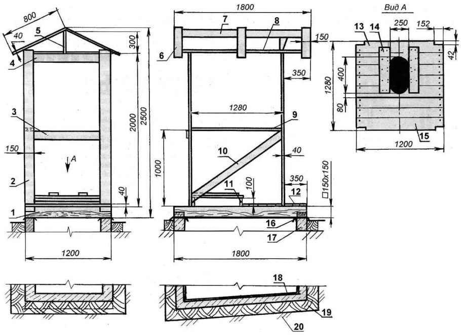
Чертёж уличного туалета с выгребной ямой
Вытяжка в дачном туалете
Туалет на даче септик схема
Уличный туалет для дачи
Вентиляция в дачном туалете с выгребной ямой схема
Вытяжка в дачном туалете
Правильная вентиляция в уличном туалете
Экоматик Санди 110
Отбойник в туалете на даче
Выгребная яма из кирпича для туалета
Вытяжка в дачном туалете
Вытяжная труба для вентиляции в уличном туалете
Схема установки канализационного колодца
Дачный пудр клозет
Схема разводки канализационных труб в частном доме
Сборка: люфт-клозета

Туалет типа пудр-клозет
Емкость для туалета
Вытяжка из погреба в гараже
Дачный туалет с вентиляционной трубой
Массажное кресло JB-k002
Вентиляция в дачном туалете
Вытяжная труба в уличном туалете
Подиум для туалета на даче
Дачный туалет пудр клозет чертежи

Чертеж дачный туалет Теремок
Обшивка дачного туалета
Вытяжка на даче
Торфяной биотуалет вентиляция
Вытяжка в садовом туалете
Схема треугольного туалета для дачи
Туалет на даче с унитазом
Уличный туалет
Уличный туалет для дачи из поддонов

Вытяжка для дачного туалета своими руками (73 фото)
Купить туалет деревенский в Марий Эл
Дачный туалет с вытяжной трубой
Труба для уличного туалета
Фановая вентиляция для септика
Схема монтажа вентиляции ванной комнаты
Вытяжная труба в уличном туалете
Крепление трубы к вытяжке
Вытяжная труба в уличном туалете
Унитаз из ведра своими руками
Дачный туалет люфт клозет
Уличный туалет для дачи
Вытяжка в дачном туалете
Конструкция уличного туалета с выгребной ямой схема
Схема вентиляции дачного туалета
Сиденье для дачного туалета
Замаскировать дачный туалет
Вентиляция в дачном туалете
Схема дачного туалета с выгребной ямой
Отделка дачного туалета
Чертежи дымовой трубы для газового котла
Схема вентиляции погреба
Дачный туалет без выгребной ямы раньше
Вытяжки в ванную и туалет
Схема вытяжки дачного туалета с выгребной ямой
Дачный туалет с вентиляционной трубой
Вентиляция в вагончике
Что такое люфт клозет и пудр клозет
Уличный туалет из кирпича
Сидячий туалет на даче

Биотуалет Separett Villa 9020
Вытяжка в дачном туалете
Вытяжка в туалете на даче
Птик для туалета на даче
Похожие фото
↑